绵阳科技城新区英才小学 / NDG恒新寰宇
项目背景Project Background
位于四川省绵阳市科技城新区的英才小学,是绵阳科技城新区最新开办的一所公立学校。建设用地面积约为2.4万㎡,建筑面积约3.7万㎡,总计招生规模约2400人。用地呈三角形,西侧为现状城市住宅,东南侧和东北侧临城市道路,不规则的地块形状、高标准的功能需求、周边复杂的城市环境,为这个项目创造了很多挑战,使其成为了相关部门最重视的项目之一。
Yingcai Primary School, situated in Mianyang Science and Technology City New District, Sichuan Province, is a newly established public institution designed to accommodate approximately 2,400 students. Occupying a triangular 24,000 m² site with 37,000 m² of built floor area, the campus is bordered by residential developments to the west and urban thoroughfares to the southeast and northeast. Its irregular geometry, stringent functional requirements, and dense urban context posed significant design challenges, positioning it as a flagship project for the district.
▼校园鸟瞰,aerial view of the campus

随着绵阳科技城新区的设立,又为项目提出了新的要求,作为绵阳科技城新区的新校,它承担着对新区校园模式的探索重任,不仅需要高品质地解决周边社区的学位问题,也需要恰当的体现新区的城市性格。项目抽象绵阳涪江江水的形态,形成横向线条的立面元素,并以现代的处理手法,通过线条的穿插呼应科技城新区的科技感。
▼概念草图,concept sketch

The establishment of Mianyang Science and Technology City New District introduced heightened expectations for the project. As a pioneering educational institution within the district, the school serves as a prototype for future campus typologies, demanding both high-caliber solutions to local enrollment needs and an architectural expression emblematic of the district’s innovative identity. The façade design draws inspiration from the sinuous morphology of Mianyang’s Fujiang River, abstracted into horizontal linear elements. Contemporary detailing interweaves these motifs to evoke the technological ethos of the science and technology district.
Viewing the teaching building from the playground
©NDG恒新寰宇


▼教学楼立面,Facade of the teaching building

城市策略Urban Strategy
建设场地位于绵阳市八角北路与柏杨路的交叉口,大致呈三角形,八角北路为城市的次干道,直接与城市快速路相连,车流量较大。设计将运动场布置于道路十字交叉口处,有效拉开教学部分与交叉口距离,避免城市噪音影响,建筑的退让缓解了城市道路口的拥挤,不会对城市空间形成压迫;同时建筑布局与西侧原有城市肌理相呼应,形成西高东低的城市天际线。
▼设计生成,Design process

The site is situated at the intersection of Bajiao North Road and Baiyang Road in Mianyang City, characterized by a roughly triangular footprint. Bajiao North Road, functioning as a secondary urban arterial, directly links to the city’s expressway and accommodates high traffic volumes. In response to the context, the design strategically locates the sports field at the road junction. This configuration establishes a buffer between the educational facilities and the intersection, mitigating noise disruption from urban traffic. The building’s setback further alleviates congestion at the crossroads while maintaining a harmonious relationship with the surrounding urban fabric, avoiding visual or spatial encroachment. Additionally, the architectural massing aligns with the existing urban grain to the west, creating a graduated skyline that slopes downward from west to east, reinforcing the area’s contextual continuity.
▼城市道路看学校,Viewing the school from the city street

▼校园入口,Campus entrance


乐学街院Joyful Learning Street Yard
为了拓展学生的活动空间,我们用一条架空的“活力街道”串联教学部分和生活部分,使操场仍然可通过首层空间保持与教学院落的直接联系,形成立体的“街院”空间体系。活力街道通过拱券元素引导,形成如同柱廊般的序列空间,强化了其交通的主导性,夜幕降临,华灯初上,也是一番风景。
To maximize student activity space, an elevated “Dynamic Spine” bridges academic and auxiliary zones while maintaining direct connectivity between the playground and teaching courtyards via ground-level circulation, forming a three-dimensional “street-yard” spatial hierarchy. Arched colonnades rhythmically articulate the spine, reinforcing its role as a primary circulation axis while creating a visually engaging nocturnal streetscape.
▼与操场联系的架空层,Elevated floor connected to the playground

活力街道系统为各层教学区域提供了宽达4.8米的公共交流空间,走出教室外廊,就进入了开放连续的公共空间之中,竖向空间元素不再局限于楼梯与台阶,设计设置了户外的交通体以联系各个退台及公共活动空间,使竖向交通的活动成为了公共活动的一部分,各个公共空间的“无缝衔接”也为新的校园模式的探索提供了载体。
The 4.8m-wide Dynamic Spine functions as a continuous communal interface across all academic levels. Transitioning from classroom corridors, users enter this open public realm where vertical circulation transcends conventional staircases—outdoor ramps and terraces integrate movement with social interaction, transforming vertical transit into participatory spaces. This seamless spatial continuity supports experimental pedagogic models.
▼活力街道与拱券元素,Vibrant street integrated with arch elements

The teaching building at dusk
©NDG恒新寰宇

▼活力街道构成的立面,facade composed with vibrant street


活力街道通过入口的大台阶和面向操场的看台台阶与地面连接,一方面在校园入口处形成立体分流,有效缓解上下学的交通压力,另一方面,面向操场的看台便捷联系了二层与运动场,使师生能更快的到达运动场,这里也成为了学生们喜爱的休憩活动空间。
Ground connections are achieved through entrance plazas with grand staircases and stadium-facing bleachers. This configuration enables multi-level ingress/egress to alleviate peak-hour congestion while providing expedited access between upper floors and athletic facilities. The bleacher-stair hybrid doubles as an informal gathering space, fostering student engagement.
Three-dimensional diversion at the grand entrance staircase
©NDG恒新寰宇

▼联系二层与操场的看台,Viewing platform connecting the second floor with the playground

▼联系二层与操场的看台,Viewing platform connecting the second floor with the playground

Students
are playing on the viewing platform
©NDG恒新寰宇

通过对楼栋的斜放与微折动作,使“院落”更加开阔,“街道”更加便捷。为师生提供更多的活动和交流可能性。在院落之中,我们设计了面向蓝天的“山丘”装置,“山丘”内部隐藏了地下部分的天窗系统,在保证为地下采光通风的同时,也形成了有趣的形体,暗示地下还有一番世界。
Strategic angular shifts in building massing optimize courtyard openness and circulation efficiency. Skyward-oriented “Topographic Sculptures” within courtyards conceal subterranean skylight systems, balancing underground ventilation/illumination with playful formal gestures that hint at layered spatial experiences.
▼校园宽阔的后院,The spacious backyard of the campus

全功能体All-Function Complex
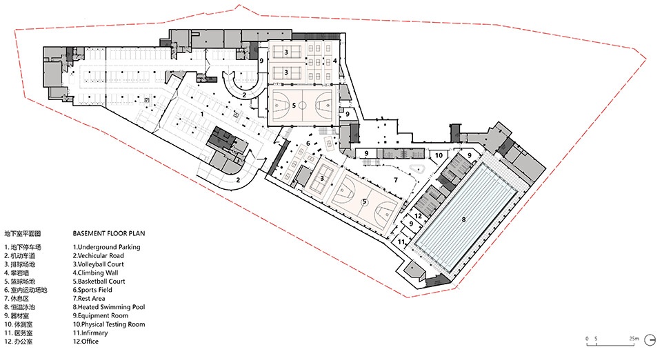
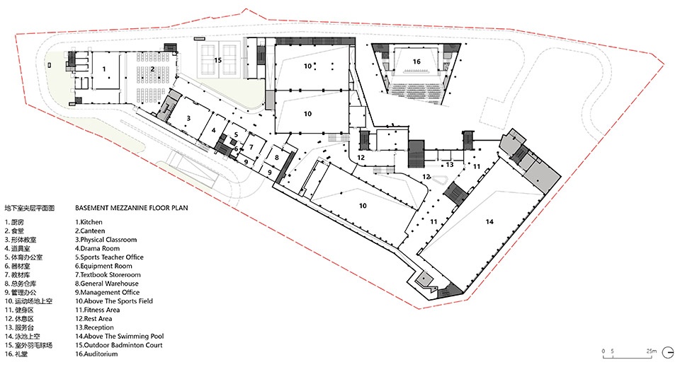
全面的功能需求与有限的项目用地之间的协调,成为了本次设计的最大挑战。由于对建筑覆盖率的严格限制,我们必须采用向上向下拓展空间的方式。向上拓展风雨操场、劳动园地,向下拓展恒温泳池、标准篮球场及羽毛球场。同时顺应场地高差设置吊层,以保证地下运动场地的通风与采光。
▼剖面图,section

Reconciling programmatic density with site constraints drove the design’s vertical intensification strategy. Strict footprint limitations necessitated three-dimensional expansion: upward for covered play areas and agricultural plots; downward for a thermostatic swimming pool, NBA-standard basketball courts, and badminton courts. Suspended slabs adapt to site topography, ensuring natural ventilation and daylight penetration for subterranean sports venues.
▼联系不同场地标高的后院台阶,Backyard steps connecting various site elevations

整个学校通过首层、二层、吊层的三标高方式进入使用,将公共空间有效连接,良好地分流了使用人群,形成了综合体常用的多首层模式,对于覆盖率局促的用地而言,我们创造了600人的礼堂、50米的标准恒温泳池、3个室内标准篮球场、5个室内标准羽毛球场、1200人的食堂、2400人的教室,也算是螺蛳壳里做了回道场。这些功能均通过地面电梯门厅以及地下车库与校外相通,在周末或假期,可面向社会开放,用于学校组织或承接各种标准赛事。
▼地下空间,Underground space

A tri-level access system (ground floor, second floor, suspended floor) creates multi-layered entry points typical of urban complexes, optimizing crowd distribution. Within the constrained footprint, the program includes a 600-seat auditorium, 50m Olympic pool, three basketball courts, five badminton courts, 1,200-capacity dining hall, and classrooms for 2,400 students—a testament to spatial efficiency. Ground-floor elevator lobbies and underground parking enable community access during non-school hours for competitions and events.
▼风雨操场立面,Facade of the covered playground

▼教学楼局部,Part of the academic building


生态校园Ecological Campus
建筑体量延展开后,打造不同标高层层退台的空中院落,通过户外楼梯将院落与院落联系起来,与地面的庭院形成立体叠院体系,以应对教学、活动、休憩、迎宾、运动、劳作等不同的功能需求。因为叠院体系的建立,使地面院落的活动场地压力得到释放,可以更多地做景观处理来提升校园植被覆盖。
Terraced sky courtyards cascade across multiple levels, interconnected by exterior stairways to form a stratified “Stacked Yard System” addressing diverse functions: pedagogy, recreation, hospitality, athletics, and horticulture. This vertical greening strategy alleviates ground-level activity pressures, liberating surface areas for enhanced landscape integration.
▼层层退台及丰富的竖向联系,Tiered terraces with extensive vertical connectivity

▼城市街道看校园入口,Viewing the campus entrance from the city street

俯瞰英才小学,不同标高的平台上,设置有48块“试验田”,每个班都有一块,可以用来劳动实践,或栽种庄稼、或养成花园。地面景观与空中菜园相互呼应,全面优化了校园的生态系统。
Aerial platforms host 48 modular “Cultivation Plots”—one per classroom—for agricultural education and gardening. These elevated gardens synergize with ground-level landscapes to create an integrated ecological network, amplifying campus biodiversity.
▼屋面“试验田”,Rooftop test field

▼傍晚校园鸟瞰,Aerial view of the campus at dusk

▼地下室平面图,Basement floor plan

▼地下室夹层平面图,Basement mezzanine floor plan

▼一层平面图,ground floor plan

▼二层平面图,second floor plan

Project name: Mianyang Science and Technology City New District Yingcai Primary School
Project type: Educational building
Design: Nouveau Design Group Co., Ltd.
Contact e-mail: linyanyu2018@qq.com
Design year: 2022
Completion Year:2024
Leader designer & Team: Lin Yanyu、Zhang Yifan、Chen Yu、Guo Jinchen、Tang Honghe、Peng Yawen
Project location: Mianyang Science and Technology City New District, Sichuan Province
Gross built area: 37958㎡
Photo credit: Nouveau Design Group
Local Design Institute: EDRI
Landscape design development: Sichuan Hongtu Urban Design & Consulting Group Co.
Clients: Mianyang Science and Technology City New District Boya School
Materials: Aluminum panels, Exterior paint, Terrazzo














