Mercado手工艺品集市,墨西哥 / AIDIA STUDIO
MERCADO是一个充满活力的手工艺品集市,致力于向游客和探索附近玛雅考古奇迹的游客展示当地社区的手工艺品和新鲜农产品,从而增强当地社区的能力。开发该市场的倡议是政府资助的墨西哥欠发达城市改善计划的一部分,目的是将日益增长的旅游业与Yucatan半岛社区的需求联系起来。
MERCADO is a vibrant crafts market dedicated to empowering the local community by showcasing their artisanal creations and fresh produce to both visitors and tourists exploring the nearby Mayan archaeological wonders. The initiative for its development was part of a government-funded program for the urban improvement of underdeveloped municipalities in Mexico, in this instance, it aimed at linking a growing tourism industry with the needs of the communities in the Yucatan peninsula.
▼项目鸟瞰,aerial view of the project



▼项目鸟瞰,aerial view of the project


Nicolas Bravo位于金塔纳罗奥州,是一个人口不足5000的市镇,该市场提供多种选择,以促进和维护Nicolas Bravo的特性和遗产。它同时也是一个社区中心,在这里可以举办文化活动和研讨会等活动,促进教育和福利发展。
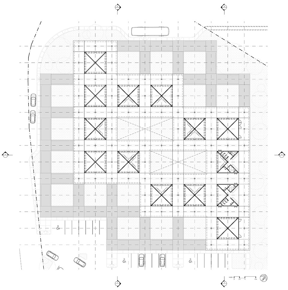
▼底层平面,ground floor plan

The market offers diverse options that promote and uphold the identity and heritage of Nicolas Bravo, a municipality with a population of under 5000 people in the state of Quintana Roo. It also doubles up as a community center where activities such as cultural events and workshops promote education and well-being.
▼集市外观,exterior view of the market


▼轻钢结构,lightweight steel structure


▼轻钢结构,lightweight steel structure


该项目充分体现了建筑师对弹性建筑方法的承诺,设计优先采用建筑技术和材料,以确保在建筑的整个生命周期内尽量减少维护。该建筑主要由四个部分组成:轻钢结构、染色钢筋混凝土板和护栏、彩色混凝土块以及作为屋顶和路面覆盖层的粘土砖。
▼结构及布局,structure and layout

The project is a testament to our commitment to a resilient architecture approach, prioritizing construction techniques and materials that ensure minimal upkeep throughout the building’s lifespan. The building is essentially constructed with four elements: a lightweight steel structure, pigmented reinforced concrete slabs and parapets, colored concrete blocks, and clay bricks as cladding for the roof and pavement.
▼独具匠心的拱形屋顶结构,ingenious vaulted roofing structure



▼绿色庭院,green courtyard


▼拱形屋顶结构局部,vaulted roofing structure detail


▼檐下空间,space under the eave

建筑采用8×8米的网格结构,占地面积达7700平方米,设有50个摊位。独具匠心的拱形屋顶结构横跨整个市场,仅在市场中心有两个绿色庭院。倒置的雨伞形成了双曲抛物面屋顶系统;这不仅体现了我们对建筑美学和结构完整性的形式探索,还融入了亲生物设计理念,使建筑结构与周围自然环境完美融合。
The building is laid out on an 8 by 8m structural grid arrayed into a 7,700m footprint housing 50 stalls. An ingenious vaulted roofing structure spans across the market only interrupted by two green courtyards at its heart. The inverted umbrellas shape a hyperbolic paraboloid roofing system; this not only reflects our dedication to form-finding for architectural aesthetics and structural integrity but also integrates a biophilic design philosophy, seamlessly blending the structure with its natural surroundings.
▼灯光下的结构,structure under the lighting

▼灯光下的结构,structure under the lighting

▼夜景,night view


▼场地平面,site plan

▼一层平面,first floor plan

▼屋顶平面,roof plan

▼立面图,elevation

▼剖面图,section

▼屋顶模块,roof module

Project: Mercado Nicolas Bravo
Type: Civic, Commercial
Location: Nicolás Bravo, Quintana Roo, México
Date: 2023 – 2024
Client: Secretary of Agrarian, Territorial, and Urban Development
Status: Completed
Plot Area: 13,300 m²
Construction Area: 7,700 m²
Architect: AIDIA STUDIO
Lead Architects: Rolando Rodriguez Leal, Natalia Wrzask
Project Coordination: José Luis Mulás
Project Team: Alexis Escalante, Mariano González, Nitze Magaña, Emilio Vásquez
Structural Engineering: Project & Calc
Photography: Andrés Cedillo














