Zilart 12号地块Hares房屋,莫斯科 / Buromoscow
莫斯科ZILART开发以其多样化的当代建筑而闻名。ZIL区域是一个前工业区,苏联汽车品牌ZIL曾在此建造。Meganom建筑师为270公顷的场地制定了Zilart城市开发计划,该计划设想了一个具有文化和亮点的街区城市模型。
Moscow ZILART development is known for its diverse contemporary architecture. The ZIL area is a former industrial area where soviet government car brand ZIL was built. Zilart city development plan by Meganom architects for the site of 270 Ha, it has envisioned a block city model with cultural and commercial highlights.
▼项目外观,exterior of the project

在Meganom和区策展方(本案例中为TLP)的策展下,一支精选的团队在狭窄的合作中开发了指定的街区部分。Buromoscow开发了第12号地块,在一个共同的基础上设计了两座建筑。
▼场地平面,site plan

A selected team of architects developed the assigned parts of blocks in narrow collaboration with one another under the curatorship of Meganom and a district curator, in this case TLP. Buromoscow developed lot 12, designing two buildings on a joint base.
▼场地轴测图,site axonometric

第一座房子由深棕色砖块制成,带有白色的兔子面具,这一细节使其在周围环境中脱颖而出。建筑立面上的面具一直用来创造多样性和识别度。
The first house is made of dark brown brick with white mascarons of hares, a detail that unmistakably distinguishes the building in its surroundings. Mascarons on building facades have historically been used to create variety and identification.
▼红砖外立面上的白色兔子面具,Hare mascaron’s sturdy face on the red brick facade

兔子是1970年代集体记忆中的一个难以捉摸的角色,从动画片《努,波迪!》开始,到 Leonid Gaidai 的热门电影《钻石臂》中的歌曲中无所谓的兔子割草,再到公共交通中的“兔子”逃票者。
The hare is an evasive character from the collective memory of the 1970s, starting with the cartoon “Nu, Pogodi!”, continuing with indifferent hares mowing grass in a song from “The Diamond Arm”, Leonid Gaidai popular movie, and ending with “hares” (fare evaders) in public transport.
▼兔子是1970年代集体记忆中的一个难以捉摸的角色,
The hare is an evasive character from the collective memory of the 1970s

抽象兔子的面具是一个让路人微笑的符号。兔子面具那坚毅的表情是对大众住宅的一种讽刺。
The mask of an abstract hare is a token that makes a passerby smile. Hare mascaron’s sturdy face expression and endless repetition makes a satirical remark towards mass housing in general.
▼抽象兔子的面具是一个让路人微笑的符号,
the mask of an abstract hare is a token that makes a passerby smile

第二座建筑则更加低调,几乎像背景一样。这座房子由灰色砖块制成,立面上有严格的网格,但在开放的窗户间有复杂的凸砖装饰。
The second building is made more discreet, almost as a backdrop. The house made of gray brick, with a strict facade grid but intricate convex brickwork between the window openings.
▼第二座建筑的立面细部,the facade detail of the second building



这两座建筑和谐共生,具有相似的手工质量和对细节的关注,赏心悦目。根据光线的不同,砖块的颜色从深棕色变为接近浅灰色。
The two buildings work nicely together, having the similar handmade quality and attention to detail that pleases an eye. Depending on the daylight the color of the brick changes from dark brown to almost light grey.
▼两座建筑和谐共生,the two buildings work nicely together

视觉艺术家伊利亚·达杜拉(Ilya Dyadyura)创作了兔子的面具。最初的创意是用陶瓷制作,但混凝土被证明是一个更好的选择。
▼兔子面具细部,the mascaron of a hare detail

The mascaron of a hare was modelled by the visual artist Ilya Dyadyura . Initial idea was to make them in ceramics, but concrete proved to be a better option.
▼兔子面具细部,the mascaron of a hare detail

外立面是混凝土包层带和Cuuber砖外立面系统的组合,布局经过精心设计棕色塔楼的窗户周围有突出的单砖框架,打断了平砖错缝。白色塔楼的窗间墙有凹形的水平挑布局。12号地块有一个地下车库和一个私人庭院。入口来自相邻的街道,一个门厅供两个步行道使用。塔楼每座有12层,采用现浇混凝土建造。每座塔楼由两个步行楼梯组成每层有4到6套公寓。公寓的平均面积符合莫斯科市场的标准,一室公寓40-45平方米,两室公寓50-0平方米,配有独立厨房。
▼外立面轴测图,facade axonometric

Façade is a combination of concrete cladded bands and Cuuber brick façade system, with carefully detailed layout.Brown tower has protruding singular bricks frame around windows interrupting the stretcher bond. The white tower has a concave shaped horizontal corbelling layout of the inter-fenestrations.
Lot 12 has an underground parking garage and a private courtyard on top. Entrances are from the ajacent streets, one entrance hall for two walk-ups. Towers are 12 floors each, built in in-situ cast concrete.
Each tower consists of two walk-ups with 4 to 6 apartments per floor. Apartments are average size for Moscow market, 1-bedroom 40-45m2, 2 bedroom around 50-70m2 with separate kitchen.
▼建筑立面,building facade

▼平面图,plan

▼立面图,elevation


▼剖面图,section


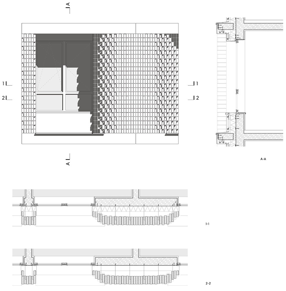
▼细部,detail


Project name: House with Hares, Zilart, lot 12
Project type: residential
Design: Buromoscow
Website: http://www.buromoscow.com
Contact e-mail:info@buromoscow.com
Design year: 2018
Completion Year: 2024
Leader designer & Team: partners: Julia Burdova, Olga Aleksakova, leader designer: Inna Safiullina, team: Maria Kazha, Alexandr Rummo, Egor Zlobin, visual artist Ilya Dyadyura
Project location: Moscow
Gross built area: 14100 ㎡
Photo credit: Vlad Feoktistov
Partner: TLP
Clients: LSR
Materials: brick, architectural concrete
Brands: LSR














