台州远景中心,浙江 / gad杰地设计
远景中心位于台州中央商务区的核心地段,是台州中心区轴线上的重要建筑节点。场地东临城市中心大道,西接和合公园,北侧亦有公园相邻,景观方向明确。
Vision Center is located in the heart of the Taizhou Central Business District and is an important architectural node on the axis of Taizhou’s central district. The site is bordered by City Center Avenue to the east, Hehe Park to the west, and a park adjacent to the site to the north, with a clear landscape direction.
▼建筑与城市,Twin towers and the city

远景中心是台州资深建设公司——方远集团与台州新兴房产开发商——朗成集团的公司总部。两家公司对办公楼的诉求并不相同:方远集团希望办公楼稳重大气,以传递公司气质;朗成集团希望办公楼形象创新,并满足灵活租售。如何在满足双方诉求的同时让建筑保持整体性是设计面临的重要挑战。
Vision Center is the corporate headquarters of Fangyuan Group, an experienced construction company in Taizhou, and Langcheng Group, an emerging property developer in Taizhou. The two companies have different requirements for the office building: Fangyuan Group wanted the office building to be robust and atmospheric in order to convey the company’s temperament, while Langcheng Group wanted the office building to have an innovative image and to meet the requirements for flexible leasing and sales.How to keep the building whole while satisfying both sides is a critical design challenge.
▼远景中心与城市关系,Vision Center and City Relationship

和而不同的布局与形式Harmonious but Different Layout and Form
设计采用底层连接的“双塔”布局:东塔楼面向城市,是方远集团总部;西塔楼朝向公园,是朗成集团总部。既与南北向城市肌理呼应,又让两集团“独立性”显而易见。塔楼以相同的“L”形体块、相似的体量及立面幕墙形式,使两个独立塔楼形成视觉上的整体性。又根据场地条件及企业气质、诉求,进行了更精准的空间与形式设计。
The design adopts a “twin-tower” layout connected with a ground floor: the east tower faces the city and is the headquarters of Fangyuan Group; the west tower faces the park and is the headquarters of Langcheng Group. The design echoes the north-south urban texture and makes the “independence” of the two groups obvious. With the same “L” shape block, similar volume and facade curtain wall form, the two independent towers form a visual integrity. According to the conditions of the site and the temperament and demands of the enterprise, more precise space and form design has been carried out.
▼北侧公园看双塔,Twin Towers from North Side Park

东塔楼面向城市,以更简洁、完整的形式塑造建筑的城市界面,也更极致地保留了平面空间的完整性,提供更多使用空间。建筑东南角结合门厅布局大尺度、规整的通高、通透中庭,不仅呼应了企业稳重的气质,丰富了空间尺度、感知,也成为企业面向城市的另一个展示面。
Facing the city, the east tower shapes the urban interface of the building in a simpler and more complete form, and also preserves the integrity of the plane space to provide more space for use. The southeast corner of the building, combined with the foyer, is laid out with a large-scale, regular height and permeable atrium, which not only echoes the robust temperament of the enterprise, but also enriches the spatial scale and perception, and also becomes another display surface for the enterprise facing the city.
▼西南视角看双塔,Twin Towers from a Southwest Perspective

西塔楼朝向花园,面对优质景观资源并结合朗成集团的诉求,设计“化整为零”。办公区将“L”形平面划分成 3 个可独立使用的空间,通过内向中庭连接,形成可分可合的平面布局,既满足不同功能使用,也适宜不同租赁需求。
The west tower faces the garden. In the face of high-quality landscape resources and combined with the demands of the Langcheng Group, the design is “divided into parts”. The “L” shaped plan of the office area is divided into three independently usable Spaces, which are connected through the internal atrium to form a separable and compatible layout, which not only meets the use of different functions, but also suits different leasing needs.
▼和合公园视角看双塔,Twin Towers from the Perspective of Hehe Park

灵活的平面布局带来空间错动的自由度,形成活泼立面的同时生成大量面向公园或城市的小型空中庭院,为办公提供绿色、健康的环境。
The flexible floor plan brings the freedom of space misalignment, forming a lively facade and generating a large number of small sky courtyards facing the park or the city, providing a green and healthy environment for the office.
▼空中连接体,Aerial Link


对城市友好,让自然进入Be City Friendly and Introduce in Nature
双塔通过大尺度的底层空间与空中平台进行连接,也借此将周边自然引入建筑与空间。底层连接面向北侧公园于塔楼间形成可穿行的架空空间,维持了城市与公园的直接对话,以友好的姿态将空间让渡给城市中的每一个人。底层更公共、开放的城市功能布局,如会客、商业等,加强了底层的城市公共性。
The twin towers are connected by a large-scale ground floor space and an aerial platform, which also brings the surrounding nature into the buildings and spaces. The ground floor is connected to the park facing the north side to form a walkable overhead space between the towers, which maintains a direct dialog between the city and the park, and gives the space to everyone in the city in a friendly manner. The more public and open layout of urban functions on the ground floor, such as meeting rooms and businesses, strengthens the public nature of the city on the ground floor.
▼双塔的底层空间与空中平台,Ground Floor Space of the Twin Towers and the Aerial Platform

▼底层空间与城市关系,Ground Floor Space and City Relationship

空中平台结合公共功能布局,以可读的强形式朝西侧、北侧公园打开,设置大量景观阳台以获得更直接的自然体验,也丰富了立面节奏。
The aerial platform combines the layout of public functions with readable strong forms opening towards the west and north parks, setting up a large number of landscaped balconies for a more direct experience of nature, and also enriching the rhythm of the façade.
▼立面肌理,Facade Texture

▼幕墙细部,Curtain Wall Details

gad 以整体的设计理念和精湛的建筑技艺,将远景中心打造为一个既满足企业需求又兼顾城市发展的建筑典范,为城市建筑的发展注入了新的活力和动力。
With a holistic design concept and superb architectural skills, gad has created the Vision Center as a model building that meets the needs of the company as well as the development of the city, injecting new vitality and momentum into the development of urban architecture.
▼总平面图,Site Plan

▼首层平面图,Ground Floor Plan

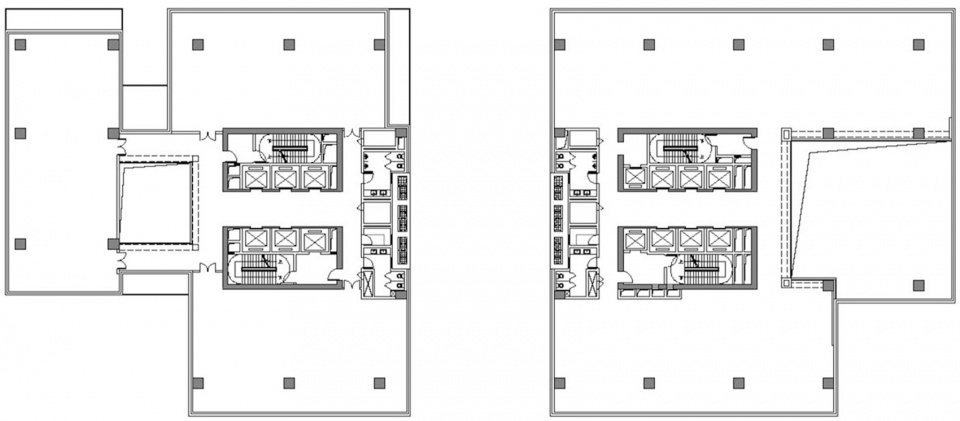
▼标准层户型,Standard Floor Plan

▼剖立面图,Sectional Elevation

Project Name: Taizhou Vision Center
Project Location: Taizhou, Zhejiang
Detailed Address: Intersection of Center Avenue and Yijia Road, Jiaojiang District, Taizhou City, Zhejiang Province, China
Project Type: Office
Design Time: 2019
Date of Completion: 2024
Land Area: 20,696㎡
Building Area: 84,972㎡ (of which 49,732㎡ is counted)
Floor Area Ratio: 9.22
Design Unit: gad
Landscape: gad
Interior: Dianshang Interior Decoration Design Co., Ltd.
Owners: Fangyuan, Langcheng Jinglong
Photography: Yao Li














