LECHACHA乐恰恰西餐厅,广州 / 有七设计工作室
广州增城的街头,LECHACHA乐恰恰以一种安静却引人注目的姿态立于建筑的夹角,仿佛一首散文诗的开篇。法式工业风的外立面带着一种微妙的矛盾感,生硬与柔软交织。外立面在蓝色的浸润下显得深邃且宁静,一楼两面通透的玻璃门窗透过外界的光影,把城市的嘈杂折叠进餐厅内部。每当夜幕降临,蓝色调的门头在灯光的映衬下,显得既冰冷又温情,仿佛能把人带入一场穿越时空的隐秘仪式,唤醒内心深处对远方和过往的无限眷恋。
On the streets of Zengcheng, Guangzhou, LECHACHA stands in a quiet but striking posture in the corner of the building, as if it were the opening of a prose poem.The French industrial style façade carries a subtle sense of contradiction, intertwining rawness and softness.The façade looks deep and serene in the blue colour, and the two transparent glass doors and windows on the ground floor fold the noise of the city into the interior of the restaurant through the light and shadow of the outside world.Whenever night falls, the blue-tinted doorway looks both cold and warm under the light, as if it can bring people into a hidden ritual of travelling through time and space, awakening the infinite fondness for the faraway places and the past deep in the heart.
▼餐厅外观,exterior of the restaurant


▼餐厅外摆区域,outdoor dining area


▼餐厅入口,entrance

推开门,一楼迎面而来的是一个修长的吧台,贯穿了整个视线。目光越过吧台,空间的设计慢慢展开,在原有的二层基础上,设计师巧妙地加入了一处夹层用餐空间,让视线层次更为丰富。一楼的挑高感因此得以保留,原二层又以一种出人意料的方式转换成三层,仿佛时间在这里被拉长和重叠。
Pushing open the door, the ground floor is greeted by a slender bar that runs the entire length of the view.The design of the space slowly unfolds as you look over the bar. On top of the original first floor, the designer has cleverly added a mezzanine dining space for a richer view.The sense of height on the ground floor is thus preserved, and the original first floor is converted into a third floor in an unexpected way, as if time has been stretched and overlapped here.
▼入口吧台,bar at the entrance

▼一层用餐空间,dining area at ground floor


▼夹层用餐空间,a mezzanine dining space


▼夹层用餐空间,a mezzanine dining space

墙面的处理也耐人寻味。一部分保留了原始的肌理,像未曾修饰的粗犷诗句;另一部分则用艺术漆,将墙面变成了一幅抽象的画作。地面上,手工砖与木纹砖被精心拼贴在一起,构成了一幅看似随意却极富韵味的画面。每一步仿佛都在踏寻过往的痕迹,让人不由自主地沉浸在这缓慢流动的时间里。
The wall treatment is also intriguing.Part of it retains its original texture, like untouched, rough verse;Another section was painted with art paint, turning the wall into an abstract painting.On the floor, handmade tiles and woodgrain tiles are carefully collaged together to form a seemingly random but extremely charming picture.Each step seems to tread on the traces of the past, and one can’t help but be immersed in the slow flow of time.
▼墙面的处理,the wall treatment


灯光与植物的点缀更是相得益彰,各式吊灯散发出温暖而神秘的光晕,与角落中绿意盎然的盆栽共同营造出一种梦幻般的氛围,好似一场关于光与影、现实与幻想的低语对话。
Lighting and plant embellishment is complementary, various chandeliers emit a warm and mysterious halo, and green potted plants in the corner together to create a dreamy atmosphere, like a whispered dialogue about light and shadow, reality and fantasy.
▼灯光的点缀,lighting embellishment

▼营造出一种梦幻般的氛围,create a dreamy atmosphere


乐恰恰不仅是一家西餐厅,更像是一座寄托了现代都市孤独与温情的艺术馆。在这里,工业的粗犷与艺术的细腻彼此碰撞,时光的流逝与记忆的沉淀交织成一幅独特的画卷,令人流连忘返。徜徉其中,仿佛能听见历史的低语,看见未来的微光,感受到那份穿越尘世纷扰后的宁静与温暖。
Le Cha Cha is not only a Western restaurant, but also an art gallery that embodies the loneliness and warmth of the modern city.Here, the roughness of industry and the subtlety of art collide with each other, and the passage of time and the precipitation of memories are interwoven into a unique picture scroll, which makes people linger and forget.Wandering in it, it is as if you can hear the whispers of history, see the shimmering light of the future, and feel the tranquillity and warmth after travelling through the chaos of the world.
▼装饰细部,decoration detail



▼灯光下的餐厅外观,exterior of the restaurant under lighting

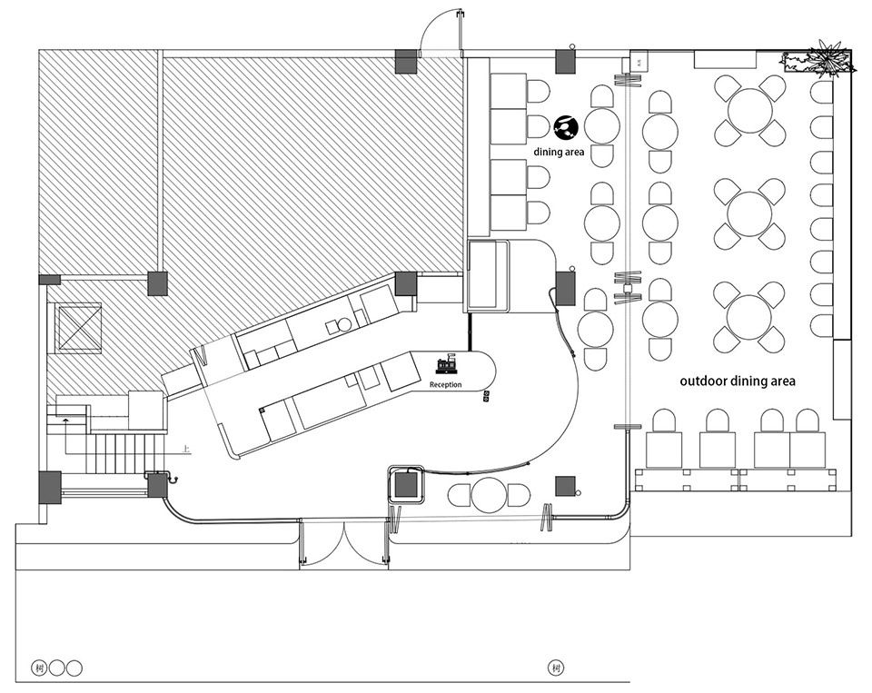
▼一层平面,ground floor plan

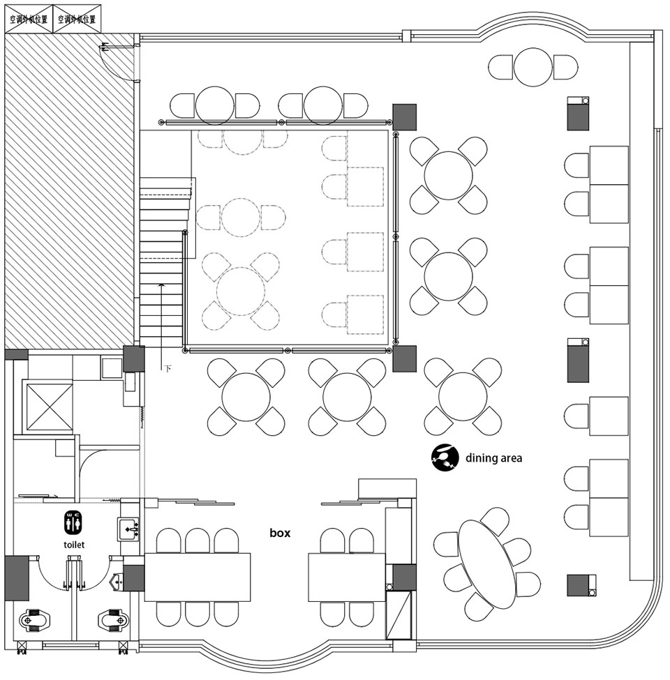
▼二层平面,first floor plan

▼三层平面,second floor plan

Project name:LECHACHA Western Restaurant
Project type:Western Restaurant design
Design:YOOQ STUDIO
Website:http://www.youqisheji.cn
Contact e-mail: youqisheji@foxmail.com
Design year:2024
Completion Year:2024
Leader designer & Team:YOOQ STUDIO,Mengmeng Chen
Project location:No. 9 Huiyuan Street, Licheng Street, Zengcheng District, Guangzhou
Gross built area: 317㎡
Photo credit: Jiajun Gu
Clients:Peng Hong、Meijun
Materials:Artistic paints, wood finishes, galvanised sheet














