REXKL电影院改造,吉隆坡 / Mentahmatter Design Sdn. Bhd.
原本的REXKL电影院是一座年久失修的建筑,尽管具有重要的历史意义,但由于长期无法使用和多次火灾,逐渐走向衰败。它一度被遗忘,并被非法用作旅馆。然而,作为位于吉隆坡市中心茨厂街附近的旧影院,这个场地在本地社区中拥有深厚的文化认同感。
The original REXKL cinema was a dilapidated building that had much historical significance but was reduced to a slow death by non-usability and repeated historical fires. Forgotten & illegally used as a travellers hostel the old cinema had much cultural recognition with the local community with the site being located nearby Petaling Street, a popular yet seedy part of downtown Kuala Lumpur.
▼1F RXP影院体验,改造后的REXKL,1F RXP Cinematic Experience 01, Current REXKL, 2024

尽管周边环境复杂,当地社区、家庭及其长期延续的文化活动依然存在。而REXKL旧影院因其毗邻多个街区的区位优势,具备重振周边吸引力的潜力。随着邻里之间的联系日渐衰退,该区域缺乏公共聚集空间,因此,迫切需要更安全的社区“锚点”——能够连接人与人、吸引关注的场所,从而促进社区的改善,让这一带变得更宜居、更安全。
Despite the environment pockets of the local community, families and their long-standing cultural activities sustained throughout the years and the old REXKL cinema with its proximity to the various neighbourhoods had the potential to be a driving force of renewed attraction to the vicinity. With declining neighbourhood connections and lack of public gathering spaces in the area, it was evident that safer, community ‘anchors’ were required – spaces to connect & draw interest to the locality and in turn transforming the area into being a better, safer neighbourhood.
▼1F电影院&地下一层入口及楼梯2019年施工前,1F Cinema Hall and Lower Ground Entrance & Staircase Before Construction works 01, 2019


▼立面轴测图,Facade Isometric

REXKL的复兴,使其成为一个以社区为驱动的文化与创意中心,为茨厂街带来了转折点。该项目旨在保护这座标志性建筑的历史遗产,并设想将这座占地6000平方米的电影院改造为一个多功能社区场所,从而重塑周边的城市景观,支持本地社区和商业发展。
The revival of REXKL as a new community-driven cultural and creative hub provided a turning point to Petaling Street – the initiative aimed to preserve the legacy of this iconic building, envisioning that the transformation of the 6000 square meter cinema into a versatile community venue would revitalise the existing urban landscape & its immediate surroundings, supporting the local communities and businesses.
▼1F电影院RXP施工前,1F Cinema Hall Prior to RXP Construction 01, 2019

改造工程在疫情前启动,施工因而分阶段完成,而建筑本身的破败状况需要精心策划与修复。最初,当地社区对REXKL的重建计划持不同看法,许多人对其能否真正带动区域发展持怀疑态度。然而,随着REXKL吸引了大量活动参与者,街区的访客数量激增,人们的观念也随之改变。
▼低层轴测图,Isometric Lower Ground

Renovation works began prior to the pandemic causing the pacing of the construction to be completed in multiple stages, and the building’s poor state required careful curation & renovation. There were also setbacks from the local community as many had different perceptions and were sceptical of REXKL’s potential to bring renewed interest to the area. This perception changed as the neighbourhood saw a surge of new visitors from the runoff attendees of REXKL events.
▼巷道,2024,Alleyways , 2024

▼1F零售空间,当前REXKL,1F Retail Space, Current REXKL, 2024

▼3F屋顶餐饮空间,3F Rooftop Dining 02, Current REXKL

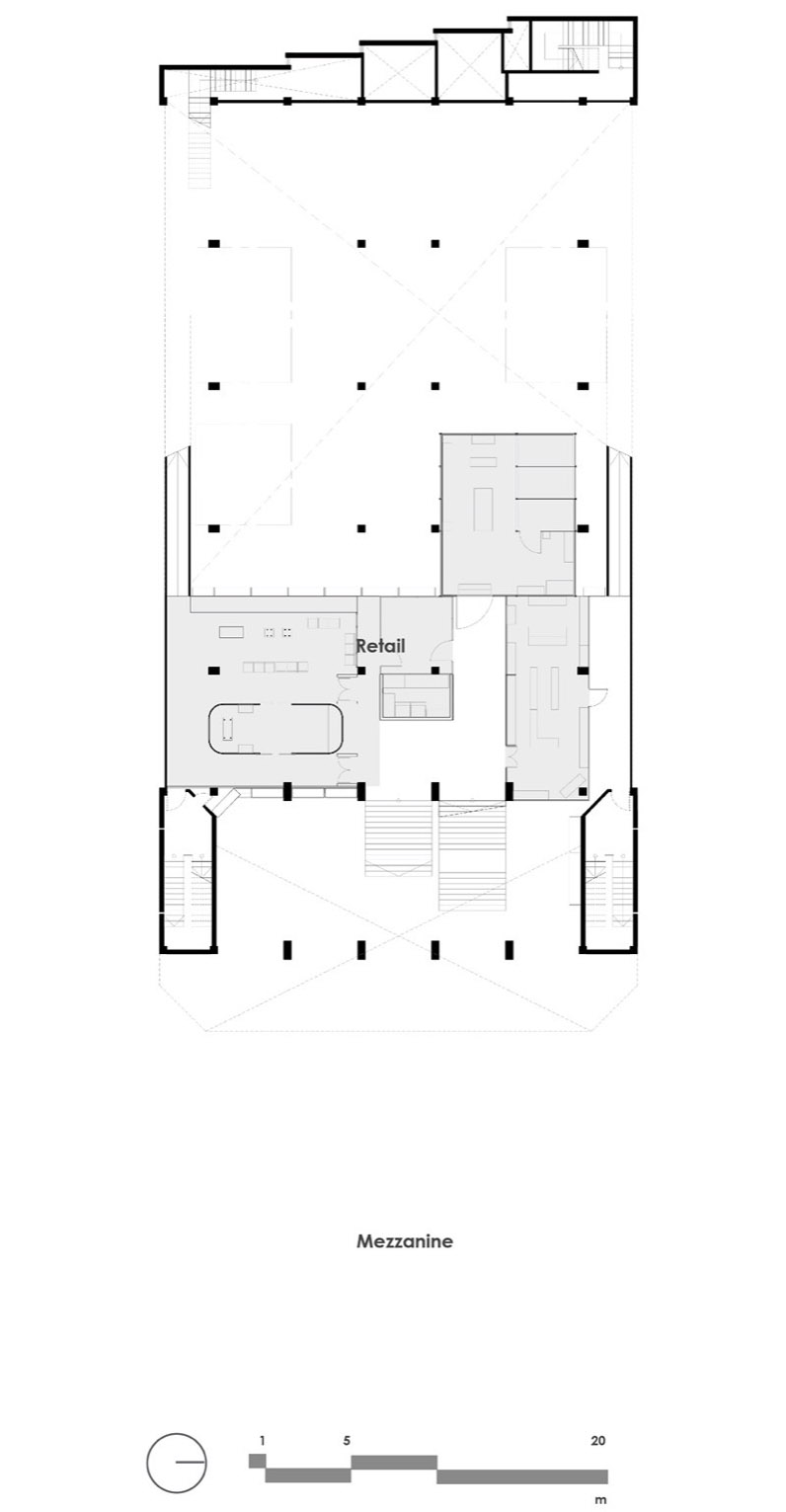
在适应性改造的策略下,内部布局结合了固定与灵活空间,目前的功能包括一个可用于演出和展览的活动大厅、1000m²书店、工作坊空间,以及零售和餐饮区域。建筑改造的核心理念是在保留原有建筑形态的同时,赋予其新功能,使其与周边环境建立更紧密的联系,打造更加人性化的空间。
▼二层与三层轴测图,Isometric 2F 3F

Emphasizing adaptability, the internal layout was to include both permanent & flexible spaces and the current iteration includes an event hall for performances & exhibitions, a 1000 m2 bookstore, areas for workshops, retail and F&B. The architectural approach was to adaptively reuse the existing formation of the building, bridging the existing site context with new functions to enable more connections & humanised spaces.
▼2F BookXcess书店无书状态,2F BookXcess Bookstore without books


▼2F BookXcess书店无书状态,2F BookXcess Bookstore without books

▼2MZF BookXcess书店无书状态,2MZF BookXcess Bookstore without books


▼2MZF BookXcess书店无书状态,
2MZF BookXcess Bookstore without books

▼3F屋顶餐饮空间,当前REXKL室内,
3F Rooftop Dining 01, Current REXKL Interior, 2024

在城市层面,通往REXKL的小巷经过改造,使其更加友好和适合步行,并在沿途中设置了多个公共聚集点,改善了邻里间的联系,促进了城市网络的活力。同时,建筑保留了原有立面和瓷砖表面,影院原有的布局和楼梯结构也在不扩张建筑占地面积的前提下进行了重新适配。
On an urban scale the side alleyways leading up to REXKL were converted to be more welcoming & pedestrian friendly, containing pockets of gathering spaces throughout leading to better neighbourhood connectivity and in turn flourishing the urban network. Original architectural details including the original façade & tiled surfaces were retained and the cinema layout and staircase were readapted without expanding the building’s footprint.
▼巷道,2024,Alleyways , 2024

REXKL为传统与当代行业提供了创新与表达的平台。这里像一个孵化器,为本地新兴企业提供试验场,因此其内部空间布局呈现不断变化的形态,以适应不同商业需求。例如,下层的美食广场与零售空间即是根据不同品牌需求量身定制的布局。
▼夹层轴测图,Isometric Mezzanine

REXKL offers platforms for innovation & expression of both traditional & contemporary trades. Acting as incubators these platforms are testing grounds for new local entrepreneurs, resulting in an alternating landscape of smaller interior schemes that are configured to echo the respective business needs as seen in the lower levels Food Hall & Retail spaces.
▼地下一层美食广场,当前REXKL,Lower Ground Food Hall 01, Current REXKL, 2024



▼地下一层前门入口美食广场,当前REXKL,Lower Ground Front Entryway Food Hall, Current REXKL, 2024

▼夹层零售空间,当前REXKL,Mezzanine Retail Spaces, Current REXKL, 2024

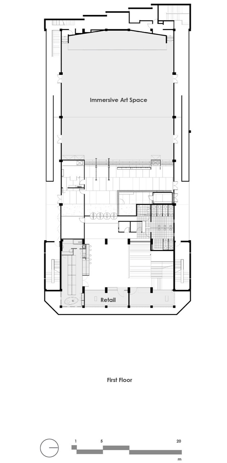
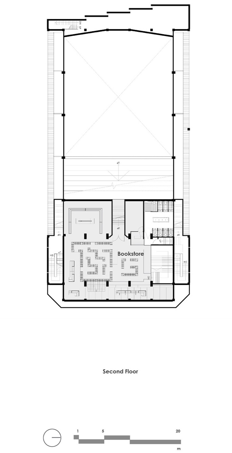
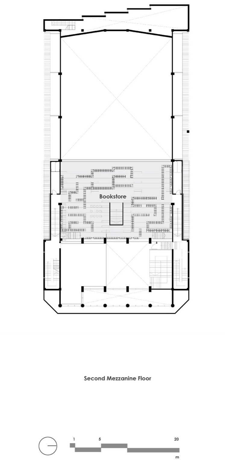
这一精心策划的空间布局也延伸至上层,整个8000ft²的影院大厅被改造成RXP——一个沉浸式互动展览馆,在数字艺术的形式下重新定义了传统艺术展览与表演方式。此外,影院原VIP阶梯座位区被改造为社区型书店BookXcess,书架采用单一材料构建出模块化系统,以多样的排列方式打造出迷宫般的空间,营造出探索未知角落与城市巷弄般的发现感。
▼剖面图,Cross Section

This curated composition extends itself to the upper levels, with the entire 8000 ft2 cinema hall converted into fixtures such as RXP, an immersive & interactive exhibition gallery that reimagines traditional art viewing & performances into a new digital art form. In addition, the VIP tiered seating area of the cinema however was transformed into BookXcess, a community centred bookstore – using a singular material a modular system was devised and arranged into an array of patterns to create labyrinth-like spaces, evoking the sense of discovery which is much akin to when one explores the hidden corners & alleyways of a city.
▼1F RXP影院体验,当前REXKL,1F RXP Cinematic Experience 01, Current REXKL, 2024

▼空间功能示意图,Diagram of Space Functions

▼低层平面图,Lower Ground

▼夹层平面图,Mezzanine

▼一层平面图,First Floor

▼二层平面图,Second Floor

▼二层夹层平面图,Second Mezzanine Floor

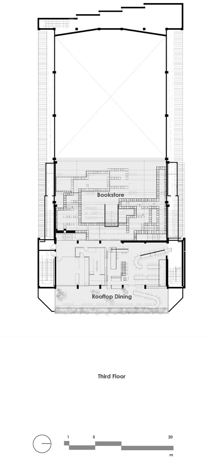
▼三层平面图,Third Floor

Project Name: REXKL : An old cinema reimagined as a new arts space & community hub
Office Name: Mentahmatter Design Sdn. Bhd.
Office Website: http://www.mentahmatter.com/
Social Media Accounts: https://www.instagram.com/mentahmatter_design/
Contact email: info@mentahmatter.com
Firm Location: Kuala Lumpur, Malaysia
Completion Year: 2019
Gross Built Area (m2/ ft2): 60,000 ft2
Project Location: Petaling Street, Kuala Lumpur, Malaysia
Program / Use / Building Function: Arts & Community Hub
Lead Architects: Shin Chang (Co-Founder) & Shin Tseng (Co-Founder)
Lead Architects e-mail: info@mentahmatter.com
Project Team Members :
Penny Ng (Design Lead)
Yik Xin Lai (Project Team)
Wei Hong Tan (Project Team) Shir Ley Woo (Project Team)
Timothy Khoo (Project Team)
Clifford Khoi (Project Team)
Aiman Hanan (Project Team)
Ming Jin Tan (Project Team)
Faris Alias (Project Team)
Siew Ming Lau (Project Team)
Farah Roslan (Project Team)
Farah Ismail (Project Team)
Collaborators & Co-Founders of REXKL
Co-Founder Kamil Merican
Co-Founder Ng Sek San
Co-Founder Yau Wai Leong
Co-Founder Yap Fu Fah
Co-Founder Joseph Foo
Co-Founder Khoo Boo Siew
Other Companies
M&E CK Ng
Main Contractor Pyner Sdn Bhd
Digital Art, Light & Acoustics Eugene Yeo and Sebastian Jurkowski from Contrast Studio Sdn Bhd
Photographer
Photo Credits: David Yeow Photography
Photographer’s Website: https://www.davidyeow.com/
Photographer’s e-mail: ask.davidyeow@outlook.com
Photographer’s Social Media Accounts : https://www.instagram.com/davidyeowphotography/














