现代建筑设计大厦北楼整体修缮项目,上海 / 华建集团上海建筑设计研究院有限公司
现代建筑设计大厦北楼整体修缮项目不仅作为上海市建筑师负责制的试点案例,还是新型智慧城市的创新尝试。
Arcplus’s overall renovation project of the North Building of Modern Architectural Design Building is an attempt to renew the existing building sustainably. The project is not only a pilot case of the second batch of Shanghai architect responsibility system, but also an innovative attempt of new smart city.
▼场地鸟瞰,Bird’s eye view of the site


▼顶视,Top view


设计从城市关系出发,结合全新的可持续城市更新设计理念,旨在深远影响区域及建筑内人的活动,通过此类变革重焕城市活力。
The design starts from urban relations and combines a new sustainable urban renewal design concept, aiming to profoundly influence the activities of people in the area and buildings, and revitalize the city through such changes.
▼恒丰路桥上人视,View of people on Hengfeng Road Bridge

城市空间重构 Reconstruction of urban space
针对原有日照条件形成的零碎形态,外立面运用了“积木”拼搭的设计理念,重新梳理建筑体块,延续立面色彩,塑造既统一又富有变化的整体,实现“新旧共生”的建筑表达。
▼“积木”拼搭的设计理念,Building blocks

In response to the fragmented forms formed by the original sunlight conditions, the exterior facade adopted the design concept of “building blocks”, reorganized the building blocks, continued the facade colors, and created a unified yet varied whole, realizing the architectural expression of “symbiosis of the old and the new”.
▼改造后,After renovation

▼改造后,After renovation

通过开放建筑一、二层及沿街景观使城市空间与建筑空间相互渗透,借助共享的场所和多元的功能激发整个区域的活力;灵活的空间布局以及促进交流的多功能公共空间,构成了舒适、实用的办公环境。
▼流线分析,Streamline analysis

▼城市转角,City Corner

By opening up the first and second floors of the building and the street landscape, the urban space and the architectural space can penetrate each other, and the vitality of the entire area can be stimulated by shared places and diverse functions; the flexible spatial layout and multi-functional public space that promotes communication constitute a comfortable and practical office environment.
▼远观,Distant view


▼街角人视,Street corner view

可持续技术整合 Sustainable technology integration
设计融合了建造和运维的可持续指导思想,尝试探索一种具有推广价值的可持续城市更新模式。
The design integrates the sustainable guiding ideology of construction and operation and maintenance, and attempts to explore a sustainable urban renewal model with promotional value.
▼屋顶雨水回用,Roof rainwater recycling

▼石材利旧示意,Stone Reuse Tips

▼立面遮阳,Facade shading

可持续设计以全生命周期为导向,注重实用性与经济性平衡,并对施工进行全程指导和监管。 结合被动式设计大幅提升围护结构的热工性能;创新应用光储直柔能源系统与雨水净化景观一体化技术;室内环境采用健康优化策略等。
Sustainable design is guided by the entire life cycle, focuses on the balance between practicality and economy, and provides full guidance and supervision for construction. Combined with passive design, the thermal performance of the enclosure structure is greatly improved; innovative application of photovoltaic storage direct flexible energy system and rainwater purification landscape integrated technology; indoor environment adopts health optimization strategy, etc.
▼建筑立面,Building facade



▼屋面露台,Roof terrace

智慧化升级 Smart upgrade
完善智能化系统的控制和应用,构造高效适用的建筑设备与服务管理,实现环境与服务的综合运营。
Improve the control and application of intelligent systems, construct efficient and applicable building equipment and service management, and realize the integrated operation of environment and services.
▼落客区,Drop-off area

建立基于BIM一模到底的智能运维平台,通过场景化模式整合办公、物管、访客等系统。特别设置用户交互界面引导节能行为,构建“人-建筑-城市”的可持续互动机制。
Establish an intelligent operation and maintenance platform based on BIM, and integrate office, property management, visitor and other systems through scenario-based models. Specially set up a user interaction interface to guide energy-saving behavior and build a sustainable interaction mechanism of “people-building-city”.
▼一层大堂,Lobby

▼报告厅,Lecture Hall

▼会议室,Meeting room

▼办公室,Office

作为上海市首个由建筑师全程主导的既有建筑改造项目,本项目不仅体现了对历史和文化的传承,还融合了现代建筑科技和绿色低碳的环保理念,其“可感知的可持续性”为高密度城市更新提供了从设计理念到实施路径的系统性参考。
The overall renovation project of the North Building of the Modern Architectural Design Building not only reflects the inheritance of history and culture, but also integrates modern architectural technology and green and low-carbon environmental protection concepts. We hope that the completed North Building can become a model for renovation and renewal, and convey the concept of sustainability to people with its unique practical results.
▼夜景鸟瞰,Night view

▼总平面图,masterplan

▼首层平面图,1F plan

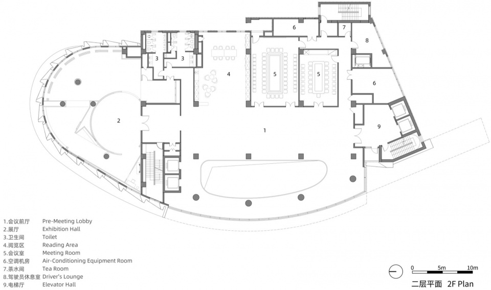
▼二层平面图,2F plan

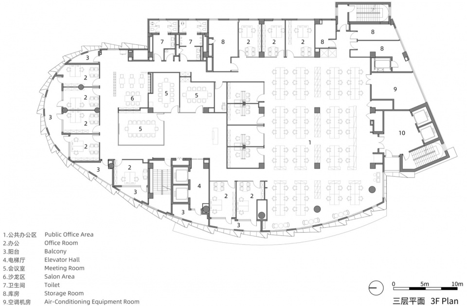
▼三层平面图,3F plan

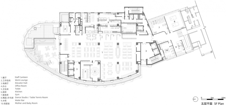
▼五层平面图,5F plan

▼六层平面图,6F plan

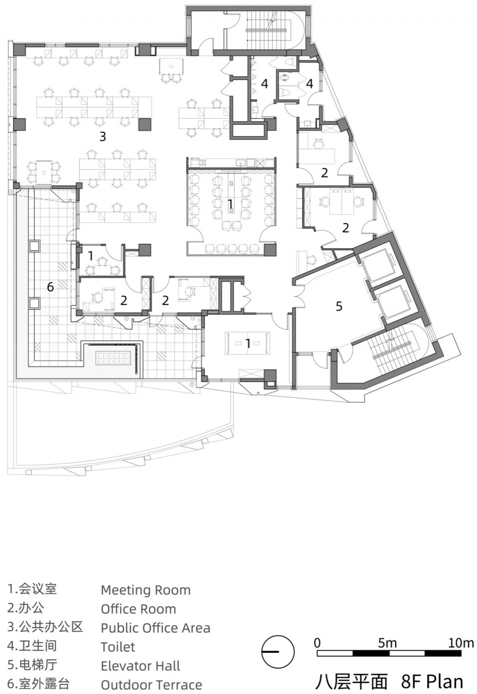
▼八层平面图,8F plan

▼北立面,north elevation

▼南立面,south elevaiton

▼东立面,east elevation

▼西立面,west elevation

▼北楼剖透视带功能,axon section

▼剖面,section

▼节点,node

Project Name: Overall renovation project of the North Building of Modern Architectural Design Building
Project Type: Office Building
Architecture Firm: Arcplus Institute of Shanghai Architectural Design & Research(Co.,Ltd.)
Website: https://www.isaarchitecture.com/index.aspx
Contact e-mail: isa@isaarchitecture.com
Design Year:2023-2024
Completion Year:2025
Gross Built Area:12710㎡
Project location: No. 268, Shimen Second Road, Jing An district, Shanghai
Project Team of Shanghai Architectural Design and Research Institute Co., Ltd
Responsible Architect: Su Chang
General design manager: Su Chang, Tan Chunhui
Project manager: Tan Chunhui
Architectural design: Zuo Lei, Wu Changjie, Zhong Haocheng, Qiao Kefei, Gong Zhenqiang, Shu Yi
Structural design: Shi Weizhou, Wan Yu, Zhou Yuqing, Li Minhua
Mechatronics:
Mechatronics manager: Zhou Haishan, Wang Hailiang
Electrical: Wang Hailiang, Yang Qi, Xie Yuanjun, Gu Dandan, Yu Mengyue
Water supply and drainage: Zhou Haishan, Sun Yuzhi, Wu Tongbin , Zhao Jun, Tang Funan
HVAC: He Jiangbo, Luo Yu, Zhu Xuejin, Zhu Zhe, Sheng Qingqing, Wu Meiling, Ma Mengcao
Ultra-low energy consumption/green building: Yan Yan, Sun Bin, Li Wan, Lan Jianwei, Li Pengfei, Zhang Yuzhou, Chen Yanjun, Du Yicheng
Curtain wall: Zhang Hai, Li Haiming, Wang Yinfeng, Zhong Jiangen, Liu Runlin
Interior design: Li Hanyuan, Zhang Yiwen, Ye Jun, Chen Kang, Zhao Mengying, Liu Beina, Shi Jianhua, Zhang Yu
Landscape design: Shen Lei, Ou Yu, Qiu Manyuan, Zhu Licheng, Zhang Xiaohui, Li Yuhang, Meng Ruyi
Intelligent design: Chen Jiefu, Deng Qing, Qu Di, Guan Huaxin, Yin Haoran, Wen Feng
Lighting consultant: Zhang Yi, Zhang Zhen, Song Saichun, Shi Chunyan, Wei Qingyong
BIM professional: Su Jun, Yu Liang, Liu Wen, Liu Wenpeng, Wu Fanfan, Cai Jingjing, Yao Chunxi, Dai Li
Project Collaborative Design Team
Acoustic Consultant: ECADI Acoustic Institute Yang zhigang, Wen lisen, You kangxiu, Chen jiajun
1-2F Interior Design: Arcplus Group PLCShanghai Xian Dai Architectural Decoration& Landscape Design Research Institute Co,Ltd. He chengfeng, Zhang ying, Li hao, Li zhiyuan, Fang xiwen
Exhibition Design: Shanghai Fengyuzhu Culture Technology Co., Ltd
Project Participants
Construction unit: Arcplus Institute of Shanghai Architectural Design & Research(Co.,Ltd.) (interior decoration)
Design unit:Arcplus Institute of Shanghai Architectural Design & Research(Co.,Ltd.)
Project management unit: Shanghai Huajian Engineering Construction Consulting Co., Ltd., Shanghai Architectural Design Institute Co., Ltd.
Financial supervision: Shanghai Investment Consulting Group Co., Ltd., Shanghai Shenyuan Engineering Investment Consulting Co., Ltd.
Engineering supervision: Shanghai Modern Shendu Construction Supervision Consulting Co., Ltd.
Construction unit: Shanghai Mechanical Construction Group Co., Ltd., Shanghai Yijian Dongshun Construction Engineering Co., Ltd., Shanghai Architectural Design Institute Co., Ltd. (interior decoration), Shanghai Fengyuzhu Culture Technology Co., Ltd. (corporate exhibition hall)
Photo copyright
Photo credits: 3000images
Video: Shanghai Qishi Culture Media Co., Ltd.














