大有秋·息壤酒店,无锡 / 直向建筑
息壤酒店选址于一处连排的鱼塘,东侧是烟波浩渺的太湖,北侧紧邻沙塘港河,南侧依傍竺山,西侧与社区市集相接。面对这个具体且多样的环境肌理,我们尝试寻求一种适宜的空间机制,向外回应四个方向,向内组织空间,以唤起蕴含当地风土精神的空间经验。
▼北立面,North elevation

▼太湖与北立面,Taihu Lake and the north elevation

▼鸟瞰,Aerial view

我们选择“院子”作为空间组织的基本单元。每个院子对应一个功能,再通过平面与高度的设置,将多个院子聚合在一起,形成“并置的群院”——建筑体量也因此得以化整为零,避免单一体量的过大尺度对环境带来的压迫感。
▼从书院水塘看向香樟水院,View from the pond to the guestroom courtyard

▼餐厅滨水就餐区,Waterfront dining area of the restaurant

▼穿过灌木看向连桥,View from brushes to the bridge

建筑底层的室外游廊系统一共串联着九个院子,由西向东延伸,根据氛围对应不同的自然主题,构成群院格局中多个带有鲜明特征的节点。地面标高顺应原始地形,由西向东下沉,最终嵌入山脚的水塘,形成半层高差的微地形。
▼北立面局部,Close-up of the north elevation

▼西入口廊院,West entrance courtyard

▼西入口廊院,West entrance courtyard

▼西入口廊院,West entrance courtyard

▼柱廊空间,Porticos

砖墙体量上方的水平檐口从竺山向运河一侧逐级叠落,端头朝向河口处立有一座玻璃光塔。这些微妙的动作最终结合在垂直方向上的漫游步道和体量开合,呈现出一个空间的立体游走系统。
▼连桥和光塔,Sky bridge and the light tower

▼光塔庭院,Light tower courtyard

▼光塔内景,Interior of the light tower

▼光塔内景,Interior of the light tower

▼从全日餐厅看向竺山,View from the all-day dining restaurant to the Zhushan mountain

在我们的构想中,每一个院子就是一个“小的世界”——各自拥有不同的光、风、尺度、景和氛围。空间界面和自然光的明暗组织调动身体的游走,视野角度随之变换,在若干个“小的世界”之间创造出了一种复杂的关系,像是蒙太奇般的空间切换。日常光线被引入西侧的廊院,在地面层营造出多个近人尺度的花园。
▼石庭,Stone courtyard


▼花接铺地庭院,Floral-paved courtyard

▼花接铺地庭院,Floral-paved courtyard

雨露阁作为整个建筑群的空间枢纽与多个院子相接,圆形青铜雨斗被放置于高16米的空间顶部,作为屋檐汇集疏导雨水。樟树水院尺度最大,东侧朝太湖方向敞开,南北两侧由两层通高铜网包裹的客房走道环绕界定。河岸边高耸的光塔呼应太湖之水,塔顶高24米,通体采用玻璃砖砌筑而成,映射着天光的变化。
▼从雨露阁看向花接铺地庭院,View from the Raindrop courtyard to Floral-paved courtyard

▼雨露阁,Raindrop courtyard

▼从雨露阁首层仰望青铜雨斗,Looking up at the bronze raindrop funnel from Raindrop courtyard

▼青铜雨斗局部,Detail of the bronze raindrop funnel

▼青铜雨斗鸟瞰,Aerial view of the bronze raindrop funnel

▼从雨露阁看向樟树水院,View from the Raindrop courtyard to Camphor courtyard

▼樟树水院,Camphor courtyard

▼从樟树水院廊下看向叠水景观,View from the Camphor courtyard to the cascade

▼樟树水院雨景,Rain scene of the Camphor courtyard

▼盐洞与天光,Himalayan salt cave with skylight

▼通往盐洞的步道,Stairs to the Himalayan salt cave

▼泡池与天光,Hot spring pool and the skylight

湖、河、山、市远近各异,我们通过穿透的视线将其纳入群院,不同景别的自然要素与空间相互叠加。细柱、片墙、檐口化作剪裁的框架,水面的波光、摇曳的树影与河上缓行的船帆若现其中,人或探索或偶遇,步移景异,现实与想象不断转换。
▼茶阁,Tea pavilion

▼光塔夜景,Night view of the light tower

▼模型照片, Model photo

▼草图, Sketch

▼总平面图, Site plan

▼首层平面图, First floor plan

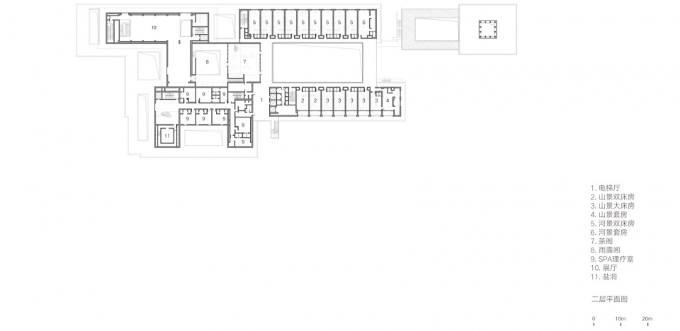
▼二层平面图, Second floor plan

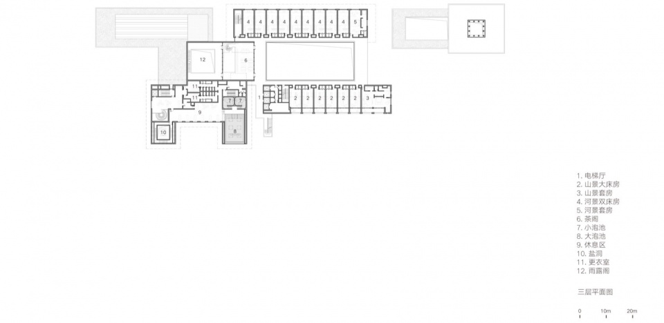
▼三层平面图, Third floor plan

▼四层平面图, Fourth floor plan

▼五层平面图, Fifth floor plan

▼屋顶平面图, Roof plan

▼剖面图, Section















