耒宿,北京 / 建筑营设计工作室
村庄与场地
Village and Site
项目位于北京市平谷区峪口镇北杨家桥村。这里是较为典型的北方平原乡村,多为合院式民居。随着村庄自发性更新的加快,临街出现各式样的新房子,有小洋楼,也有彩钢板房,已经不再是传统民居街道风貌。
The project is located in North Yangjiaqiao Village, Yukou Town, Pinggu District, Beijing. This is a typical village on northern Chinese plains, traditionally characterized by courtyard-style residences. However, as spontaneous village renewal accelerates, a variety of new structures have emerged along the streetscape, ranging from small Western-style buildings to structures with color-coated steel roofs, gradually transforming the village’s traditional built fabric.
▼耒宿鸟瞰,aerial view


基地东侧比邻村庄主路,占地约400平方米,是一个东西向长,南北向短的长方形地块。原始建筑格局较为混乱,分别为坡顶和平屋顶砖混建筑以及部分彩钢板临建房,已经没有保存的价值。基地内有两棵柿子树和一棵核桃树,是户主父亲儿时种下的。如今依然硕果累累、生机盎然,已经成为重要的家庭生活记忆。这三棵树经过设计师与户主共同协商,决定予以保留。
▼工作模型,model
The site lies adjacent to the village’s main road on its eastern side, spanning approximately 400 square meters. It is a rectangular plot, longer from east to west and shorter from north to south. The original buildings on the site were rather disorganized, comprising both pitched-roof and flat-roof brick-concrete structures, along with some temporary buildings constructed with colored steel roofs, none of which held preservation value. Within the plot stand two persimmon trees and one walnut tree, planted by the homeowner’s father during his childhood. Still flourishing and fruitful, these trees have become treasured family memories. After discussions between the designers and the homeowner, all three trees were preserved.
▼柿子院主视角,main view of persimmon tree courtyard

▼核桃院主视角,main view of walnut tree courtyard

需求与限制
Needs and Constraints
平谷区良好的自然资源、接地气的田园生活以及周边自然景点都是这个民宿对于城市客人的吸引力所在。而民宿作为城郊旅游的一个节点,也应该传递出乡村生活质朴、自然、放松的环境气质。设计伊始,户主就提出了明确的功能诉求,即这里未来将作为民宿对外运营。需要客房尽量不少于七间,其中一间由户主的母亲自住。
The rich local natural resources, authentic rural lifestyle and proximity to scenic destinations establish the homestay’s potential to appeal to urban visitors. Positioned as a key node of the suburban tourism network, the project seeks to convey the simplicity, serenity, and relaxation of rural life. From the outset, the owner clearly defined the intended use: the new building would operate as a homestay, with a minimum of seven guestrooms, one of which would be reserved for his mother.
▼柿子院鸟瞰,aerial view of persimmon tree courtyard

▼柿子院夜景,night view of persimmon tree courtyard


不仅要兼顾团建与散客的接待需求,配置中西厨、客餐厅、娱乐室等,同时要有老人休闲娱乐的棋牌室。要满足这些需求,新建筑基本上是原有建筑面积的两倍。
The project needed to cater to both group retreats and individual guests by incorporating Chinese and Western-style kitchens, a dining room, a living room, a recreation room, and a chess and card room for the elderly. To meet these requirements, the new building had to be roughly double the footprint of the original structures.
▼餐厅夜景,dining room at night

▼棋牌室主视角,main view of chess and card room

▼影音室主视角,main view of audio-visual room

▼客厅夜景,living room at night

同时必须符合当地规范,即新建建筑檐口限高7米、屋脊限高8.6米,与邻居不小于40公分的间距。所以建筑需要最大化的建筑体量来满足必要的使用功能,同时激发内部空间的活力来勾勒乡村生活的气质。
Local regulations imposed additional constraints: a maximum eave height of 7 meters, a ridge height limit of 8.6 meters, and a minimum 40cm setback from neighboring buildings. Within these limitations, the design had to maximize usable volume while creating vibrant interior spaces that capture the charm of rural life.
▼后巷视角,back alley

构思与成形
Conceptualization and Formation
三棵树成为设计构思的起点,也是“耒宿”这一命名的由来。“耒”字来源于古代农用器具,代表着田园农耕的生活状态。其字形里包含了三个木,而类似于树木一般的纵横交织的木构架成为建筑的基本意向。
▼耒宿剖透视图,section

The three trees within the site inspired the architectural design, and also the project name, “Lei Homestay.” The term “Lei”(耒) originates from an ancient agricultural tool, representing rural agrarian life. Its written form is composed of three “wood” (木) strokes, evoking the image of trees and informing the architectural concept of an interwoven wooden framework.
▼首层主视角,first floor

▼二层主视角,second floor

▼由二层看向一层,view of the first floor from upstairs

▼由楼梯看二层,view of the second floor from the staircase

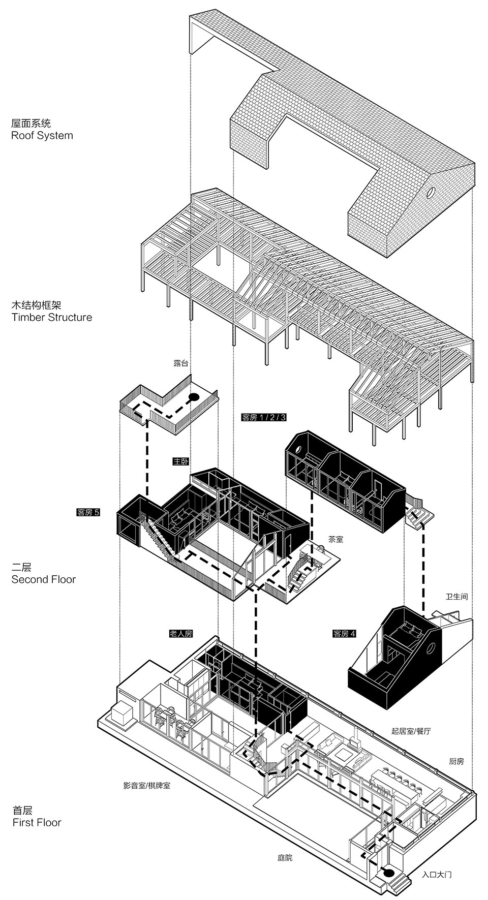
建筑以树成院,围绕原有树木的位置和冠幅构成两个适当尺度的庭院,为内部空间带来充足的阳光和四季更迭的景观,也延续了村落庭院建筑基本格局。建筑主体采用胶合木结构,在双坡屋顶的形态控制下,支撑起高低错落的平台空间,让人产生置身于林间的居住体验。
▼空间生成图解,spatial generation diagram

The building is organized around the trees, forming two well-proportioned courtyards that bring in ample sunlight and views of seasonal changes. This layout continues the traditional courtyard house typology of the village. The main structure is crafted from glued laminated timber, which, beneath the double-pitched roof, supports a variety of staggered platform spaces, evoking the sensation of living amidst a forest.
▼柿子院主视角,main perspective of persimmon tree courtyard

▼首层楼梯视角,view from the first-floor staircase

▼首层主视角,main perspective of the first floor

▼二层主视角,main perspective of the second floor

▼露台鸟瞰,aerial view of the terrace

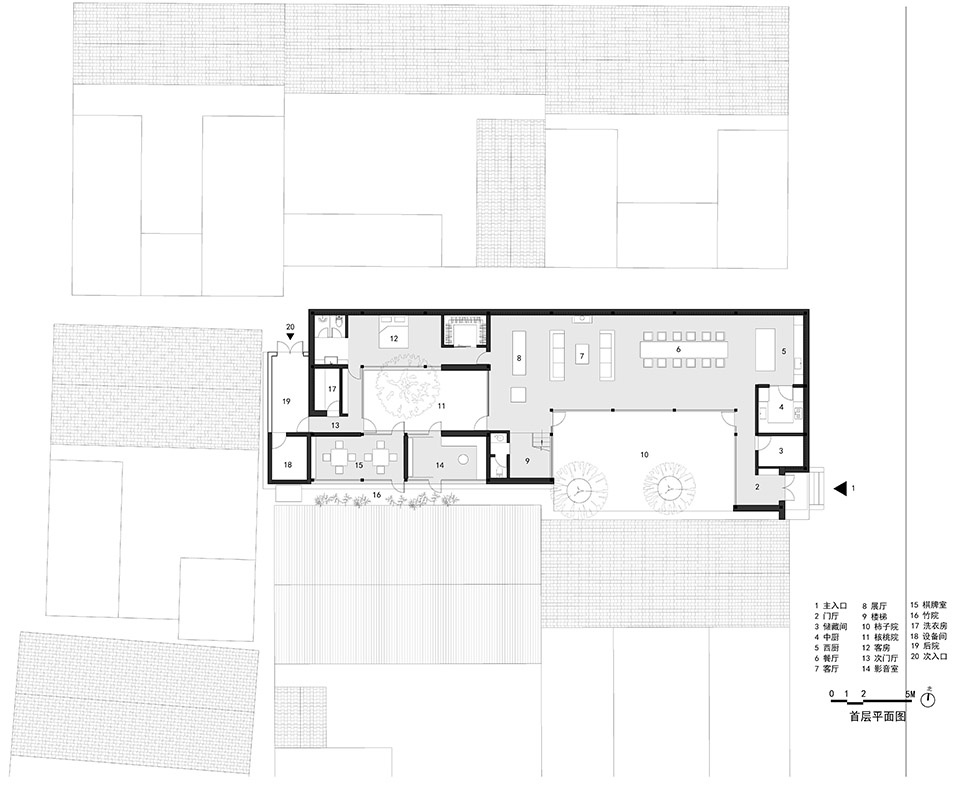
建筑首层沿街边界以实墙围合,内部则向庭院完全开放,布置了客厅、餐厅、厨房等公共休闲空间以及一个户主卧室;
▼耒宿爆炸图,exploded diagram

The ground floor is enclosed with solid walls along the street for privacy, while the interior fully opens to the courtyards. It accommodates communal spaces such as the living room, dining room, and kitchen, as well as the owner’s bedroom bedroom.
▼由餐厅看向入口,view of the entrance from dining room

▼首层主视角,main perspective of the first floor

▼首层客房主视角,guestroom on the first floor

▼由首层客房看核桃院,view of the walnut tree courtyard from a ground-floor guestroom

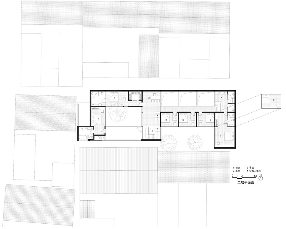
二层三个错层平台漂浮于砖墙之上,与姿态各异的树木形成对景,这里布置了六间客房,分为标准客房、榻榻米单人房、loft亲子房等多种类型。
On the second floor, three staggered platforms appear to float above the brick walls, creating a visual interplay with the surrounding trees. This level houses six guestrooms of varied styles, including standard rooms, tatami-style single rooms, and loft-style family suites.
▼二层客房主视角,guestroom on 2F

▼由二层客房看核桃院子,view of the walnut tree courtyard from a guestroom on 2F

▼二层客房视角,guestroom on 2F

▼二层客房视角,guestroom on 2F

▼二层客房夹层主视角,guestroom mezzanine on 2F

▼公共卫生间视角,public restroom

建筑开辟了两处屋顶平台,高处可远眺附近的群山。
The building features two rooftop terraces, offering panoramic views of the surrounding mountains.
▼露台视角,terrace


材料与建造
Materials and Construction
可持续、可循环利用作为材料使用的基本原则,造价控制也是重要的考量。木构建筑满足绿色低碳的原则,其本身自带温暖、自然的质感,作为建筑结构的首选。木结构预制装配的建造方式,也有利于施工现场的精度控制,保证完成度。
Sustainability and recyclability were fundamental principles in material selection, with cost control also being a key consideration. Timber, with its warm, natural texture and low-carbon footprint, was chosen as the primary structural material. Prefabricated timber construction ensured precision during the building process and guaranteed high-quality execution.
▼二层走廊视角,2F corridor

▼二层细部,2F details

▼二层楼梯细部,2F staircase details

▼庭院立面细部,courtyard facade details

墙体全部利用现场回收的旧砖砌筑,实现再利用。内部木质隔墙尽量采用建筑与室内一体化的方式,避免二次装修增加造价。屋顶沥青瓦部分延续到二层墙面,如灰色的房子漂浮于围墙之上,强化了建筑的识别性。
▼节点,detail

The exterior walls were constructed entirely from reclaimed bricks sourced on-site, embodying commitment to sustainable reuse. Internal wooden partitions were designed as a part of the architectural system, avoiding the need for secondary outfitting and reducing costs. Asphalt shingles extend from the roof to parts of the second-floor facade, creating the image of a gray house floating above the perimeter walls, enhancing the building’s distinct identity.
▼屋顶露天鸟瞰,aerial view of rooftop terrace

▼外立面主视角,exterior facade

完工投入使用后,户主不无骄傲地评述“这是一座会呼吸的房子”。借用环境、建造与材料,构筑自然、自在的生活。未来这里将成为对外经营和社区公共活动的综合空间,希望在游客与原住民的交流互动之中,建筑能够成为激活传统村落的能量起点。
Upon its completion, the owner proudly described it as “a breathing house.” Inspired by its environment and crafted with sustainable materials and thoughtful construction methods, the building cultivates a natural and serene lifestyle. In the future, it will serve as both a commercial homestay and a public hub for community activities. Through fostering engagement between visitors and local residents, the building is hoped to become a catalyst for activating the traditional village.
▼首层夜景,night view of first floor

▼总平面图,master plan

▼首层平面图,ground floor plan

▼二层平面图,first floor plan

▼屋顶平面图,roof floor plan

▼立剖面图,Elevation & section

Project name: Lei Homestay
Project location: Pinggu District, Beijing
Design firm: ARCHSTUDIO
Chief designers: Han Wenqiang, Li Xiaoming
Design team: Guo Jiangang, Lei Xin, Wang Yikai (Intern)
Structural consulting: Beijing Xinnansen Wood Structure Engineering Co., Ltd.
MEP consulting: Zheng Baowei, Li Dongjie, Zhang Yingnan
Image editing: Lei Xin, Wang Tonghui, Wang Hanfeng
Construction firm: Beijing Xinnansen Wood Structure Engineering Co., Ltd.
Building Area: 564㎡
Design phase: April 2020 – August 2021
Construction phase: August 2021 – March 2024
Main Materials: red brick, Scots pine wood, asphalt shingle, stone-textured coating
Photos: Wang Ning, Jin Weiqi
Video: Jin Weiqi














