BESTSECRET办公室,德国 / HENN
BESTSECRET是一个专属会员制的奢侈时尚线上俱乐部,如今在巴伐利亚首府的市中心为其位于慕尼黑地区的新总部增设了办公场所。HENN建筑事务所将BESTSECRET作为奢侈品牌精选平台的品牌定位,转化为相应的室内设计语言,打造出一个既能强化品牌形象,又为约125名员工提供舒适、现代化工作环境的空间。
BESTSECRET, an online members-only club for luxury fashion, adds an office in the center of the Bavarian captital to its new headquarters in the Munich area. HENN translated the company’s identity as a platform for curated luxury brands into a corresponding interior design, creating a place that strengthens the brand’s identity while providing a pleasant, modern work environment for about 125 employees.
▼室内概览,overview of the indoor space


新办公室位于东火车站(Ostbahnhof)附近新开发的iCampus内,坐落于由建筑事务所LRO Lederer Ragnarsdóttir Oei设计的七层新建大楼中,处于地块最北端,面朝慕尼黑市中心。建筑沿着一条城市轴线展开,远眺工业区Werksviertel并延伸至地平线上的阿尔卑斯山,尽览城市与自然交汇的全景视野。
Situated on the newly developed iCampus at Ostbahnhof, the new BESTSECRET office is located in a seven-story new build designed by architectural firm LRO Lederer Ragnarsdóttir Oei. Facing the city center, this building occupies the site’s northernmost end. An urban axis opens a panoramic view across the Werksviertel and out of town all the way to the Alps appearing on the horizon.
▼入口,entrance

BESTSECRET品牌的审美风格简约、永恒,为其数字空间中的高端时尚品牌提供舞台。为新总部设计的室内空间以这一理念为灵感,通过精心挑选的色彩、材质与物件,将其转化为可感知的空间体验。墙面采用温暖的灰色,与裸露的混凝土天花和浅灰色无缝地面相呼应,营造出中性背景,使建筑本身成为品牌数字身份的物理体现。镜面和反射材质在视觉上拓展了空间维度,大量使用的纺织材料则呼应了时尚世界的质感。
Reduced and timeless in nature, the BESTSECRET brand aesthetic sets the stage for featuring upscale fashion brands in the digital space. The interior design conceived for the new headquarters toys with this idea to transform it into a tangible space using carefully selected colors, materials, and objects. A warm gray shade on the walls works in concert with exposed concrete ceilings and light gray seamless floors to create a neutral backdrop that makes the buil- ding the physical equivalent of the digital brand identity. Reflective and mirrored surfaces expand the space visually, while generously applied textile materials establish a reference to the world of fashion.
▼简约永恒的审美风格,simple and timeless aesthetic style


对比性的材质与形态——冷峻的镜面与温润的木材、坚硬的金属与柔和灵活的织物——共同构建出一个层次清晰、统一协调的室内环境。建筑混凝土和镀锌金属等粗犷工业质感,与沿外墙定制的木质家具形成鲜明对比,这些家具延展为座椅与书架,营造出温馨的细节体验。
Contrasting textures and shapes – cool mirror surfaces versus warm wood, sturdy metal versus gentle, flexible textiles – lend a clear and coherent appearance to the interior space. The industrial appeal of raw surfaces such as architectural concrete and galvanized metal intriguingly contrasts with homely, custom-made wooden furniture that extends along the outer walls to incorporate small benches and shelves.
▼冷峻的镜面与温润的木材构建出统一协调的室内环境,cool mirror surfaces versus warm wood lend a clear and coherent appearance

▼镀锌金属与定制的木质家具形成鲜明对比,
galvanized metal intriguingly contrasts with homely, custom-made wooden furniture


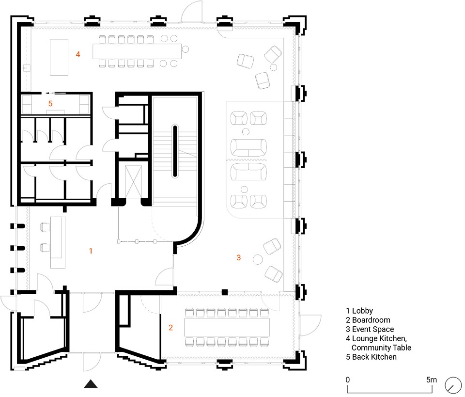
各层空间根据不同功能进行设计,同时以“通透性”与“开放性”为统一原则:通透的玻璃隔墙贯穿各层,确保视线连贯,同时也使建筑中心具备全景视野。董事会议室设于首层,面朝市中心,并有意对外开放可视性。相对一侧是带有大号共享长桌的休闲厨房,为各楼层员工提供交流聚会的公共场所。
All floors are designed differently depending on their type of use, yet they are united by the principle of transparency and openness: Glazed walls create a continuous sense of space on each floor while allowing for a panoramic view from the building’s center as well. The boardroom is located on the ground floor, deliberately kept visible from outside and facing the city center. On the opposing side, the lounge kitchen features a large community table to provide a place to meet for employees from all floors.
▼以“通透性”与“开放性”为统一原则,the principle of transparency and openness


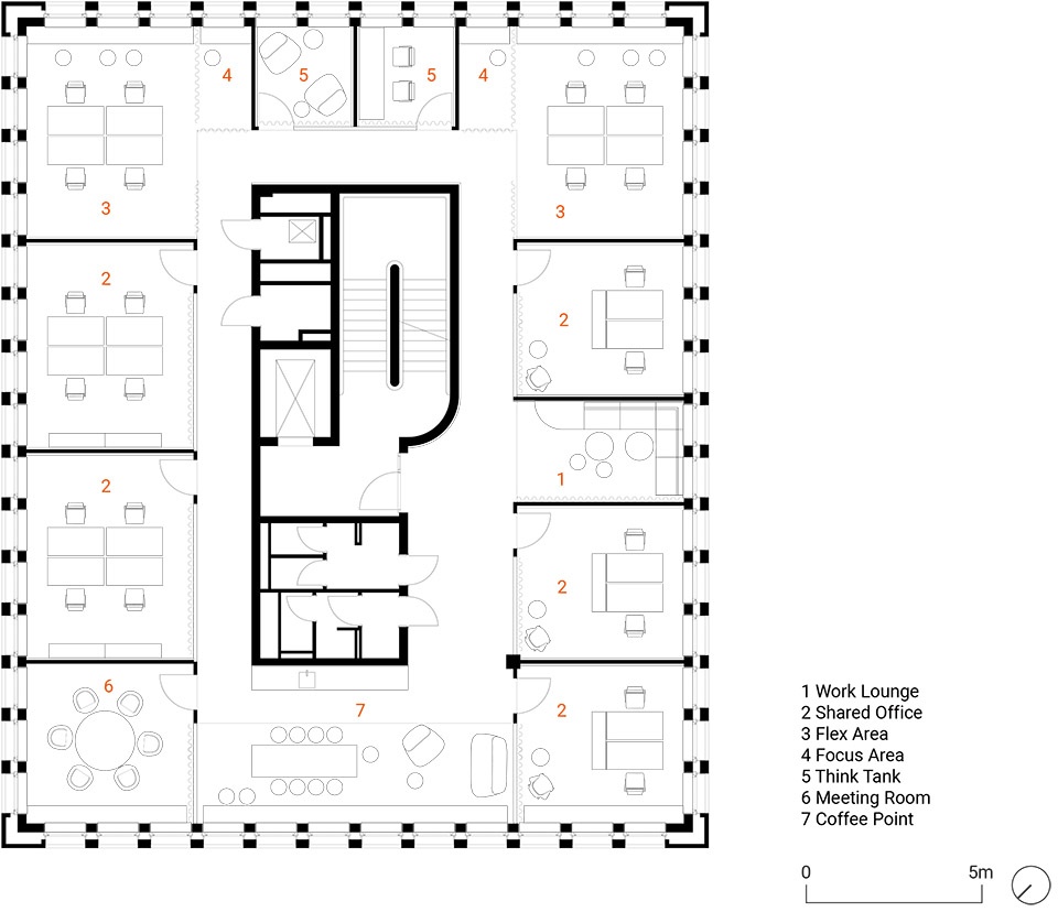
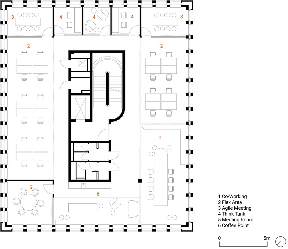
在高层空间中,办公区域被划分为不同功能区,包括鼓励交流的共享办公空间和专注思考的“智库”会议室。全高帘幕系统使空间可灵活再分隔,以应对不同的使用需求。各区域的布局经过精心安排:开放区域面朝城市中心,专注工作区域则位于相对安静的一侧。
On the upper levels, offices are divided into diffe- rent zones, including communicative co-working spaces and contemplative think-tank rooms. Floor-to-ceiling curtains allow for flexible, even more granular zoning. Arranging the individual areas was a deliberate design decision: While the more open zones face the vibrant city center, the rooms designed for focused work are located on the quieter side of the building.
▼鼓励交流的共享办公空间,communicative co-working spaces


在BESTSECRET总部,HENN室内团队设计出一个既承载品牌精神,又能激发员工与访客灵感的办公场所。
At the BESTSECRET headquarters, HENN Interior designed a workspace that is imbued with the company’s identity while creating an inspiring atmosphere for employees and visitors alike.
▼一层平面,ground floor plan

▼二层平面,first floor plan

▼三层及四层平面,second floor/fourth floor plan

Project start: 2023
Completion: 2024
Scope of work: Interior Design, LP1 to LP8 HOAI(object planning tenant fitout)
Client: BestSecret GmbH
Building owner: R&S Immobilienmanagement GmbH
Address: Friedenstraße 24A 81671 Munich Germany
Gross floor area: 3,100 m²
Floors: 7 above ground
Workstations: around 125
Program: Lobby Office Meeting rooms Lounge kitchen Coffee bars Event space
Architecture: LRO Lederer Ragnarsdóttir Oei
Interior Design: HENN
Project team:
Partner in charge: Katrin Jacobs
Project director: Yvonne Koll
Design Principal: Martin Henn
Alexandra Berger, Christiane Reichenbach, Kathrin Stamm
Consultants: lumen3 (Lighting planning), Officemedia (Media technology)
Construction companies: BES Brunold Holz und Design Manufaktur GmbH, Schwandorf (Interior fitout / carpenter), designfunktion München GmbH, München (loose furniture)














