Sierre商业与通识教育学校,瑞士 / Bonnard Woeffray architectes
这座新的商业与通识教育学校位于瑞士联邦铁路(SBB)铁路线以南,与交通基础设施一道标志着Sierre城市向铁路线以外区域的扩展。在继社会工作学院落成之后,Bellevue平原上迎来了第二座教育设施。
The new business and general education school is located south of the SBB railway tracks, marking—alongside the mobility infrastructure—the expansion of the city of Sierre beyond the rail line. The Bellevue plain now features a second educational facility, following the School of Social Work.
▼学校外观,exterior of the school


▼学校位于铁路沿线,located near the railway track

项目场地呈现出两个主要标高:一是朝北面向SBB车站、向西面向Route de la Monderèche;二是朝南与东部开放,连接Bellevue平原。学校建筑恰好跨越这一高差,使不同功能区得以清晰划分。学校设有两个出入口:一个位于公交车站标高,另一个位于连接城市北部与SBB车站的人行天桥标高。体育馆的出入口则位于下层。
The site is defined by two reference levels: the first facing north toward the SBB station and west toward Route de la Monderèche; the second opening to the south and east onto the Bellevue plain. The school’s position straddling this change in elevation allows for a clear separation of functions. The school has two entrances: one at the level of the bus station and another at the level of the footbridge connecting the northern part of the city to the SBB station. The gymnasium entrance is located on the lower level.
▼跨越高差的校园,the school’s position straddling this change in elevation


建筑设计采用了契合该教育阶段需求的功能布局。环形教室带由阳台式的走廊服务,并环绕一个充满自然光的大型中央空间。这个由雕塑般楼梯赋予动态感的中央空间,成为整座学校的空间核心与象征焦点。围绕核心布置的教室具有不同朝向与采光条件,营造出丰富多样的学习环境。
The school’s design offers a typology that meets the specific requirements of the education level it hosts. A ring of classrooms is served by a balcony-like corridor overlooking a large central space filled with natural light. This central space, animated by a sculptural staircase, becomes the school’s spatial and symbolic focal point. The classrooms arranged around this core benefit from varied orientations and lighting conditions.
▼学校外观,exterior of the school

▼玻璃幕墙外部设置由抛光不锈钢折板组成的护栏,
the glazed façades are fitted with polished stainless steel pleated cladding

▼立面细部,facade detail



一层设置了包括食堂和两个大讲堂在内的公共功能空间,这些空间与HES-SO大学共享,大学还同时使用建筑的上层区域。
The ground floor houses public programs, including the cafeteria and two lecture halls shared with the HES-SO, which also occupies the upper level.
▼位于一层核心的楼梯空间,staircase centered at the ground floor


▼位于一层的食堂,canteen at the ground floor


▼位于一层的公共空间,public space at the ground floor


▼位于一层的食堂,canteen at the ground floor

▼食堂空间,canteen

▼位于一层核心的楼梯空间,staircase centered at the ground floor

▼从楼梯俯瞰,overlook from the staircase



▼混凝土走廊,concrete corridor

▼走廊上的储物空间,lockers along the corridor


▼顶层走廊,corridor at the top floor

▼从顶层俯瞰楼梯,overlook the staircase from the top floor

▼混凝土楼梯间,concrete staircase


混凝土结构巧妙应对了在双层高体育馆之上叠加教学功能的挑战——通过将四面主要结构墙体的荷载传递至建筑外围,从而形成V形结构支撑,这一构造同时确保了抗震稳定性。
The concrete structure addresses the challenge of layering school functions above a double gymnasium by transferring the loads from the four major structural walls to the perimeter. This results in V-shaped structural supports that also ensure seismic stability.
▼形成V形结构支撑的混凝土结构,V-shaped structural concrete supports


▼双层高体育馆,a double gymnasium


▼更衣室,changing room

玻璃幕墙外部设置了由抛光不锈钢折板组成的护栏,不仅增强了安全性,也揭示了建筑的结构节奏。室内材料选用简洁精致的表达:清水混凝土、透明或着色玻璃、铝质包覆构件,营造出克制而高雅的空间氛围。
The glazed façades are fitted with polished stainless steel pleated cladding acting as guardrails, which reveal the building’s structural rhythm. The interior materials are sober and refined: exposed concrete, transparent or tinted glass, and aluminum cladding elements.
▼学校夜景,night view

▼学校夜景,night view

▼学校夜景,night view

▼场地平面,site plan

▼体育馆一层平面,gym ground floor plan

▼体育馆二层平面,gym first floor plan

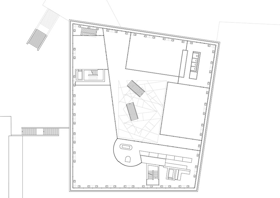
▼教学层一层平面, ground floor plan

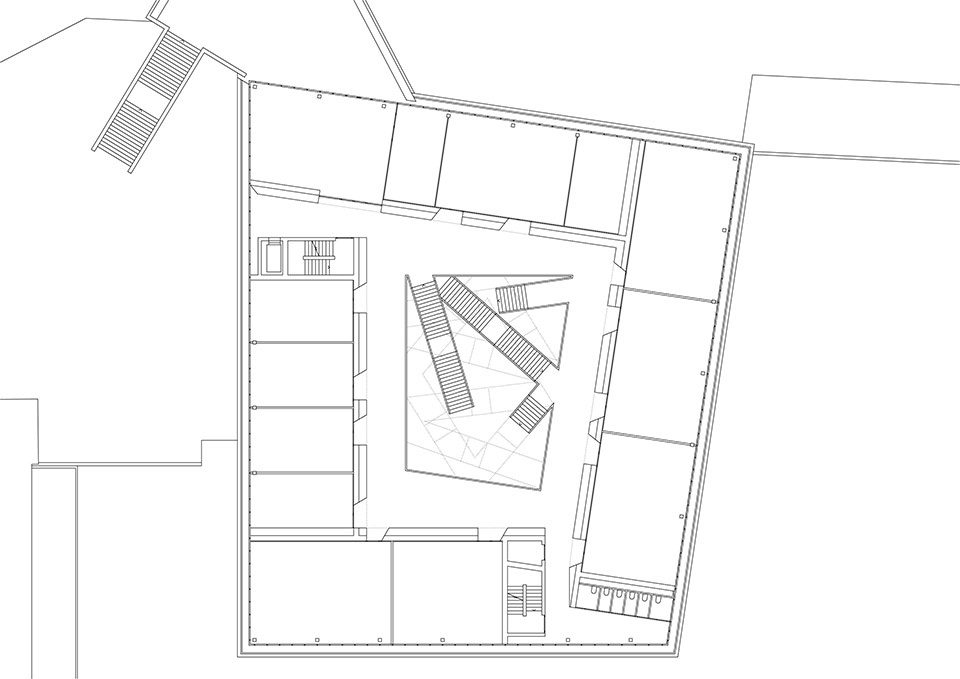
▼教学层二层平面, first floor plan

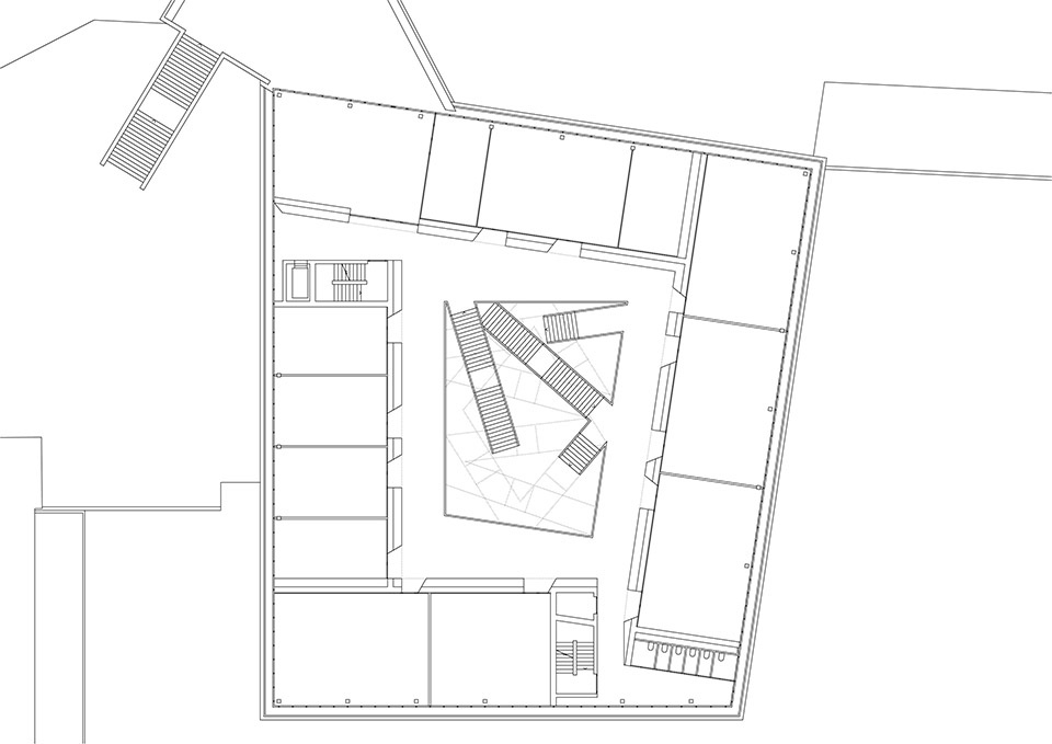
▼教学层三层平面, third floor plan

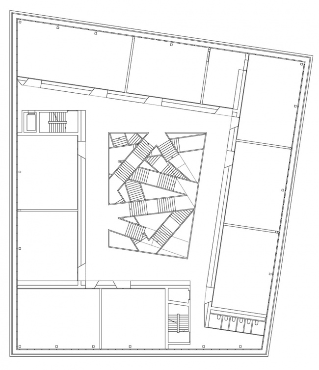
▼教学层四层平面,fourth floor plan

▼立面,elevation


Client: Canton of Valais
Commission: Project competition
Status: Built
Dates: 2011 (competition), 2016–2019 (construction)
Program: 40 classrooms, 2 lecture halls, offices, cafeteria, double gymnasium, support facilities
Collaborators: Jean-Pierre Williner, Diogo Marques
Civil Engineer: Kurmann Cretton SA
HVAC Engineer: Enerconseils Sion SA
Electrical Engineer: Bonvin Technique Concept Sàrl
Structural Engineer: Lami Sàrl
Photography: Roland Halbe, Nicolas Sedlatchek
Area: 11,210 m²
Volume: 51,600 m³
Cost (CFC 1–5): CHF 45,000,000














