Montale高中,意大利 / Colucci & Partners Architettura
该项目旨在重新思考校园空间,突破传统“教室+走廊”的僵化与割裂的布局模式。设计目标是打造一个由建筑激发学习、促进社交与归属感的环境,将学校转化为一个“学习景观”,使每一个空间都成为教育体验不可分割的一部分。
The project aims to rethink school spaces, moving beyond the traditional model of classrooms and corridors, which is often rigid and fragmented. The goal is to create an environment where architecture fosters learning, socialization, and a sense of belonging, transforming the school into a learning landscape in which every space becomes an integral part of the educational experience.
▼外观概览,exterior overview



项目核心理念是“聚落式”布局——将教室、实验室与公共区域按照年级进行组合。这种系统比单一教室提供更广阔、更富动态的环境,鼓励学生之间的互动与协作。空间之间采用大面积玻璃隔断,削弱了物理和视觉上的分隔,使整座建筑成为一个共享的学习场所,知识不再局限于各自的教室之中。
At the core of this concept is the principle of clusters-groupings of classrooms, laboratories, and communal areas organized by grade level. This system provides students with a broader and more dynamic environment than a single classroom, encouraging interaction and collaboration. Large glass partitions between spaces reduce physical and visual separation, making the building a shared place where knowledge extends beyond the boundaries of individual classrooms.
▼立面,facade


▼入口,entrance


▼立面细部,facade detail

除了“聚落”理念,项目的另一关键要素是贯穿整栋建筑的一条富有层次的路径。它并非按传统路径笔直延伸,而是以更流动和富有变化的方式展开,引导学生在空间中不断探索与发现。沿一条理想轴线布置的玻璃体量构建出视觉连通性,激发好奇心与行动力。学生在行走中,目光能不时捕捉到其他空间正在发生的活动,从而增强空间的开放感与联系感。通过这种方式,原本理想中的“长方体”建筑被转化为由体块与空隙组成的空间构成,其中“空”空间亦成为重要的关系场所——学生可以在这里驻足、互动、在课堂之外进行学习。
Beyond the cluster concept, another key element of the project is the articulated pathway that runs through the building. Instead of following a rigid, linear trajectory, it develops in a dynamic and fluid manner, guiding students on a continuous spatial discovery. Glazed volumes arranged along an ideal axis create visual connections that stimulate curiosity and encourage movement. One’s gaze can catch glimpses of activities taking place in other spaces, fostering a sense of connection and openness. This approach transforms the ideal parallelepiped of the building into a composition of volumes and voids, where unoccupied spaces become relational areas — places where students can pause, interact, and learn outside of traditional classrooms.
▼走廊,hallway

▼玻璃体量,glazed volumes

▼视觉连通性,visual connections

设计理念并非通过随意地加减体量来实现,而是基于一种空间策略,对各元素进行有机重组和功能性的调整。在这一逻辑下,户外空间同样被纳入整体教育体系。例如,屋顶露台不仅承担社交和户外学习功能,也具备技术属性,如消防通道功能,这展示了整体设计如何在不牺牲建筑美感的前提下满足使用需求。
The design concept does not rely on arbitrary subtraction or addition of volumes but follows a spatial strategy that shifts and reorganizes elements in a functional way. Within this logic, even outdoor spaces become part of the educational system. The terraces, for example, serve not only as areas for socialization and outdoor study but also fulfill technical functions, such as fire prevention, demonstrating how integrated design can meet functional needs without compromising architectural quality.
▼露台,terrace

▼室内概览,interior overview



材料的选择亦是项目的关键之一。砖的运用源于设计团队希望与周边环境建立联系的愿望。砖作为一种连续且富有触感的元素,强化了建筑体量构成的表达,将平面布局上的变化清晰地转化为立体上的起伏。尽管建筑本身体量感强,但由于砖材具有手工质感——每块砖都独一无二、略有差异,整体呈现出生动丰富的细节层次。这种做法使建筑从远处看去显得厚重而整体,近观则可感受到其不规则表面所带来的光影与材质变化,增强了建筑的动态气质。
Another fundamental aspect is materiality. The choice of brick was driven by the desire to establish a connection with the surrounding context. As a continuous and highly tactile element, brick emphasizes the volumetric composition of the building, clearly translating floor plan variations into volumetric changes. Although the building’s mass is substantial, the use of brick lightens its perception due to its artisanal nature: each unit is unique and different from the others, generating a vibrant variety of details. From a distance, the building appears solid and compact, while up close, it reveals its irregularities, creating a play of shadows and surfaces that enhances its dynamic character.
▼手工质感的砖墙,artisanal nature of the brick


材料的选用亦隐喻着学生的成长历程:如同他们一样,这座学校也并不完美,而是始终在变化、不断进化。整个项目由一个清晰、一以贯之的理念所驱动:营造一个能够适应当代教育需求的校园环境,提供灵活、富有启发性与包容性的空间。建筑在这里成为教育的工具,成为一个可以接纳、激励并陪伴学生成长的空间——不仅是学业上的成长,更是人格和社会性的成长。
This material choice also serves as a metaphor for students* growth journey: like them, the school is imperfect and ever-changing, constantly evolving. The entire project is guided by a clear and coherent principle: to create a school environment capable of adapting to contemporary educational needs, offering flexible, stimulating, and inclusive spaces. Architecture thus becomes an educational tool, capable of welcoming. inspiring, and supporting students in their journey of growth-not only academically but also personally and socially.
▼中庭,atrium

▼一瞥,a glimpse

▼轴测,axon

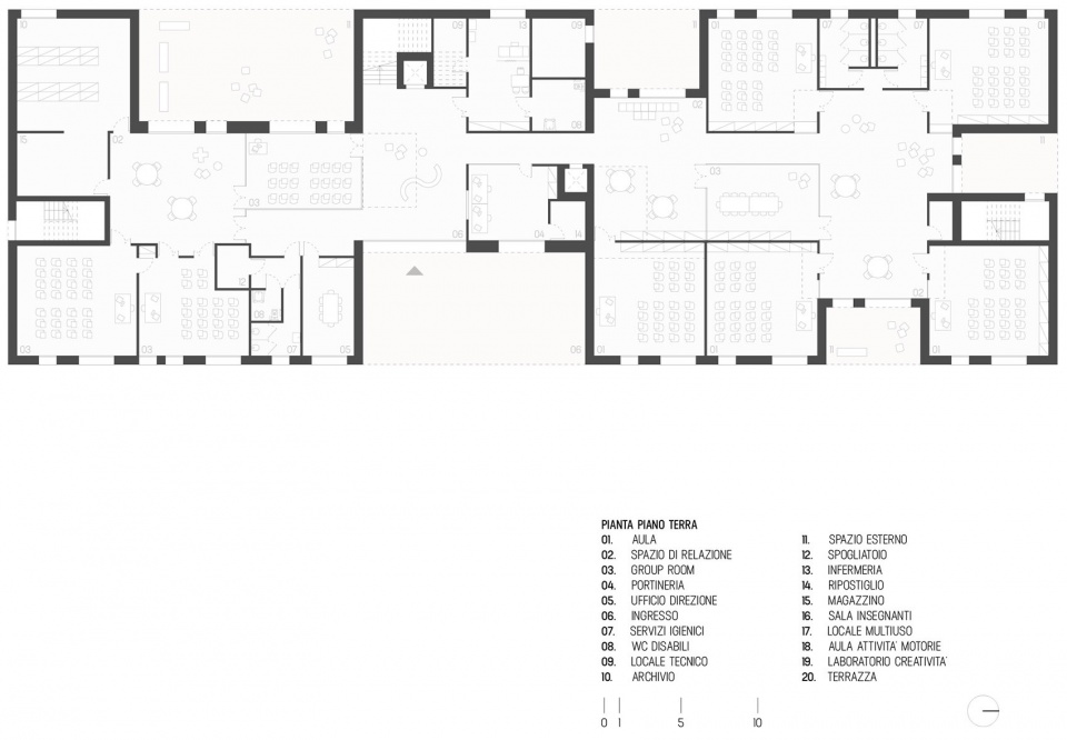
▼首层平面图,ground floor plan

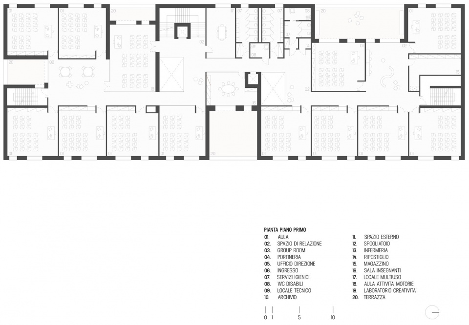
▼二层平面图,first floor plan

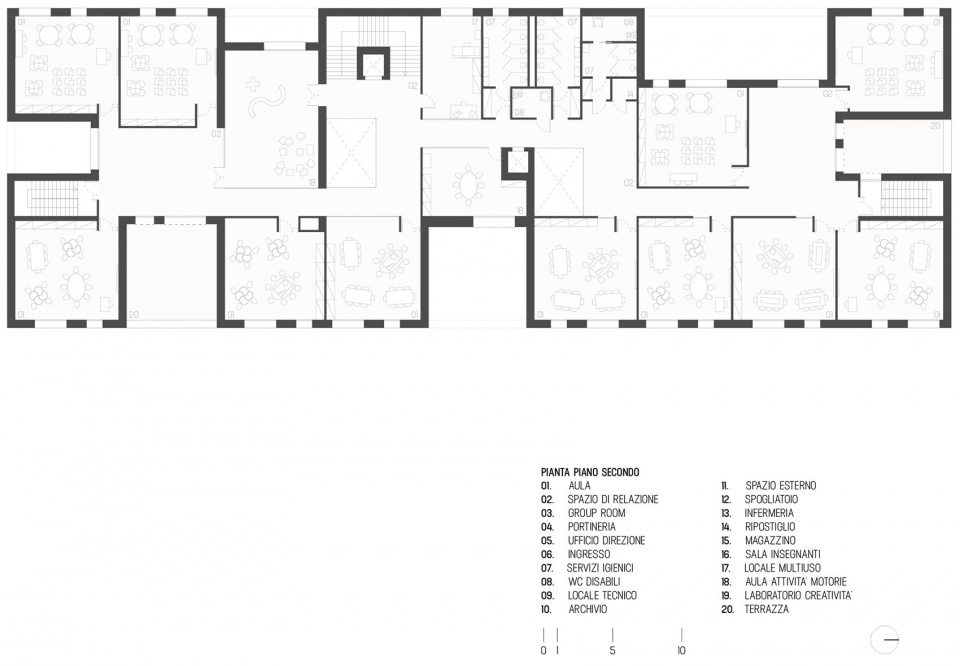
▼三层平面图,second floor plan

▼立面图,elevations


▼剖面图,sections


Type: Design and project management of a new building for a secondary school within the school
village of Pontedera
Architectural design, project management, and safety coordination: Colucci & Partners Architettura
Pedagogical design: Dr. Beate Weyland
Structural design: Eng. Loriano Cecconi
Systems design: Omega Engineering
Hydraulic design: HS Engineering
Energy design: Benigni Engineering
Safety coordination during the design phase: Arch. Matteo Ferrini
Design of passive acoustic requirements: Studio Antea
Young professional: Arch. Andrea Guidi
Design start: 2019
Completion date: 2025
Location: Pontedera (PI)
Gross area: 4,080 m²














