炙喜烧肉餐厅,四川岳池 / 朴开⼗向设计事务所
01前言
“惊看桌满油沾嘴”
Preface “Staring in awe at the tables filled with oily lips”
项目位于四川省岳池市,原始建筑空间内部净高近7m,户外有一百多平面积的空地,整体来说空间开阔,可塑性较强。
The project is located in Yuechi City, Sichuan Province. The original building space has an internal clear height of nearly 7 meters, with an outdoor area of over 100 square meters. Overall, the space is open and expansive, offering great flexibility for design and adaptation.
▼餐厅入口,entrance

▼餐厅入口,entrance

02
裸钢铸造的蒸汽城堡
The Steam Castle Cast from Naked Steel
这次我们对经典奇幻元素,与建筑空间融合大胆探索,灵感汲取《哈尔的移动城堡》中充满动态变化的建筑形态。
▼概念草图,concept sketch

In this project, we have boldly explored the integration of classic fantasy elements with architectural spaces, drawing inspiration from the dynamically changing architectural forms in Howl’s Moving Castle.
▼灵感汲取《哈尔的移动城堡》中充满动态变化的建筑形态,
drawing inspiration from the dynamically changing architectural forms in Howl’s Moving Castle


接下来,让我们从入口开始探索,建筑中感受自然。打破建筑封闭状态,开设入口,置入一棵树,形成具有邀请性的过渡区域,拉近人与建筑的距离,激活外立面。
Next, let’s start our exploration from the entrance, Experiencing Nature within the Architecture. To break the enclosed state of the building, an entrance has been opened, and a tree has been placed to create an inviting transitional area, which shortens the distance between people and the building and enlivens the facade.
▼入口,entrance

这种框架结构充分发挥了开阔场地的通透性,主体两层餐厅外立面,以简洁线条与耐候钢板等粗犷材质勾勒轮廓。
▼体块生成,massing generation

This framework structure fully utilizes the transparency of the open site. The facade of the two-story main restaurant outlines its contours with simple lines and rugged materials such as weathering steel plates.
▼入口处雨篷设计,the canopy design at the entrance

映入眼帘的金属楼梯,投射航站台的概念,着陆于一丛石林间,带感的楼梯声让整个楼梯结构更具有张力。
▼投射航站台的概念,draws on the concept of a platform

The metal staircase that catches the eye draws on the concept of a platform, landing among a cluster of stone formations. The rhythmic sound of footsteps on the staircase adds tension to the entire staircase structure.
▼金属楼梯投射航站台的概念,the metal staircase that catches the eye draws on the concept of a platform

绕树建梯,打通上下层,借助建筑空高,丰富空间层次,同样的小型钢材呼应整体建筑的结构语言。
A staircase has been built around the tree, connecting the upper and lower floors. Taking advantage of the building’s height, it enriches the spatial hierarchy. The small-sized steel elements echo the structural language of the overall building.
▼小型钢材呼应整体建筑的结构语言,The small-sized steel elements echo the structural language of the overall building


▼小型钢材呼应整体建筑的结构语言,The small-sized steel elements echo the structural language of the overall building

细看楼梯,以金属网结构铺设平面,吊钩斜拉钢丝绳索攀附于扶手之下,轻透巧妙。楼梯下的景观小品使入口处更加自然,中间的橄榄树将绿色向上延申,具有生命力。
Upon closer inspection, the staircase has a flat surface paved with a metal mesh structure. The hooks are diagonally connected with steel wire ropes attached under the handrails, creating a light and ingenious design. The landscape features under the staircase make the entrance more natural, and the olive tree in the middle extends the greenery upwards, brimming with vitality.
▼楼梯下的景观小品,The landscape features under the staircase


一楼客餐区以现浇吧台主导,延续业主木结构的想法,木板层层搭建,金属构件上下连接,灯影形成面光,生成秩序感。金属波纹板让顶面天花在灯光的照射下波光粼粼,暖光照在木桌面,符合小菜的氛围。
In the dining area on the first floor, a cast-in-place bar dominates the space. Continuing the client’s idea of using wooden structures, wooden planks are stacked layer by layer, and metal components are connected up and down. The light and shadow form surface lighting, generating a sense of order. The metal corrugated panels make the ceiling sparkle under the illumination of the lights, and the warm light on the wooden tabletop is in line with the ambiance of the restaurant.
▼一楼客餐区,the dining area on the first floor


▼一楼客餐区,the dining area on the first floor

二楼入口以体块灯膜聚焦,唯一的发光面光,指引顾客进出,室内结合工业风灯光,强化蒸汽朋克视觉冲击,绿植点缀平衡硬朗氛围。
At the entrance of the second floor, a block-shaped light membrane is used to focus attention. It is the only luminous surface lighting, guiding customers in and out. The interior combines industrial-style lighting to enhance the visual impact of steampunk, and the green plants add a touch of softness to balance the tough atmosphere.
▼二楼入口以体块灯膜聚焦,a block-shaped light membrane is used to focus attention at the entrance of the second floor

▼工业风灯光,industrial-style lighting

▼工业风灯光,industrial-style lighting


建筑二楼主要以H型钢结构十字交叉,以金属体块穿插重构混凝土空间,在空间中相互交织,呼应了电影中城堡的奇幻多变,视觉冲击彰显结构美学的力量。
On the second floor of the building, H-shaped steel structures intersect in a cross shape. Metal blocks are interspersed to reconstruct the concrete space, intertwining with each other in the space, echoing the fantastical and ever-changing nature of the castle in the movie and highlighting the power of structural aesthetics through visual impact.
▼以金属体块穿插重构混凝土空间,Metal blocks are interspersed to reconstruct the concrete space


▼以金属体块穿插重构混凝土空间,Metal blocks are interspersed to reconstruct the concrete space

▼彰显结构美学的力量,highlighting the power of structural aesthetics

天花切块,部分座位区域利用顶部波浪板分了层次高低,有金属吊顶的座位区域限定感更强,增加空间感受的丰富度。少许空调管道口犹如烟囱触角并排探出,就像城堡的发射器。
The ceiling is divided into sections. In some seating areas, wave-shaped panels on the top are used to create a sense of hierarchy. The seating areas with metal ceilings have a stronger sense of enclosure, enriching the spatial experience. A few air conditioning vents protrude side by side like the tentacles of a chimney, resembling the launchers of a castle.
▼有金属吊顶的座位区域,wave-shaped panels on the top

由于当地材料与工艺不能做的过于复杂,所以定制件大多使用角铁、镀锌铁皮这种易寻找的材质制作,备餐台也以简单的框架形式出现,与空间结构协调呼应。
Due to the limitations of local materials and craftsmanship, most of the customized parts are made of easily accessible materials such as angle iron and galvanized iron sheets. The preparation counter also appears in a simple frame form, harmoniously echoing the spatial structure.
▼定制件大多使用角铁、镀锌铁皮这种易寻找的材质制作,
most of the customized parts are made of easily accessible materials such as angle iron and galvanized iron

u型钢材立于餐桌,与机械感的金属夹片灯相接,与桌面烤盘、做旧烟管视觉统一。
▼船舵的意向, The intention of the rudder

U-shaped steel stands on the dining table and is connected to the mechanically styled metal clip lights, achieving visual unity with the tabletop baking trays and weathered smoke pipes.
▼餐桌细部,desk detail

后门处连接户外外摆,解构的手法将板片与体块丰富结合,立面挑檐,增强后门入口的昭示性。建筑后,隐藏着机械烟囱的手臂AND潜泳窗。
▼烟囱的意向, The intention of the chimney

Behind the building,
there are the “arms” of the mechanical chimneys
and the snorkeling windows.
▼增强后门入口的昭示性,enhance the visibility of the rear entrance

3
会呼吸的木构小屋
A wooden cottage that seems to breathe
建筑主体与户外庭院,利用临近户外的吧台前后衔接,建筑主体的框架结构由内延申到室外,搭建起木结构的两座小单体,呈现简单清晰的结构语言。
The main body of the building and the outdoor courtyard are connected front and back by the bar adjacent to the outdoor area. The framework structure of the main body of the building extends from the inside to the outside, and two small wooden single structures are built, presenting a simple and clear structural language.
▼木结构衔接室内外,the wooden structure connects the indoor and outdoor


户外的封闭式小屋耐久性和坚固性会更实用,再配合前院的空地布置散座,具有灵活性,虚实相辅相成。在小木屋中,也可以通过貌似船艇的圆形窗口,窥探建筑的一角。
The enclosed small houses outdoors are more practical in terms of durability and firmness. Coupled with the arrangement of scattered seats on the open space in the front yard, it has flexibility, and the combination of the virtual and the real complements each other. In the small wooden house, one can also peek at a corner of the building through the circular windows that resemble those of a boat.
▼户外的封闭式小屋,the enclosed small houses

户外外摆两座木结构小屋生长其中,以高速公路护栏作为围挡线,外立面使用金属波浪板材质,内部木地板铺设,木结构与饰面板的交辉相映,纹路清晰。
Two wooden small houses of the outdoor seating area are integrated into the scene. Using the expressway guardrails as the enclosure lines, the facade is made of metal corrugated panels, and the interior is paved with wooden floors. The wooden structure and the decorative panels complement each other, with clear textures.
▼外立面使用金属波浪板材质,the facade is made of metal corrugated panels

白天接受阳光的照射,晚上被暖黄的灯光映着,在街上成为一道风景线,呈现出轻松舒适的烧肉氛围。
During the day, it is bathed in sunlight, and at night, it is illuminated by warm yellow lights, becoming a scenic spot on the street and presenting a relaxed and comfortable atmosphere for enjoying grilled meat.
▼夜晚成为一道风景线,becoming a scenic spot at night


青石板路面和小石子的配合让小屋的独立感与精致感上升,踏着汀步,绕到三角木屋的后方。发现还有个小后院,环绕式的动线更具有移步异景的园林感。偶尔坐在这儿喝个小酒,吃吃烧肉,温暖灯光下简直是人生一大乐事。
The combination of the bluestone pavement and small stones enhances the sense of independence and delicacy of the small house. One can step on the stepping stones and walk around to the back of the triangular wooden house. It is found that there is also a small backyard, and the circular moving lines give a sense of a garden where the scenery changes with each step. Sitting here occasionally to have a glass of wine and enjoy some grilled meat under the warm lights is truly a great pleasure in life.
▼后院的青石板路面,the bluestone pavement

▼外摆平面图,outdoor dining area

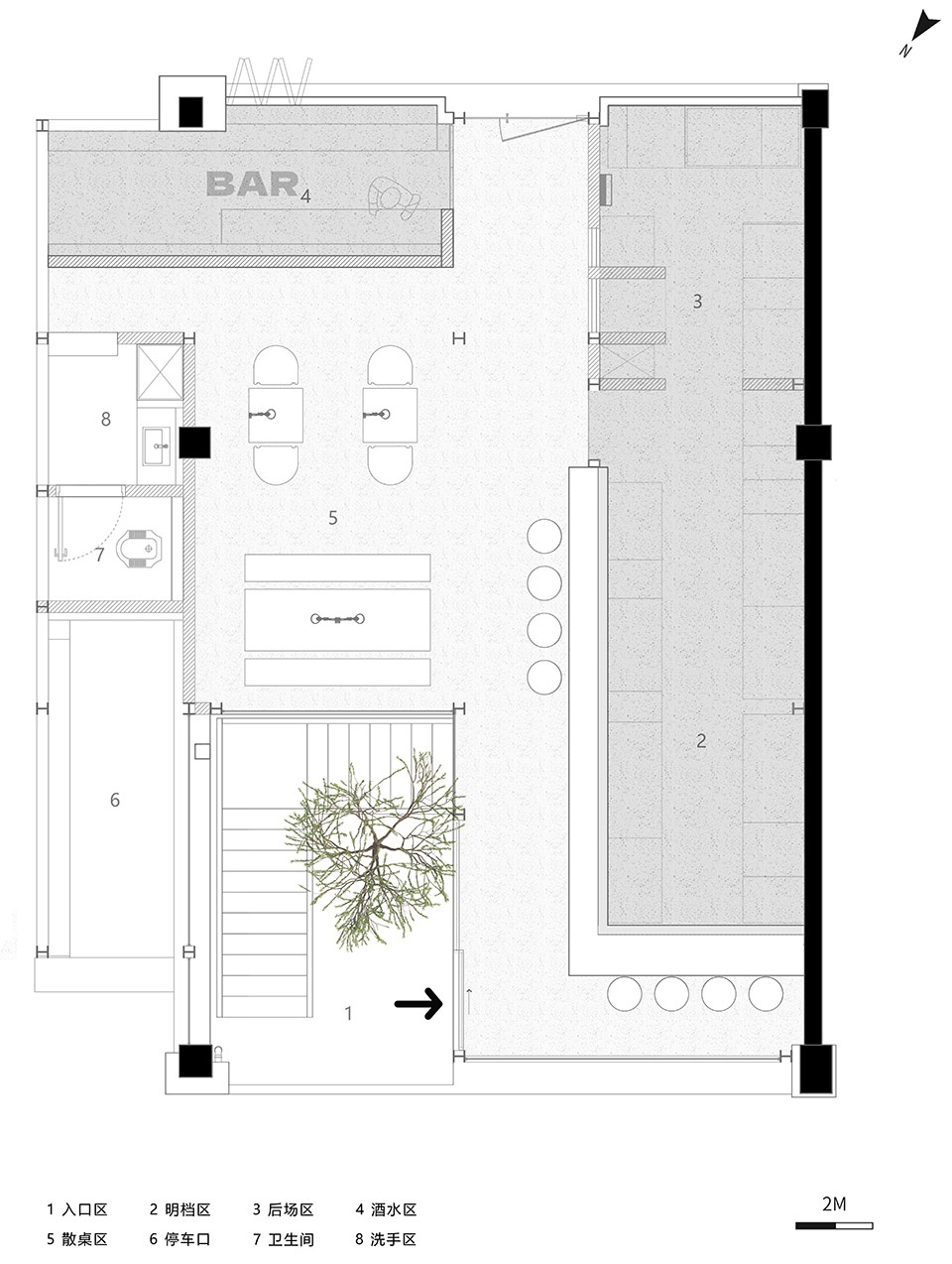
▼一层平面图,ground floor plan

▼二层平面图,first floor plan

Project name | ZhiXi Grilled Meat
Design | Pure’s design
Design Director | Tianyu Xiong, Xiaokai Zhang
Design Team | Jie Wang, Liang Chen
Project location | Yuechi City, Sichuan Province
Gross Built Area | 176m²
Completion Year | 2024.12
Copywriters | Qian Wang
Photo credits | Xiaokai Zhang
Brands / Products used in the project | Cast-in-place concrete, weathering steel plates, H-beams, marine plates
Website | http://www.puresdesign.com
Contact e-mail | puresdesign@126.com














