Serra do Louro住宅,葡萄牙 / João Completo. Cimbre
这座住宅位于塞拉杜洛鲁(Serra do Louro),坐落于阿拉比达自然公园(Arrábida Natural Park)内的最高处,原址为一处年久失修的废墟。原有结构被拆除,其砌石墙体所用的石块被回收利用,用于重建场地的边界围墙,使新建项目自然融入周围的乡村环境之中。
Located in Serra do Louro, within the Arrábida Natural Park, this house is built at the highest point of the land, where a ruin in an advanced state of disrepair previously stood. This structure was demolished, and the stones from the old masonry walls were reused to build the boundary walls, integrating the intervention into the surrounding rural context.
▼项目鸟瞰,aerial view of the project

▼项目鸟瞰,aerial view of the project

为了最大限度地利用太阳朝向与面向自然保护山景的视野,住宅整体朝南开放。高达2.4米的墙体将室内空间延展至覆盖其上的四坡屋顶之外,形成多个层次不同的户外区域。这样的布局不仅保护了住宅免受北侧街道与西侧邻地的干扰,确保居住私密性,同时也通过大面积的玻璃开口引入充足自然光。
To take advantage of the solar orientation and the views over the protected landscape of the mountain range, the house opens predominantly to the south. The walls, 2.4 meters high, extend the interior spaces beyond the perimeter of the regular four-pitched roof that rests upon them, creating outdoor areas with varying levels of intimacy. This ensures privacy from the proximity of the street to the north and the adjacent land to the west, while also allowing natural light to enter through large glazed openings.
▼墙体与覆盖其上的四坡屋顶,the wall and the regular four-pitched roof



▼外露混凝土墙面,the imposing presence of exposed concrete on the walls


建筑选材强化了其构造感。室内天花板采用桦木饰面,温润自然,与外露混凝土墙面的厚重质感形成鲜明对比,共同营造出统一而有力的建筑语言。外立面部分则使用混凝土、天然锌屋面以及保护窗框的铝质包板,这些材料不仅耐候性强,也能随着时间推移自然老化,几乎无需维护。
The tectonic character of the construction is emphasized by the choice of materials. The warmth of birch wood on the interior ceilings contrasts with the imposing presence of exposed concrete on the walls, which provides a coherent architectural language throughout the house. On the exterior, the concrete, natural zinc roofing, and aluminum cladding that protects the window frames ensure that the house will age naturally and require minimal maintenance.
▼室内天花板采用桦木饰面,
the warmth of birch wood on the interior ceilings



▼营造温润自然的室内氛围,creating warm and natural atmosphere


▼餐厅,dining hall


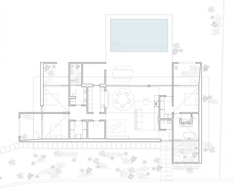
为了满足家庭居住需求,住宅中央设有一个社交活动区,作为家庭成员相聚的核心空间,并起到分隔两个相对私密区域的作用。这一空间布局使主卧拥有相对独立性,与另外两间卧室保持适当距离。
To meet the family’s needs, the social area occupies the center of the house, serving as a meeting point that separates the two more private zones. This spatial arrangement ensures a degree of independence for the master bedroom from the other two bedrooms.
▼通往卧室和浴室的走廊,
the corridor towards the bedroom and bathroom

▼卧室,bedroom


▼卧室局部,bedroom

▼浴室,bathroom

▼浴室,bathroom



▼夜景,night view


▼场地平面,site plan

▼平面图,plan

▼剖面图,section


Architecture | João Completo. Cimbre
Client | Private
City | Palmela
Country | Portugal
Year | 2024
Area | 180m2
Engineering | Luís Teixeira
Photographs | Francisco Nogueira
Construction | João Completo . Cimbre














