FRESH住宅塔楼,荷兰 / KAAN Architecten
FRESH住宅塔楼由KAAN Architecten设计,坐落于埃因霍温新兴城市片区De Caai的核心地带,这一新区由原Campina乳品工厂的基地演变而来。建筑共包含123套住宅,俯瞰城市的广阔景观。其设计以节奏感强烈的网格、乳白色调及源自场地遗产的肌理化材料,回应了周边工厂的历史语境。
FRESH is a residential tower designed by KAAN Architecten at the heart of De Caai, a new urban district emerging from the foundations of Eindhoven’s former Campina dairy factory. The building comprises 123 homes with sweeping views over the city. The design echoes the adjacent factories with a rhythmic grid, milky tones, and textured materials drawn from the site’s heritage.
▼塔楼概览,overview of the tower


De Caai片区以标志性的Campina烟囱、牛奶与冰淇淋工厂,以及紧邻的埃因霍温运河为特征。这段工业遗产正通过建筑与公共空间设计被重新诠释,核心理念是共建性、气候适应性与包容性。DELVA与Studioninedots主导了城市与景观设计,建筑与工程部分则由多学科团队共同协作完成。片区规划以庭院、大道与公共花园替代传统道路与人行道,体现共享产权与环境韧性的理念。整体开发将包含约700套住宅与2万平方米商业空间,形成一个占地3.5公顷的混合用途综合体,融合了遗产建筑、低层、高层及特色功能空间,服务于新一代的创作者与设计者。
De Caai is defined by the iconic Campina chimney, the Milk and Ice Factories and its position along the Eindhoven Canal. This industrial legacy is being reinterpreted through architecture and public space design that places collectivity, climate adaptability, and inclusivity at its core. DELVA and Studioninedots led the urban and landscape design, collaborating with a multidisciplinary team of architects and engineers for the design and construction of the architectural projects. Courtyards, boulevards, and public gardens are developed in accordance with principles of shared ownership and environmental resilience, serving as replacements for traditional roads and pavements. The development includes approximately 700 homes alongside 20,000 m² of commercial space. This results in a complex of 3,5 hectares of mixed-use heritage, low-rise, high-rise, and special uses that support a new generation of makers and designers.
▼塔楼紧邻埃因霍温运河,tower’s position along the Eindhoven Canal

▼融入城市中的工业遗产,integrated into the urban industrial heritage

FRESH由KAAN Architecten设计,是De Caai总体规划中五座高层建筑之一。这些塔楼以统一的建筑框架构成一个协调的整体,同时各具特色。它们均以25×25米的正方形基底展开,建立起一致的空间语言,同时允许高度上的变化。每座塔楼皆为四面展示的体量,清晰分为基座、主体与顶部三部分。其双层通高的底座自然融入周边环境,色调统一、层次分明,营造出视觉上的和谐氛围。
▼设计生成,schematic design


FRESH by KAAN Architecten is one of the five towers that comprise the high-rise part of the De Caai masterplan. These towers form a cohesive ensemble with a distinct character yet unified through a shared architectural framework. Set on a consistent 25×25-meter square footprint, the towers establish a common spatial language that allows for variation in height. Each tower has an all-around presence and is carefully articulated into a base, body, and crown, anchored by a double-height plinth that integrates seamlessly with the surroundings. The tone-on-tone palette fosters visual harmony.
▼融入城市中的工业遗产,integrated into the urban industrial heritage

▼塔楼外观清晰的模数网格系统,create a suitable dimensional grid system


在这一精心构建的城市构图中,FRESH位于核心位置,恰处于两个关键历史建筑——牛奶工厂与冰淇淋工厂之间。正因这种直接关联,FRESH成为新旧交汇的一次深思熟虑的“会面”。该设计的一大亮点是塔楼六米悬挑于牛奶工厂之上的结构布局,这是一次独特的空间与结构挑战。建筑底层采用通透设计,连接公园、内广场与街道,形成一个具有邀请感的过渡空间。
In this carefully structured composition, FRESH occupies a strategic central location, standing between two key heritage buildings, the Milk Factory and the Ice Factory. Due to this direct relationship, FRESH is part of a thoughtful meeting between existing and new. A defining feature of the design is the tower’s six-meter cantilever over the Milk Factory, a unique spatial and structural challenge. The tower’s transparent ground-level plinth mediates between the park, the inner square, and the street, forming a threshold that invites.
▼塔楼悬挑于牛奶工厂之上,the tower’s six-meter cantilever over the Milk Factory


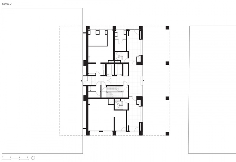
FRESH高18层,提供三种平面布局,单层包含4、6或8套公寓。每套住宅均配有宽敞的私人户外空间,从凹阳台到露台不等,均可尽览城市美景。
▼六层平面,sixth floor plan

FRESH provides three distinct configurations across its 18 floors, varying between four, six, and eight apartments per level. Each residence includes a private, generous outdoor space, ranging from loggias to balconies, providing exceptional views over the city.
▼入口空间,entrance space

▼入口空间,entrance space

▼公寓空间,apartment space

▼阳台空间,balcony space

在设计语言上,团队参考了历史建筑的构图与比例,确立了清晰的模数网格系统,以乳白色框架及香槟色金属板填充构成整体外观。底座与基座采用水平强调的设计,与相邻的历史建筑形成呼应。塔楼上升过程中,这一节奏在主体与顶部部分微妙变化。设计的核心任务,是确保塔楼与历史建筑在视觉上各自清晰可辨,形成对话关系,而非模糊地混为一体。
The composition and proportions of the heritage buildings have been examined to create a suitable dimensional grid system, defined by a strong milky-toned framework and repetitive infills in champagne-color metal panels. A horizontal emphasis at the plinth and base aligns with the adjacent historic structures. As the tower rises, this rhythm subtly shifts through the body and crown. The core design task lies in ensuring the clear legibility of the tower and the historic buildings, allowing them to engage in a dialogue rather than merging indistinctly.
▼以乳白色框架及香槟色金属板填充构成整体外观,
a strong milky-toned framework and repetitive infills in champagne-color metal panels

FRESH是De Caai开发一期的重要组成部分。至2026年底全面建成后,De Caai将成为一个融合工作与生活的综合社区,一个促成新连接、孕育新社群的场所。KAAN Architecten自然地参与到这一包容而细致的项目之中,以开放而审慎的方式,实现对历史保护与当代表达的融合承诺。
FRESH is delivered in the first phase of De Caai. When completed at the end of 2026, De Caai in Eindhoven will be a place to work and live, where new connections lead to new communities. KAAN Architecten naturally contributes to this inclusive and detailed project, representing the commitment to preservation and integration in an open and careful conversation.
▼夜景,night view

▼场地平面,site plan

▼一层平面,ground floor plan

▼十二层平面,12th floor plan

▼十七层平面,17th floor plan

▼西立面,West elevation

▼东立面,East elevation

▼南立面,South elevation

▼北立面,North elevation

▼剖面,section

Location: Hugo van der Goeslaan, 5613 LH Eindhoven
Project team: Eline Blom, Dennis Bruijn, Timo Cardol, Javier Cuartero, Raluca Firicel, Michael
Geensen, Kees Kaan, Jan Teunis ten Kate, Filipa van der Laan, Yinghao Lin, Arnaud Naome,
Vincent Panhuysen, Agata Proniak, Dikkie Scipio, Christian Sluijmer, Yang Zhang.
Client: BPD Ontwikkeling, Eindhoven
Programme: Housing (123 apartments)
Design phase: January 2021 – August 2022
Construction phase: 2022 – 2024
Completion: December 2024
GFA: 10.196 sqm
Landscape and Urban designer: Delva Landscape Architects, Amsterdam and StudioNinedots, Amsterdam
Building physics supervisor: Kompas 360, Elsloo
Fire safety engineer: Kompas 360, Elsloo
Acoustics advisor: Kompas 360, Elsloo
Management: JMJ Bouwmanagement, The Hague
Main contractor: Huybregts Relou, Son
Construction advisor: Adviesbureau Tielemans, Eindhoven Constructor W(erktuigbouw): Schoormans, Hooge Mierde Constructor E(lectrical): Verheggen, Wintelre
Technical installations advisor: Kompas 360, Elsloo














