多摩的住宅,日本 / Cheng Hao Chung Architect
项目位于神奈川与东京交界处的多摩,建筑座落在一座山丘的南坡且周围地勢起伏。与动荡的地形相反,北坡肃穆整洁的佛教墓地所呈现出的宁静氛围,越过山脊来到住宅区所在的南坡并融入安静的街道空间里。基地的东南两侧与道路相邻,顺应地形着地形的起落即使在高密度的住宅区里,这块转角地也依然光照充盈并给人某种澄明的感受。
Located in Tama, on the border of Kanagawa and Tokyo, this house sits on the southern slope of a hill, surrounded by rolling terrain. The serene atmosphere of the Buddhist cemetery on the northern slope extends across the ridge, blending into the quiet streetscape of the residential area to the south. The site is flanked by roads on its eastern and southern edges, following the topography. Despite being located in a densely populated residential district, this corner plot benefits from abundant sunlight and a tranquil luminosity, evoking a sense of clarity and calm.
▼东南街角看自宅,Southeast corner view

▼东侧自宅入口,East entrance

▼南侧沿街面,South side along the street

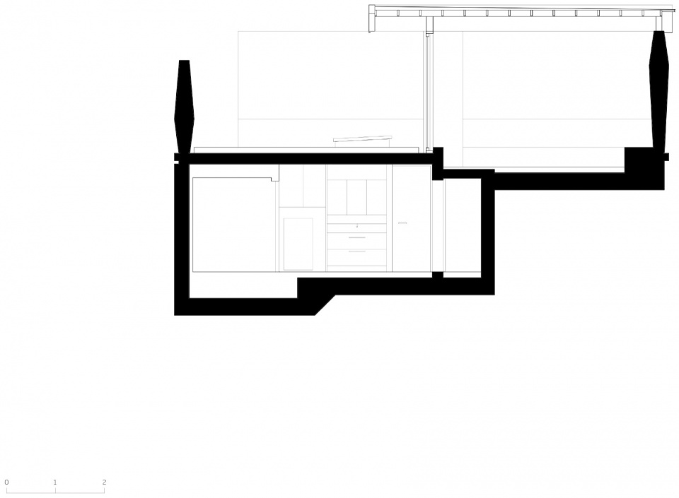
建筑师根据地形将建筑划分为地上一层以及局部半地下层两个部分;半地下层的平面由盥洗空间,两间卧室以及车库组成。盥洗空间与卧室的部分被放置在一个对外完全封闭的混凝土盒子里,一旁的车库则完全向外敞开。该盒子被放置在基地与相邻街道的整个范围的中心,并配合地形架起上层的楼板。一层的空间被独自站立的四面混凝土墙体围合而成,梭形的断面使得墙体从街道上看去像是几块搁置在平台上的巨石。墙体赋予内部空间厚重的神秘感的同时也创造了自身周围空间的连续性,从而模糊了基地内部和街道的边界。
The architect divided the structure into two levels: a ground floor and a partially submerged basement. The basement accommodates a set of functional spaces ( bath, toilet and etc…) two bedrooms, and a garage. The washrooms and bedrooms are encased within a fully enclosed concrete box, while the garage remains entirely open to the street. This concrete volume is positioned at the heart of the area which includes the site and the street, while supportting the upper floor slab together with the natural slope. The ground floor is defined by four freestanding concrete walls, whose tapered profiles give them the appearance of massive monoliths deliberately placed on a platform when viewed from the street. These walls not only imbue the space hidden behind with a sense of heaviness and mystery but also create a continuous spatial flow around them, subtly dissolving the boundary between the site and the surrounding street.
▼玄关看客厅,View from the entrance to the living room

▼玄关处的异形柱,Special-shaped columns at the entrance

▼檐下看屋顶平台与客厅,View of the roof terrace and living room from under the eaves

▼客厅,Living room

▼看向厨房的下沉式客厅,Sunken living room looking towards the kitchen

在外部看来建筑物占据了整个街道转角,维持内部未知的同时创造了一种明亮且空旷的感受。从基地东北角的最高点穿越墙与墙之间的入口进入一层的围合空间内部,像是踏上了一个悬浮着的平台完全失去和外部地形之间的参照,包围着平台的四块巨石将外部环境变得碎片化并切断了外部的视线,日常的街道被巨石遮挡后成为抽象几何的风景。
Looking from the street, the building commands the entire street corner, preserving an air of enigma within while fostering a serene and luminous atmosphere. Entering the enclosed ground floor space from the highest point at the northeast corner of the site, through the gaps between the walls, feels akin to stepping onto a suspended platform, entirely detached from the external terrain. The four monolith-like walls fragment the external environment, obstructing views from the street and transforming the mundane streetscape into an abstract geometric composition.
▼屋顶平台回看客厅,Rooftop terrace looking back at the living room

▼屋顶平台,Rooftop terrace

▼工作区望向屋顶平台,Work area looking out to the roof terrace

▼工作区墙面,Work area wall

▼地下一层主卧,Basement master bedroom

▼主卧天窗,Master bedroom skylight

▼地下一层客卧,Basement bedroom

▼地下一层洗浴区,Bathing area on the first floor

▼地下一层走廊,Basement corridor

▼地下一层通往地面层的楼梯,Stairs from the basement level to the ground floor

木结构的平屋顶被简单放置在北侧墙体上方进而形成了室内空间和露台一般的区域,起居空间和厨房被设置成一个相对平台标高下沉40厘米的区域,地面使用染黑的木材弱化人们对这一深度的感知,从外侧看去像是一个下沉的祭坛,日常生活的事物在这个相对私密的区域里展开。下沉区域西南角的楼梯则通向半地下层的空间,在那里没有任何对街道环境的感知,在卧室里使用者如冬眠一般完全被保护起来,仅通过天窗感知早晨的来临和深夜的星空。
The wooden flat roof is simply placed atop the northern walls, forming both the interior space and a terrace-like area. The living space and kitchen are set 40 centimeters below the platform level, with the floor finished in darkened wood to mitigate the perception of depth. From the outside, this sunken area resembles a ceremonial altar, where daily life unfolds in a relatively secluded setting. A staircase in the southwest corner of the sunken area descends to the basement, where occupants are entirely protected from the outer world . In the bedrooms, residents are cocooned in a state of tranquility, just like hibernation, with only skylights offering the morning light and the nocturnal stars in the sky.
▼后门,Back door

▼停车库,Parking garage

▼阳光打在东侧清水混凝土外墙上,Sunlight hits the east side concrete exterior wall

▼夜间从屋顶平台回看客厅,Looking back at the living room from the rooftop deck at night

从起居空间向外看出去,是一处明亮的抽象世界,平台上的两处天窗和巨石般的墙体同样成为了特殊的物体,一个天窗向下探视如同街道延伸进平台下方的车库空间,另一个则链接了整座房子里最私密的空间并为其提供日照和月光。
The living space opens up to a bright and abstract world, gazing outward from the living space, one is met with a luminous and meditative vista. The two skylights on the platform, along with the monolith-like walls, serve as distinctive elements—one gazes downward, where the street runs into the garage space beneath the platform, while the other one connects to the most intimate space in the house, bathing it in both sunlight and moonlight.
▼项目区位,situation plan

▼地下层平面图,-1f plan

▼一层平面图,1f plan

▼剖面图,section





Project name: House in Tama
Project type: private hosue
Design: Cheng Hao Chung Architect
Website: chenghaochung.com
Contact e-mail: chenghaochung.chca@gmail.com
Design year: 2021
Completion Year: 2024
Leader designer & Team: Cheng Haochung (leader designer), Chang Poyun, Chu Ihsuan (project manager), Pan Yue
Project location: Tama-ku, Kawasaki-shi, Kanagwa-ken, Japan
Gross built area: 106.82㎡
Photo credit: Sobajima Toshihiro / Cheng Haochung
Materials: concrete structre (roof in wood)
Brands: TOTO,LIXIL,PANASONIC,JFE,TERADA














