翠竹外国语学校,深圳 / Link-Arc建筑事务所
翠竹外国语学校是一所建筑面积为44030平米的小学,项目位于深圳市罗湖区老城内,也是深圳历史最为悠久、密度最高的区域,拥有最不规则的城市肌理。学校场地北侧是城市主干道,相邻建筑功能混杂,包括医院、住宅、商铺、以及其他学校,场地狭长且不规整。如何在这样充满城市烟火气的环境内,在极高容积率(整体容积率3.9,规定容积率3.0)的条件下,为学生设计一个舒适有趣的高密度校园,并以此积极应对周边的复杂城市环境,是这个项目最大的挑战。
Cuizhu Foreign Language School is a 44,030 m² primary school located in the old town of Luohu District, Shenzhen. Luohu District is the oldest and densest area in Shenzhen with the most irregular urban fabric. The site is located next to the city’s main road, with narrow and irregular shape. The neighboring buildings include hospitals, residential buildings, shops and other schools.The greatest challenge of this project lies in designing a comfortable and engaging high-density campus within such a vibrant urban setting, where the plot ratio is extremely high (the overall FAR is 3.9, while the regulated limit is 3.0). The design must actively respond to the surrounding complex urban environment while creating a pleasant and stimulating space for students.
▼场地鸟瞰,aerial view of the site

▼鸟瞰,aerial view

▼校园入口,entrance of the school

▼街景,street view

第一章:交织城市Chapter 1: Interweaving the City
罗湖区是深圳最具烟火气的地方,周边无比丰富的市民生活为翠竹外国语学校的设计提供了一个有厚度的市井生活“图底“。建筑师不希望翠竹学校只是伫立在城市中的一个“物体”,而应该是城市文脉里起承转合的关键拼图,用自身的建筑语言,编织进罗湖老城与新区的肌理,联系着周围的环境。
▼场地位置,Site Location

▼场地现状,Site Status

Luohu District is one of the most vibrant and lively areas in Shenzhen, where the richness of everyday urban life provides a deep and textured “figure-ground” context for the design of Cuizhu Foreign Language School. The architects did not intend for the school to stand merely as an isolated “object” in the city, but rather envisioned it as a key piece in the urban narrative—an architectural gesture woven into the fabric of both the old city of Luohu and its newer developments, connecting seamlessly with its surroundings.
▼学校与周边环境,the school and surrounding environment

▼局部鸟瞰,closer aerial view


项目场地南侧规划了200m高塔住宅,建筑师将对日照有较高要求的教学空间集中靠北侧布置,将南侧留给对日照要求相对宽松的运动场与生活区。将普通教室以最优于日照的方式排列好后,用开放的大平台将教室串联在一起,形成丰富的教学场所。建筑由北向南逐层下跌,形成教学台地,建筑师在台地上挖出一系列不同进深的“院子”,在校园内部形成了一系列多孔的校园空间(porosity spaces)。
▼交织城市示意图,Interwoven City Diagram

To the south of the project site, a 200-meter-high residential tower is planned. In response, the architects positioned the classrooms—spaces with higher requirements for daylight—on the northern side of the site, leaving the southern side for the sports fields and living areas, which have more flexible lighting needs. Once the classrooms were optimally arranged for sunlight, the design connected them with large, open platforms to form a rich network of learning spaces. The building steps down from north to south, creating an educational “terrace.” Within this structure, the architects carved out a series of courtyards of varying depths, generating porous spatial sequences (porosity spaces) throughout the campus.
▼校园被住宅包围,the campus is surrounded by residences

▼街景,steer view

▼周边环境,surrounding environment


▼街景,street view

这些普通教学功能之外的多孔与架空,形成了建筑中一些动态而不确定性的元素,是校园空间中真正的价值所在。建筑师希望通过这种更加自由的空间布局可以带来全新的教育模式,模糊教学的边界,激发学生的创造力。整个校园都是流动的教学场所,课堂不只在教室之内,而将渗透到建筑的每个空间中。
▼日照分析,Sunlight Analysis

These voids and elevated passages—spaces beyond conventional classrooms—introduce dynamic, flexible elements that define the campus’s true value. The architects aimed to foster innovative pedagogical approaches through this liberated spatial organization, blurring the boundaries of traditional education and stimulating creativity. Here, the entire campus becomes a fluid learning landscape: classrooms extend beyond four walls, permeating every corner of the architecture.
▼由窗口看周边住宅楼,viewing the residence from the openings


第二章:第五立面Chapter 2: Fifth Elevation
项目的建设场地十分有限,规划容积率超过3.0,班级超过40个,为缓解教学楼体量对操场的压迫感,教学楼自南向北层层退台,将自然从地面层带到各个标高,形成梯田般自然生长的城市地景。每个年级的学生都拥有自己的屋顶花园,他们在课间10分钟的时候也可以快速来到花园之中玩耍放松。不同层的屋顶花园朝与城市各个方向的景观相呼应,形成有趣的对景与视觉延伸。整个教学楼水平延展,层叠交错,色彩斑斓,不仅是学生们在自然中学习的乐园,也是罗湖老城陈旧历史肌理上的一块彩色拼图。
▼形式生成示意图,Form Generation Diagram

The project site is very limited, with a planned plot ratio of over 3.0 and more than 40 classes. In order to alleviate the oppression of the school building’s volume on the playground, the school building is set back from the south to the north, bringing nature from the ground level to each elevation, creating a terraced, organically growing urban landscape. Each grade has its own rooftop garden, where students can quickly come to play and relax during the 10-minute recess. The rooftop gardens at different levels are oriented toward various city views, creating intriguing framed vistas and extended sightlines across the urban fabric. The building stretches horizontally, with overlapping terraces and vibrant colors, creating not only a joyful environment for students to learn amid nature, but also a colorful mosaic embedded in the urban fabric of Luohu.
▼鸟瞰,aerial view


▼局部鸟瞰,aerial view

总图上貌似无序的庭院在立面上其实与周边的木头龙小区、东侧的工业区和学校宿舍楼都有着精巧的对应关系,进退之间形成了有趣的张力。建筑师在教学楼山墙设置了各式各样、大小不一的窗洞,师生们可以从这些窗洞中望见城市和社区的多样面貌。城市的烟火与喧嚣,和校园的朗朗读书声,都将成为彼此生活中的重要部分。
The seemingly irregular courtyards in the master plan subtly align with neighboring structures—such as Mutoulong Residential Quarter to the west, and industrial buildings and dormitories to the east—creating a dynamic interplay of spatial tension. Architects designed varied window openings of different sizes on the gable walls, offering students and teachers glimpses of the diverse urban and community scenes beyond. The lively hustle of the city and the sound of children’s voices reciting lessons will intertwine, each becoming an integral part of the other’s daily life.
▼顶视图,top view

▼第五立面,the fifth facade


▼屋顶花园,roof garden

第三章:六个庭院Chapter 3: Six courtyards
国内的学校建筑规范异常严苛,但这些“规定动作”其实只是校园设计的底线。翠竹学校总建筑面积44,030平米,按照50%的使用率来计算,教学室内空间22,015平米,真正的挑战在于剩余的公共空间如何打造。建筑师希望用硬边定义校园边界,用庭院柔化城市关系。结合通风采光和周围环境,我们“挖出”了六个空间特色迥异的户外庭院。大树庭院位于建筑中心,将阳光引入建筑内部;其余五个庭院与周围环境相呼应,也是不同城市肌理的框景。
▼庭院概念草图,Courtyard Concept Sketch

School architecture regulations in China are exceptionally stringent, but these “mandatory requirements” should only be considered the baseline for campus design. Cuizhu School has a total floor area of 44,030 square meters. Based on a 50% utilization rate, the indoor teaching spaces account for 22,015 square meters. The real challenge lies in how to create meaningful public spaces with the remaining area. The architects sought to define the campus boundaries with crisp edges while softening its urban interface through courtyards. Balancing ventilation, daylighting, and contextual integration, they “carved out” six distinctly themed outdoor courtyards: The Central Tree Courtyard, positioned at the building’s core, draws sunlight deep into the interior; five additional courtyards engage with the surroundings, each framing carefully composed vistas of the neighborhood’s eclectic urban fabric.
▼校园一角,corner of the campus

▼庭院,courtyard

▼庭院,courtyard

▼庭院,courtyard

▼连廊,bridges

校园各功能垂直分区,对于日照和规范要求最严格的普通教室位于地上1-4层,5-6层为特色教室,其他大尺度空间例如报告厅、风雨操场、餐厅、图书馆等位于地下。挖出的庭院延伸至地下,将阳光和自然风带到负十米标高,让自然渗透到建筑下部。
▼剖面轴测图,Axonometric Section

▼多层立体庭院分析,Multi-level Courtyard Analysis

Programs are vertically stacked. Regular classrooms, which are the most demanding in terms of sunlight and regulations, are located on floors 1-4. Special classrooms are located on floors 5-6. Other large-scale spaces, such as the auditoriums, gym, cafeteria, and library are located underground. The courtyard extends to underground, bringing sunlight and natural wind to the negative ten meter elevation, allowing nature to penetrate into the lower part of the building.
▼底层庭院,ground courtyard

▼灰空间,gray space

▼灰空间,gray space

▼二层走廊,upper floor corridor

Pancake type的教学楼布置最大的挑战是日照,庭院的存在可以消减过深的空间进深,把阳光带入校园;为了论证每个教室的日照都可以满足要求,建筑师一边挖洞一边复核日照条件,前后做了十几版计算,并且反复的拿计算结果和模型去和规划部门进行沟通,最终方案才得以通过审批。
▼灰空间关系示意图,Gray Space Relationship Diagram

The campus is vertically zoned by programs: regular classrooms, which have the strictest daylight and regulations, occupy levels 1–4; special classrooms are placed on levels 5–6; and larger-scale spaces such as the auditorium, indoor gym, cafeteria, and library are located underground. Sunken courtyards extend down to basement level B2 (–10 meters), bringing sunlight and natural ventilation below grade and allowing nature to permeate the lower parts of the building. The greatest challenge in designing this “pancake-style” school building lies in meeting stringent sunlight requirements. The strategically placed courtyards help mitigate the depth of interior spaces while channeling natural light into the campus. To ensure every classroom complies with daylighting standards, the architects adopted an iterative design process – carving out voids while continuously verifying sunlight conditions through over a dozen rounds of calculations. The team persistently engaged with planning authorities, submitting multiple iterations of sunlight analysis and 3D models for review. Only after this rigorous validation process was the final scheme approved for construction.
▼蓝色庭院,blue courtyard

▼庭院,courtyard

▼绿色天花板,green ceiling

第四章:生态校园Chapter 4: An Ecological Campus
针对翠竹学校的地域特性,建筑师在寻求一种更有张力的总图关系,尝试在Bar Type和Pancake Type之间寻找一种平衡,用大量的架空空间去积极回应深圳的气候特征。中国传统的板式教学楼,是全国范围内一刀切的建筑规范的产物。翠竹学校丰富的剖面关系打破了板式教学楼的桎梏,为学生们营造了一个在自然中学习的绿色校园。深圳的亚热带季风气候夏季炎热潮湿,日照充足、雨量充沛,多层级的屋顶花园可以在夏季减少建筑的热能吸收,暴雨时减少地表径流;大楼板给教室提供遮阳的同时,保证学生各种天气都可以在校园内不撑伞地穿行。
▼分层轴测图,Layered Axonometric Diagram

In response to Cuizhu School’s unique urban context, the architects developed an innovative hybrid typology that strikes a dynamic balance between Bar-Type and Pancake-Type configurations, employing strategically placed elevated voids to actively engage with Shenzhen’s subtropical monsoon climate. Moving beyond China’s conventional slab-style school buildings – which largely result from rigid, nationwide regulations – the design breaks new ground through its inventive sectional organization that creates a vibrant, nature-immersed learning environment. The solution incorporates tiered rooftop gardens that serve multiple functions: mitigating heat absorption during sweltering summers, managing surface runoff during torrential rains, while cantilevered sunshades enable comfortable all-weather circulation throughout the campus.
▼操场,play ground

建筑的立面采用波纹微孔金属板进行遮阳,金属板低于楼板收边400mm,中午遮挡强烈的直射光,下午让逐渐柔和的光线渗透到建筑内部。竖向的波纹穿孔铝板增强了板材的刚性,使受力更为合理与稳定,且不需在背后做背筋支撑,4米高度的幅面尺寸仅用3mm的板材厚度就可实现稳定的外观效果。
▼幕墙节点示意,Curtain Wall Detail Diagram

The building façades use corrugated perforated metal panels for solar shading. These panels are set 400 mm below the slab edge to block harsh midday sun while allowing the softer afternoon light to filter into the building. The vertical corrugation enhances the structural rigidity of the aluminum sheets, enabling a more efficient load distribution without the need for additional bracing. Even at a panel height of 4 meters, a thickness of just 3 mm is sufficient to achieve a stable and refined exterior appearance.
▼由跑道看建筑,viewing the building from the runway

▼跑道,runway

第五章:精细化施工Chapter 5: Precision Construction
项目身处高密度市区,施工条件极其紧张。整体建筑的施工无法一次性全面铺开,只能采取分阶段推进的方式。先建北侧综合楼区域,再建南侧宿舍楼区,最后建中部的架空大空间,每个阶段的物料都需提前规划堆放在下一个施工区域。
▼剪力墙位置轴侧示意图,Axonometric Shear Wall Diagram

The project is located in a high-density urban area, where construction conditions were extremely constrained. It was impossible to carry out the entire construction at once, so a phased approach had to be adopted. The northern complex was built first, followed by the southern dormitory area, and finally the central elevated open space. Materials for each phase had to be pre-planned and stored in the area designated for the next phase of construction.
▼由周边住宅看校园,viewing the campus from the surrounding residence

▼立面细部,details of the facade

局促的场地情况给施工带来了额外的挑战,如垃圾清运困难、材料无法顺利进入、施工车辆受阻等;但另一方面,这种分阶段施工的方式也在一定程度上帮助建筑师控制了整体的施工节奏,最终的建设成果与预期效果是大致相符的。由于现场空间有限,建筑师巡场和驻场团队实现了建筑师的“孟母三迁”,最后阶段的现场会议是在学校对面的小马路边,坐在肠粉店的小板凳上完成的。
▼材料细部,details of material

The limited site conditions posed additional challenges, such as difficulties ins waste removal, restricted access for materials, and obstruction of construction vehicles. On the other hand, this phased construction method also allowed the architects to maintain better control over the overall construction rhythm. In the end, the built result largely aligned with the original expectations. Due to the limited on-site space, the architect’s site visits and the stationed team had to adapt creatively—realizing a sort of architectural version of “Mencius’ mother’s three moves.” During the final phase, site meetings were held across the street from the school, seated on small stools outside a local rice noodle shop.
▼穿孔金属板,perforated metal plate


▼细部,details

第六章:结语Chapter 6: Conclusion
查阅罗湖老城区的航拍图,弯弯曲曲的道路把地块划成各种奇异的多边形态,但同时每个地块上的建筑都努力的在自己的场地里“生长”,变成和场地最契合的样子。建筑师热爱这样的生气勃勃,属于罗湖区的学校也就应该有这种“张牙舞爪”的生命力,在高密度的城区里去努力获得朝气、阳光与渴望。
Looking at the aerial view of Luohu’s old urban district, the winding roads divide the land into all sorts of irregular polygonal shapes. Yet, on each plot, the buildings strive to “grow” within their own boundaries, evolving into forms that best fit their specific sites. The architect is drawn to this kind of vitality—full of energy and spontaneity. A school in Luohu should likewise embody this unruly, expressive spirit—reaching outward with vigor, striving for light, liveliness, and aspiration amidst the dense fabric of the city.
▼半户外运动场,semi-outdoor sports field

▼报告厅,lecture hall

▼概念模型图,Conceptual Model

▼总平面图,Master Plan

▼一、二层平面图,1st & 2nd Floor Plans

▼三、四层平面图,3rd & 4th Floor Plans

▼五、六层平面图,5th & 6th Floor Plans

▼负一、负二层平面图,B1 & B2 Floor Plans

▼负三层平面图,B3 Floor Plan

▼剖面图,Section

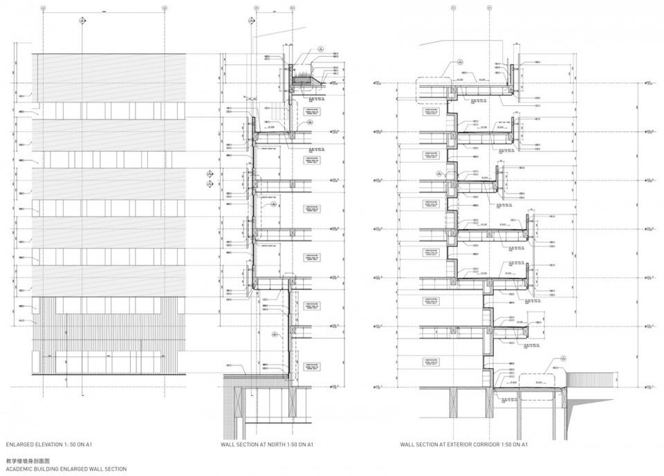
▼教学楼墙身剖面图,Classroom Wall Section

项目信息
PROJECT INFORMATION
Project Name: Cuizhu Foreign Language School
Project Location: Shenzhen, China
Project Area: 44030 m2
Client: Development and Reform Bureau of Luohu
PROJECT CREDITS
Architect: Studio Link-Arc
Chief Architects: Yichen Lu
Project Manager: Shiyu Guo
Project Team: Kenneth Namkung, Zeynep Urgr, Simeng Qin, Yu Sun, Qiaoxi Wu, Chuanzhang Li, Furui Sun, Yoko Fujita, Shixuan Sun
Architect of Record/Stucture/MEP: Shenzhen Machine Architectural Design Co.
Structural Consultant: WS Engineering Design & Consultants Co.
Interior Consultant: Studio Link-Arc + Ledao Design Co.
Landscape Consultant: Studio Link-Arc + Bange Landscape & Architecture Planning Design Co.
Curtain Wall Consultant: Studio Link-Arc + Huahui Decoration Engineering Co.
Construction Management: Shenzhen Tianjian Shenzhen Tianjian Real Estate Development Company
General Contractor: China Construction Eighth Engineering Division Co.














