三七互娱全球总部大厦,广州 / GWP建筑事务所
“玩心之家,创造快乐”设计构想The design concept of “Home of Playfulness, Creating Joy”
三七互娱全球总部大厦(37 Interactive Entertainment Headquarters)项目位于广州琶洲核心CBD区域,琶洲区位优势明显,与珠江新城、广州国际金融城隔江相望,构成广州中心城区经济发展“黄金铁三角”,未来将成为广州创新经济发展核心引擎。目前该区域已经成功引入阿里巴巴、腾讯、三七互娱、南方复星、唯品会、国美、小米、YY、科大讯飞等一大批人工智能与数字经济的龙头企业,并着力推进打造世界一流的数字经济示范区。
The 37 Interactive Entertainment Headquarters project is located in the core CBD area of Pazhou, Guangzhou. Pazhou has obvious regional advantages, facing Zhujiang New Town and Guangzhou International Financial City across the river, forming a “golden iron triangle” for economic development in the central urban area of Guangzhou. It will become the core engine for the development of Guangzhou’s innovative economy in the future. At present, a large number of leading enterprises in artificial intelligence and digital economy have been successfully introduced into this area, including Alibaba, Tencent, 37 Interactive Entertainment, Nanfang Fosun, Vipshop, Gome, Xiaomi, YY, and iFLYTEK. Efforts are being made to build a world-class digital economy demonstration zone.
地块位于琶洲西区琶洲大街西北侧,北临城市绿地和华邦国际中心,东侧为三一重工总部大厦,北侧300 米为琶醍啤酒文化创意区。GWP设计团队深度剖析三七互娱“玩心创造世界”企业文化内核,构筑“玩心之家,创造快乐”设计概念,将企业文化 LOGO 分解重构,贴合在建筑体量之上,定制 7 字板块,呼应“三七互娱”的特点,在趣味中体现独特性。以其创新的外立面构造和内部空间,传递出公司的使命和理念。
▼一江两岸黄金三角圈,The golden triangle circle on both banks of the river

▼概念手稿,Concept manuscript

▼设计概念与概念生成分析,Design concept & Concept generation analysis


The east, and located 300 meters south of the Pazhou Beer Cultural and Creative Zone. The GWP design team deeply analyzed the core corporate culture of 37 Interactive Entertainment, “Creating the World with Playfulness,” and established the design concept of “Home of Playfulness, Creating Joy.” By decomposing and reconstructing the corporate culture logo, the team integrated it into the building’s volume, customizing “7”-shaped panels to echo the characteristics of “37 Interactive Entertainment,” reflecting uniqueness through fun. With its innovative facade structure and interior space, the building conveys the company’s mission and philosophy.
▼三七互娱全球总部大厦,Overall of the project

定制化的空间组织|Customized Space Organization
根据互联网类企业和人才团队的需求,GWP设计团队创造丰富多元的空间体验和场所互动。在建筑二层设置了连廊与周边建筑进行连接,并在建筑的高中低区各设置了特色公共空间。同时,为适应企业对空间利用的灵活需求与不定期的功能转换可能,设计一套模块化的平面体系,制定出办公模块、会议模块和活动模块等,满足各种个性化功能需求与自由组合。
▼各区特色公共空间示意图,Schematic diagram of characteristic public Spaces in each district

▼功能分析图,Functional analysis diagram

To meet the needs of internet enterprises and talent teams, the GWP design team has created rich and diverse spatial experiences and venue interactions. A corridor is set up on the second floor of the building to connect with surrounding structures, while characteristic public spaces are installed in the high, middle, and low zones of the building. Meanwhile, to adapt to the flexible space utilization requirements of enterprises and the possibility of irregular functional transformations, a modular floor system has been designed, including office modules, conference modules, and activity modules, etc., to satisfy various personalized functional needs and free combinations.
▼三七互娱全球总部大厦大堂,lobby interior of 37 Interactive Entertainment Headquarters

特色空间均匀分布于总部各楼层,提升使用者体验,增强归属感。其中,低区的协作交流文化空间以阶梯形式连系三层通高空间,营造出更宽广的空间尺度,保证了空间的实用性和吸引力。中区的健康运动楼层设置了一条环形慢跑跑道,为企业员工提供开放健康的运动活动场所。
Feature spaces are evenly distributed across all floors of the headquarters to enhance user experience and strengthen a sense of belonging. Among them, the collaborative and communication cultural space in the low-rise area connects a three-story high space in a stepped form, creating a broader spatial scale and ensuring the practicality and attractiveness of the space. The health and sports floor in the mid-rise area is equipped with a circular jogging track, providing an open and healthy sports venue for enterprise employees.
▼三七互娱全球总部大厦室内,interior of 37 Interactive Entertainment Headquarters

▼三七互娱全球总部大厦室内,interior of 37 Interactive Entertainment Headquarters

多功能厅以光线设计增强了空间的延伸感,人们穿行在其中,体验未来感的会议空间;可作为大型会议、演播与运动场地进行使用的多功能厅,空间灵动的布局可适应不同的活动需求,激发活力。
The multifunctional hall enhances the sense of spatial extension through light design. As people move through it, they experience a futuristic conference space. Serving as a venue for large meetings, live broadcasts, and sports activities, its flexible spatial layout adapts to diverse event needs and ignites vitality.
▼三七互娱全球总部大厦室内,interior of 37 Interactive Entertainment Headquarters

▼三七互娱全球总部大厦室内,interior of 37 Interactive Entertainment Headquarters

“多维”的绿化体系|“Multi-dimensional” Greening System
为了提供舒适健康的办公环境,GWP设计团队将立体绿化360°螺旋型从下至上覆盖整个建筑,以立体绿化延续城市绿意,在高中低区分布不同的空中花园,以建筑语言续写城市生态足迹,调节微气候,降低热岛效应。裙楼屋顶延伸周边场地的绿化景观,精心营造一个充满亲和活力与社交互联的休憩之园;顶层屋顶花园可品赏极致全方位江景视野,精致生态绿植的布置,通透开阔视觉空间,使它从一众办公楼中脱颖而出。
To create a comfortable and healthy office environment, the GWP design team has implemented a 360° spiral vertical greening system that covers the entire building from bottom to top. This vertical greening extends the urban greenery, with different sky gardens distributed across the high, middle, and low zones, continuing the city’s ecological footprint through architectural language, regulating the microclimate, and reducing the heat island effect. The green landscape of the surrounding site is extended onto the roof of the podium, carefully crafted into a friendly, vibrant, and socially connected garden for relaxation. The rooftop garden on the top floor offers panoramic views of the river, with meticulously arranged ecological plants and a transparent, open visual space, making it stand out among office buildings.
▼立体绿化分析图,Three-dimensional greening analysis diagram

模块化表皮节能设计|Modular Skin Energy-saving Design
为适应岭南气候的特点,在建筑外立面上GWP设计了一种模块化的表皮系统,根据日照分析布置 7 字板块遮阳系统,形成了独特的立面模块化。通过控制模块的组合方式,形成东疏西密的合理遮阳方式,保证室内自然采光并可减少太阳辐射,实现高效的节能控制。疏密的组合也展现出立面灵动的变化,在提升建筑节能的同时赋予了美学的魅力。
▼模块化表皮示意图,Schematic diagram of modular skin

To adapt to the characteristics of the Lingnan climate, the GWP design team has developed a modular skin system for the building’s facade. Based on solar radiation analysis, a “7”-shaped panel shading system is arranged to form a unique modular facade. By controlling the combination of modules, a reasonable shading pattern with sparse east and dense west is created, ensuring natural daylighting indoors while reducing solar radiation and achieving efficient energy-saving control. The combination of density and sparsity also presents dynamic changes in the facade, enhancing the building’s energy efficiency while endowing it with aesthetic charm.
▼三七互娱全球总部大厦仰视视角,Upward perspective of the project

▼三七互娱全球总部大厦立面近景,Closer view of the facade

首层公共开放空间|Public Open Space on the Ground Floor
在建筑首层让出公共架空空间,连通地块北侧公园绿地与骑楼空间。24 小时全天开放实现公共人行动线灵活性。在公共架空空间中,布置艺术楼梯、文化展示栏、城市艺术品摆放区、公共无障碍电梯厅、公共配套商业等公共服务设施,实现公共效益最大化,用开放共享空间反馈城市。
▼分析图,analysis diagram

Create a public elevated space on the ground floor of the building to connect the park greenery on the north side of the plot with the arcade space. The 24-hour full-day opening ensures the flexibility of public pedestrian traffic flow. In the public elevated space, public service facilities such as artistic staircases, cultural display boards, urban art display areas, public barrier-free elevator lobbies, and public supporting commercial areas are arranged to maximize public benefits and give back to the city with open and shared spaces.
▼三七互娱全球总部大厦 – 底层架空,Overall of the project – elevated space on the ground floor

“玩心之家,创造快乐”建设过程 The Construction Process of “Home of Playfulness, Creating Joy”
GWP团队作为项目的建筑全过程总负责,及担任项目效果品质管控单位,统筹协同多专业推进工作,从质量、效率、成本、服务等方面进行全过程的把控。
As the overall responsible party for the entire construction process of the project, the GWP team also serves as the unit in charge of project effect and quality control. It coordinates and collaborates with multiple disciplines to advance the work, and carries out full-process control in terms of quality, efficiency, cost, service, etc.
▼夜景,Night view

质量优|Excellent Quality
建筑设计总控板块,对结构、设备、幕墙、泛光、绿建三星、装配式六大专业节点介入设计把控。如结构专业上选用国内规模最大的单专业甲级结构设计事务所RBS,在结构专业上提前介入超高层建筑方案设计当中,在设计整体的合理性、安全性、经济性上给予支撑,保障项目顺利推进。在设计中根据项目场地条件,北侧角柱让开江景视野。
In the overall control of architectural design, intervention and control are carried out for six major professional nodes: structure, equipment, curtain wall, floodlighting, three-star green building, and prefabrication. For example, in the structural discipline, RBS, the largest domestic single-discipline Class A structural design firm, is selected. It intervenes in the design of super-high-rise building schemes in advance to support the overall rationality, safety, and economy of the design, ensuring the smooth progress of the project. During the design, according to the project site conditions, the north-side corner columns are positioned to avoid blocking the river view.
▼街景,Street view

在设备设计上,以建筑带领各设备专业,共同优化方案,充分论证各系统选型利弊,保证方案落地品质。遇到关键系统选型,将会以专题形式,明确优缺点、成本及专业意见,服务客户做决策。在电梯设计上,为客户推演了20+方案运力模拟,全面平衡运载率和经济性 ,选取最优解方案。
In terms of equipment design, architecture leads each equipment specialty to jointly optimize the scheme, fully demonstrate the advantages and disadvantages of system selection, and ensure the implementation quality of the scheme. When it comes to the selection of key systems, special topics will be carried out to clarify the advantages/disadvantages, costs, and professional opinions, so as to serve clients in making decisions. In elevator design, the team conducted operational capacity simulations for over 20 schemes for clients, comprehensively balancing transport efficiency and economy to select the optimal solution.
▼三七互娱全球总部大厦效果图与实景图对比,Comparison between the renderings and the actual scenes

在幕墙专业、泛光专业上,担任项目招标过程技术审查与技术顾问,严格把控招标图纸与精细还原方案程度,严格审核实体落地样板,反复验证现场实施效果。在装配式专业上,以最优化成本要求,现场指导施工人员正确安装预制组件。在绿建三星上,绿色建筑初步得分评估 86 分,满足绿色建筑三星预认证要求。GWP团队以建筑专业为主体,统筹协调各细分专业,在图纸落地精细化制作中做到高质量,在精细化审核招采过程担任技术顾问,保证实施单位的质量,通过以上综合审核确保超高层优质的质量。
In the curtain wall and floodlighting disciplines, we serve as technical reviewers and consultants during the project bidding process, strictly controlling the degree to which bidding drawings accurately reproduce the detailed design schemes, thoroughly reviewing the physical prototypes for on-site implementation, and repeatedly verifying the on-site execution effects. In the prefabrication discipline, we provide on-site guidance to construction personnel for the correct installation of prefabricated components with the goal of optimizing costs. For the Three-Star Green Building certification, the preliminary evaluation score of the green building is 86 points, meeting the requirements for the Three-Star Green Building pre-certification. Taking architecture as the core, the GWP team coordinates all sub-disciplines to ensure high-quality in the refined production of drawing implementation. As a technical consultant in the refined review of procurement processes, it guarantees the quality of the implementing units. Through the above comprehensive reviews, GWP ensures the superior quality of super high-rise projects.
▼街景,Street view

效率优|Excellent Efficiency
项目从2020年10月项目投标,2021年3月项目启动会、方案定稿、方案深化、方案初步设计约四个月完成方案设计,并达到总包招标标准。在过程中GWP团队提前研究琶洲片区总师审批逻辑,总结快速审批方法论,多次提前对接和现场沟通,及时完成总师要求以促进加快流程。2021年8月全面交接施工图并同步进行项目动工仪式,综合地上、地下分两段报批开工的条件,提前介入支持基坑施工图,促进项目进度加快实现。通过高效的设计把控及合理的节点配合,在经历海珠区疫情影响进度两个月后,预计结构封顶及竣工时间比前期计划提前了约3个月,推进效率优于琶洲片区 90% 的项目。
The project progressed from bidding in October 2020 to the kickoff meeting in March 2021. The schematic design, finalization, deepening, and preliminary design were completed in approximately four months, meeting the general contracting bidding standards. During this process, the GWP team proactively studied the approval logic of the chief architect in the Pazhou area, summarized a methodology for rapid approval, and engaged in multiple early communications and on-site discussions to promptly fulfill the chief architect’s requirements and accelerate the process. In August 2021, the construction drawings were fully handed over, and the project groundbreaking ceremony was held simultaneously. By leveraging the conditions for separate approval and commencement of above-ground and underground phases, the team intervened early to support the 基坑 (foundation pit) construction drawings, accelerating project progress. Despite a two-month delay due to the epidemic in Haizhu District, the projected structural topping-out and completion time was advanced by approximately three months compared to the initial plan, with promotion efficiency surpassing 90% of projects in the Pazhou area.
▼三七互娱全球总部大厦,Overall of the project

成本优|Excellent Cost Control
在成本控制上,GWP团队会针对重点专项充分论证,以专业态度协助客户选型;对重点材料做出清晰对比,保证品质的前提下有效控制成本。同时充分了解规范要求,以最低成本满足相关规定。如在塔楼外框柱选型上,充分考虑材料用量、每层占用面积、施工工期、对装配式措施的影响后,综合推荐钢管混凝土柱为最优方案;地下对塔楼柱选型进行精细化成本控制,节省地下塔楼柱成本约 8%;地下室楼盖方案在综合考虑土方成本、材料成本、施工质量等因素后,推荐无梁楼盖方案。在幕墙方面由行业前三的优质幕墙单位施工,通过对各类材料优缺点及成本直观对比,提供专业意见,经过方案深化阶段的优化,主要系统及材料没有变化的情况下,节约投资超 2000 万等。
In terms of cost control, the GWP team thoroughly demonstrates key special projects and assists clients in selection with a professional attitude; it makes clear comparisons of key materials to effectively control costs while ensuring quality. At the same time, it fully understands regulatory requirements to meet relevant regulations at the lowest cost. For example, in the selection of the tower’s outer frame columns, after fully considering material consumption, floor area per floor, construction period, and impacts on prefabrication measures, concrete-filled steel tube columns are comprehensively recommended as the optimal solution; the refined cost control for the tower column selection in the underground area saves approximately 8% of the underground tower column costs; after comprehensively considering factors such as earthwork costs, material costs, and construction quality, the beamless floor slab scheme is recommended for the basement floor slab scheme. In terms of curtain walls, the construction is carried out by a top-three high-quality curtain wall unit in the industry. Through intuitive comparisons of the advantages/disadvantages and costs of various materials, professional opinions are provided. After optimization during the scheme deepening stage, while the main systems and materials remain unchanged, the investment is saved by over 20 million.
▼立面细部,Details of the facade

服务优|Excellent Service
GWP 团队为三七总部提供全方位优质服务,成立三七项目专项小组,全专业全方位响应各阶段需求;建立 24 小时沟通群,及时高效解决项目疑问及突发情况;遇客户疑问及突发情况,承诺 2-3 天内以专题报告的形式作出解答或给出解决方案。GWP团队通过全过程精心设计服务与协调,促进项目按计划高效率开展各环节工作,保障工期按计划加快进行。通过对效果细化设计严控成本,比客户预期计划成本节省将近10% 工程费用。并全程协调对接政府和总规划师,得到政府各部门(规划局、住建局、发改委、区政府、管委会等领导)一致好评,并获得客户书面感谢信致谢表扬。
The GWP team provides all-round high-quality services for the Sanqi Headquarters, establishing a special project team for the Sanqi project to fully respond to the needs of each phase across all disciplines; a 24-hour communication group is set up to efficiently resolve project queries and emergencies in a timely manner; in case of client questions or unexpected situations, it is committed to providing answers or solutions in the form of special reports within 2-3 days. Through meticulous design services and coordination throughout the entire process, the GWP team promotes the efficient implementation of all project links as planned, ensuring that the construction schedule is accelerated as planned. By strictly controlling costs through detailed design of effects, the project has saved nearly 10% of the engineering costs compared to the client’s expected plan. Additionally, the team has coordinated with the government and the chief planner throughout the process, winning unanimous praise from various government departments (leaders of the Planning Bureau, Housing and Urban-Rural Development Bureau, Development and Reform Commission, District Government, Management Committee, etc.) and receiving a written thank-you letter from the client for recognition and praise.
▼三七互娱全球总部大厦灯光效果,Lighting effect of the project

目前,三七互娱全球总部大厦已获得2022年意大利A Design Awards设计大奖、2021年美国MUSE建筑设计奖、2021年巴黎DNA设计大奖、2021年澳大利亚布里斯班设计奖、2021年中国REARD全球地产设计大奖等多项国内外知名建筑奖项。
At present, the Sanqi Mutual Entertainment Global Headquarters Building has won many well-known architectural awards at home and abroad, including the 2022 Italy A’ Design Awards, the 2021 US MUSE Architecture Design Award, the 2021 Paris DNA Design Award, the 2021 Brisbane Design Award in Australia, and the 2021 China REARD Global Real Estate Design Award.
▼三七互娱全球总部大厦灯光效果,Lighting effect of the project


总师审查贯穿整个方案报审阶段全程,GWP设计团队通过对总师意见的专业理解,合理化的提出可行的建议,综合平衡客户诉求,在能通过总师审查的原则下,尽可能为客户争取最大利益 ,顺利通过总师审查工规证阶段。建成后,三七互娱全球总部大厦将以其创新的外立面构造和内部空间为特色伫立在琶洲核心CBD区,传递出企业的使命和理念。
The review by the chief architect runs through the entire scheme submission stage. Through professional understanding of the chief architect’s opinions, the GWP design team reasonably puts forward feasible suggestions, comprehensively balances the client’s demands, and strives to maximize the client’s interests under the principle of passing the chief architect’s review, successfully completing the work regulation certificate review stage by the chief architect. After completion, the Sanqi Mutual Entertainment Global Headquarters Building will stand in the core CBD area of Pazhou with its innovative facade structure and internal space as characteristics, conveying the mission and philosophy of the enterprise.
▼总平面图,Site plan

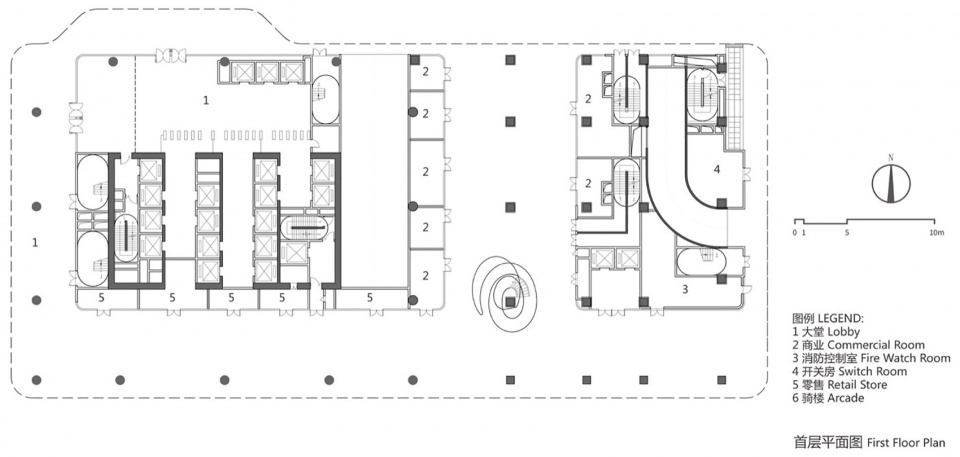
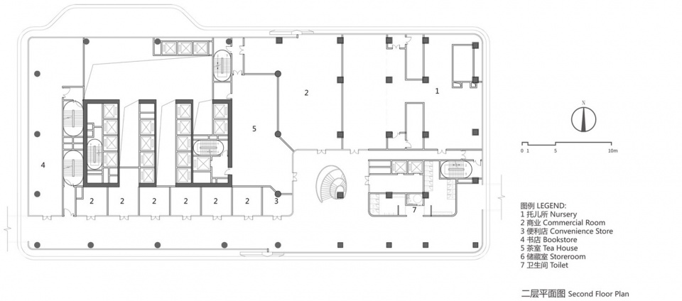
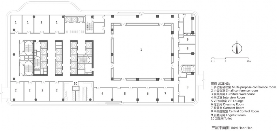
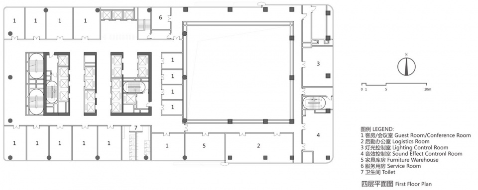
▼一至四层平面图,Plan 1F-4F




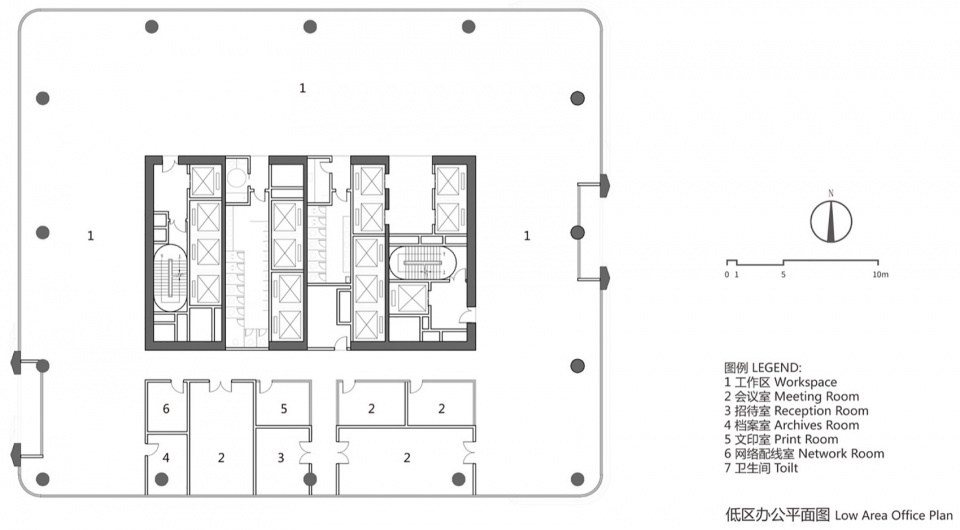
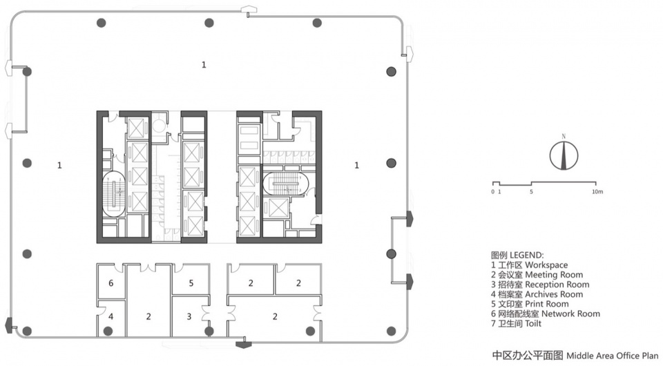
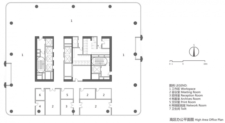
▼办公层平面图,Office floor plans



▼立面图,Elevations


▼剖面图,Section


Project Name: Sanqi Mutual Entertainment Global Headquarters Building
Location: Guangzhou, China
Site Area: 6,427 m²
Gross Floor Area: 95,315 m²
Project Status: Completed and in use
Architectural Design Firm: GWP Architects
Landscape Design Firm: Guangzhou S.P.I Design Co., Ltd.
Interior Design Firm: Matrix Design Group Co., Ltd.
Construction Drawing Design Firm: Guangzhou Design Institute Group
Structural and Prefabrication Design Firm: Guangzhou Rong Baisheng Architectural Structure Design Office
Mechanical & Electrical Design Firm: AECOM Consulting (Shenzhen) Co., Ltd.
Curtain Wall Design Firms: Wuhan Lingyun Architectural Decoration Engineering Co., Ltd. + Spex Building Technology (Guangzhou) Co., Ltd.
Green Building Design Firm: Guangdong Jianke Architectural Design Institute
Lighting Design Firm: Guangzhou MZD Lighting Development Co., Ltd.
Architectural Design Team:John Zhang (Principal Architect),
Tina Wang , Huang Xuebin














