长者住宅,荷兰 / i29 architects
在一处已有主宅的地块上,i29建筑事务所设计了一栋单层住宅,为年长家庭成员量身打造。这座面积约100平方米的新居,是一处经过深思熟虑的加建项目,在尺度与场地环境之间达成了良好平衡。其布局巧妙地营造出主宅与附属住宅之间的自然关系:两者既彼此紧密相连,又保持了必要的私密性。自建成以来,祖辈与儿孙三代得以更亲密地生活在一起,而这一关系的互惠性也日渐显现。建筑与室内设计在此被整合为一个统一的生活空间体量。
On the plot of an existing main residence, i29 architects designed a second, single-story home for senior residents. The 100 m² house is a carefully considered addition that respects the scale and context of the existing site. Its placement creates a natural relationship between the main and secondary dwellings, closely connected while respecting each other’s privacy. Since its completion, the grandparents have enjoyed being close to their children and grandchildren—and vice versa. Architecture and interior design are uniquely integrated into one cohesive living volume.
▼项目外观,exterior of the project


▼项目鸟瞰,aerial view of the project

轻盈通透的生活景观
A Light and Open Living Landscape
新住宅为单层结构,采用外露椽架屋顶设计。北侧布置卧室与浴室,形成一个静谧的生活区域。围绕中央庭院布置的大面积滑动门,提供了开阔的视野与通透的空间感。庭院将厨房、餐厅与客厅自然连接至户外区域,室内空间得以向外延伸。三扇可完全开启的滑动门实现了室内外的无缝转换,西侧的滑动木屏则带来必要的遮蔽与隐私保护。
The new building is a single-level home beneath an exposed-rafter roof. On the north side, the bedroom and bathroom form a tranquil zone. Large sliding doors around a centrally located patio offer extended sightlines and an airy, open feel. The patio connects the kitchen, dining, and living areas to an outdoor space that naturally extends the interior. Three fully retractable sliding doors allow a seamless transition between inside and outside, while sliding panels on the west side provide privacy and shelter.
▼外露的椽架屋顶设计,an exposed-rafter roof


▼三扇可完全开启的滑动门实现了室内外的无缝转换,three sliding doors allow a seamless transition between inside and outside


清晰明朗的建筑语言
Clear Architecture
整座住宅散发着沉静而自信的气质。打蜡处理的木质立面与现代感十足的屋顶构造形成鲜明对比,屋顶由夹芯板构成,并内置极简化的排水系统。屋檐向外延伸,形成有遮蔽的步道,也增强了室内的空间感。屋顶在室内空间中扮演着重要角色,它不仅作为视觉焦点统一各功能区域,还与周围的绿意环境形成对话。室内选材以浅灰色混凝土地面、浅色橡木墙面与涂白椽架天花为主,整体营造出静谧自然的氛围。
The house radiates calm confidence. Its waxed-wood façades support a contemporary roof made of sandwich panels with integrated, minimalist rain gutters. The roof extends beyond the structure, creating sheltered walkways and heightening the sense of space from within. Inside, the exposed roof plays a key role in the spatial experience, serving as a unifying element between the home’s functions and the surrounding greenery. The interior—featuring a light grey concrete floor, light oak walls, and a white-painted rafter ceiling—creates a serene and natural atmosphere.
▼木质立面与现代感十足的屋顶构造,wood facades support a contemporary roof


▼屋檐向外延伸形成有遮蔽的步道,the roof extends beyond the structure, creating sheltered walkways


▼室内营造出静谧自然的氛围,creates a serene and natural atmosphere


▼客厅空间,living room

▼屋顶在室内空间中扮演着重要角色,the exposed roof plays a key role in the spatial experience


▼厨房空间,kitchen space


统一与宁静
Unity and Tranquility
橡木墙面围合空间,支撑屋顶的同时强化了空间的水平感,也强调了挑高空间的开阔感。定制的橱柜与厨房家具沿着同一水平线展开,与建筑语言相得益彰。外墙材质在视觉上延续进室内,与定制家具融为一体,建筑与室内设计在此实现了真正的融合。
Inside, the oak wall cladding visually supports the roof and runs continuously around the space, emphasizing the high ceiling. Custom cabinetry and the kitchen follow the same horizontal lines, creating a harmonious whole. Exterior walls visually merge with custom interior elements, seamlessly intertwining architecture and interior design.
▼浅灰色混凝土地面、浅色橡木墙面与涂白椽架天花,light grey concrete floor, light oak walls, and a white-painted rafter ceiling


▼橡木墙面围合空间,the oak wall cladding runs continuously around the space


▼卫生间,bathroom


▼屋顶细部,roof detail


通过这座独立的长者住宅,i29展示出紧凑型多代同堂生活也能兼顾品质、舒适与空间丰富性。项目以简洁、清晰和以人为本的尺度,呈现出一种面向未来的住宅范式。
With this independent senior residence, i29 demonstrates that compact multigenerational living can retain—and even enhance—quality, comfort, and spatial richness. The result is a future-oriented home defined by simplicity, clarity, and human scale.
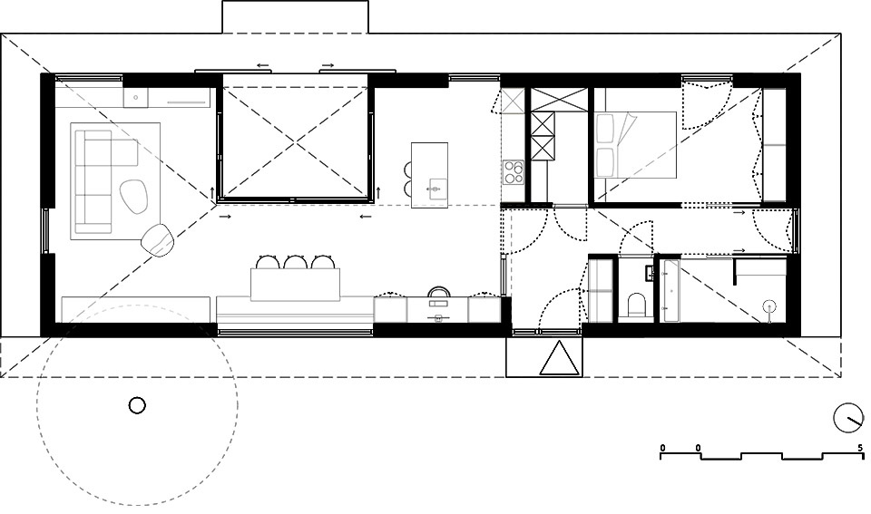
▼平面图,plan

▼立面图,elevation




Architecture & Interior Design: i29 architects
Structural engineer: Vissers & Vissers
Contractor: Heijboer Bouw & Montage
Interior builder: Stooff
Photo’s: Ewout Huibers














