M住宅,葡萄牙 / Silverline
本项目是一栋两层独立住宅的建筑设计。基地自街道至中段有约3米的高差。为应对这一挑战,并充分利用地形优势,设计采用“错层”布局策略。朝向街道的立面呈现为单层体量,而建筑后段则分布于两个不同标高的楼层。因此,行人与车辆的出入口均设于街平层,通往上层的半层为私密区,下层半层为社交区,标高基本贴合原始地面高度。
The project consists of the design of a two-story single-family house. The plot has a significant slope of approximately 3 meters between the street level and its midpoint. To address this challenge while also taking advantage of the site’s potential, a “split-level” system was adopted. The façade facing the public road appears as a single-story volume, while the rear part of the house is developed across two distinct levels. Thus, the pedestrian and vehicular entrances are positioned at the street level, leading to an upper half-floor where the private areas are located, and to a lower half-floor designated for social areas, situated approximately at the existing ground level.
▼住宅外观,exterior of the house

▼住宅外观,exterior of the house



尽管下层被标记为“-1层”,但由于其东、南、西三面均设有立面开口,所有居住空间均位于地表之上,确保了良好的自然采光与通风条件。这一设计方案顺应地势,将建筑自然地融入现有地形之中,达成了与场地的有机融合。
Although this lower level is designated as floor -1, none of the living areas are underground, as the entire façade faces east, south, and west, ensuring natural light and ventilation. This solution takes advantage of the steep slope of the terrain, integrating the construction harmoniously into the existing topography.
▼泳池鸟瞰,aerial view of the pool

▼建筑与场地的有机融合,
the construction harmoniously into the existing topography


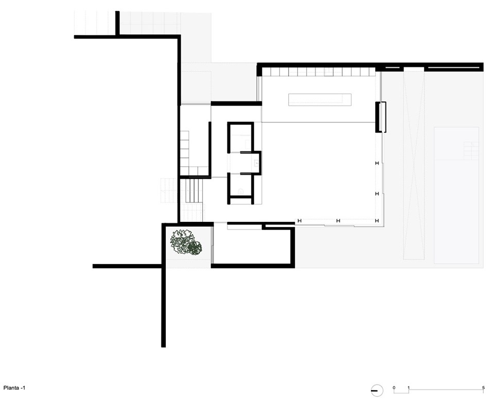
项目的功能布局分为三个主要区块。进入住宅后,首先是入口玄关,可通往所有功能空间。该层还设有可容纳三辆车的带顶车库、设备技术间,以及一个带独立卫浴的客房/书房空间。
The programmatic organization of the project is structured into three distinct areas. Upon entering the house, there is a hall from which all residential spaces are distributed. On the same level as the entrance, there is also access to a covered garage with capacity for three vehicles, a technical area, and a guest room/home office with a private bathroom.
▼入口玄关,entrance lobby


▼楼梯走廊,staircase corridor

▼楼梯灯光细部,staircase lighting detail

私密区域包括一个主卧套房及两间次卧套房,每间均配有独立卫浴、更衣间、卧室及阳台。整个上层,包括车库门在内,外立面均采用实木格栅覆盖,统一的外观营造出温暖宜人的氛围。
The private areas include a master suite and two smaller suites, all equipped with bathrooms, walk-in closets, bedrooms, and balconies. The entire upper floor, including the garage doors, is clad in solid wood slats, providing a uniform look and creating a warmer, more welcoming atmosphere.
▼主卧套房,a master suite


▼每间均配有独立卫浴、更衣间及阳台,
all equipped with bathrooms, walk-in closets, bedrooms, and balconies



▼实木格栅包裹的外立面,facade is clad in solid wood slats



▼可开启的实木格栅,openable solid wood slats

下层则完全用于社交与休闲功能,并通过大面积玻璃开口实现与户外空间的直接连通。该层包含起居室、厨房、洗衣房、客用卫生间及一个小型娱乐室。两处带顶露台加强了室内外的视觉与功能连续性,同时连接至花园与泳池。
The lower floor is dedicated to all leisure areas, with direct access to the outdoors through large glazed openings. On this floor are the living room, kitchen, laundry room, guest bathroom, and a small game room. The large openings create visual and functional continuity between the interior and exterior spaces, through two covered terraces that offer access to a garden and a swimming pool.
▼下层空间用于社交与休闲功能,the lower floor is dedicated to all leisure areas

▼大面积落地窗实现与户外空间的直接连通,
large openings create visual and functional continuity between the interior and exterior spaces


▼餐厅区域,restaurant

▼起居室、餐厅与厨房连为一体,
a single, continuous space, integrating the living room, dining room, and kitchen


社交空间被设想为一个开放的整体,起居室、餐厅与厨房连为一体。不同功能区之间过渡自然,设计通过木质家具与微水泥地面等统一材料强化空间的整体感与通透感。起居室与厨房之间设置了两扇木质推拉门,可根据使用需求调节空间的开放性与私密性。厨房内部亦采用隐藏式面板系统,关闭时可遮蔽橱柜、台面、电器与厨具,进一步凸显空间的多功能特质。
The social areas were conceived as a single, continuous space, integrating the living room, dining room, and kitchen. The transition between these areas is subtle, reinforced by the use of uniform materials, such as wood for the furniture and microcement for the flooring, promoting a sense of continuity and spaciousness. The transition between the living room and kitchen can be closed off using two wooden panels, allowing the level of openness and privacy to be adjusted as needed. The kitchen was also designed with a panel system that, when closed, conceals all the functional elements of the space—cabinets, countertops, appliances, and utensils—reinforcing the multifunctional character of the environment.
▼厨房区域,kitchen


▼厨房细部,kitchen detail

该住宅项目以当代设计手法为基础,融入天然材料与建筑策略,强调室内外空间的渗透与融合。设计重点在于营造流畅、开敞的空间体验,同时保障舒适与实用的居住环境。体量构成通过混凝土、木材与石材的组合,塑造出一种坚实而优雅的建筑气质。
This residential project is characterized by a contemporary approach, integrating natural materials and architectural solutions that favor the blending of indoor and outdoor spaces. The house design emphasizes spaciousness and flow, providing a welcoming and functional atmosphere. The volumetric composition stands out for its interplay of materials, combining exposed concrete, wood, and stone, which give the construction a robust yet elegant character.
▼塑造出一种坚实而优雅的建筑气质,give the construction a robust yet elegant character


▼夜景,night view


▼场地平面图,site plan

▼一层平面图,-1F floor plan

▼二层平面图,1F floor plan

▼立面图,elevation

▼剖面图,section
Project name: Casa M
Architecture Office: Silverline
Main Architect: Jorge Prata e Eduardo Soares
Collaboration: Beatriz Ferreira, Francisco Castilho, Nelson Amado
Website: http://www.silver-line.pt
E-mail: geral@silver-line.pt
Facebook:
Instagram: https://www.instagram.com/silverline_architecture/
Location: Avenida Vasco da Gama, Arcozelo, Vila Nova de Gaia.
Year of conclusion : 2024
Total area: 406.50m2
Builder: Construções Objetivo
inspection: Jorge Alexandre Amaral Prata
Engineering: Engitriz
Acoustic Design: Engitriz
Fluids Engineering : Engitriz
Thermal Engineering: Engitriz
Architectural photographer: Ivo Tavares Studio
Website :http://www.ivotavares.net
Facebook: http://www.facebook.com/ivotavaresstudio
Instagram: http://www.instagram.com/ivotavaresstudio














