森林泳池,捷克 / Mjölk architekti + Marie Vondráková
建造过程
Construction
在两条溪流交汇处,靠近利贝雷茨著名的别墅区 Lidové sady,有一个拥有深厚沐浴传统的地方。那里的水冰冷如雪,每个本地人都知道这片藏于百年云杉林下的美丽秘境——森林泳池(Lesní koupaliště)。几年前,我们决定从市政府手中租赁这个地方,并在其旁新建一座服务建筑。如今,我站在泳池边,望着那座如蕾丝般勾勒森林边界的洁白新建筑,等待着它的第一批访客,不禁想到——这一切都值得。
At the confluence of two streams, near Lidové sady—Liberec’s stately villa district—lies a place with a deep bathing tradition. The water there is as cold as ice. Every local knows this beauty hidden beneath century-old spruces as Lesní koupaliště—the Forest Pool. A few years ago, we decided to lease it from the city and build a brand-new facilities building nearby. Now, I’m standing on the edge of the pool, looking at the snow-white building that lines the forest’s edge like lace, waiting for its first visitors, and thinking—it was all worth it.
▼泳池鸟瞰,aerial view of the pool


当我们接手森林泳池的运营时,首要问题便是:该做什么,又该如何着手。当时我们一无资金,唯一的出路就是靠志愿者劳动改善设施。我们便拿起电钻、锯子,开始动手:用模板板和木条搭起简易的餐饮台,为其重新粉刷,换上新设备,并在屋顶立起一块写有“啤酒–苏打”的大招牌,配上一个大大的爱心,成了泳池改造的新象征。紧接着我们着手设计方案,并四处筹措资金。项目大部分预算来自市民参与预算计划,部分则由私人捐助者支持。
When we took over the management of the Forest Pool, we immediately began figuring out what to do and how. We started with zero funding, so the only way to make improvements was through volunteer work. So we grabbed drills, saws—and got to it. Using construction boards and slats, we cobbled together makeshift furniture for the refreshment stand, which received a light facelift. It got a white paint job, new equipment, and a sign reading “beer–soda” with a large heart on the roof, which became a symbol of the area’s transformation. We began working on a design study and sourcing funding. A large part of the budget came from the city’s participatory budgeting, but significant support also came from private donors.
▼环境鸟瞰,aerial view of the environment

▼泳池鸟瞰,aerial view of the pool

2022年5月,我们拿到了建设许可。首批资金被用于地基修复与污水处理系统改造。一年后,主体建筑开始施工,但这时资金已日渐紧张。我们尽可能靠自己动手,或接受来自私人支持者的物资捐赠。最终,我们成功与市政府达成一次性财政资助协议,使得整栋建筑得以在2025年春季全面对公众开放。如今,这座新建筑将服务于利贝雷茨市民,在这个户外游泳场所稀缺的城市中提供珍贵去处。
Then came the building permit, granted in May 2022. The first funds went to repairing the foundations and the wastewater treatment system. A year later, work began on the main structure—though by then, funds were running low. We did as much as we could with our own hands or with donations from private supporters. Eventually, we negotiated a one-time financial contribution from the city to help finish the building and open full facilities in spring 2025. It worked—this new building will now serve the public, which has few places to swim in Liberec.
▼建筑外观,exterior of the building



建筑设计
Architecture
这座新建筑并非“奢华公共支出”的展厅。恰恰相反——在极其有限的预算下,它是一个几乎无法在传统公共流程中实现的项目成果。我们的贡献不仅是体力劳动,更包括从项目设计到组织管理的全部工作。这座新建筑并非“奢华公共支出”的展厅。恰恰相反——在极其有限的预算下,它是一个几乎无法在传统公共流程中实现的项目成果。我们的贡献不仅是体力劳动,更包括从项目设计到组织管理的全部工作。
▼轴测图,axonometric

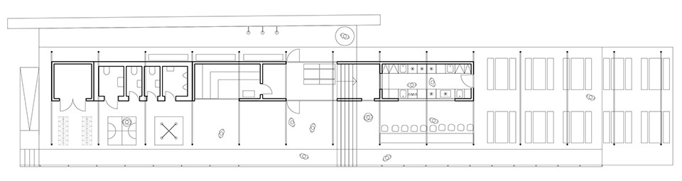
The new building is not a showcase for lavish public spending. With minimal cost, we managed to build a public facility that would’ve been almost impossible without civic initiative. Our contribution wasn’t just physical labor but also all the project and organizational work such a building entails. The resulting design focused on ease of construction, phaseability, and financial accessibility. The timber structure, following the two height levels of the original concrete slab, provides the core functional spaces of the building. The combined system of CLT panels and lightweight timber framing incorporates storage, toilets, a sauna with a lounge, and a bistro. The steel roof structure serves as both an umbrella and parasol—sheltering the building and visitors from bad weather. Under the roof are showers, changing rooms, and lockers.
▼增设的小型简餐亭及卫生间,small refreshment stand and chemical toilets were added


▼增设的小型简餐亭,small refreshment stand


▼轻盈的结构,light structure


▼供人们游泳后休息的平台,a platform for people to rest after swimming


▼营造自然温和的氛围,create a natural and gentle atmosphere


历史回顾
History
关于森林泳池的最早记载可追溯至二战前,当时由“Ruppersdorf森林浴协会(Waldbad in Ruppersdorf)”发起。1934年,该协会正式申请建立浴场。据资料显示,建造工程由Preibisch & Reinelt公司与Ruprechtice 的园艺师 Josef Peschel 共同完成,时间大致在1937至1940年间。泳池在战争期间尚未竣工,一方面被军事单位用作训练场,另一方面仍为公众开放。
The first records of the Forest Pool date back to before World War II and are connected to the “Waldbad in Ruppersdorf” association. In 1934, the association applied for approval to establish a bathing area. According to available sources, construction was carried out by the firm Preibisch & Reinelt together with gardener Josef Peschel from Ruprechtice, between 1937 and 1940. The swimming pool was under construction during the war, used by military units for training, but also remained a place of public recreation.
▼夜景,night view

战后工程继续推进:修整了通往泳池的道路,建设了停车场、更衣室和餐厅等附属设施。早期设施位于道路另一侧,而非如今的位置。许多本地人记得那座建筑——它于2010年被火灾毁灭。据说,泳池上方曾建有热水储罐和儿童戏水池。2007年,这片区域关闭,火灾后只剩原有混凝土基座,长期荒废至2016年。
After the war, completion resumed: the access road was improved, a parking lot built, and changing rooms and a restaurant added. Back then, the facilities stood on the opposite side from where they are now, adjacent to the road. The now-gone building, remembered by many and destroyed by fire in 2010, was added twenty years later. Interestingly, there was once a water heating tank and a children’s wading pool above the site. The area was closed in 2007, and after the fire, only the original concrete slab remained. It continued to decay until 2016, when revitalization began with pool reconstruction and landscape improvements.
▼夜景,night view

2016年,泳池开始重建,先后进行了水体修复与景观更新,2018年重新对外开放。遗憾的是,开放后的前两年极度干旱,影响了水质和水量。同期我们增设了小型简餐亭和移动卫生间。2020年春季,由建筑事务所Mjölk architekti发起的“森林泳池协会”正式接管运营,开启新篇章。如今,全新的服务建筑正式启用,新增了桑拿,为寒冷季节提供舒适体验。接下来还计划增设儿童戏水区、阶梯式观景台、新的运动设施等,未来仍充满期待。
The pool reopened to the public in 2018. Unfortunately, the first two years were extremely dry, affecting the water’s quality and volume. Alongside the reopening, a small refreshment stand and chemical toilets were added. In spring 2020, the association Lesní koupaliště, founded by Mjölk architekti, took over, marking a new chapter. We’ve now opened a new building, providing essential facilities and a sauna for colder months. Plans include a children’s water feature, stepped seating, new sports facilities, and much more. The work isn’t done—there’s still plenty to look forward to.
▼夜景,night view

▼场地平面,site plan

▼平面图,plan

▼立面图,elevation


▼剖面图,section


Studio: Mjölk architekti
Marie Vondráková
Contact E-mail: info@mjolk.cz
Website: http://www.mjolk.cz
Social media: http://www.instagram.com/mjolk_architekti
http://www.facebook.com/Mjolk-architekti-247812933403
Studio address: Pražská 376/36a, 460 01 Liberec, Czech Republic
Project location: U Koupaliště 29, Liberec
Project country: Czech Republic
Completion year: 2025
Built-up area: 320 m²
Client: The City of Liberec, Městské lesy Liberec
Project website: http://www.lesnikoupaliste.cz
Photographer: BoysPlayNice, http://www.boysplaynice.com, info@boysplaynice.com
Collaborators and suppliers: Main project engineer: Mjölking, http://www.mjolking.cz
Project coordination by the city: Jiří Janďourek [město Liberec], Jiří Bliml [Městské lesy Liberec]
General contractor: 1ku1, http://www.1ku1.cz
Construction supervision: Milan Šulc [REAL engineering], http://www.realengineering.cz
Lighting supplier: Booba, http://www.booba.cz
Steel structures: Houška OK, http://www.houskaok.cz
Windows and doors: Marma Liberec, http://www.marma.cz
Heating: Topeni plus, http://www.topeniplus.cz














