Boneco社区改造,葡萄牙 / André David Arquitecto
该项目干预地点被称为“Bairro do Boneco”,属于铁路工人住宅区的一部分,其起源可追溯至约1920年。整个街区呈矩形庭院式布局,类似当时流行的工人村形式,共包含18户住宅,分布在两排联排住宅中。北侧为两层住宅楼,设有独立单元;南侧则为单层住宅。
The intervention site is known as the “Bairro do Boneco”, part of the group of Railway Workers’ Neighbourhoods, with its origins dating back approximately to the year 1920. Designed in the shape of a rectangular courtyard, similar to popular workers’ villages, it comprises a total of 18 dwellings divided into two terraced blocks. To the north, a two-storey block with independent units, and to the south, single-storey houses.
▼项目鸟瞰,aerial view of the project

▼项目概览,overview of the project



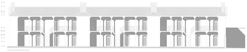
两层住宅楼共有12户住宅,分布于上下两层。每户住宅由四个相同大小的房间串联组成,配有一个位于户外的卫生间,总建筑面积约为52.60平方米。每户还拥有一个小型的室外庭院,并设有独立出入口。上层住宅通过建筑外侧的楼梯与约1米宽的外廊进入。
The two-storey building features a set of 12 dwellings distributed across the floors. Each consists of four rooms of equal size, connected to each other, and an external bathroom, totaling an approximate area of 52.60 m² per dwelling. Each unit also has a small outdoor area (yard) with independent access. Access to the upper floor is via exterior stairs and galleries approximately 1.00m wide.
▼原两层住宅楼,the original two-storey building


▼建筑立面,the original building facade


本次提案旨在设立国家铁路文献中心、铁路博物馆中心和科学中心,将这一居住条件与卫生状况均不理想的工人住宅街区,转变为适宜的文化功能片区。项目内容包括对该建筑群的修复与价值提升,其本身也是城市的重要历史遗产之一。
The proposal involves the creation of the National Railway Documentation Centre, a Museum Centre and a Science Centre, thus transforming a residential neighbourhood that does not meet the standards for good habitability and sanitation into a suitable cultural district. This includes the rehabilitation and enhancement of the built ensemble, which constitutes a historic heritage of the city.
▼将住宅区改造成文化功能片区,
Transforming a residential neighbourhood into a suitable cultural district


▼夕阳下的建筑,building under sunset

整体街区由两栋相对而建的建筑组成,中间为矩形庭院。庭院中设有由建筑师阿尔瓦罗·西扎创作的瓷砖墙画,描绘了Entroncamento及“Bairro do Boneco”的历史。
▼瓷砖壁画,tile panel

Overall, the neighbourhood consists of two facing buildings separated by a rectangular courtyard, with a tile panel by the architect Álvaro Siza depicting the history of Entroncamento and the Bairro do Boneco.
▼中间的矩形庭院,a rectangular courtyard


▼由建筑师阿尔瓦罗·西扎创作的瓷砖墙画,a tile panel by the architect Álvaro Siza



▼由建筑师阿尔瓦罗·西扎创作的瓷砖墙画,
a tile panel by the architect Álvaro Siza

其中一栋两层建筑将用于设立国家铁路文献中心(一层)以及一个展览空间(位于二层)。单层建筑则将作为科学中心使用。
One of the buildings, with two floors, will house the National Railway Documentation Centre on the ground floor, and an exhibition gallery/space on the upper floor. The Science Centre will be located in the single-storey building.
▼用于国家铁路文献中心及展览空间,
house the National Railway Documentation Centre and an exhibition gallery


国家铁路文献中心将设于两层建筑的一层,并将在与国家铁路博物馆之间的后庭区域新增配套体量,以实现文献中心与博物馆之间的空间整合,并使文献中心可通过博物馆内部直接进入,从而形成两者之间的协同关系。
The National Railway Documentation Centre will be installed on the ground floor, with a supporting volume extending into the rear yards between the National Railway Museum and the two-storey building. The aim is to establish a symbiosis between the Documentation Centre and the Museum, allowing the Documentation Centre to also be accessed via the Museum.
▼入口,entrance


▼文献中心内部空间,the interior space of The National Railway Documentation Centre



▼内部空间的充足光照,fully lit interior space


▼文献中心内部空间,
the interior space of The National Railway Documentation Centre


▼科学中心内部空间,the interior space of Science Centre


▼科学中心内部空间,the interior space of Science Centre


▼细部,detail

本次改造干预的核心原则在于根据场地条件与项目的功能需求,以及服务类建筑所适用的法律规范,调整并优化建筑空间。同时,设计也注重对街区历史遗产价值元素的识别与保护,力求保留其原有的形态特征与建筑风貌。
The principles of the intervention focused on adapting and aligning the complex with the physical and functional requirements of the program, as well as the applicable legal regulations for a service-based built ensemble. Efforts were also made to incorporate elements of heritage value and preserve the morphological and architectural characteristics that define the site.
▼夕阳下的建筑,building under sunset


▼项目模型,project model


▼场地周围环境平面,surrounding plan

▼一层平面,ground floor plan

▼二层平面,first floor plan

▼屋顶平面,roof plan

▼博物馆正立面,Front Elevation – Museum

▼博物馆后部立面,Back elevation – Museum

▼科学中心立面,elevation – C.C. Viva


▼庭院立面,courtyard elevation


▼剖面,section


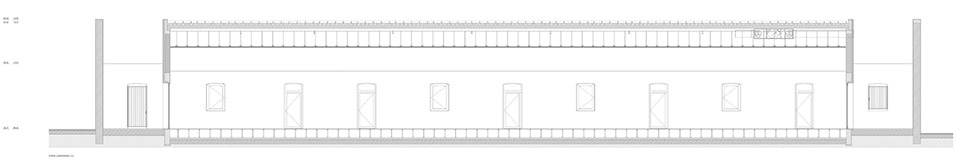
▼博物馆剖面,Cross-section CT1

▼科学中心剖面,Cross-section CT2

▼结构剖面,construction section


▼细部,Vertical Detail


Project name: Reabilitação Urbana do Bairro do Boneco
Architecture Office: Adarq – André David Arquitecto
Main Architect: André David
Collaboration: Daniel Duarte , Andreia Teixeira, Jessica Duarte, Agnieszka Izabela
Tile Panel Design : Álvaro Siza
Website: www.adarq.netE-mail: geral@adarq.net
Facebook: https://www.facebook.com/atelier.adarq
Instagram: https://www.instagram.com/atelier.adarq/
Location: Entroncamento – Portugal
Year of conclusion : 2024
Total area: 2 960.00 m2
Builder: CANAS, Engenharia e Construção, S.A.
inspection: Sandra Ferreira, Guilherme Monteiro
Engineering: Gabicrel – José Monteiro
Fluids Engineering : Gabicrel – José Monteiro
Architectural photographer: Ivo Tavares Studio
Website : http://www.ivotavares.net
Facebook: http://www.facebook.com/ivotavaresstudio
Instagram: http://www.instagram.com/ivotavaresstudio














