JW Marriott Crete度假酒店与水疗中心 / Block722
Block722设计的JW Marriott Crete度假酒店与水疗中心,为沉浸式、可持续的高端款待体验树立了全新标杆。项目坐落于阿克拉·佩莱格里(Akra Pelegri)的岩石山坡之上,可俯瞰苏达湾的壮丽景色。这座五星级度假村与原始海岸风光完美契合,并从当地建筑语言和岛屿慢生活文化中汲取灵感,体现了对在地与传统的深刻尊重,展现了一种安静而可持续的奢华理念。
The new Marriott hotel in Marathi, Crete, designed by Block722, sets a new benchmark for immersive, environmentally driven hospitality. Set on the rocky hillside of Akra Pelegri with uninterrupted views over Souda Bay, the 5-star resort sits in perfect synergy with the wild coastal landscape and draws deep inspiration from the local architectural language and the island’s slow-living ethos. It represents a brand of quiet, sustainable luxury that scrupulously honours both place and tradition.
▼项目鸟瞰,aerial view of the resort

▼项目概览,overall of the project

与环境共生的酒店设计Hospitality that harmonises with its environment
度假村占地59,700平方米,共设有160间客房和套房,可接待约450位宾客,同时配备丰富的共享设施。一到达,宾客便沉浸其中:入口广场种植本地灌木,营造温暖氛围。步入场地,海景逐渐展开——这一时刻的呈现经过精心策划,使建筑与自然景观的关系逐步展开。
Stretching over the 59,700 m2 terraced site, the resort comprises 160 rooms and suites providing accommodation for up to 450 guests, alongside generous shared amenities. Immersion begins immediately on arrival, through an spacious square planted with native shrubs that impart a warm welcome. With each step the sea slowly reveals itself, a moment that is carefully orchestrated to allow a progressive unveiling of both the architectural composition and the natural surroundings.
▼区位,location

▼场地顶视图,top view of the site


植物配置延伸至室内大厅,自然光通过天窗洒入,唤活室内花园,强化空间与自然的连接。接待区与酒吧、主餐厅和JW市场共同组成酒店的核心公区,通过一系列通透的大型凉棚,开放式地面朝大海,形成内外过渡空间。
Planting continues inside the lobby, becoming an organic part of the interior, framing the reception seating, while natural light enters from above through a skylight, activating the internal garden and enhancing the connection to the surrounding landscape. The reception area is the first of a series of interconnected indoor spaces, furnished in calm, earthy tones, and followed by the bar, the main restaurant and the JW Market. This is the communal core of the resort, arranged as a sequence of clean geometric volumes, that open up towards the sea through a series of grand pergolas, acting as a filter between interior and exterior space.
▼外观,exterior view

▼凉棚与泳池,pergolas and pool


共享空间营造冥想般的宁静氛围Shared spaces that invoke meditative calm
这些凉棚以简约的立柱支撑,借鉴古希腊多立克柱式风格,顶部采用天然材料构建的遮阳结构,营造变幻多样的光影效果。裸露的天然岩石与简洁的几何建筑线条相辅相成,增强了触感体验,并强化人们对自然的感知。平台上设有沉入式座位岛,通过穿越水景的小径抵达,为宾客带来沉静体验。
Forming the transition from indoors to out, the pergolas feature simple supports that recall ancient Doric columns while dense shading elements made of natural materials filter the Mediterranean sunlight, creating a constantly shifting interplay of light and shadow. These elements create ever-changing patterns of light and shadow across the verandas and the reflective pool of water that wraps around them. Here, natural materials, including raw, uncut boulders of rock work alongside the clean, geometric lines of the architecture to enhance tactility and connect guests to the elemental nature of their surroundings. The full mediative quality of the environment can be enjoyed in the islands of sunken seating reached by pathways across the water.
▼入口立面,facade of the entrance

其他设施——包括餐厅、泳池、康养中心、遮荫休憩区等——沿地形缓缓铺开,位于靠近海岸的低处,使得公区与私密区域之间自然过渡,营造层次分明、亲近自然的空间体验。
Further amenities, including restaurants, shaded seating areas, pools and wellness centre are harmoniously distributed across the lower part of the site, nestled between the rugged rocky terrain and the coastline. This spatial composition allows for gentle natural transitions between communal and private areas as the guest ascends towards accommodation units, which stretch over the higher elevations of the landscape.
▼接待台,reception area

▼等待/休闲区,waiting area and leisure area

▼酒吧,bar

▼卡座区,booth area

▼休闲区,leisure area

▼spa区域,spa

▼室内泳池,indoor pool

客房与自然的和谐共处Rooms that are at one with nature
客房采用一至两层几何体构成,顺应自然坡度精心布置,呈现出剧场式的排布方式与亲人尺度,确保开阔的景观视野、良好的私密性和与地形的完美融合。
Designed into a series of one and two-level geometric structures that are carefully positioned on the natural slope of the terrain, the rooms and suites sit in perfect harmony with the landscape, while the amphitheatrical placement and human-scale architecture ensure uninterrupted views, privacy, and a seamless integration into the surroundings.
▼客房,guest room


▼浴室,bathroom

每个房间皆为半开放式生活单元,室内外界限模糊。面朝大海的私家泳池仿佛漂浮于自然之中,形成微气候降温效果;遮阳露台和绿色屋顶更使地貌成为宾客生活节奏的一部分。
Each room is conceived as an integrated living environment that dissolves the boundaries between interior and exterior space. Privacy is assured, while optimal orientation guarantees captivating sea views. Private pools appear to float within the landscape, creating natural cooling microclimates, while shaded terraces and planted rooftops allow the natural terrain to become an essential part of the guests’ daily rhythm.
▼泳池,pool


弘扬本地工艺、材料与环境Celebrating local craftsmanship, materials and environment
Block722通过与当地工匠和材料供应商密切合作,将克里特岛世代相传的建筑技艺融入项目DNA之中。墙体石材取自现场开采,混凝土骨料亦源于本地土壤,使得建筑从字面和意义上“源于土地”。
Block722’s vision of a harmonious marriage between contemporary architecture and ancient land is achieved through close collaboration with local suppliers, artisans, and manufacturers for nearly all material, making and construction needs. Generations of local knowledge and craftsmanship are directly embedded into the project’s DNA.
▼自然与建筑,nature and architecture

整体选材充分回应场地环境。石墙所用石材取自场地开挖,混凝土构件则融合了当地土壤中的骨料——Marathi度假酒店几乎是由它所扎根的这片土地直接孕育而成。家具与软装所采用的天然水洗麻布、陶土砖、陶器、藤编和木材,其色彩、形态与质感亦直接源自周边地貌,使室内空间如同自然的延伸。
The material palette throughout reflects the immediate environment. Stone walls are constructed using material harvested directly from on-site excavations while concrete elements incorporate aggregates sourced from the same earth: The Marathi is quite literally born from its landscape. The colours, forms and textures of the fixtures and furnishings – made from raw, washed linen, terracotta tiling, earthenware, rattan and wood – are, meanwhile, drawn directly from the surrounding landscape, to create interiors that feel like natural extensions of the outdoors.
▼建筑融入山坡,architecture blend into the hill

以再生性设计致敬土地Honouring the land with regenerative design
对可持续发展与土地守护的深切承诺,贯穿于Marathi项目的每一个设计决策。Block722始终以尊重场地的策略,将建筑量体有机嵌入海岸地形之中,并在施工完成后恢复原有地貌。项目在全过程中与当地材料供应商、工匠和施工团队紧密合作,使建筑与在地环境建立深层对话,赋予项目以真实的质感与物质厚度。选材策略直接取自自然:石墙用地块上就地开采的石材砌筑,混凝土同样采用本地土壤中的骨料,整座酒店可谓“取之于地,还之于地”。家具与装饰材料——从原麻布、陶土砖、陶瓷器皿到编织纤维与木材——均呼应周边环境的色彩、形式与肌理,让室内空间自然而然地延伸至户外。
A profound commitment to sustainability and land stewardship has underpinned every design decision at the Marathi. Block722’s site-sensitive strategy was always to organically embed the built volumes into the coastal landscape, preserving the original topography through post-construction restoration. The architecture engages meaningfully with its place through close collaboration with local suppliers, artisans, and builders at every stage of the process, lending the project authenticity and material depth. The material palette is drawn directly from the landscape. Stone walls are built using material quarried on-site, while aggregates from the same soil are used in the concrete area, the hotel quite literally emerges from the land that hosts it. The colours, forms, and textures of the furnishings and materials — including raw linen, terracotta, ceramics, woven fibres, and timber — shape interiors that feel like a natural extension of the outdoors.
▼材料呼应了周边环境的色彩、形式与肌理,the material echoes the color, form and texture of the surrounding environment

植物策略同样关键:种植的全部为本地耐旱物种,仅需极少灌溉,不仅保护了当地生态,还增强了生物多样性。建筑体量始终与地形协同而非对抗,在布局中顺势而为,尽量减少对自然的干预。被动式可持续策略包括优化朝向、实现自然交叉通风以及利用深型凉棚提供遮阳,从而改善热舒适度并降低能耗;主动式策略则包括安装光伏板发电、自建水井取水,以及屋顶绿化系统——这些绿化屋顶不仅提升热绝缘性能,也让建筑视觉上更好地融入地貌。各系统协同工作,最大程度减少环境影响,同时为当地生态系统的健康发展提供积极支持。
The planting strategy was key. Focusing exclusively on native, drought-tolerant species with minimal irrigation requirements, it supports local biodiversity, preserving and enhancing the existing flora. At all times, the built elements have been carefully integrated to work with, rather than against, the natural terrain. Passive environmental approaches include optimal solar orientation, natural cross-ventilation, and deep pergolas, all of which provide effective shading, improving thermal comfort and reducing energy use. Active approaches include renewable energy production through the inclusion of photovoltaic panels, water sourcing through an on-site well, and green roofs that improve thermal insulation while visually blending buildings into the landscape. These systems work together to minimize the project’s environmental impact while creating a destination that actively enhances the health of its ecosystem.
▼项目鸟瞰,aerial view of the resort

责任与复原并重的酒店新范式A blueprint for responsible, restorative hospitality
在这片气势磅礴的克里特海岸线上,建设与保护并行不悖,Marathi度假酒店以敏感且可持续的方式将当代复原型款待空间嵌入地中海最珍贵的自然景观中。该项目生动诠释了建筑对“在地”精神的礼赞,也展现了空间体验的深刻转化力——它不仅令宾客感受到何为奢华,更引领他们沉浸于岛屿生活的深层节奏之中。
Here on this dramatic Cretan coastline, construction and conservation have come together to embed contemporary, restorative hospitality sensitively and sustainably into one of the Mediterranean’s most treasured landscapes. The resort stands as a living example to architecture’s power to honour place while creating transformative experiences -ones that connect guests not only to the idea of luxury, but to the deeper rhythms of island life.
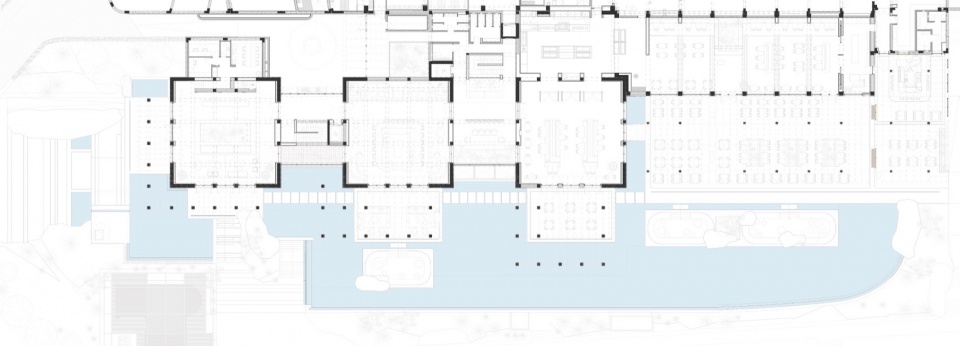
▼总平面图,master plan

▼主建筑地下平面图,main building underground floor plan

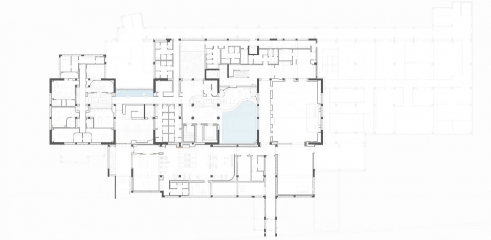
▼主建筑底层平面图,main building ground floor plan

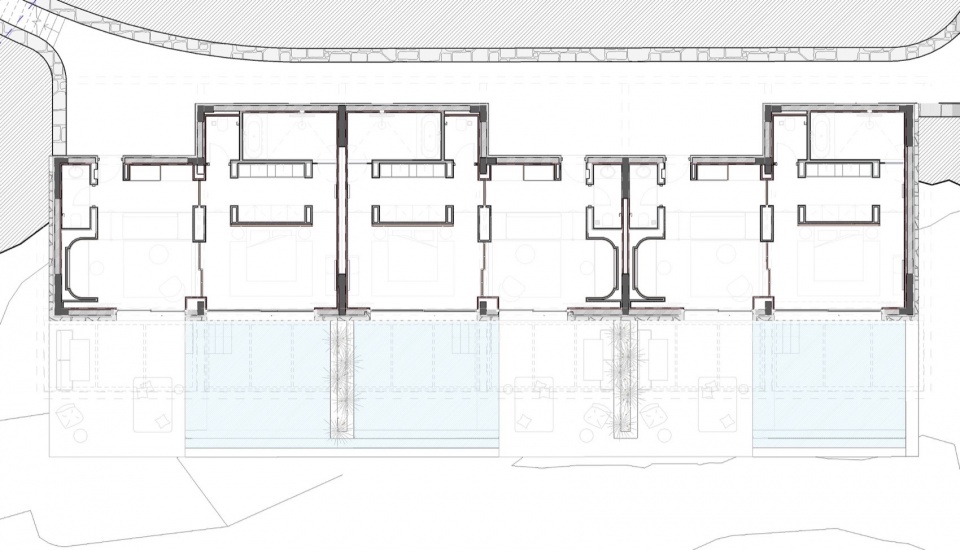
▼客房楼P4K1平面图,rooms building P4K1-floor plan

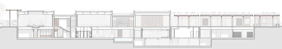
▼剖面图,sections


▼立面图,elevation

▼剖面图,section

Hotel Name: JW Marriott Crete Resort & Spa
Website: https://www.marriott.com/en-us/hotels/chqmj-jw-marriott-crete-resort-and-spa/overview/
Location: Crete, Greece
Type: Resort
Area: 13.600 m² – Plot: 59.700 m²
Status: Completed
Opening Date: June 2025
FACILITIES
No. of Guestrooms: 160
F&B: Restaurants (Fayi, Anoee, Onalos, Cuccagna), Bar & Pool Bar
Spa & Wellness: Pool & Thermal facilities, Treatment rooms, Beauty Treatment, Gym
Other Facilities: Kids Club, Outdoor yoga area, JW market, Retail
KEY PARTIES
Client: Marriott Hotels & Resorts
Hotel Owner: Vasilakis SA
Brand: JW Marriott
Operational Manager: SWOT Hospitality
Creative Direction, Architecture & Interior design: Block722
Block722 Leaders: Sotiris Tsergas, Katja Margaritoglou, Christina Kontou, Elena Milidaki
Design Team: Apostolos Karastamatis, Eirini Tsakalaki, Danai Lazaridi, Electra Polyzou, Marilena Michalopoulou, Xenia Bouranta, Georgia Nikolopoulou, Tzemil Moustafoglou, Gregory Bodiotis
Architectural visualization: Block722
Landscaping: Doxiadis +
Planting: M&M Constructions Ltd
Project Manager: Vasilakis SA, Yiannis Poulianakis, Sofia Papavasileiou
Procurement: Vasilakis SA
Lighting Design: L+DG Lighting Architects
Structural: PLINTH
MEP Eng: AGAPALAKIS & ASSOCIATES L.P.
Spa & Wellness consultants: Eminence Hospitality and Andrew Gibson
Art direction: Block722, Efi Spyrou
Photographer: Ana Santl
Styling: Priszcilla Varga














