西岸大剧院,上海 / SHL建筑事务所
西岸大剧院坐落于上海黄浦江畔,将成为聚集众多美术馆和画廊而闻名全球的上海西岸文化走廊的全新文化地标。
The West Bund Grand Theatre, along the Huang Pu River in Shanghai, is the latest addition to the city’s West Bund District, globally known for its collection of art museums and galleries.
▼坐落于上海黄浦江畔的西岸大剧院,the West Bund Grand Theatre, along the Huang Pu River in Shanghai

▼沿江视角,view from the river side

▼远景,distant view

丹麦SHL建筑事务所(英文品牌名:Schmidt Hammer Lassen,以下简称为SHL)上海办公室设计完成了西岸大剧院,这是上海西岸文化走廊中首个滨水演艺中心
▼草图,sketch

The Shanghai studio of Danish practice Schmidt Hammer Lassen has completed The West Bund Grand Theatre, a new building that is the first riverside facility on the West Bund designed specifically for the performing arts.
▼项目外观概览,overall of exterior

▼公共广场,public plaza

西岸文化走廊位于上海黄浦江畔,是上海艺术、文化和商业发展最快的区域之一,目标是成为媲美巴黎左岸和伦敦南岸的世界级滨水区。20世纪初,这里曾是繁忙的工业基地;总体规划框架下的西岸开发策略,将已有建筑和新建建筑融合在行人友好的景观公共空间,营造出充满活力的热闹氛围。西岸占地面积达9.4平方公里,规划目标实现后将成为亚洲最大的文化艺术区。
▼分析图,analysis diagram

The West Bund is the most rapidly developing arts, culture, and commercial district in Shanghai. Located along the banks of the Huangpu River just south of the center city, it represents a concerted effort by the Shanghai Municipal Government to create an iconic world-class urban waterfront comparable to the Paris Rive Gauche and London South Bank. Formerly an industrial zone built out during the early 20th century, the current development is guided by a master plan that combines existing structures and new buildings with a pedestrian-oriented landscape that encourages a lively, bustling atmosphere. When completed, the 9.4-square-kilometer West Bund will be the largest cultural district in Asia.
▼项目鸟瞰,aerial view of the project

▼建筑鸟瞰,aerial view

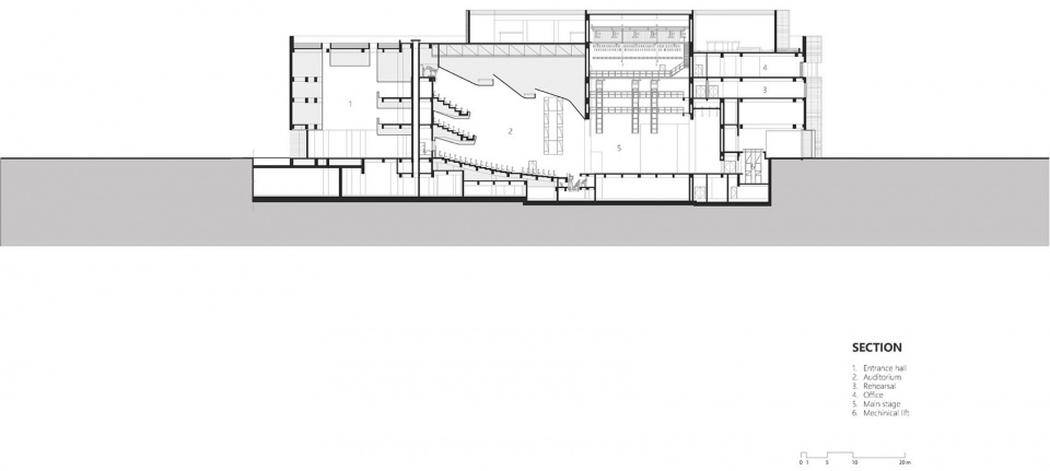
西岸大剧院是该区域的核心艺术场所之一,内设一个1,600座的大剧场,以及一个可容纳200人的黑盒小剧场用于实验性演出。
The West Bund Grand Theatre is one of the district’s anchor art venues accomodating a 1,600-seat main auditorium and a 200-seat intimate black-box theatre for experimental performances.
▼立面,facade

▼立面近景,closer view of the facade

▼可容纳200人的黑盒小剧场,200-seat intimate black-box theatre


新剧院与毗邻的西岸穹顶艺术中心,一座由SHL建筑事务所进行更新改造再利用的历史建筑,形成“阴阳”互补。穹顶艺术中心呈半透明状,夜晚发散出朦胧的光芒,而大剧院的庞大体量则呈现出雕塑式的抽象美感。穹顶艺术中心曾是中国最大水泥厂的主要生产设施;新剧院以混凝土材质的当代演绎致敬这一工业遗产。由GFRC(玻璃纤维增强混凝土)面板覆盖的建筑表皮,呈现多变的水平条纹,表达了黄浦江江水持续流动的形态。
▼分析图,analysis diagram

The new theatre is conceived as one half of a yin yang partnership with the newly opened West Bund Dome, a renovated and adaptively reused historic structure adjacent to the theatre. The dome is translucent, exuding light in the evenings, while the theatre is monolithic and abstract. The dome was once a pre-homogenization facility for China’s largest cement production plant; the theatre celebrates this heritage as a new concrete mass. Glass Fiber Reinforced Concrete (GFRC) were designed in a series of horizontal organic forms that are composed to mimic the constant movement of the Huang Pu River.
▼新剧院与毗邻的西岸穹顶艺术中心,the new theatre is conceived as one half of a yin yang partnership with the newly opened West Bund Dome

▼室内概览,overall of interior

▼入口大厅,entrance hall

▼楼梯,staircase


▼中庭,atrium

▼由上层空间看中庭,viewing the atrium from upper floor

拥有大剧场和黑盒小剧场的西岸大剧院将对标世界级的演艺中心,它不仅提供卓越的声学以及观演体验,还通过室外的大型公共广场来强调公共属性。在室内的公共空间中,人们可以透过巨大的玻璃幕墙欣赏黄浦江景和西岸风光。宽敞的露台——一处位于屋顶,另一处位于中间楼层——为观众在演出间隙提供户外休憩的场所,享受滨水景观和壮丽的城市天际线。
▼生态分析,analysis of sustainability

While the main auditorium and black box are designed to be world-class performance venues, the West Bund Grand Theatre offers more than superb acoustics and sightlines. A large outdoor plaza emphasizes the public nature of the project, and throughout the interior public spaces, expansive windows offer views across the river and toward the rest of the West Bund district. Generous terraces—one on the roof, and another halfway up the elevation—provide perches for theatre goers to enjoy a moment outside between acts.
▼排练室,rehearsal room

▼舞蹈室,dancing room

▼模型,model


▼渲染图,renderings




▼一层平面图,level 01 plan

▼三层平面图,level 03 plan

▼剖面图,section

建筑设计:Perkins&Will旗下SHL建筑事务所
业主:西岸集团
项目地点:中国上海
开始日期:2014年
竣工日期:2025年4月
建筑面积:23,177 平方米
设计范围:建筑设计,室内设计
功能:剧院,排演空间,后场空间
设计团队: Chris Hardie(项目负责人), Chao Chen (项目总监), Mai Zhang (项目建筑师)Jing Lin, Bozhena Hoida, Xiao Sun, Tianda Ge, Yiwen He, Puze Huang, Juno Li, Yuqian Lu, Puchun Zhang, Joey Zhang, Jingjing Zhang, Fangzhou Zhu, Sebastian Correa, Jiaai He, Steven Morton, Rasmus Duong-Grunnet, Maria Vlagoidou, Tasha Ye Feng.
合作方:
合作事务所:华建集团上海建筑设计研究院,华建集团上海现代建筑装饰环境设计研究院
景观设计:James Corner Field Operations,上海天华建筑设计有限公司
剧场顾问:英国剧院项目咨询公司
声学顾问:华东建筑设计研究院
幕墙顾问:迈骏建筑工程咨询(上海)有限公司
立面照明:上海锋尚六三二文化科技有限公司
施工方: 上海建工, 上海建筑装饰工程集团有限公司
Architecture: Schmidt Hammer Lassen Architects (SHL), part of Perkins&Will.
Client: West Bund Group
Project location: Shanghai, China
Start Date: 2014
Completion Date: April 2025
Gross Built Area: 23,177m2
Design Scope: Architectural Design and Interior
Programs: Theater, Rehearsal and Back of house
Design Team: Chris Hardie (Principal in charge), Chao Chen (Project Director), Mai Zhang (Project Architect), Jing Lin, Bozhena Hoida, Xiao Sun, Tianda Ge, Yiwen He, Puze Huang, Juno Li, Yuqian Lu, Puchun Zhang, Joey Zhang, Jingjing Zhang, Fangzhou Zhu, Sebastian Correa, Jiaai He, Steven Morton, Rasmus Duong-Grunnet, Maria Vlagoidou, Tasha Ye Feng.
Partners
Local Architect: Arcplus Institute of Shanghai Architectural Design & Research, Shanghai Xiandai Architectural Decoration & Landscape Design Research Institute Co., Ltd
Landscape: James Corner Field Operations, Shanghai TIANHUA Architecture Planning & Engineering Ltd
Theater Consultant: Theatre Projects
Acoustic Consultant: East China Architectural Design & Research Institute (ECADI)
Façade Consultant: EcoFace International Group
Façade Lighting: Shanghai Funshine 632 Culture Technology Co., Ltd
Contractor: Shanghai Construction Group (SCG), Shanghai Building Decoration Engineering Group














