Kallerud学生公寓,挪威 / Sanden+Hodnekvam Architects
该项目是位于Gjøvik的Kallerud校园扩建计划的一部分,旨在回应学生公寓不足以及校园运营部门对办公与工坊空间的新增需求。现有学生住房体系中,单人公寓严重短缺,而该校区学生平均年龄偏高,对此类住房的需求尤为迫切。
The project is an expansion of the existing Kallerud campus in Gjøvik, addressing the need for both additional student housing and new offices and workshops for the campus operations department. Within the existing student housing offerings, there was a significant shortage of single apartments, which are in high demand on a campus where the average student age is relatively high.
▼远观,distant view


▼外观,exterior view

▼周边环境,surrounding environment

▼由周围建筑看项目,
viewing the project from the surrounding building

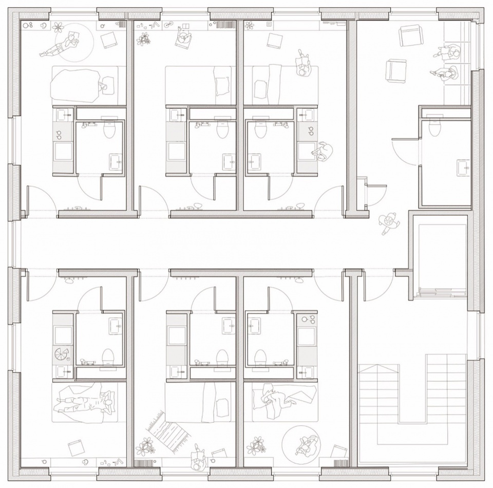
我们并未在本项目中引入多样化户型,而是将整个校园作为整体进行考量,力求在不增加项目复杂度的前提下,通过校区层面的规划实现多样化住房。在本项目中,重复布置的96个单元中仅包含两种户型:无障碍单元和标准单元。所有单元均配备独立卫浴、厨房以及结合起居与睡眠功能的生活空间。
Instead of creating a mix of different types of apartment types in the project, we looked at the entire campus as a whole and aimed to achieve a variety of housing types without introducing this type of complexity within the project itself. Within the repetitive plan with 96 units, there are only two types of housing – universally designed and regular housing. All units have their own bathroom, kitchen, and a combined living room and bedroom.
▼雪天远景,snow view at distance

▼雪景,snow view


▼雪景,snow view

▼公寓立面,facade

▼外观,exterior view


▼入口,entrance

▼雪景,snow view

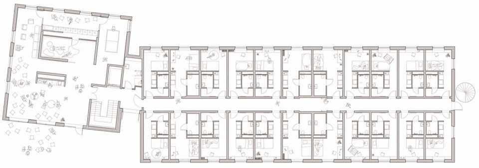
建筑整体由两部分组成:一侧为三层低楼体,另一侧为六层高塔楼,下方设有一层嵌入地形的地下空间,用作停车、办公室及运营配套。塔楼作为校园轴线的终点,能从校区多处望见,具有标志性意义。整栋建筑共包含96套小型公寓,均配独立厨卫。各楼层设有宽敞的共享空间,塔楼一层还设有供全校使用的共享设施,包括洗衣房、咖啡厅和多媒体放映室。贯穿全楼的共享楼梯鼓励学生间的非正式交流。
The project consists of a lower section with three floors and a taller tower with six floors above ground, along with one level dedicated to parking, offices, and operations, partially embedded into the terrain. The tower marks the end of the campus axis and is visible from across the campus. The building includes 96 small apartments, all featuring private bathrooms and kitchens. Additionally, generous common areas are distributed throughout the floors, and a dedicated ground floor in the tower houses shared facilities such as a laundry room, café, and media room for the entire campus. A shared staircase for the entire building encourages informal student interactions.
▼楼梯,staircase


▼楼层平台,landing floor


每个居住单元包括一个小玄关、配备炉灶、洗碗机与冰箱的小厨房、一张带储物功能的内置床,以及一张可转换为长椅的定制书桌和搁板。1.5米×2.4米的大尺寸窗户为紧凑的室内空间引入充足自然光。窗间设置竖向饰条以遮挡外部遮阳百叶,同时为空间立面增添层次感。
▼分析图,analysis diagram

Each residential unit includes a small entrance area, a kitchenette with a stove, dishwasher, and refrigerator, a built-in bed with integrated storage, and a custom-built desk with shelves that can easily be converted into a bench. The large windows, measuring 1.5 x 2.4 meters, provide ample daylight to the compact living spaces. Vertical cladding strips between the windows conceal external blinds and add depth to the façade.
▼学生公寓内部,
interior of the student apartment

▼细部,details

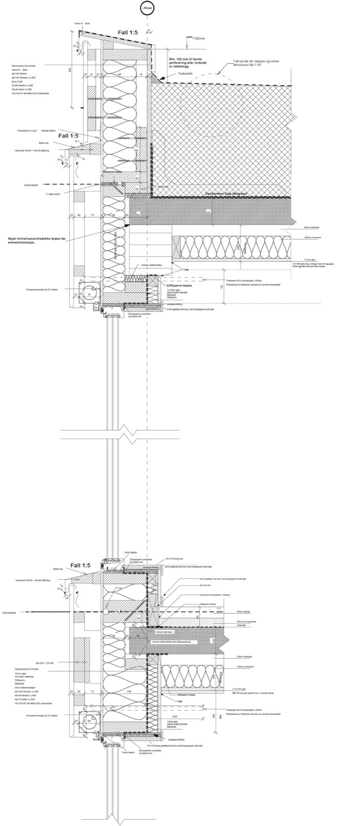
建筑采用混合木结构体系,由交叉层压木(CLT)、胶合木(Glulam)和传统木构框架共同构成,旨在降低材料用量、减少温室气体排放并提升建造成本效益。主要承重结构为CLT内墙、楼梯井与电梯井,外墙则采用胶合木柱。预制的木构立面模块安装于建筑外侧,外部覆以未经处理的松木板,并辅以铝制细部构造与泛水系统。该建筑在温室气体排放方面较挪威标准减少了40%。
The building is constructed as a hybrid timber structure, combining cross-laminated timber (CLT), glued laminated timber (glulam), and traditional timber framing to minimize material usage, reduce greenhouse gas emissions, and ensure cost efficiency. The primary structure consists of load-bearing CLT walls for interior partitions, stairwells, and elevator shafts, with glulam columns in the exterior walls. The prefabricated timber-framed façade elements are mounted on the exterior. The outer cladding is made of untreated pine, complemented by aluminum detailing and flashing. The building achieves a 40% reduction in greenhouse gas emissions compared to standard Norwegian requirements.
▼室内施工过程,interior construction


▼施工过程,construction process

▼分析图,analysis diagram

▼区位图,site plan

▼总平面图,master plan

▼底层平面图,ground floor plan

▼公寓层平面图,apartment floor plan

▼立面图,elevations


▼剖面图,sections


▼细部结构,construction details

Facts
Architect: Sanden+Hodnekvam Architects
Collaborator: MDH Architects
Title: Kallerud Student Housing
Consultants: Woodcon, Sweco, GK, Spenncon, Eltera, Multiconsult, Feste Landskap
Client: SIT
Program: Student housing, maintainance areas offices
Location: Gjøvik, Norway
Size: 4400sqm
Status: Completed
Year: 2021-2024
Photos: Sanden+Hodnekvam Architects














