立阳开发总部,台湾 / 合风苍飞设计有限公司
在这座开发商总部大楼中,工厂钢结构构成了空间布局的基本轮廓,呼应其最初作为砖窑起家的创立背景。空间被解构并依序嵌入。区别于传统商业空间的设定,设计强调“向社区开放”,将品牌愿景向公众敞开,融合再诠释的工厂美学与台湾森林印象于城市之中。
At this developer’s headquarters, the factory steel frame outlines the layout, echoing with its founding origin of a brick kiln. Spaces are deconstructed and sequentially inserted. Diverting from the commercial setting, the design emphasizes “openness to the community” and shares its brand vision with the public, weaving a reinterpreted factory aesthetic and Taiwan forest impression into the city.
▼项目外观,exterior of the project


▼项目街景,street view of the project

▼项目街景,street view of the project

亮点概述:The most remarkable points
解构与重组的建筑形态回应了工厂的构建逻辑与有机的城市立面;
具公共性与零售功能的开放空间模糊了企业建筑的边界感;
流动而开放的体量连接内外空间,提供自由游走的城市体验。
Deconstructed and reconfigured form responds to fabrication of factories and organic urban facades.
Inviting premises mix with public & retail space, blurring corporate buildings’ sense of boundaries.
Open and flowing massing connects with exterior, offering a meandering, freely wandering experience.
▼构建有机的城市立面,fabrication of organic urban facade


▼开放空间模糊建筑的边界感,blurring corporate buildings’ sense of boundaries


▼回应工厂的构建逻辑,responds to fabrication of factories


该项目的委托方是一家关注“地方感”营造的开发商,此次总部建筑成为其城市友好理念与创新都市美学的宣言。设计摒弃了常规的盒状体量,通过不拘一格的建筑表达呈现品牌愿景。建筑融合公共与零售空间,以开放姿态向城市展开,打破企业建筑通常带来的封闭界限。通过多功能复合的设计,项目尝试重新诠释台湾城市中拼贴式的空间语境,巧妙地将自然山林氛围与工业建筑语言融合为一种新型都市原型。
The client, a developer focusing on building upon the sense of place, leverages its brand headquarters as a manifesto of city friendliness and innovative urban aesthetics. Departing from a normative boxy structure, the design articulates the vision of the brand through an unconventional architectural expression. The building integrates public and retail spaces with an inviting architectural gesture, blurring the sense of boundaries often induced by a corporate building. Through this multi-functional design, the project attempts to reinterpret the collage-like urban realm in Taiwan, carefully fusing the natural mountain atmospheres and architectural language of the industrial buildings into a new metropolitan prototype.
▼以开放姿态向城市展开,open to the city


▼关注“地方感”营造,focusing on building upon the sense of place



建筑构成遵循“形式追随功能”的逻辑,就像在工厂中,控制室会因功能需求临时添加一样。
The building composition responds to the logic of “form follows function,” like when at a factory, a control room is added ad hoc when needs emerge.
▼遵循“形式追随功能”逻辑,responds to the logic of “form follows function,”


由不同几何形态构成的体块群,取材于对工厂结构的观察,以有机的形式呈现。这些单元嵌入钢结构框架中,并根据基地轮廓设置角度,扇形布局模糊了立面与流线的等级秩序。连续转角空间的体量变化,让光影在日照变化中流动。连接首层与二层的外部楼梯刻意错位,呼应工厂空间的碎片化特征。常见于工厂的材料在此被真实呈现,几乎不加修饰,保留工业环境的原始质感。
▼结构爆炸图,structure exploded view

The group of volumes adopts various geometries, representing organic forms through observation of a factory. These units are inserted into the steel structure grid, angled according to the contour of the site. The fan-shaped placement blurs the hierarchy of the elevations and circulation. The body of continuous corner spaces animates the light and shadow throughout the day. The external staircase linking the ground and first floor, deliberately disjointed, resembles the fragmentation of factory spaces. Materials commonly found in factories are employed authentically, with minimal embellishment, embracing the rawness of industrial environments.
▼体现工业建筑般不加修饰的质感,embodying the unadorned texture of industrial architecture


整体体量通过层叠与多样几何构成,最大化不同体块之间的留白与通透开窗,使内部环境能够感知周边氛围。开放流动的空间形态在建筑解构与重组的过程中,尝试搭建人与城市街道之间的桥梁。更亲切的尺度也促使建筑与城市之间发生更多互动。
The massing is a superimposition of layers and varying geometries. By maximizing the void between these volumes and large expanses of glazing, it mediates an interior environment attuned to sensing its surroundings. The open and flowing massing attempts to bridge people and the urban streetscape through the process of deconstruction and reconfiguration of the architecture. It offers a more intimate scale that fosters interactions between the building and its external space.
▼多样几何体块构成,a superimposition of layers and varying geometries


靠近街道的部分设置了咖啡馆、书店与休憩空间,企业功能则被有意识地退后为次要空间。该项目重新定义了新城高楼林立中的街角建筑原型,让企业总部更深入地介入城市公共生活。
Close to the street frontiers, a café, a bookstore, and sitting areas are designated, deliberately setting back the corporate functions as the secondary space. The project redefines the street corner typology amongst the sea of high-rise buildings for the new town, and engages the corporate headquarters with the public.
▼咖啡馆、书店与休憩空间,a café, a bookstore, and sitting areas are designated



▼咖啡馆、书店与休憩空间,a café, a bookstore, and sitting areas are designated

呼应台湾山林的有机性,交错的几何体构筑出沿建筑边界流动而自由的动线,引导人们穿梭、停留与探索。搭配景观与植物的布置,营造出一种自然野境逐步渗入城市的氛围。
▼环境分析,environment analysis

Echoing the organic nature of Taiwanese mountains, interwoven geometries carve fluid and free circulation along the architectural borders, inviting wandering, pause, and exploration. Along with the landscape and planting arrangement, it conjures the sense of gradual encroachment of natural wilderness.
▼景观与植物的布置,the landscape and planting arrangement



基地周边大量种植台湾原生植物,如台湾杉与蕨类,形成一种可渗透的视觉屏障,也将访客引入如山林步道般蜿蜒的感官旅程。
Around the site, a large quantity of native plants such as Taiwania Fir and ferns form a visual shield of the permeable interface, simultaneously drawing visitors into a sensory journey of moving through meandering trails of a mountain-like landscape.
▼形成一种可渗透的视觉屏障,a visual shield of the permeable interface

森林、城市景观与工厂结构是台湾所熟悉的有机生态类型。这三种“极具台湾特质”的元素在本项目中被精心结合,形成一座富有在地文化的建筑。它不仅止步于形式层面,更进一步反映社会的内在状态,呈现出自然、建筑与城市文化三者的交织图景。
Forests, cityscape, and factory structure are familiar organic ecologies in Taiwan. These three “distinctively Taiwan” and organic entities are carefully combined into an architecture rich in local culture. Beyond mere forms, they are transcended to reflect the society’s inner state, resulting in an intertwined representation of nature, architecture, and urban culture.
▼室内空间,interior space



▼室内公共区域,public area


▼办公区域,office area



▼走廊区域,corridor area



▼二层办公区域,office area on the upper level


▼二层办公区域,office area on the upper level


该项目不仅是一种对城市构造的观察叙述,更是对台湾当前城市“拼贴式、有机却失序”的现象进行翻译与重构,将常被视为负面的空间状态,转化为一种引人入胜、富有表现力的建筑语言。它提供了对文化的不同视角,促使人们思考与和解积累的过往,同时也强调变革的必要性。
Not only is it a narration of city fabrication observation, but this project also translates and reinterprets the collage-like, organic disorder of the current urban form—often seen as negative—into an exciting, engaging, and new architectural language. It offers a different perspective to our culture, forcing contemplation and reconciliation with the accumulated past, and asserting the necessity for a transformative change.
▼灯光下的建筑,building under the lighting


▼夜景,night view



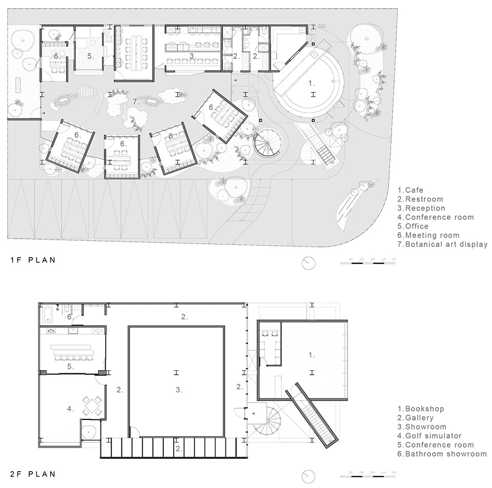
▼平面图,plan

Apricity Development Brand headquarters
Architects: Soar Design Studio + Ray Architects
Area: 728 m²
Year: 2024
Photographs:Studio Millspace
Lead Architects: Ray Chang
Category: Office Buildings
Design Team: Lin Yi-Syuan, Wang Qi-Ning
City: New Taipei City














