苏州工业园区南岸新地一期景观设计 / 启迪设计集团北京公司三朋工作室
“在产业园业态日趋复合和迭代升级的今天,景观设计需要超越传统的单纯美学和功能植入,以多元化的场景营造实现人与人,人与自然的连接,从而创造空间即生活的社区系统价值”
“Today, as the business forms in industrial parks become increasingly complex and upgraded, landscape design needs to go beyond the traditional simple aesthetic and functional implantation, and achieve connections between people and between people and nature through diversified scene creation, thereby creating the value of a community system where space is life.”
▼项目概览,Project Overview


相地Site visit
南岸新地一期位于苏州工业园区现代服务产业园中的核心区域,也是园区的第一个启动项目,其重要性不言而喻。项目地段优越,南临娄江,距金鸡湖和苏州中心以北仅1.5公里,地铁3号线贯穿场地,为园区带来大量人流。未来这里将成为现代服务业的产业高地,聚焦金融科技,中高端生产性服务业和智能制造。地块被泾二路从中间一分为二,西地块以商务办公为主,东地块以居住为主。项目占地总面积为9.8万平米。
Nan’an Xindi is located in the core area of Suzhou Industrial Park Modern Service Industrial Park, and is also the first project launched in the park. The project is located in a prime location, facing the Lou River to the south and only 1.5 kilometers north of Jinji Lake and Suzhou city center. The subway line 3 runs through the site, bringing a large number of people to the park. In the future, this place will become an industrial highland for modern service industry, focusing on financial technology, mid to high end productive service industry, and intelligent manufacturing. The plot is divided into two parts by Jing Er Road in the middle, with the west plot mainly for commercial offices and the east plot mainly for residential purposes. The total area of the project is 98000 square meters.
▼2017年场地航拍图,Aerial view of the venue in 2017

▼2024年项目竣工航拍图,Aerial view of the project’s completion in 2024

初识场地,并没有我们想象中江南水乡的浪漫旖旎,现场正在拆除中的工业厂房陈旧杂乱,地块更像是城市快速发展后的遗留棕地。场地南侧的高架桥腾空穿过,从视觉和物理上切断了和娄江的连接,同时也给场地带来了严重的噪音污染。西地块中间的大水泾排水渠南北向贯穿,加剧了空间碎片化。然而在场地的东南角,我们还是发现了一点小惊喜:在高架桥钢筋水泥的围合之间,一片香樟林郁郁葱葱的生长着,遗世而独立。
At first glance, the site was not as romantic and picturesque as we imagined in the water towns of Jiangnan. The industrial buildings being demolished on site were old and messy, and the plot looked more like a brownfield left over from the rapid development of the city. The highway on the south side of the site has been elevated, visually and physically cutting off the connection with the Lou River, while also causing serious noise pollution. The Dashuijing drainage channel in the middle of the western plot runs north-south, exacerbating spatial fragmentation. However, in the southeast corner of the site, we found a surprise: between the steel and cement enclosures of the elevated bridge, a lush camphor forest grew independently and has been preserved for generations.
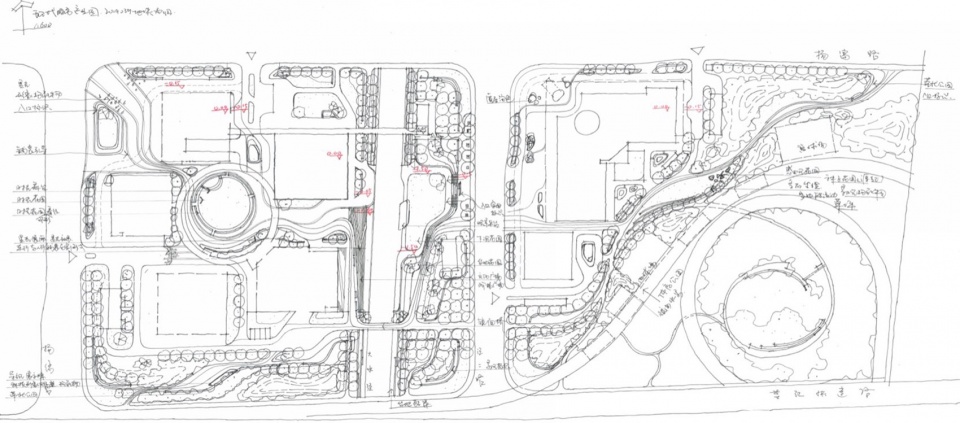
▼概念设计手稿,Conceptual design manuscript

▼规划分析图,Planning analysis diagram

▼南岸新地西区,South Bank New World West District

▼大水泾水渠华丽变身为优美的滨水休闲空间,The Dashuijing Canal has been splendidly transformed into a beautiful riverside leisure space

▼高架桥之间的缓冲地带化身为市民参与共享的运动公园,The buffer zone between the elevated Bridges has been transformed into a sports park for citizens to participate in and share

▼原有的香樟林基础上形成的望星丘,The Star-gazing Hill formed on the basis of the original camphor forest

立基Set foundation
园区北侧的扬富路承担了进入园区车行的主要集散功能,从而在北侧形成了清晰的城市街区界面,而南侧高架桥和香樟林的存在让场地南侧空间承载更多的生态屏障及体验功能。园区中部根据人行动线和活动空间的梳理成为承载社区休闲交流功能的主要场所。
The Yangfu Road on the north side serves as the main hub for vehicles entering the park, forming a clear urban block interface. The presence of the highway and camphor forest on the south side provides more ecological barriers and experiential functions for the campus. The central part of the park has become the main space to carry out community leisure functions .
▼方案深化手绘线稿,Hand- drawing of the plan

▼总体规划图 ,Master Plan

园区多元化的景观空间既是建筑室内空间的延展,也是城市开放空间的载体。无论是午间办公人群的洽谈小憩,还是清晨林荫间的轻松慢跑,抑或水边花影婆娑下的窃窃私语,都能找到各自岁月静好的空间。
The diversified exterior space in the campus is not only an extension of the indoor space, but also a carrier of urban open space. Whether it’s a lunch break for office workers, a relaxing jog in the shade of trees in the morning, or whispers under the swaying flowers by the water, you can find a peaceful space for your own years.
▼生态更新后的大水泾公园成为园区自然休闲中心,After ecological renewal, Dashuijing Park has become the natural leisure center of the park

▼开放,共享,松弛的园区环境促进办公人群的互动交流,The open, shared and relaxed park environment promotes interaction and communication among office workers

▼导向清晰的慢行系统和层次简约的种植层次强化了园区活力,The clear guidance of the slow traffic system and the simple planting hierarchy have enhanced the vitality of the park

▼水边的惬意时光,A pleasant time by the water

高端商务办公的西区要求更包容开放,松弛自然的景观调性。打造户外非目的性的功能空间(第三空间)以促进园区办公人群的互动,交流和邂逅成为设计的初心。环形连廊下的星光舞台是其中最富弹性和展示性的休闲空间,而现状水渠通过设计活化更新改造为大水泾公园,给整个园区注入了生态休闲之魂和水边的浪漫。
The western district of high-end business offices requires a more inclusive and open environment, with a relaxed and natural landscape tone. The original intention of the design is to create outdoor non-purpose functional spaces (third spaces) to promote interaction and communication among office workers . The starry stage under the circular corridor is one of the most flexible and exhibition oriented leisure spaces, while the current water channel has been revitalized and transformed into Dashuijing Park , injecting the soul of ecological leisure and the romance of waterfront into the entire campus.
▼星光舞台概念手绘,Hand-drawn concept of the Starlight stage

▼星光舞台和建筑空间完美融合,成为松弛的多功能弹性空间,The Starlight stage and the architectural space are perfectly integrated, becoming a relaxed, multi-functional and flexible space

▼UHPC异形星光景墙,UHPC Alien Star Light Wall

▼阶梯剧场南望星梦桥,The stepped theater looks south at the Star Dream Bridge

东区原有繁茂的香樟林被尽可能保留下来,地形略加改造并有林中小径串联园区步道,于是便有了望星丘—一个灰色高架桥丛林中仰望星空的放空空间。东区的人才公寓和社区商业对景观空间的内容和美学打造提出了更复合的要求。结合运营方的需求,针对时尚年轻白领的社区运营和趣缘社交成为景观空间营造的核心诉求。现状高架桥下大量的灰空间被充分的活化彩化亮化,融入了丰富的运动休闲和宠物萌趣的主题,以设计艺术为载体,使之成为‘年轻人的社交场,高架桥下的潮趣发生地’。
The lush camphor forest in the eastern area has been preserved as much as possible, and the terrain has been slightly modified with a path connecting the campus trail. Therefore, there is the Observation Star Hill – a vacant space in the gray elevated bridge jungle that looks up at the stars. The talent apartments and community businesses in the eastern district have put forward more complex requirements for the content and aesthetic creation of outdoor spaces. Based on the needs of the operator, community operation and fun socializing for fashionable young white-collar workers have become the core demands . The large amount of gray space under the highways has been fully activated, colored, and illuminated, incorporating rich themes of sports, leisure, and pet cuteness. With design art as the carrier, it has become a ‘social arena for young people and a trendy place under the bridges’.
▼香樟林中的望星丘和周边高架桥形成诗意的对话,The Star-gazing Hill in the camphor forest and the surrounding elevated bridge form a poetic dialogue

▼高架桥下的泵道公园,Pump Road Park under the elevated bridge

▼高架桥下足球场,The football field under the elevated bridge

▼滑板运动场地,Skateboarding sports venue

▼运动场地成为社区活力的引擎,Sports fields have become the engine of community vitality

▼桥下运动公园,Sports park under the bridge

▼高架桥下宠物天地,Pet paradise under the elevated bridge

塑形Form shaping
南岸新地一期景观设计致力于探索苏州园林造园思想的现代演绎,其中景观和建筑的边界融合和消隐是设计形态学关注的重心。错落灵动的建筑布局形成了景观空间的边界和基底,线性的铺装设计通过空间的起承转合,巧妙地串联起星剧场,星梦桥,星河台,星花园和望星丘等核心景观节点空间,从而构建起一条连续动感的星愿步道,同时也缝合了东西两区。星光点点的细节设计在景观墙,树池,人行桥及室外家具上都做了精致化的处理。
The landscape design of Nan’an Xindi Phase I is committed to exploring the modern interpretation of Suzhou’s garden design ideas, with the fusion and disappearance of the boundaries between landscape and architecture being the focus of design morphology. The staggered and dynamic architectural layout forms the boundaries and foundation of the landscape. The linear paving design cleverly connects the core landscape nodes such as the Star Theater, Star Dream Bridge, Star River Terrace, Star Garden, and Star Viewing Hill, thus constructing a continuous and dynamic Star Wish Trail, while also stitching together the east and west districts. The detailed design of Starlight has been refined on retaining walls, tree pools, pedestrian bridges, and outdoor furniture.
▼入口LOGO嵌入星光灯珠,The entrance LOGO is embedded with starlight beads

▼连续动感的慢行系统缝合了原本割裂的地块,The continuous dynamic slow-moving system stitched together the originally fragmented plots

▼星梦桥结合星光的设计语汇,The Star Dream Bridge combines the design vocabulary of starlight

▼望星丘通过慢行系统连接成为园区的放飞空间,The Stargazing Hill is connected by a slow traffic system to become a release space in the park

▼高架桥下的原有灰空间变身为园区的积极空间,The original grey space under the viaduct has been transformed into an active space in the park

▼微地形和星光景墙的有机融合,The organic integration of micro-terrain and star-shaped light walls

星剧场南侧的星光景墙是西区景观的重要节点。为了在有限的空间营造无限的自然意象,景墙结合月牙状微地形的设计丰富了视觉层次,犹如一笔恰如其分的画眉。
The Starlight Landscape Wall on the south side of the Star Theater is an important node in the campus. In order to create infinite natural imagery in a limited space, the design of the wall combined with crescent shaped micro terrain enriches the visual layers, like a perfectly matched eyebrow.
▼月牙状微地形丰富了园区视觉层次,The crescent-shaped micro-terrain enriches the visual layers of the park

共情Empathy
景观设计本身并不能再现自然,而是反映人类对自然的认知和情感。在场地的功能和形式之后,我们希望落地的作品能够和场地的使用者达成情感上的深度共鸣。从画境到情境进而上升到意境,也和苏州园林的造园思想不谋而合。都市寻梦的办公白领,疲惫于长期辛劳的伏案工作。夜晚归家的路上,闲看水岸的灯火阑珊和远处的光影点点,会产生一些梦想的微光和精神的力量。正如百年前的莫奈看着池塘里的睡莲,微笑着说:“不是我,而是光”。
Landscape design itself cannot reproduce nature, but reflects human cognition and emotions towards nature. After pursuing functionality and form, we hope that the landed work can achieve a deep emotional resonance with users of the site. The transition from painting to context and then to artistic conception coincides with the design philosophy of Suzhou gardens. Urban office workers seeking their dreams, exhausted from long-term and arduous desk work. On the way home at night, leisurely watching the dim lights on the waterfront and the scattered light and shadow in the distance can generate some faint dreams and spiritual power. Just as Monet looked at the water lilies in the pond a hundred years ago and smiled, saying, ‘It’s not me, it’s the light.’.
▼星光景墙夜景,The night view of the Starlight Wall

▼大水泾驳岸夜景,The night view of the Dashuijing embankment

竖向Grading
园区整体地形平坦,建筑正负零的标高也基本统一,无障碍的人行动线成为竖向设计的导则。展示中心的二层露台与场地有高达6米的落差,整体地形建立在地库顶板之上对荷载有严格的要求。设计采用架空的方式,在参数化的模型里推敲坡道和柱网的渐变关系,构建景观化的坡道;为解决坡度较大带来的滑坡问题,设计采用土工格室固土防止滑坡,种植上采用滴灌一体化的植物纤维毯,保证稳定的效果和便捷的后期养护。简洁的坡道和绿色台地形成明快的M型构图,给行人带来独特的步行体验和优美的滨河视野。
The overall terrain of the campus is flat, and the floor elevation of buildings is basically uniform. The ADA has become the guideline. The second floor terrace of the exhibition center has a height difference of up to 6 meters from the site, and the terrain is built on top of the basement roof with strict load requirements. The design adopts an overhead approach, refining the gradient relationship between the ramp and column grid in a parameterized model, and constructing a landscaped ramp; To solve the problem of landslides caused by steep slopes, the design adopts geocell soil stabilization to prevent landslides, and plants are planted with integrated drip irrigation plant fiber blankets to ensure stable effects and convenient maintenance. The simple ramp and green terrace form a bright M-shaped composition, providing pedestrians with a unique walking experience and a beautiful riverside view.
▼展示中心的大M草阶巧妙解决了高差问题,The large M-shaped grass steps in the exhibition center ingeniously solve the problem of height difference

▼大M草阶是景点,也是观景的绝佳地点,The Big M Grass Steps are a scenic spot and an excellent spot for viewing the scenery

▼大M草阶技术图纸,Technical drawings of large M grass steps

社区营造Community identity
在行业寒冬和消费降级的今天,景观设计营造的空间除了传统的美学和功能价值,更需要传达积极的情绪价值,实现从场地到场所再到场景的升级演变。东区的人才公寓,社区商业和高架桥之间的互动草坪在运营方的策划下成为社区活力的起搏器。弹性的多功能草坪联动桥下的运动公园,萌宠天地给园区注入了无限活力。潮趣时尚, 运动和艺术的元素随处可见,户外景观在这里创造了松弛,平等,紧密的多元社交场景。除了满足日常的健身潮玩,不同时段根据运营的需求可以灵活切换为不同的场景模式,或为宠物市集,或为主题营地,或为运动秀场。追求CHILL的景观调性符合Z世代人群内心的反内卷诉求,社区的凝聚力和认同感让这里也拥有了无限可能。
In today’s economic winter and consumer downgrading, landscape design not only needs to convey traditional aesthetic and functional values, but also needs to convey positive emotional values, achieving an upgraded evolution from site to place and then to scene. The interactive lawn in the eastern district has become a pacemaker of community vitality under the operating planning. The multi-purpose lawn injects infinite vitality into the campus. Trendy and fashionable, elements of sports and art can be seen everywhere, and outdoor landscapes create a relaxed, equal, and close diverse social scene here. In addition to meeting the daily fitness trend, different space modes can be flexibly switched according to operational needs such as pet markets, theme camps, or sports shows. Chill landscape tone is in line with the anti involution demands of Generation Z, and the cohesion and sense of community identity have given the site infinite possibilities.
▼社区营造,Community identity



后记Afterwords
该项目是融合了高端商务办公,社区商业,居住等多元业态的产业综合体景观设计,面市以来收获众多积极的市场反馈和评价。其对场地问题的创造性解决,对建筑空间的完美融合,对社区人群需求的极致关注是项目走向成功的关键。信步园区,光影绰约间依然可以清晰的感知设计对于社区和城市的价值,遂即兴赋打油诗一首:“风乍起藤蔓舒卷,水无声落花几瓣,林深处幽香似梦,光影间语笑嫣然”,是为影园。
This project is a landscape design for an industrial complex that integrates multiple business formats such as high-end business offices, community commerce, and residences. Since its launch, it has received numerous positive market feedbacks and evaluations. The creative solution to the site issues, the perfect integration of architectural space, and the extreme attention to the needs of the community population are the keys to the project’s success. Strolling through the park, one can still clearly perceive the value of design to the community and the city amid the flickering light and shadow. So, I spontaneously composed a light-hearted poem: “When the wind suddenly rises, the vines unfurl; in the silent water, a few petals fall; deep in the forest, the fragrance is like a dream; in the light and shadow, laughter and whispers are charming.” This is called the Shadow Garden.
▼大M草阶和大水泾概念手绘,Hand-drawn concepts of “Big M Grass Steps” and “Big Water Stream”

▼互动草坪概念手绘,Hand-drawn concept of interactive lawn

Project name: Landscape Design of Phase I of New Land on the South Bank of Suzhou Industrial Park
Project type: Landscape Design
Design: Qidi Design Group Beijing Branch Sanpeng Studio
Website: http://www.tusdesign.com/
Contact e-mail: 2872496446@qq.com
Completion Year:2023
Leader designer & Team:Zhan Zhen, Yin Feipeng, Gao Jinjun, Gao Jungang, Wang Xin, Liu Yun, Han Jinzhuo, Tan Qiong, Yu Meihui, Fan Peijie, Shi Han, Li Zhe, Xiao Yao
Project location:suzhou industrial park
Gross built area: 87000㎡
Photo credit: Qidi Design Group Co., Ltd
Clients:Suzhou Industrial Park Urban Reconstruction Co., Ltd














