瑞士[sn]户外运动羊毛服装品牌展示及总部办公空间,上海 / AaaM建筑设计工作室
项目位于上海创享塔创意园区,为上海被服厂的厂房旧址,设计团队受瑞士户外运动羊毛服装品牌[sn]邀请,设计满足其办公及品牌展示双重功能的融合空间,以承载产品设计、面料研发、总部办公、产品拍摄、销售直播、零售活动、品牌展示及社交互动等使用需求。设计团队希望创造一个可持续、灵活开放、健康互动的办公环境。除此之外,作为品牌首个在国内永久的展示场所,设计必须体现品牌的核心价值,让员工、访客和消费者对品牌有更深刻的理解。
Located within Shanghai’s Jing’an District at the Chuangxiang Tower Creative Hub—a revitalized industrial site originally housing the Shanghai Uniform General Factory —this project represents a multifunctional space designed for Swiss outdoor apparel brand [sn]. The program integrates diverse functions including corporate headquarters with brand exhibition capabilities, product design, fabric R&D, photographing and filming studio, livestreaming box, retail display and social spaces, etc. Apart from creating a sustainable, flexible, and health-oriented work environment, the design serves as the brand’s first permanent flagship showcase in China. It meticulously embodies [sn] brand core values through spatial storytelling, enabling employees, visitors, and consumers to engage deeply with the brand ethos. The adaptive reuse strategy honors the building’s industrial heritage, while it meets contemporary demands through innovative materiality and modular planning.
▼[sn]品牌展示区域,[sn] brand showroom

▼[sn]品牌展示区域,[sn] brand showroom

瑞士[sn]supernatural 作为全球领先的户外运动羊毛服装品牌,为包括路跑、越野跑、徒步、滑雪等运动领域提供高品质、专业的服装产品。品牌结合自然、科技与工匠精神等元素,以 merino made better 为口号,其运动羊毛面料为运动人士提供高性能、舒适、环保的选项。
[sn]supernatural, a Swiss outdoor merino apparel brand, is one of the world’s leading performance clothing brands, providing high-quality professional products for running, trail running, hiking, skiing and other fields. The brand combines elements of nature, technology and craftsmanship, with the slogan “merino made better”, offering athletes and outdoor sports lovers high-performance, comfortable and eco-friendly wool-blend outfits.
▼面料展示区域,fabric display area

「铺坊」融合,「办公+品牌展示」相辅相成From Shop to Workshop: Office Space that tells a Brand Story
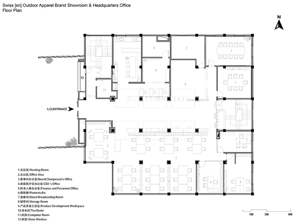
为了方便管理运营,通常在空间布置上都将办公室与展示空间分隔开。为了体现自由开放的品牌及社交属性,在设计布局上,将品牌展示与社交空间置于场地的中轴线,轴线两侧分别设置办公区、设计及产品研发等区域,与中轴开放品牌展示区相交,形成品牌与社交介面。访客于中轴展区了解到品牌理念与价值的同时,亦能透过半开放式隔断,窥探到两侧“作坊式”办公区,切身体会品牌在产品塑造过程中的工匠精神。
▼平面图,plan

During the initial space planning, the design team thoroughly communicated with the client to understand their brand philosophy and corporate culture, proposing the concept of “Shop Meets Workshop” integration strategy. While conventional offices and brand exhibition spaces are typically separated for ease of management, the team places the brand display and social areas along the central axis to reflect the brand’s free, open and social characteristics. Besides the central axis are work areas including offices, filming studio, design and product development sectors, creating interactive interfaces between the brand display and workspaces. Visitors can learn about the brand’s philosophy and values in the central exhibition area while glimpsing the workshop-like office environments through semi-open partitions, experiencing the craftsmanship behind the products.
▼将品牌展示与社交空间置于场地的中轴线,places the brand display and social areas along the central axis

组合式家具,满足多场景空间需求Space Where Nature Meets Craft
中轴品牌区作为最主要的空间,不仅需展现品牌核心价值、展示品牌产品,还需承载品牌活动、产品发布、零售展销、社群活动、员工社交等多重活动。为满足各种功能需要,我们将中轴区的所有家具设计成可移动的组合式家具,以应对不同的展示及社交场景。
▼组合式家具,furniture-assemble


As the primary space in the project, the central brand zone serves not only for brand and product displays, but it also hosts various functions including brand events, product launches, retail showcase, communal activities and social gatherings for staff and customers. To accommodate these diverse functions, all furniture in the central zone is mobile and modular, facilitating various display and social scenarios. The outdoor-style gravel flooring represents connection with nature, while wooden display fixtures paired with metal structures and detailing symbolize the union of nature and technology. Lightweight PVC panel canopies set in between the interface of shop and workshop space, like an open-box, showcasing the interior space to visitors, narrating [sn] core value of the integration between nature, technology and craftsmanship. With budget constraints, the team had to consider reusing most of the furniture and equipment from before and integrated them into a design with modern touch While the office space and management rooms was kept as transparent, clean and minimal, reflecting the openness of its corporate value, the emphasize was placed at the central showcase axis with great attention of materiality and detailing.
▼[sn]品牌办公空间展示,office and showroom

▼组合式家具,modular furniture


說好品牌故事:自然与工艺的美好结合Rejuvenating a Brand + Regeneration of Spatial Identity
户外用的碎石地面代表着与大自然的联系,木制家具搭配金属饰面结构象征着自然与科技的结合。轻质太阳板作为顶棚空间,结合盒子打开的形态与工业风的光管灯具,向访客完美展示出内部空间,展示出自然、科技与工艺的美好结合。
▼构造轴测图,structure axonometric

From overall planning considerations to the revival of historical structures and manifestation of brand values, the [sn] brand’s adaptive reuse project at the Shanghai Textile Production Factory could provide an important case study for future sustainable office spaces that blend old and new.
▼太阳板与金属材料组合展示,plywood panel combines with metal material

▼太阳板与金属材料组合展示,plywood panel combines with metal material

▼部分材料细节,material detail


延续历史建筑脉络,打造可持续工作环境Honoring Heritage while Building Sustainable Workspaces
基地原为上海被服总厂沪西被服厂,其起源为1918年刘伯森创办的宝成纱厂,后由日本人注资,更名为日华五厂。1949年后,作为人民解放军总后勤部军需生产部一〇二厂。直至2016年整体改造成为集商业、办公于一体的创享塔·the x tower园区。现存历史建筑由德国人设计建造,采用钢筋混凝土框架结构。设计希望历史建筑可以承载新的空间功能和身份价值,并希望历史记忆和空间故事在这处厂房中得以传承下去。
Our site was an industrial compound, formerly known as Shanghai Uniform General Factory (Huxi Branch) [上海被服总厂沪西被服厂]. It evolved from the Baocheng Textile Plant (1918) and Nichiwa No.5 Mill (Japanese colonial period) for production of military uniform and civilian clothing. After the communist took power, the site was then transformed into PLA No.102 Military Supply Facility (1954). In 2016 the compound was adaptively reused and reinvented itself as the X Tower Innovation Hub for incubation of creative industry. The original Bauhaus style structure exemplifies German industrial design influence in Shanghai during early 20th-century and was a valuable historical asset for the community nowadays.
▼办公空间入口,entrance of the office area

▼引入侧面与顶上的自然光,combining with full height south-facing street-side glazing


▼引入侧面与顶上的自然光,combining with full height south-facing street-side glazing

▼强化了原有高挑空的混凝土梁柱框架结构,emphasizes the high-ceiling, long-span concrete frame structure



团队充分考虑厂房空间特性后,强化了原有高挑空、大跨度的混凝土梁柱框架结构,保留其历史感与粗犷韵味。原始的空间是长方形的布局,导致空间过深而带来采光不佳的问题。裸顶的设计在特显空间结构张力的同时,通过房顶原有的3列长条穹顶天窗,再结合南面沿街大玻璃引入侧面与顶上的自然光,令整个空间成为减少能耗的可持续办公环境,让员工能享受光照的温暖,成为健康办公的又一标杆。从整体规划的考虑,到历史结构的重现及品牌价值彰显,[sn]品牌上海被服厂历史建筑改造项目,将会为未来的新旧融合可持续办公提供一个重要案例。
The design team thereby would like to inherit its stories to the public with a new identity and belongings. While fully considering the factory’s spatial characteristics, the design emphasizes the high-ceiling, long-span concrete frame structure, deliberately preserving its historical character and rugged charm. With three rows of original elongated vaulted skylights on the roof, the architect of this heritage had addressed depth issue of the rectangular layout. By exposing the ceiling design and old structure, the design highlights the brutalistic strength of the structure and allows nature light to come through atop. Combining with full height south-facing street-side glazing, it could create a sustainable workspace that reduces energy consumption and provides employees with warm illumination. This design set a new benchmark for healthy office environments in a heritage space.
▼轴测图,axonometric

▼天花平面图,reflected ceiling plan

▼剖面图,section


▼组合式家具,furniture-unit type

Project Name: Swiss [sn] Outdoor Apparel Brand Showroom & Headquarters Office
Location: Chuangxiang Tower, Yejiaqiao Road, Jing’an District, Shanghai
Design Firm: AaaM Architects
Design Team: Shuyan Chan, Wang Yuwei, Kevin Siu, Xu Siyuan, Li Jun, Wang Jin
Collaborator Design Firm: Xframe Studio
Workscope:Interior Design (incl. lighting and FFE design)
Workscope
Interior Design (incl. lighting and FFE design)
Design phase:Spatial Planning/Audit, Concept Design, Schematic Design, Design Development, Construction Drawing, Construction Coordination Phase
Design phase
Spatial Planning/Audit, Concept Design, Schematic Design, Design Development, Construction Drawing, Construction Coordination Phase
Lighting Consultant & Supplier: CID Lighting
Construction: VCAN Group (China Design & Build Firm)
GFA: 620m²
Design Period: 2024.9 – 2025.1
Completion Date: 2025.1.10
Photography: Hangzhou Yuchen Culture Media Co., Ltd.














