JF住宅,巴西 / KG Studio
这座住宅位于圣保罗内陆城市São José do Rio Preto的一处住宅社区内,建筑与室内设计项目于2024年完成。建筑基地面积约700平方米,建筑面积为600平方米,分布于上下两层。设计初衷是为了增强家庭成员与亲友之间的互动与共处。整体方案在空间整合与私密性之间寻求平衡,创造出既开敞联通又舒适实用的生活环境,以满足日常起居需求。
This residence, located in a condominium in São José do Rio Preto, in the interior of São Paulo, had its architecture and interior design project completed in 2024. Situated on a plot of approximately 700m², with 600m² of built area distributed over two floors, it was conceived to enhance conviviality with family and friends. The proposal seeks to balance integration and privacy through ample and connected spaces that comfortably and practically meet daily demands.
▼住宅概览,overview of the residence

▼住宅概览,overview of the residence

基地的自然缓坡为建筑的流畅布置提供了良好条件。建筑的结构语言以两道纵向铺设石材的山墙为标志,它们在空间中起到组织与界定作用,同时支撑着轻盈置于其上的上层体量。
The gentle slope of the lot allowed for a fluid and well-resolved implementation. The architecture is marked by two longitudinal stone-clad gables that structure and organize the spaces. This pair of elements supports the upper volume, which rests lightly on the base.
▼住宅入口,entrance of the residence

▼住宅入口,entrance of the residence


临街立面采用不透明墙体与木质百叶作为遮挡,下层保持隐私性,上层则以木质构件调节光线与视线。而在建筑后方,通过大面积的玻璃开窗,室内空间大尺度地向花园与自然景观敞开,内外之间实现了充分的视觉与功能整合。整体材料以自然质地为主,如木材与石材,强化了建筑与环境的对话,也营造出温暖宜人的氛围。
On the street-facing façade, privacy is preserved by opaque panels on the ground floor and wooden brises on the upper floor. At the back, the residence opens generously to the garden and landscape through large glass frames that promote direct integration between interior and exterior. The palette of natural materials—such as wood and stone—reinforces this dialogue with the surroundings and creates a welcoming atmosphere.
▼临街立面,the street-facing façade

▼面向花园一侧,facing the garden side

▼面向泳池一侧景观,landscape facing the pool


在一层,空间组织遵循结构山墙所形成的轴线展开:一侧集中布置服务性空间,包括厨房、洗衣间以及设有备餐功能的休闲区;另一侧则设置起居与社交空间。通体白色的定制柜体模糊了门扇与墙体之间的界限,巧妙地隐藏了储物与辅助功能区,保持视觉统一感。另一侧的空间同样采用连续家具设计,从入口延伸至露台,整合电视区、功能壁龛、收纳空间与边柜,使空间更加流动且富有秩序。家具配置融合了本土与国际设计作品,代表性作品包括由Sérgio Rodrigues设计的Tunico扶手椅和Arthur Casas设计的Amorfa咖啡桌。意大利品牌Astep的吊灯与照明灯具进一步丰富了整体氛围。
On the ground floor, the organization of the environments follows the axis defined by the structural gables: on one side, spaces dedicated to services—such as the kitchen and laundry, in addition to the gourmet area—are concentrated; on the other, living and social areas are found. Continuous white cabinetry mimics the doors that access support and service areas, ensuring visual unity. In the opposite wing, the same language is maintained: a custom-made furniture piece, extending from the entrance to the veranda, organizes activities by housing the TV area, support niches, storage areas, and a sideboard, contributing to the fluidity and functionality of the set. The furniture brings together national and international design pieces, with emphasis on the Tunico armchairs by Sérgio Rodrigues and the Amorfa coffee table by Arthur Casas. Lighting is enhanced by pendants and luminaires from the Italian brand Astep, which complement the ensemble.
▼厨房及餐厅,kitchen and dining area

▼客厅,living room

▼客厅,living room


▼面向露台的休息区,the lounge facing the terrace


▼浴室,bathroom

楼梯设置于一处室内花园上方,轻盈地连接起两个楼层。木质踏步嵌入墙体,营造出悬浮感;位于挑高空间顶端的天窗引入自然光,不仅照亮了交通动线,也部分照亮了客厅空间。
The staircase, positioned over an internal garden, connects the two floors with lightness and prominence. Wooden steps embedded in the wall create a sense of suspension, while a zenithal opening over the double-height ceiling allows abundant natural light to enter, illuminating the circulation and partially the living room.
▼轻盈的楼梯,staircase with lightness


▼轻盈的楼梯,staircase with lightness

二层的卧室以木质百叶遮挡,确保遮阳与隐私,同时朝向自然景观开放。黑胡桃木材质的柜体在床头与边柜处有所体现,与其他浅色调表面形成柔和对比。
On the upper floor, the bedrooms are protected by wooden brises and open towards the landscape. Walnut cabinetry appears punctually in headboards and sideboards, creating a harmonious contrast with other light tones of the surfaces.
▼二层的卧室,the bedrooms on the upper floor

▼二层的卧室,the bedrooms on the upper floor

▼二层的浴室,the bathroom on the upper floor

▼浴室细部,the bathroom detail

景观设计围绕整座住宅展开,在地面与二层露台皆设置绿植花坛与种植槽,选用垂吊式植物进一步加强建筑与自然的融合。大尺度开窗有助于实现自然通风与良好的采光,营造出清新宜人的生活环境,适宜休憩、交流与共享。
The landscaping surrounds the entire residence, exploring ground-level flowerbeds and planters on the upper verandas. Hanging foliage species reinforce the integration of the house with the surrounding nature. Large openings favor cross-ventilation and abundant natural light, ensuring fresh and pleasant environments—ideal for leisure and conviviality.
▼室内夜景,interior space at night

▼室内夜景,interior space at night

▼傍晚景象,building at dusk

▼傍晚景象,building at dusk


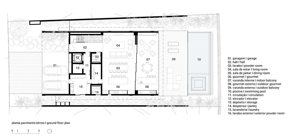
▼一层平面,ground floor plan

▼二层平面,first floor plan

▼剖面,section

Project: Residência JF
Location: São José do Rio Preto, SP, Brazil
Year of completion: 2024
Plot area: 700m²
Built area: 600m²
Architecture: KG Studio
Interiors: KG Studio
Lighting: Lucenera
Landscaping: Mônica Costa
Photography: Miti Sameshima
Text / Communication: Matheus Pereira
Main suppliers: Docol (metals), Exbra (finishes), Eloísa Cortinas (curtains and upholstery), Dpot (furniture), Belcolore (furniture), MiCasa (furniture), Atelier Carlos Motta (furniture), Jader Almeida (furniture), Green House (furniture), Itens Collections (furniture), Jacqueline Terpins (furniture), Astep (furniture), Augusta (furniture), Studio Objeto (furniture), Phenícia (rugs), Nani Chinellato (rugs), Glass 11 (furniture)














