上海话剧艺术中心修缮工程,上海/商业
上海话剧艺术中心位于安福路288号,毗邻武康路。它是由开创了中国话剧艺术的上海人民艺术剧院和上海青年话剧团于1995年合并成立,合并不久后,话剧大厦落成。现有建筑为18层的高层建筑,内部包含了一大两小共三个剧场,以及剧团业务、排练用房。
Shanghai Drama Art Center is located at No. 288 Anfu Road, adjacent to Wukang road. It was founded in 1995 by the Shanghai People's Art Theatre, which pioneered the art of Chinese drama, and the Shanghai Youth Drama Troupe. Shortly after the merger, the drama building was completed. The existing building is an 18 storey high-rise building, which contains three theaters, one large and two small, as well as the business and rehearsal rooms of the troupe.
经过20多年的使用,建筑内功能空间拥挤、流线交叉混乱、剧场声学条件不佳,舞台设施老旧。难以满足锐意进取的剧院管理团队力图打造一个综合、专业、国际化的话剧平台的目标。为改善话剧艺术创作、演出和排演等业务发展条件,提升上海话剧艺术的影响力,话剧大楼亟需进行一次全面的提升改造。
After more than 20 years of use, the functional space in the building is crowded, the streamline is crossed and chaotic, the acoustic conditions of the theater are poor, and the stage facilities are old. It is difficult to meet the goal of the enterprising theater management team to build a comprehensive, professional and international drama platform. In order to improve the business development conditions of drama art creation, performance and rehearsal, and enhance the influence of Shanghai drama art, the drama building urgently needs a comprehensive upgrading and transformation.
▼改造前的话剧艺术中心,Drama Art Center before transformation

本次修缮工程的修缮面积为11965平方米,范围包含地下一层至十二层。其中,一至七层作为剧场业务及配套设施用房;修缮内容涉及话剧中心的演出、排练、业务管理用房及辅助用房等,具体包括功能布局调整、装饰工程、消防工程、声学工程、舞台灯光、舞台机械及音响、观众座椅、建筑设备更新改造等。
The repair area of this repair project is 11965 square meters, covering the first floor to the twelfth floor underground. Among them, the first to seventh floors are used for theater business and supporting facilities; The renovation involves the performance, rehearsal, business management room and auxiliary room of the drama center, including functional layout adjustment, decoration engineering, fire engineering, acoustic engineering, stage lighting, stage machinery and sound, audience seats, building equipment renovation, etc.
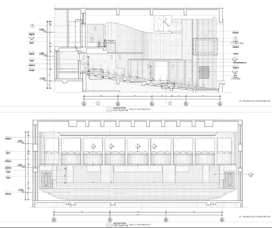
▼剖面图,profile

原建筑在文化艺术底蕴深厚的历史街区矗立多年,已成为城市记忆的一部分。本次设计尊重建筑的历史,采取微更新的策略,在建筑内部螺蛳壳里做道场:
The original building has stood for many years in the historical block with profound cultural and artistic heritage, and has become a part of the city's memory. This design respects the history of the building, adopts the strategy of micro renewal, and makes a dojo in the spiral shell inside the building:
通过对现状建筑细致的调研分析,逐一发现并解决现有建筑功能和规范上的问题,在有限的空间实现腾挪、疏通与提升;挖掘和强化原有建筑叠、分、合的空间特征,三个剧场在建筑声学上相互分隔,但在空间上加强关联性。
Through the careful investigation and analysis of the current buildings, we can find and solve the problems of the existing building functions and specifications one by one, and realize the lifting, dredging and upgrading in the limited space; Excavate and strengthen the spatial features of the original buildings, such as superposition, separation and combination. The three theaters are separated from each other in architectural acoustics, but strengthen the relevance in space.

▼剖透视图,sectional Perspective

各剧场外侧的等候厅之间原先相互隔离,设计通过新增两部“时空楼梯”串联上下楼层的公共空间,每个厅同时也承载了展示功能,通过与话剧相关的展陈,诸如服饰、道具、舞美模型,以及实验性的装置艺术赋予空间“示范性”与“传播性”等多重属性。
The waiting halls on the outside of each theater were originally isolated from each other. By adding two "space-time stairs" to connect the public space of the upper and lower floors, each hall also carries the display function. Through the exhibition related to drama, such as costumes, props, stage models, and experimental installation art, the space is endowed with multiple attributes such as "demonstration" and "dissemination".
▼时光楼梯,time stairs

▼时光楼梯,time stairs

▼休息厅,Lounge

▼休息厅,Lounge

利用安福路沿街绿树成荫的街道,将原有的二楼和三楼沿街层面,全部打通开放给观众,专设“戏剧空间站”、“小小戏剧家之家”等空间。观众来剧场既可以观看专业话剧,也可以介入到更多体验、思考、交流话剧艺术的“开放艺术空间”。
Using the tree lined streets along Anfu Road, the original second floor and third floor along the street level will be opened to the audience, and special spaces such as "drama space station" and "little dramatist's home" will be set up. When visitors come to the theater, they can not only watch professional dramas, but also get involved in the "open art space" for more experience, thinking and exchange of drama art.
▼雨棚,canopy

▼二楼大堂,lobby on the second floor

服务于内容的升级,本次大修对剧场的空间品质及硬件设施进行了升级改造。在主剧场,设计以非对称布局在观众席中间增加了斜向的通道,由长排法调整为短排法,从而减少排距,增加坐席的容量。排距与升起高度、每一个坐席的舞台视角,都经过视线计算,并通过现场真人模拟验证来确定,使坐席排布能更加科学的利用空间,从注重仪式感转向注重人性化。
Serving the upgrading of content, this overhaul has upgraded the space quality and hardware facilities of the theater. In the main theater, the asymmetric layout is designed to increase the inclined channel in the middle of the auditorium, and the long row method is adjusted to the short row method, so as to reduce the row spacing and increase the capacity of the seats. The row spacing, the rising height and the stage perspective of each seat are calculated by the line of sight and confirmed by the on-site real person simulation, so that the seat arrangement can make more scientific use of space, from paying attention to the sense of ceremony to paying attention to humanization.

▼观众厅,auditorium

▼小剧场,small theater

观众厅包裹式的内表面设计巧妙的将弧形包厢的形式变化延伸到池座两侧的侧墙,除了形式上的考量,更重要的是改善声场均匀度、调整适宜的混响时间,使观众厅的每一个坐席都能获得欣赏话剧所必须的语言清晰度。
The wrapped inner surface design of the auditorium cleverly extends the form change of the curved box to the side walls on both sides of the pool seat. In addition to the consideration of form, it is more important to improve the uniformity of the sound field and adjust the appropriate reverberation time, so that every seat in the auditorium can obtain the language clarity necessary to enjoy the drama.
▼观众厅立面图,elevation of auditorium

▼左:观众厅包房 / 右:池座侧墙细节,left: Auditorium private room / right: pool seat side wall details

观众厅坐席下方的回填层被改造成台阶送风的静压舱,减少了结构荷载,同时提升了剧场的净高与舒适性。人性化的原则从设计贯彻到施工:座椅靠背的弧度、号码牌的夜光效果,门把手的舒适度等等细节均得到细致的比选与考虑。
The backfill layer under the seats in the auditorium is transformed into a static pressure chamber with step air supply, which reduces the structural load and improves the clear height and comfort of the theater. The principle of humanization is implemented from design to construction: the radian of the seat back, the luminous effect of the number plate, the comfort of the door handle and other details have been carefully compared and considered.
▼观众厅坐席及号码牌细部,details of seats and number plates in the auditorium

本次修缮梳理出建筑的时间刻度线,并寄旧于新。话剧大厦原有的装饰艺术风格得到延续,新的创作容纳老的剧场元素。一些具有特殊纪念意义的老部件被完好保留或者另做新用,一楼大堂朝向安福路的旋转门处有一块直径2米的圆形拼花石材铺地,是上海话剧艺术中心每年30多万观众的必经之路。这块具有纪念意义的地面被完好地保留下来继续使用,过去和未来在“旋转”之间相互辉映。
This repair combs out the time scale of the building and sends the old to the new. The original decorative art style of the drama building has been continued, and the new creation accommodates the old theater elements. Some old parts with special commemorative significance have been preserved intact or used for new purposes. There is a round mosaic stone floor with a diameter of 2 meters at the revolving door of the first floor lobby towards Anfu Road, which is the only way for more than 300000 spectators of Shanghai Drama Art Center every year. This commemorative ground is well preserved and continues to be used. The past and future reflect each other in "rotation".
▼大堂,lobby

▼旋转门,revolving door

▼大堂细节,lobby details

▼入场通道,access

▼西门厅,west gate Hall

▼电梯厅,elevator lobby

熟悉的记忆与沉浸式的体验一起构成话剧艺术对市民更具亲和力的交互界面。在旧建筑的外壳内完成重构的话剧中心成为一座全新的“开放式剧场”,更加包容、开放地面向城市以及城市未来的生活。
Familiar memory and immersive experience together constitute an interactive interface with which drama art has a greater affinity for citizens. The drama center reconstructed in the shell of the old building has become a new "open theater", which is more inclusive and open to the city and its future life.
▼一层平面图,first floor plan















