Whidbey模块化预制住宅,华盛顿州 / Wittman Estes
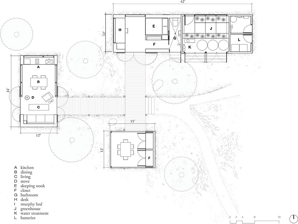
以“灵活性”为核心特征,该项目致力于打造一种对环境影响最小、同时促进居住者健康与自然联系的住宅。该项目面积为600平方英尺,仅为典型美国家庭住宅(2000平方英尺)的四分之一,并配有557平方英尺的有顶室外空间,包含雪松木平台和檐板。整栋住宅由4个模块组合而成,具备无限的可重构性,展现了预制建筑可灵活扩展、适应多种环境(无论是偏远地区、郊区还是城市)的潜力。Whidbey模块化预制住宅实现了高性能可持续与高度定制设计、可复制性的无缝衔接与融合。
Defined by flexibility, Puzzle Prefab took on the challenge to build dwellings that minimize environmental impact, while fostering health and connection to nature for the inhabitants. A quarter of the size of the typical 2,000-square-foot American home, the prototype includes 600 square feet of living space attached to 557 square feet of covered outdoor space with cedar decks and soffits. A series of 4 modules make this home infinitely reconfigurable, demonstrating prefabrication’s ability to create spaces that can sinuously expand and suit any environment, whether remote, suburban, or urban. Whidbey Puzzle Prefab seamlessly merges high-performance sustainable design with endless customization and replication.
▼建筑概览,architectural overview


▼与自然紧密联系,connection to nature


▼低环境影响的住宅,residential buildings with low environmental impact


该住宅是一个“碳负”的预制原型建筑,由4个模块构成:生活区、睡眠/学习区、能源模块和户外用餐区。所有模块均建于桩基之上,避免使用混凝土,共减少了24吨的二氧化碳排放。屋顶配备4.1千瓦的太阳能阵列,为热泵系统提供动力,实现了水力地暖/制冷与能量回收式通风系统的运行。智能家居控制系统实时监测能耗,并根据居住者的舒适度自动优化环境条件。
Puzzle prefab is a carbon-negative prefab prototype organized around 4 modules for living, sleep/study, energy, and outdoor dining. The modules are built on pin foundations, eliminating concrete and reducing CO2 emissions by 24 tons. A 4.1 kw solar array drives a heat pump with hydronic heating and cooling and energy recovery ventilation. Smart home controls monitor energy use and optimize conditioning to align with user comfort.
▼模块化的住宅,modular housing


▼积极可持续的关系,the positive relationship

▼生活区,the living space



▼餐厨区,the kitchen area


▼睡眠/学习区,the sleep/study area


▼学习区细部,the study area details

▼卫生间,the bathroom


该建筑最大限度地缩小了自身的占地面积,通过选用本地材料、在场外建造,和采用可拆卸基础,降低了对建设场地在物理与视觉上的影响。
The architecture minimizes its footprint, sources local materials, is built off-site, and incorporates impermanent foundations – reducing the physical and visible impact on the project location.
▼施工过程,Construction process




作为设计团队的试点项目,该项目正在持续跟踪各项性能指标,确保未来的每一次迭代都能从前一版本中汲取经验。最终,它成功打造出一种可复制、可灵活部署的“净零排放”、低环境负荷建筑模式,在建造过程、自然环境与居住者之间建立起一种积极、可持续的关系,惠及世代。
This is a pilot project for the design team, which is tracking performance metrics, ensuring that each subsequent iteration will be informed by the lessons of the previous home. It succeeded in building something replicable and flexible, net zero, and low-impact to the project site, to creative a positive relationship between the build process, the environment and the inhabitants for generations.
▼低环境负荷建筑模式,low-impact architectural model

▼住宅夜景,residential night view


▼轴测图,axonometric drawing

▼多样化的平面布局,diverse floor plans

▼模块布局图,modules site plan

▼平面图,site plan

▼细部图,Architectural detail drawing


Wittman Estes design team
Matt Wittman AIA, LEED AP
Jody Estes
Don Bunnell
Naomi Javanifard
Tristan Walker
Jen Sutherland
Project Team
Architecture and Interiors: Wittman Estes
Structural Engineer: Josh Welch Engineering
Builder: Sparrow Woodworks
Net Zero Energy Consultant: Erin Moore, FLOAT
Mechanical Engineer: Solarc Energy Group
Photography
Andrew Pogue
Dan Sutherland (construction)














