墩岙乡村治理学院,象山 / 本末联合建筑
墩岙村是宁波乡村建设的样板村,每年都会接待来自全国各地的参观访问学习团队。同时,墩岙村也是民宿特色村,来自上海宁波周边大城市的乡村旅游团队络绎不绝。村子的鲍书记是个精力充沛且很有乡村建设想法的村带头人,他希望这个项目成为墩岙村乡村建设经验的传播地、民宿群的公共客厅、村民活动的集聚点。
Dunao Village, located in Ningbo, is a model for rural development in the region. It hosts numerous learning and exchange visits from across China every year. It is also recognized as a village known for its guesthouses, attracting a constant stream of rural tourism groups from major cities such as Shanghai and Ningbo. The village’s Party Secretary, Mr. Bao, is a dynamic leader with a clear vision for rural revitalization. He hopes this project will serve as a hub for showcasing Dunao’s development experience, a shared living room for the surrounding guesthouses, and a gathering place for local villagers.
▼山体和村庄的延续,Continuation of Mountain and Village

▼项目场地位置,Project Site Location

▼项目鸟瞰 ,Aerial View of Project


▼项目鸟瞰 ,Aerial View of Project


▼村路看向建筑一端,View from Village Road toward Building End

▼标志性的飞檐,Iconic Overhanging Eaves

一个大屋顶A Grand Roof
建设用地位于群山山脚和村落间的过渡地带,一条小溪隔离了村子和用地,建立了清晰的边界。传统村落都会有一个乡村礼堂来承担各种大型公共活动,每个乡村礼堂都会有一个巨大的木构大屋顶。以一个巨大的屋顶作为整个建筑空间的控制性元素成为设计最初的想法。所以,如何支撑这个大屋顶便成为设计的一条结构性线索。
▼设计策略,Design Strategy

The site lies in a transitional zone between the village and the mountain foothills, separated from the main settlement by a creek that defines a clear boundary. Traditionally, villages in the region feature large rural halls topped with expansive wooden roofs to host major community events. Inspired by this vernacular typology, the initial design concept centers on a large roof as the dominant spatial and structural element. The question then becomes: how to support this grand roof?
▼项目鸟瞰 ,Aerial View of Project


▼建筑屋顶,Building Roof

▼建筑一端,Building End

▼建筑一端鸟瞰,Aerial View of Building End

▼建筑与山体的关系,Relationship between Building and Mountain

▼平面关系,Plan Relationship

▼屋顶与村庄,项目最初考虑上人屋面,Roof and Village – Initial Consideration for Accessible Roof

▼屋顶与村庄,Roof and Village

▼屋顶与村庄的关系,Relationship between Roof and Village

两个界面的回应Responding to Two Edges
梯形场地的两个长边面向两个截然不同的界面:山体和村落。两种不同的尺度,两种不同的景观。假如把建筑比喻为一个巨大的坡顶凉亭,坡顶之下的空间则连接了这两种不同的风景。于是,我们将传统大屋顶的对角线两端抬起,形成望山和望村的两个视角,一个沿着对角线双向起翘渐变的屋面出现了。
The trapezoidal site faces two contrasting conditions on its long sides: the natural mountain slope on one side and the human-scaled village on the other. These present two differing scales and visual experiences. If the building is imagined as a large pavilion with a sloped roof, then the space beneath becomes a connector between these two landscapes. The diagonal ends of the roof are lifted—one toward the mountain, the other toward the village—creating dual perspectives and a gently twisting roof plane.
▼建筑结构,Building Structure

▼建筑结构,Building Structure

▼建筑入口端,Building Entrance End

▼屋顶、山路与自然,Roof, Mountain Path, and Nature

▼屋顶结构细节,Roof Structure Detail

▼建筑与山体联系的界面,Interface between Building and Mountain

▼建筑入口标志性的飞檐,Iconic Flying Eaves at Building Entrance

▼建筑与村庄主道路的界面,Interface between Building and Main Village Road

▼飞起的屋檐与楼板,Flying Eaves and Floor Slab

▼村庄与坡道,Village and Ramp

▼二层与山体联系的界面, Interface between Second Floor and Mountain

“扁担”状结构体系A “Carrying Pole” Analogy
如何实现渐变大屋面的支撑成为设计的关键。我们想到老农挑扁担的方式,中央支撑、两端悬挂,取得一种微妙的平衡。如果以此为单元,渐次调整扁担的倾斜角度,就可以实现一个连续变化的屋顶。中央支点以一个稳定的三角来完成支撑,三角支撑下的大空间恰恰是我们需要的聚会场所。两侧对称悬挂的细小拉杆连接了屋面和地面,形成稳定而经济的结构单元。
▼结构分析,Structural Analysis

To realize this gradually twisting roof, the design draws inspiration from a traditional carrying pole used by farmers—supported at the center and suspended at both ends to achieve balance. By incrementally adjusting the angle of each “pole,” a continuous variation in the roof surface is achieved. The central supports are formed by stable triangular frames, creating a spacious gathering area beneath. Slender tension rods on both sides connect the roof edges to the ground, forming a series of efficient and stable structural units.
▼交流空间看向,View from Communication Space

▼交流空间与山路,Communication Space and Mountain Path

▼交流空间与山体,Communication Space and Mountain

▼坡道和看台,Ramp and Viewing Platform

▼坡道与开口,Ramp and Opening

▼坡道与山路的延续,Extension of Ramp and Mountain Path

▼入口、广场和村路的关系,Relationship between Entrance, Plaza, and Village Road

▼入口和广场,Entrance and Plaza

▼入口结构,Entrance Structure

▼入口与村路关系,Relationship between Entrance and Village Road

一条上山的路A Path Through the Roof
场地中原先就存在一条贯穿场地的上山路,我们保留并延续了这条道路,使其穿行与屋顶之下,不仅强化了山、建筑和村庄之间物理联系,也为行走者提供了一种身体可以感知的路径体验。
An existing footpath on the site, leading up the mountain, is preserved and incorporated into the design. This path now passes under the large roof, strengthening the physical connection between the mountain, the building, and the village. At the same time, it offers visitors a spatial experience that is both bodily and perceptual.
▼入口与村路关系,Relationship between Entrance and Village Road

▼山坡看向屋檐,View of Eaves from Hillside

▼山上看向屋檐,View of Eaves from the Mountain

▼屋檐与山路的关系,Relationship between Eaves and Mountain Path

▼檐下空间, Space under Eaves

一个综合空间A Multi-Functional Space
借助扁担结构在屋顶和地面之间插入楼板,梯形场地内连接地面和山脚的坡道穿越建筑,切分出多种不同尺度的丰富空间,容纳会议厅、活动室、咖啡厅,厨房,厕所等多重功能,成为多股人群与村落、自然交流生活的公共场所。
Floors are inserted between the roof and ground using the carrying pole structural logic. The sloping terrain and circulation path divide the interior into varied spatial scales, accommodating functions such as a conference hall, activity room, café, kitchen, and restrooms. The result is a shared public venue that supports diverse interactions between different user groups and the surrounding village and landscape.
▼多功能厅,Multi-function Hall

▼多功能厅,Multi-function Hall

▼多功能厅看向入口,Multi-function Hall Looking toward Entrance

▼一层咖啡厅,Ground Floor Café

一次在地建造Localized Construction Approach
借由结构即空间的理念,通过工厂定制的装配钢结构、现浇混凝土地面、就地取材的毛石墙围挡,木檩条石板瓦屋顶等一些在地建造方式,降低施工难度与建造成本,减少装修投入,在有限投资的条件下,在乡村施工队和村干部努力下,一个熟悉又新鲜的礼堂、一个翻飞的屋顶、一个通透的大凉亭静卧山脚,承接着各种各样的活动和村民的生活。
Embracing the principle of “structure as space,” the building adopts a low-tech and context-sensitive construction strategy: prefabricated steel frames, in-situ concrete floors, locally sourced rubble stone walls, and a roof built with timber purlins and slate tiles. These choices reduce construction complexity and cost, minimize finishing work, and make the project feasible within a limited budget. Thanks to the joint efforts of local builders and village officials, a familiar yet refreshing village hall—featuring an expressive roof and a transparent pavilion-like form—now stands quietly at the foot of the mountain, ready to host daily village life and various community events.
▼结构框架,Structural Frame

▼施工阶段 ,Construction Stage

▼建筑模型,Architectural Model




▼场地分析,Site Analysis

▼总平,Site Plan

▼一层平面,Ground Floor Plan

▼二层平面,Second Floor Plan

▼建筑立面,Elevations


▼剖面,Sections



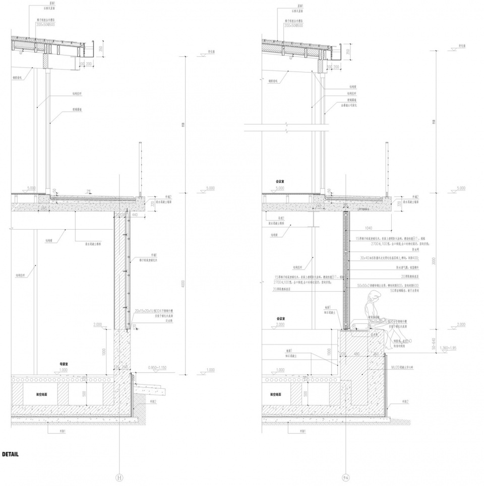
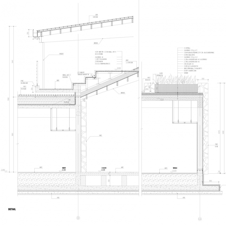
▼大样 ,Detail



Project name: DunAo Rural Governance Academy
Project type: Public
Design: Benmo Union Architect & Partners
Website: benmounion.com
Contact e-mail: benmo2007@126.com
Design year: 2021
Completion Year: 2025
Architectural & Interior Design Team: Zhongxiang Wang, Zaituan Chen, Jiaxing Chen, Zhengfang Chen, Zetian Tang, Li Yin, Jingyue Peng, Liu shi, Yucheng Zheng
Structural Consultant: Yanjun Liu
MEP Consultant: Jiangang Gu, Jun Wang
Project location: Dunao, Xiangshan, Zhejiang
Gross built area: 1789㎡
Photo credit: Jingyue Peng














