上海商业储蓄银行总行大楼 / 潘冀联合建筑师事务所
自2014年赢得上海商业储蓄银行总行大楼国际竞赛以来,JJP在企业形象与城市界面、土地利用与结构安全、环境永续与文化延续等多重议题中,展开了一场持续十年的系统性设计研究。
Winning the international competition for the Shanghai Commercial & Savings Bank Headquarters in 2014 marked the beginning of a ten-year design exploration for JJP—one that has continually examined corporate identity within the urban fabric, optimized land use and structural integrity, and sought a balance between sustainability and cultural legacy.
▼上海商业储蓄银行总行大楼,Shanghai Commercial & Savings Bank Headquarters

▼从民权东路看建筑外观,View of the Building from Minquan East Road

1.缘起
制度与环境的技术驱动
Background
Institutional and Environmental Context
本项目要在台北市城市干道民权东路与中山北路交叉口为上海商业储蓄银行重建一栋总部大楼。尽管基地面积有限,且受松山机场航道65.49m建筑限高制约,但其周遭街廓肌理丰富,叠加聚气纳财的「大周天」风水格局,历来为繁华的区域核心商圈——建筑前身即为80年代都市摩登地标「美琪大饭店」。
Located at the intersection of Minquan East Road and Zhongshan North Road in Taipei, the project rebuilds the Shanghai Commercial & Savings Bank headquarters. Despite a compact site and a 65.49-meter height limit, the area is characterized by a dense urban fabric and a feng shui layout traditionally associated with prosperity. Formerly home to the Majestic Hotel—a landmark of 1980s urban modernity, the site remains a focal point of the city’s commercial core.
▼用地与城市肌理,Site Context and City Fabric

▼传统风水格局与当代城市生活对建筑界面的影响,How Traditional Feng Shui and Modern City Life Shape the Building’s Facade


2017年《都市危险及老旧建筑物加速重建条例》颁布后,上海商银获准台湾首批危老商办建筑重建资格,这意味着在享有政策性容积奖励的同时,新大楼不仅要符合公众和企业成员对城市新地标的期待,也要满足更严格的抗震与节能标准。
With the 2017 enactment of Taiwan’s Urban Hazardous and Aged Buildings Accelerated Reconstruction Act, Shanghai Commercial & Savings Bank became eligible for accelerated commercial redevelopment, addressing both public and corporate aspirations, alongside enhanced seismic safety and energy-efficiency standards.
▼上海商业储蓄银行新总行大楼的门户界面,Entrance Facade of the New Shanghai Commercial & Savings Bank Headquarters

2 结构逻辑
金融秩序与空间效益的系统整合
Structural Logic
Integrating Financial Function and Spatial Efficiency
新建总行大楼在遵循风水对位原则的同时,通过结构外移释放最大室内净空——以「一个核心筒+一个斜肋构架」提升土地利用效率。
▼建筑以「一个核心筒+一个斜肋构架」于外观形成金融与钻石的几何联动,Facade shaped by “one core and diagonal ribs” system, echoing finance and diamonds

The new headquarters respects feng shui alignment while moving structural elements outward to maximize interior space, employing a “one core + diagonal rib” system to improve land-use efficiency.
▼建筑以「一个核心筒+一个斜肋构架」于外观形成金融与钻石的几何联动,Facade shaped by “one core and diagonal ribs” system, echoing finance and diamonds

2.1 斜肋构架复刻钻石语汇——结构即外观 Diagonal Rib Framework Echoes the Language of Diamonds — Structure as Facade
建筑外围的斜肋式结构(DIAGRID)采用「Y」「X」与「倒V」型构造。该系统在优化结构力流路径的同时,可显着减少钢材用量,并提升整体抗风与抗震性能。简约的几何语言形成多个切面,引起对钻石和金融秩序的联想。
▼斜肋构架系统展开图,Diagonal Rib Framework Diagram

The building’s exterior employs a diagonal rib (DIAGRID) system with “Y,” “X,” and inverted “V” configurations. This system not only optimizes structural load paths but also significantly reduces steel usage while enhancing overall wind and seismic performance. Its minimalist geometric language creates multiple facets, evoking associations with both diamonds and financial order.
▼从民权东路看建筑外观上简洁的钻石型几何语汇,Diamond-Inspired Façade Geometry viewed from Minquan East Road

2.2 系统整合实现多重空间——无梁柱室内 System Integration Enables Multi-Layered Spaces — Column-Free Interiors
斜肋构架的形式语言是与功能精准耦合的结果:14~16F利用「倒V」结构形成立体的开敞界面,在高空打造俯瞰城市与游步花园的独特体验;4~13F标准办公层以「X」结构与新型节能幕墙的一体化设计,不仅获得更大的自然采光面积,也增强了室内外景观连续性与环境响应能力。
▼建筑东西向剖面图,East–West Section of the Building

The diagonal rib framework integrates form and function. Floors 14–16 use an inverted “V”structure for open high spaces with city and sky garden views, while floors 4–13 employ an “X” system with an energy-efficient curtain wall, maximizing daylight and interior–exterior continuity.
▼分别跃2层和3层的演艺厅、全开放大堂,Two- and Three-Story Performance Hall and Fully Open Lobby


该系统亦便于形成跃层空间——「Y」结构围塑出挑高11m的骑楼,联通「全开放大堂」与「营业大厅」两组重要的公共服务空间集群,通过全通透的优白玻璃幕墙,在力学表现与空间体验之间建立起双重透明性。
This system also facilitates the creation of double-height spaces. The “Y” configuration shapes an 11 m-high arcade, connecting the fully open lobby with the banking hall, two key clusters of public service spaces. Through a fully transparent white-glass curtain wall, it achieves dual transparency—both structural and spatial—enhancing both engineering performance and user experience.
▼骑楼与挑高3层的营业大厅,Arcade and Three-Story High Banking Hall

▼骑楼幕墙采用清透的优白玻璃,透出精致的室内空间,The arcade curtain wall features clear white glass, revealing the refined interior spaces

3.可持续表皮
幕墙的实验性建构
Sustainable Facade
Experimental Curtain Wall Construction
在金融建筑中,「透明性」历来是公开、信任与制度责任的象征,玻璃幕墙因此成为表皮的首选。然而,在高能耗与气候变迁的现实中,这类强调视觉穿透的表皮系统,愈发难以满足节能减碳的当代需求。如何使幕墙从纯粹的形象表现,进化为整合气候响应与环境性能的复合构造?
In financial architecture, transparency has long signified openness and trust, making glass facades common. Yet today, such visually transparent walls often fail to meet energy and carbon-reduction needs. How can they evolve into systems that combine aesthetics with climate-responsive performance?
▼在中山北路与民权东路交叉口看幕墙的具体表现,View of the Curtain Wall at the Intersection of Zhongshan North Road and Minquan East Road

3.1 参数模拟与碳评估——以数据导向材料决策 Parametric Simulation and Carbon Assessment — Data-Driven Material Decisions
为回应立面设计的节能减碳挑战,JJP 推出自研平台 JJP Lab,与成功大学 SBED Lab 展开产学合作,建构出一套整合 Ladybug(热辐射)、DIVA(采光)、EnergyPlus(能耗)等模拟软件的建筑性能评估机制,使设计团队在量体与材料尚未定案的初期,即可通过参数化建模,快速比对不同外墙系统的可持续表现。
To tackle the facade’s energy and carbon challenges, JJP created its in-house JJP Lab and partnered with SBED Lab at National Cheng Kung University. They developed a building performance evaluation system combining Ladybug (thermal radiation), DIVA (daylighting), and EnergyPlus (energy use), enabling the design team to use parametric modeling to rapidly assess the sustainability of different façade options even before finalizing form and materials.
▼以 EnergyPlus 为引擎,比对一般 Low-E 玻璃、50% 透光网膜玻璃与 30% 透光网膜玻璃对空调热负荷的影响,EnergyPlus simulation comparing standard Low-E, 50% and 30% light-transmitting glass on air-conditioning loads

在进一步的建材评估中,设计团队导入由瑞士 SEFAR 公司研发的新型金属网膜玻璃。经模拟分析,相较于一般 Low-E 玻璃,透光率50%和30%的金属网膜玻璃分别可降低空调系统6.1%和8.2%的年耗电量,约减少碳排10~15吨。
During further material evaluation, the design team incorporated a new metal mesh glass developed by SEFAR (Switzerland). Simulations indicated that, compared to standard Low-E glass, the 50% and 30% light-transmitting versions reduced annual HVAC energy use by 6.1% and 8.2%, respectively, lowering carbon emissions by roughly 10–15 tons.
▼在民权东路看幕墙的具体表现,View of the Curtain Wall from Minquan East Road

相关研究成果不仅为业主决策提供科学依据,也整理为论文发表于第 17 届瑞士先进建筑表皮大会(ABS),并由 JJP 于 2022 年10月在伯恩研讨会上作公开汇报。
The research findings not only provided the client with a scientific basis for decision-making but were also compiled into a paper presented at the 17th Advanced Building Skins Conference (ABS) in Switzerland, and publicly reported by JJP at a seminar in Bern in October 2022.
▼建筑阳光受热分析,Solar Heat Analysis of the Building

▼三种幕墙隔热与抗紫外线性能分析,Thermal and UV Performance of Three Curtain Wall Systems

3.2 实体建模与感知建立——模拟之后的真实验证 Physical Modeling and Perceptual Validation — Testing Beyond Simulation
为弥补软件建模的感知缺失,团队并置实物比对不同幕墙材料在日夜交替中的透明度变化,尤其关注白日里网膜玻璃视线从内而外单向穿透的特点;同时制作了1:1的建筑局部模型,试验和讨论施做工艺与精度。
To complement software simulations, the team tested different curtain wall materials side by side, focusing on the mesh glass’s one-way transparency in daylight. A full-scale partial building mock-up was also built to refine fabrication techniques and precision.
▼比对不同幕墙材料在日夜交替中的透明度变化,Day–Night Transparency Comparison of Curtain Wall Materials

这种「软件模拟 + 实体测试」的双轨策略,不仅获得了真实环境中的使用体验,帮助设计师为隐私程度不同的空间精准配备适宜的外墙材料,也深化了幕墙系统实验性建构的可能。
This combined approach of simulation and physical testing provided real-world insights, enabling designers to choose appropriate façade materials for spaces with varying privacy needs and explore the experimental potential of the curtain wall system.
▼以实物弥补软件建模的感知局限,Physical Models to Validate Software Simulations

4.空间可视化
幕墙、结构与空间的协奏
Spatial Visualization
Integration of Curtain Wall, Structure, and Space
本案中,骑楼(1~3F)内侧无需考虑热负荷,更清透的优白玻璃成为首选;主要办公层(3~13F)借用50%透光网膜玻璃视线单向穿透的特征,兼顾采光和隐私;14F以上则通过30%透光网膜玻璃与卷帘形成双重屏障,应对高空热辐射。这集中体现了后高技派的可持续设计观:建造方案终要符合并表达空间使用特征,并为使用者与环境的协同进化服务。
In this project, the arcade (floors 1–3) uses clear white glass, as thermal load is minimal. Main office floors (3–13) feature 50% light-transmitting mesh glass, providing one-way visibility while balancing daylight and privacy. Floors above 14 use 30% light-transmitting mesh glass with roller blinds to form a dual barrier against high-altitude solar heat. This strategy embodies the post–High-Tech sustainable design approach: architectural solutions both reflect and support how spaces are used, fostering a harmonious relationship between occupants and their environment.
▼幕墙、结构和空间在立面上的整合表达,Integration of Curtain Wall, Structure, and Space Expressed on the Facade

4.1 The X:消失的梁——多专业协同达法规1.5倍抗震级别 The X: Vanishing Beams — Multi-Disciplinary Collaboration Achieves 1.5× Seismic Compliance
为满足A级办公空间所要求的2.7m净高,结构设计采用无梁板系统:统一压扁梁高并嵌入管线,形成平整的室内天花。本案中,70cm深的格子梁最大跨距达27m,搭配90颗TMD小型阻尼器,有效提升结构劲度、抑制长跨共振。在建筑、结构与机电的多专业协同下,整体系统达成法规1.5倍的抗震性能要求,实现空间弹性与结构安全的双重目标。
To provide 2.7 m of clear ceiling height for Grade-A office spaces, the design uses a beamless slab system, compressing beams and embedding MEP services to create a smooth, uninterrupted interior ceiling. In this project, 70 cm-deep waffle beams span up to 27 m and are supported by 90 tuned mass dampers (TMDs), boosting stiffness and controlling long-span vibrations. Through integrated collaboration among architecture, structure, and MEP disciplines, the system achieves 1.5× the seismic code requirement, balancing spatial flexibility with structural safety.
▼12~16F建筑结构透视剖面图,Perspective Section of the Building Structure, Floors 12–16

▼8F格子梁系统和各专业整合平面(放大区域为钢梁穿孔示意),8F Waffle Beam System and Multi-Disciplinary Integration Plan (Enlarged Area Shows Perforated Steel Beams)


4.2 The V:共享天空——环道与花园 The V: Shared Sky — Circular Walkway and Sky Garden
14~16F通过「倒V」结构与内收幕墙,释放出绿覆率达50%的环形步道与空中花园,集感知舒缓、情绪调节与社交延展功能于一体,成为企业落实员工关怀与健康福祉的空间表达。
Floors 14–16 use an inverted “V” with recessed curtain walls to create a circular walkway and sky garden (50% green), combining relaxation, social interaction, and well-being for employees.
▼环道和空中花园,Walkway and Sky Garden


4.3 The Y:城市互动——从骑楼到口袋公园 The Y: Urban Interaction — From Arcade to Pocket Park
骑楼作为兼具公共性与实用功能的建筑形态,被引入建筑底层沿街界面,发挥连接人群、遮挡风雨与延展城市活动边界的作用。
The arcade, a building form combining public accessibility and practical function, is introduced along the street-level façade to connect people, provide shelter, and extend the boundaries of urban activity.
▼骑楼-全开放入口大堂-口袋公园」序列,Sequence of “Arcade – Fully Open Entrance Lobby – Pocket Park”

项目以「Y」型结构包裹挑高3层的骑楼空间,通过结构支撑与分散的律动变化,形成更开放、流通的公共界面,强化建筑与街道的互动关系。
The project employs a “Y”-shaped structure to enclose the three-story-high arcade, using structural support and rhythmic variation to create a more open, fluid public interface, strengthening the interaction between the building and the street.
▼骑楼与口袋公园,Arcade and Pocket Park


穿过民权东路一侧的全开放大堂,行人可步入基地最深处的微型绿地。该空间借鉴美国城市规划中的「Pocket Park」概念,以流瀑隔绝都市喧嚣,营造静谧宜人的城市绿境。
From the fully open lobby along Minquan East Road, pedestrians can access a secluded inner green space. Drawing on the American “pocket park” concept, a cascading water feature separates the area from urban noise, creating a serene and inviting green retreat within the city.
▼在后高技派时代建构可持续的金融建筑,Sustainable Financial Design in the Post–High-Tech Era

在对墙面绿化等可持续构造的继承中,JJP进一步深化了后高技派的技术路径与协同方法,最终凝练成上海商业储蓄银行总行大楼独特的建筑表达。
By building on sustainable strategies such as green façades, JJP further refined the post–High-Tech approach and collaborative methods, culminating in the distinctive architectural expression of the Shanghai Commercial & Savings Bank headquarters.
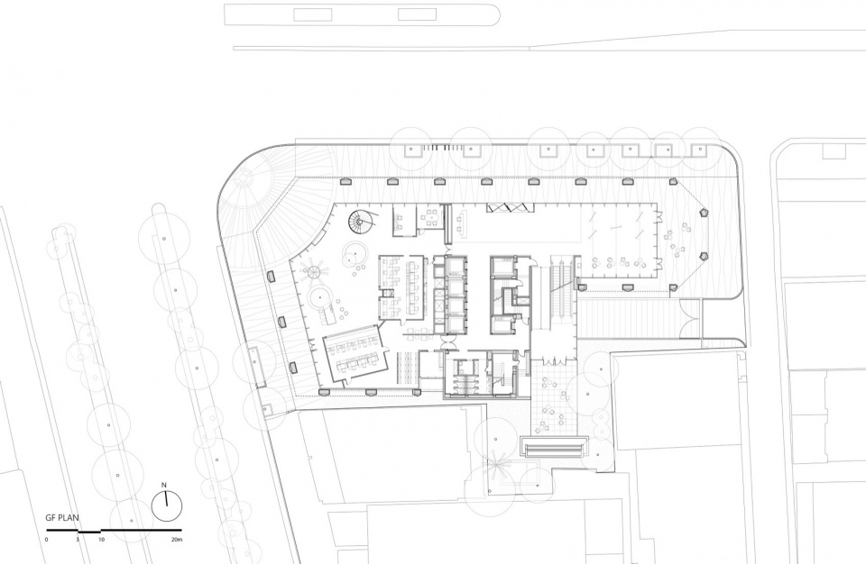
▼1F平面图,1F plan

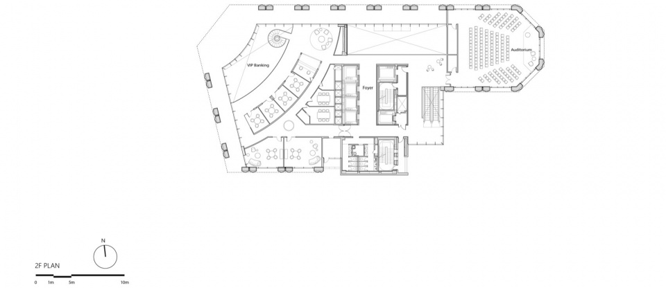
▼2F平面图,2F plan

▼8F平面图,8F plan

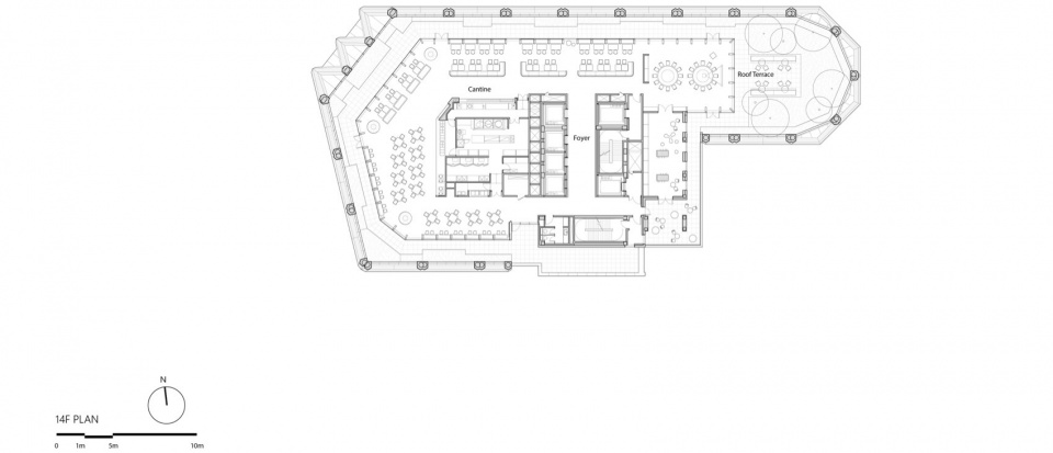
▼14F平面图,14F plan

▼剖面图,section


▼细部图,detail




项目信息 Project Information
2024 London International Creative Competition – Finalists
2024 Architecture MasterPrize Awards-Honorable Mention
图片版权:YHLAA 、JJP
Project Information
Project Name: Shanghai Commercial and Savings Bank
Project Location: Taipei, Taiwan
Project Address Details: No. 2, Section 1, Minquan East Road, Taipei City, Taiwan
Design Period: 2014.11~2019.08
Construction Period: 2020.01~2024.03
Client: The Shanghai Commercial&Savings Bank, LTD.
Design Firm: JJP Architects and Planners
Lead Designers: Joshua J.Pan, Chungwei Su
Design Team: 赵化宇 Chris H. Chao, AIA、王文𫓹 Wang Vincent、马法耶 Martinez Rafael、洪嘉谕 Hung Chia-Yu、蔡俊昌 Tsai Chun-Chang、苏楠泽 Su Nan-Tse、冷雪霜 Leng Syue-Shuang、吴淑精 Wu Shu-Ching、陈信颖 Chen Hsin-Ying、欧阳钧 Ouyang Jason C.、简良霖 Chien Liang-Lin、黄瑞民Huang Jui-Min、郑泑如Cheng Yu-Ju、陈镱铚Chen I-Chih、邵晴 Shao Ching、张志豪 Chang Chih-Hao、黄诗芳Huang Shih Fang、沈可航 Shen Ke-Hang、李贞仪 Lee Chen-Yi
Structural Engineering Consultant: Envision Engineering Consultants
MEP Consultant: Heng Kai Engineering Consultants lnc.
Interior Consultant: Horizon Design
Lighting Consultant: CMA X PLCD Lighting Design
Exterior Wall Consultant: Young Wise Engineering Design.,Ltd.
HVAC Consultant: SU, TSAl, and Associates Consulting Engineers
Construction Firm: Fu Tsu Construction Co., Ltd.; Shinwu Rimou Aluminum Co., Ltd.; Schueco International KG-TW; Johnson M&E Engineering Co., Ltd.
Site Area: 2,333㎡
Building Area: 1,300㎡
Total Floor Area: 28,818㎡
Project Programs: Banking hall, Wealth Management Center, Auditorium , Conference Center, Office, Bank History Museum, Training Center, Staff Canteen
Materials Used and Brands: 金属网膜玻璃(SEFAR) Metal Mesh Laminated Glass (SEFAR)、石英薄板(Fiandre) Porcelain Slabs (Fiandre)、石纹石英砖(Italgraniti)Porcelain Stoneware (Italgraniti)、石膏板轻隔间墙(环球水泥股份有限公司) Lightweight Gypsum Board Partition Wall (Universal Cement Corporation)
Sustainable Label: Green Building – Silver Level, Smart Building – Silver Level, Seismic Resistance Mark
Project Awards: 2025 International Design Awards(IDA) – Gold Award
2024 London International Creative Competition – Finalists
2024 Architecture MasterPrize Awards-Honorable Mention
Image Copyright: YHLAA 、JJP














