CASONA 142酒店,墨西哥 / Lc arquitectura
CASONA 142 是一家位于墨西哥韦拉克鲁斯州Orizaba市中心的精品酒店。这座城市被誉为“魔幻小镇”(Pueblo Mágico)。酒店坐落于一座建于1900年代的宅邸之中。项目在保留原有建筑历史风貌的同时,以当代奢华的视角进行重新诠释。业主给予设计团队完全的创作自由,使建筑事务所得以构想出一座具有鲜明个性的酒店:展现了历史与现代如何在精致的建筑对话中并存。
CASONA 142 is a boutique hotel nestled in the heart of Orizaba, a designated Pueblo Mágico in Veracruz, Mexico. Housed in a 1900s mansion, the project preserves the historic character of the original structure while reinterpreting it through the lens of contemporary luxury. With full creative freedom granted by the client, the architectural studio conceived a hotel with a distinct identity—one that demonstrates how heritage and modernity can coexist in a refined architectural dialogue.
▼建筑外观,architectural appearance

整个空间体验被设想为一场多感官之旅:建筑、室内、材质、灯光、环境音效、定制香氛、艺术介入以及对原有元素的创意再利用,共同赋予了每个空间独特的气质。
The spatial experience is conceived as a multisensory journey, where architecture, interior design, materiality, lighting, ambient sound, curated scents, artistic interventions, and the creative reuse of preexisting elements come together to make each space truly singular.
▼历史与现代的并存,the coexistence of history and modernity

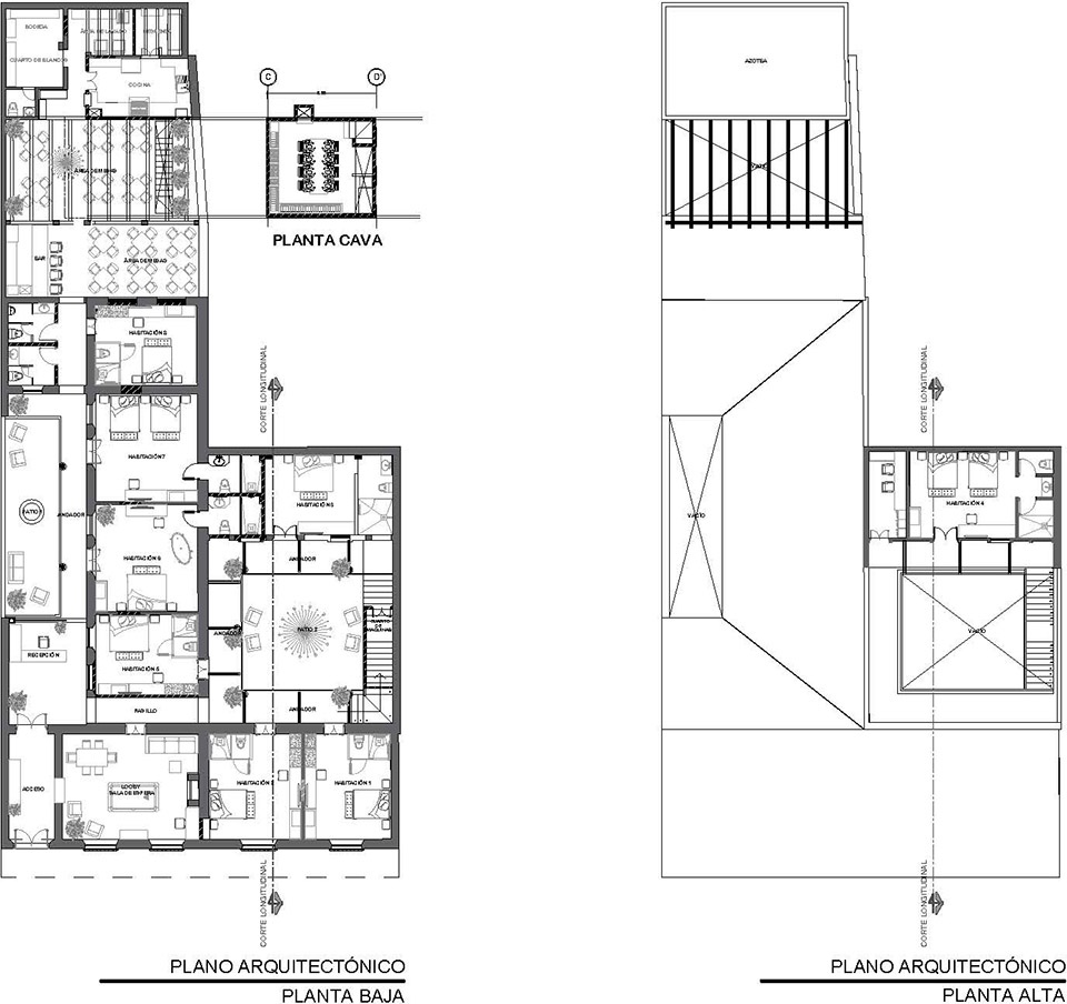
酒店功能区分布于两层及一处地下酒窖。一层设有七间客房、多功能厅以及三个庭院,其中一个庭院与餐厅和酒吧相连。宾客可从此处庭院进入“秘密酒窖”——酒窖入口巧妙隐藏在一张餐桌下方的隐秘通道中。这里是进行私密聚会的理想场所,菜品通过专用厨房升降机送达,葡萄酒则以最佳温度呈上。
The programme is distributed across two levels and a subterranean wine cellar. The ground floor accommodates seven guest rooms, a multi-purpose hall, and three courtyards—one of which integrates the restaurant and bar. From this courtyard, guests can descend into the “secret cellar,” accessed by a discreet passage concealed beneath a table. This intimate setting is ideal for private gatherings, where dishes arrive via a dedicated kitchen lift and wines are served at optimal temperature.
▼庭院空间,the courtyards

▼“秘密酒窖”,“secret cellar”

建筑的原始立面得以完整保留,展现出木梁、锻铁细节,以及一扇由手工雕刻的木门,通向前厅。这个过渡空间将原有地面铺装与背光 Barrisol 烟熏镜面天花并置,营造出映射与反射交错的视觉效果,仿佛将高度与深度无限延展。
The original façade has been carefully preserved, showcasing wooden beams, wrought-iron details, and a majestic hand-carved timber door that leads into the vestibule. This transitional space juxtaposes original flooring with a backlit barrisol ceiling finished in smoked mirror, generating a play of reflections that evokes a sense of infinite height and depth.
▼过渡空间,the transitional space


从前厅进入的 Gran Salón 是深受宾客喜爱的公共空间,其设计呈现出过去与现在的双重表达。一半空间由当代元素构成,另一半则由修复的历史构件组成,一道贯穿全室的明亮光带标记了两种设计语言之间的分界。
From the vestibule, the Gran Salón unfolds—a favourite among guests—designed with a duality that expresses the dialogue between past and present. Half the space is composed of contemporary elements, the other of restored heritage pieces, with a luminous line traversing the entire room to mark the threshold between both languages.
▼ Gran Salón公共空间,Gran Salón

照明在整个项目中发挥着关键作用。每个空间和每间客房的灯光设计都独具主题与氛围,突出了关键的建筑与装饰细节。照明策略包括霓虹文字、每晚点燃的手工蜡烛、悬挂在古井上方的水晶吊灯、床底的间接照明、四柱床顶嵌入的暗装灯具,以及编织于淋浴间中的雕塑形态灯具。
Lighting plays a fundamental role throughout the project. Each space and each guest room is illuminated in a manner unique to its theme and atmosphere, highlighting key architectural and decorative features. The lighting strategy includes neon phrases, handcrafted candles lit nightly, a crystal chandelier suspended over an old well, indirect lighting beneath beds, recessed fixtures embedded in four-poster canopies, and sculptural forms woven into the showers.
▼ 客房照明设计,the lighting design in guest rooms


艺术也被无缝嵌入建筑叙事之中。本地艺术家在多个区域进行了创作,其中最具标志性的是一组 280 只蜂鸟装置,它们贯穿酒店的不同空间,形成客房与庭院之间的视觉纽带。宾客或许会在古董陈列柜中、横梁之上,或房间的绿植间发现它们的身影。
Art is woven seamlessly into the architectural narrative. Local artists intervened in various areas, most notably through an installation of 280 hummingbirds that appear throughout the hotel—establishing a visual thread between rooms and courtyards. Guests may discover them tucked inside antique display cases, perched atop ceiling beams, or nestled in the vegetation of their room.
▼蜂鸟装置,an installation of hummingbirds


▼ 庭院照明设计,the lighting design in courtyards

客房保留了原有木地板,部分墙面在剥除油漆层后显露出历史时期的壁画,这些被重新发现的片段被纳入室内设计的核心元素中,彰显流逝的时间是建筑体验的重要部分。
The original wood flooring is preserved in the guest rooms, and in several instances, layers of paint were removed to reveal historic wall murals beneath. These recovered fragments were embraced as central features of the interior scheme, celebrating the passage of time as an essential part of the architectural experience.
▼ 客房空间,the guest rooms

▼ 客房空间细部,the guest room details


▼ 立面图,facade drawing

▼ 建筑平面图,plan drawing

▼ 建筑剖面图,section drawing

Lc arquitectura
Jorge Limon, Adriana limon
Photo LGM studio
Media: area colectiva














