青山学堂,杭州 / MOMENTUM建筑设计事务所
在乡村教育体系快速城市化、集中化的背景下,青山学堂的出现并非偶然。它源于一次对于“乡村是否还需要一所学校”的深刻反问,也源于村庄内外对于儿童、学习、场所三者关系的共同期待。
Against the backdrop of rapid urbanization and centralization of the rural education system, the emergence of Qingshan School is far from accidental. It stems from a profound question — does the countryside still need a school? — and from a shared aspiration within and beyond the village to reimagine the relationship between children, learning, and place.
▼建筑鸟瞰图,Aerial View

▼稻田、小路、学堂、远山, Paddy fields, winding paths, village school, distant mountains



项目选址于杭州余杭青山村一所废弃小学旧址,原有教学楼结构严重老化破损,空间布局亦已无法满足现代教学需求,因此不具备改造价值。我们在尊重场地肌理与空间记忆的前提下,拆除原建筑并在原址原高度的基础上进行了完整重建。我们希望以最朴实的建筑语言,为乡村重新构建一个以学生为中心的教育空间,一个能够激发学习主动性、连接村落生活、承载社区记忆的开放场所。
The project is located on the site of an abandoned primary school in Qingshan Village, Yuhang District, Hangzhou. Due to severe structural deterioration and an outdated spatial layout that no longer met contemporary educational needs, the original school building was deemed unsuitable for renovation. Respecting the site’s physical context and spatial memory, we opted for a complete reconstruction, maintaining the original footprint and building height. With the simplest architectural language, we aimed to rebuild a student-centered educational space for the village—an open place that fosters self-motivated learning, reconnects with rural life, and carries the collective memory of the community.
▼稻田、小路、学堂、远山, Paddy fields, winding paths, village school, distant mountains

目前,青山学堂正在以研学课程、乡村营地、社区教育等形式逐步运行。虽然尚未进入正式的学籍体系,但它已成为村民、儿童、设计者与教育者共建共用的“共享学堂”。在这个过程中,我们看见了空间作为公共平台的激活力,也看见了教育本身在地方实践中的重新生长。
▼场地分析, Site Study

▼自然生长的学堂, A School That Emerges Naturally

At present, Qingshan School is gradually operating through rural experiential learning programs, rural camps, and community education initiatives. Although it has not yet been integrated into the formal school registration system, it has already become a “shared school” co-created and used by villagers, children, designers, and educators. Throughout this process, we have witnessed the activating power of space as a public platform, as well as the regeneration of education itself through local, place-based practices.
▼原废弃小学风貌, The Original State of the Abandoned Rural School


▼场地周边环境, Surrounding Environment

回归土地:重新定义教育空间的可能性Returning to the Land: Redefining the Possibilities of Educational Space
项目所在地依山傍田,溪流环绕,是典型的江南乡土场景。费孝通在《乡土中国》中提到,传统社会中的“熟人社会”、“差序格局”和“礼治秩序”构成了乡土文明的基本面貌。如今,随着现代化的推进,许多乡村生活方式逐渐远离我们的日常。然而,土地不仅是乡村的符号,也是民族文化的根基。如何在现代教育中处理乡土与现代的关系,成为本项目的重要思考。原村小虽然废弃多年,但其空间肌理、村民记忆和情感仍在,成为设计出发的基础。
The project site is nestled between hills and farmlands, surrounded by streams—a quintessential Jiangnan rural landscape. In From the Soil, Fei Xiaotong describes how the traditional Chinese countryside was shaped by “acquaintance-based society,” “differential mode of association,” and “rule by ritual,” forming the foundation of rural civilization. Today, with the advance of modernization, many rural ways of life have faded from our daily experience. Yet the land is not only a symbol of the countryside—it is also the cultural root of a people. How to reconcile the rural and the modern within contemporary education has become a central question of this project. Though the old village school had long been abandoned, its spatial texture, emotional resonance, and collective memory remained—forming the foundation and point of departure for our design.
▼学堂的操场, School Playing Field


我们尊重原有校园的基本布局与场地逻辑,在原址基础上以轻介入方式进行重构,保留了双坡屋顶和原始体量,同时通过模块化布局与廊道组织,形成一个开放而灵动的教学聚落。建筑不再是封闭的教室,而是贯穿于田野、树荫与溪边的多个学习节点。学习的场所不再只有一间“教室”,而是由“走廊、操场、平台、庭院”等多个空间共同构成。我们希望让学习像野草一样,自然地在各个角落生长,与环境、季节、人群产生真实联系。
▼教学空间模式,Educational Space Model

We respected the original layout and spatial logic of the former campus, and carried out a light-touch reconstruction on the existing site. By preserving the dual-pitched roofs and the original building massing, and introducing a modular layout connected by corridors, we created an open and flexible learning village. The architecture is no longer a set of enclosed classrooms, but a series of learning nodes woven through fields, under trees, and along the stream. Here, learning no longer happens in a single “classroom,” but unfolds across a constellation of spaces—corridors, playgrounds, platforms, and courtyards. We hope that learning can grow like wild grass, naturally sprouting in every corner, forming genuine connections with the environment, the seasons, and the people.
▼通过廊道的编织将建筑串联起来形成自然聚落, The buildings are connected and woven together through corridors, forming a natural village cluster

从“教室”到“学堂”:空间激发主动学习From “Classroom” to “Schoolhouse”: Designing Spaces for Self-Directed Learning
村小学曾是青山村重要的教育载体,见证了无数村民启蒙和外出求学的历史。 随着人口外流,乡村小学合并到乡镇了,学校逐渐荒废,但近年来,青山村的“生态+”与“人才+”模式带来了新生力量,新村民与老村民都期望村里能重建一所符合现代需求的学校。这样的背景促使我们重新思考:传统“教室与铃声”的模式是否满足孩子多样化、主动探索的学习需求?
▼教室模块布局图示, Modular Classroom Layout Diagram

The former village school was once a vital educational anchor in Qingshan Village, bearing witness to generations of villagers’ early education and journeys beyond the countryside. With rural depopulation and the consolidation of local schools into larger township institutions, the campus gradually fell into disuse. However, in recent years, Qingshan’s “Ecology+” and “Talent+” strategies have brought new vitality to the village. Both long-time residents and newcomers expressed a shared hope for a school that meets the needs of contemporary learning. This context prompted us to reconsider: Can the traditional model of classrooms and ringing bells still meet children’s diverse and exploratory learning needs?
▼教室与操场之间, Between the Classroom and the Playground

青山学堂的设计正是在这种期待中萌生。设计摒弃传统的“讲授式”格局,采用可变的小组空间、多维互动界面与模块化布置,使学生在不同情境下自由转化学习方式。项目在早期即与杭州的教育团队展开深度合作,共同构建面向儿童认知发展的空间策略。
The design of Qingshan Schoolhouse grew out of this very question. It moves away from conventional lecture-based layouts and instead adopts flexible group spaces, multi-dimensional interactive interfaces, and modular arrangements. These elements allow students to shift between learning modes freely, depending on context. From the early stages, the project was developed in close collaboration with educational teams in Hangzhou, working together to create spatial strategies rooted in children’s cognitive development.
▼过道, Corridor

▼楼梯通高空间,Double-Height Stairwell

▼过道,Corridor

每一组教室都以“独立而开放”的方式布置,既适合集体协作,也鼓励个体沉思。教室之间的灰空间、廊道和平台也被设计为可教可学的弹性空间,教学活动可以自然延伸至室外。
▼多维教学空间布局,Multi-Dimensional Classroom Layout

▼艺术教室五面图,Art Classroom Five-View Drawings

▼教室五面图,Music Classroom Five-View Drawings

Each cluster of classrooms is arranged in a way that is both “independent and open”—supporting collaborative group work while also encouraging individual reflection. The in-between spaces—such as corridors, platforms, and semi-outdoor areas—are designed as flexible zones for teaching and learning, allowing educational activities to naturally extend into the outdoors.
▼篝火:组团式学习空间,Campfire: Cluster-Based Learning Space

▼洞穴:一个人独处思考与反思学习的地方, The Cave: A Place for Solitude, Reflection, and Learning

▼水池:同伴间相互学习的流动领域,非正式空间,The Pool: A Fluid Space for Peer-to-Peer Learning, an Informal Environment

▼艺术:音乐与身体的流动领域,活动空间,Art: A Dynamic Space for Music and Movement Activities

▼专用教室,Classroom

▼食育课堂, Café

在这里,知识的获取不仅发生在课桌前,更通过手工操作、自然观察、社群互动与身体感知获得。这是一种远离考试导向、更关注成长过程的学习空间建构。
Here, the acquisition of knowledge goes beyond the desk—it unfolds through hands-on making, observation of nature, community interaction, and embodied experience. This is a learning environment that moves away from exam-driven instruction, placing greater emphasis on the process of growth and holistic development.
▼联结室内外的风雨操场, Covered Playground


空间作为社区的平台:教育之外的社会功能Space as a Community Platform: Social Functions Beyond Education
青山学堂的重建,也为村庄带来了新的集体场所。在正式学校缺位的当下,它承接了乡村亲子教育、文化活动与自然体验等多元功能,不仅回应了儿童的成长需求,也成为社区交流的重要节点。家长在伞亭下交谈,村民在廊道旁观摩教学,青年志愿者在此举办工作坊,教育不再是封闭的系统,而成为生活的一部分。这种“非正式的使用”成为项目的积极特征,也体现了乡村教育的更多可能性。
The reconstruction of Qingshan School has also brought a new collective venue to the village. In the absence of a formal school, it serves multiple roles—supporting rural parent-child education, cultural activities, and nature experiences. It not only addresses the developmental needs of children but also acts as an important hub for community interaction.Parents chat under the pavilion, villagers observe lessons from the corridors, and young volunteers host workshops here. Education is no longer a closed system but an integral part of daily life. This “informal use” has become a positive feature of the project and reflects the broader possibilities of rural education.
▼村民日常的漫步, The local’s daily walk

▼运动场也是晒谷场:融入乡村生活的开放学堂空间,A Sports Field and Grain-Drying Yard: An Open School Space Integrating Rural Life

▼融入乡村生活日常的校园,稻谷堆成为校园的景观,A Campus Integrated into Daily Rural Life


建筑语言的土性与温度The earthiness and warmth of the architectural language
建筑在材料选择与施工方式上强调在地性与可参与性。我们选用当地不同颜色的原生土壤,以传统抹墙工艺完成内外墙面,竹编构件与木结构由本地工匠与青年建造志愿者共同完成。
▼当地可利用材料调研与运用, Investigation and Use of Local Materials

▼安吉泥土学校做的生土实验,Rammed Earth Experiment Conducted at Anji Mud School

▼夯土在建筑立面中的运用,Application of Rammed Earth in Building Facades

The architecture emphasizes locality and participatory construction in both material selection and building methods. We used locally sourced soils of varying colors, applying traditional plastering techniques for the interior and exterior walls. Bamboo weaving components and wooden structures were crafted collaboratively by local artisans and young volunteer builders.
▼建筑外观, Building Exterior

联结建筑与环境的廊道系统A corridor system that connects architecture and the environment
校门入口空间以传统油纸伞为灵感,融合现代参数化设计方法,成为连接学校与社区的“第三空间”。廊道与雨棚既具有气候适应性,也成为儿童流动与停留的学习背景。建造过程不仅是物理操作,也成为一次社区参与与知识交流的过程。设计团队希望通过这种有温度的空间生产方式,使建筑本身成为文化再生与乡村社会机制重构的一部分。
▼亭、廊、学堂与场地, Pavilions, Corridors, Schoolhouse, and Site

The school entrance space draws inspiration from traditional oil-paper umbrellas and integrates modern parametric design methods, creating a “third place” that connects the school with the community. The corridors and canopies are designed not only for climatic adaptability but also as dynamic learning environments where children can move, gather, and explore. The construction process was more than just a physical operation—it became a platform for community participation and knowledge exchange. Through this warm and participatory approach to space-making, the design team aims for the architecture itself to become part of cultural regeneration and the reconstruction of rural social systems.
▼竹编风雨长廊,Bamboo Woven Rain Shelter Corridor

▼竹编风雨长廊,Bamboo Woven Rain Shelter Corridor


▼传统油纸伞转化的校门,School Gate Inspired by Traditional Oil-Paper Umbrella



▼灯光凸显伞骨秩序,Lighting Highlights the Structural Rhythm of the Umbrella Ribs

展望:教育空间的另一种可能Looking Ahead: An Alternative Possibility for Educational Space
青山学堂并非一个完整的教育体系,但它确实正在发生着真实的教育。它不是“正式学校”的替代品,而是教育空间进化过程中的一个样本——不以制度划界,而以学习者为本,不以功能划分,而以社区联结。我们相信,教育不应只有一种样貌。在青山学堂这样的项目中,建筑不仅是物理空间,更是社会实验、文化场域与价值观表达的结合体。未来我们希望,青山学堂能成为一个被制度认可的正式学校。但即使在尚未实现的阶段,它也已经证明了空间的力量:它可以激发学习,连接社群,唤起对乡村未来的更多想象。
Qingshan School is not a complete formal education system, yet it is a site of genuine learning in progress. It is not a substitute for a “formal school,” but rather a prototype in the evolution of educational spaces—centered on learners rather than institutional boundaries, focused on community connection rather than rigid functional divisions.We believe education need not have a single form. In projects like Qingshan School, architecture serves not only as a physical space but also as a social experiment, a cultural arena, and an expression of values. In the future, we hope Qingshan School will become an officially recognized institution. But even before reaching that stage, it has already demonstrated the power of space: to inspire learning, connect communities, and awaken new imaginations for the future of rural life.
▼学堂池塘倒映校园环境, The pond reflects Surrounding Environment

▼The entrance corridor

▼秋收的青山学堂,Qingshan School in the Autumn Harvest

▼青山学堂校门,Qingshan School Front Gate

▼实体模型,Physical Model



▼总平面图,Site Plan

▼1号楼图纸展开,Expanded Drawings of Building No.1

▼2号楼图纸展开,Expanded Drawings of Building No.2

▼3号楼图纸展开,Expanded Drawings of Building No.3

▼4号楼图纸展开,Expanded Drawings of Building No.4

▼一层平面布置图,First Floor Layout

▼二层平面布置图,Second Floor Layout

▼教室② 五面图,Classroom ② Five-Side Drawings

▼教室④五面图,Classroom ④ Five-Side Drawings

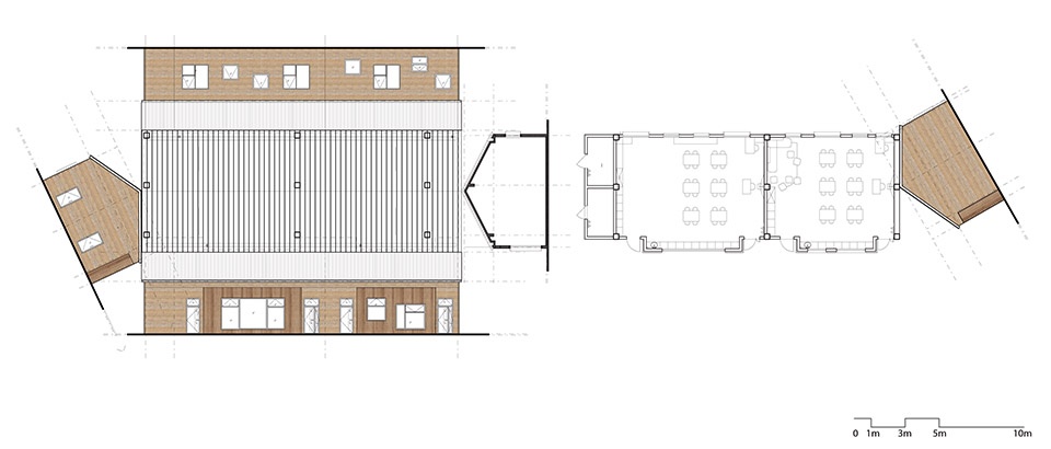
▼风雨操场五面图,Covered Playground Five-View Drawing

▼伞形校门,Umbrella Shape Front Gate















