圣保罗Salma大厦,巴西 / aflalo/gasperini arquitetos
圣保罗Salma大厦由aflalo/gasperini arquitetos事务所设计。这座16层高的塔楼以螺旋式绿色露台、城市渗透性与高水平的环境表达,重新定义了建筑与自然的关系。
Designed by aflalo/gasperini arquitetos, this 16-story tower redefines the relationship between architecture and nature with spiral green terraces, urban permeability, and high environmental performance.
▼项目概览,overview

▼螺旋式绿色露台,spiral green terraces


在圣保罗这座以钢筋混凝土与高速节奏为基调的都市中,Salma大厦如同一种“鲜活的矛盾体”。它既是一座顶级企业塔楼,也是一处悬浮的都市生态系统——果树、鸟鸣与森林微风自由流淌于会议室、咖啡厅与办公空间之间。
In a city where concrete and speed set the tone, Salma Tower arrives as a living contradiction. Yes, it’s a Triple-A corporate tower. But it’s also a suspended ecosystem where fruit trees, birdsongs, and forest breezes flow through boardrooms, cafés, and workstations.
▼悬浮的都市生态系统,the suspended urban ecosystem



Salma大厦拥有LEED铂金级建筑认证与1200平方米大西洋生态原生森林的垂直植入,不仅仅将植物带入了室内,更是彻底将办公楼转化为一片森林。
With LEED Platinum certification and 1,200 sqm of native Atlantic Forest embedded across 16 floors, Salma Tower redefines what a workplace can be. This isn’t about bringing plants indoors. It’s about turning the office into a forest.、
▼入口空间,productivity and nature

▼前厅大堂,front hall lobby

该项目也超越了传统的“智能大楼”概念,而是一份垂直的生物亲和宣言,或可称为南半球最具胆识的一次建筑尝试。在这里,生产力与自然的节奏相遇,在圣保罗的城市天际线生出新的根系。
More than a smart building, it’s a vertical biofilic manifest — arguably the boldest in the Southern Hemisphere. It’s a place where productivity meets nature’s tempo, and where the skyline grows new roots.
▼室内外的绿意,indoor and outdoor greenery


为什么Salma大厦如此重要,可以概括为4个要点。首先,Salma大厦是全球五大最可持续的顶级企业建筑之一。第二,该项目实现了巴西原生森林与城市建筑的最大规模整合,将真正的自然引入都市。第三,该项目也成为了新型企业建筑的象征:聚焦心理健康、感官体验与绿色创新。最后,Salma大厦具备成为全球企业生物亲和设计标杆的潜力,吸引重视人本环境的企业与人才
Why does Salma Tower matter? It is one of the five most sustainable Triple-A buildings in the world. It represents the largest integration between native forest and urban architecture in Brazil, bringing real nature into the city. It stands as a symbol of new corporate architecture—centered on mental health, sensory experiences, and green innovation. It holds the potential to become a global benchmark in corporate biophilic design, attracting companies and talent that value more human-centered environments.
▼夜景,night view

总结而言,Salma大厦的概念为:企业生物亲和、身心健康、人与自然在工作场所的重新连接,其目标这是建立以生活质量、生产力与环境修复为核心的新型城市办公模式
Concept: Corporate biophilia, well-being, and reconnection with nature in the workplace. Purpose: To establish a new model of urban workspace focused on quality of life, productivity, and environmental regeneration.
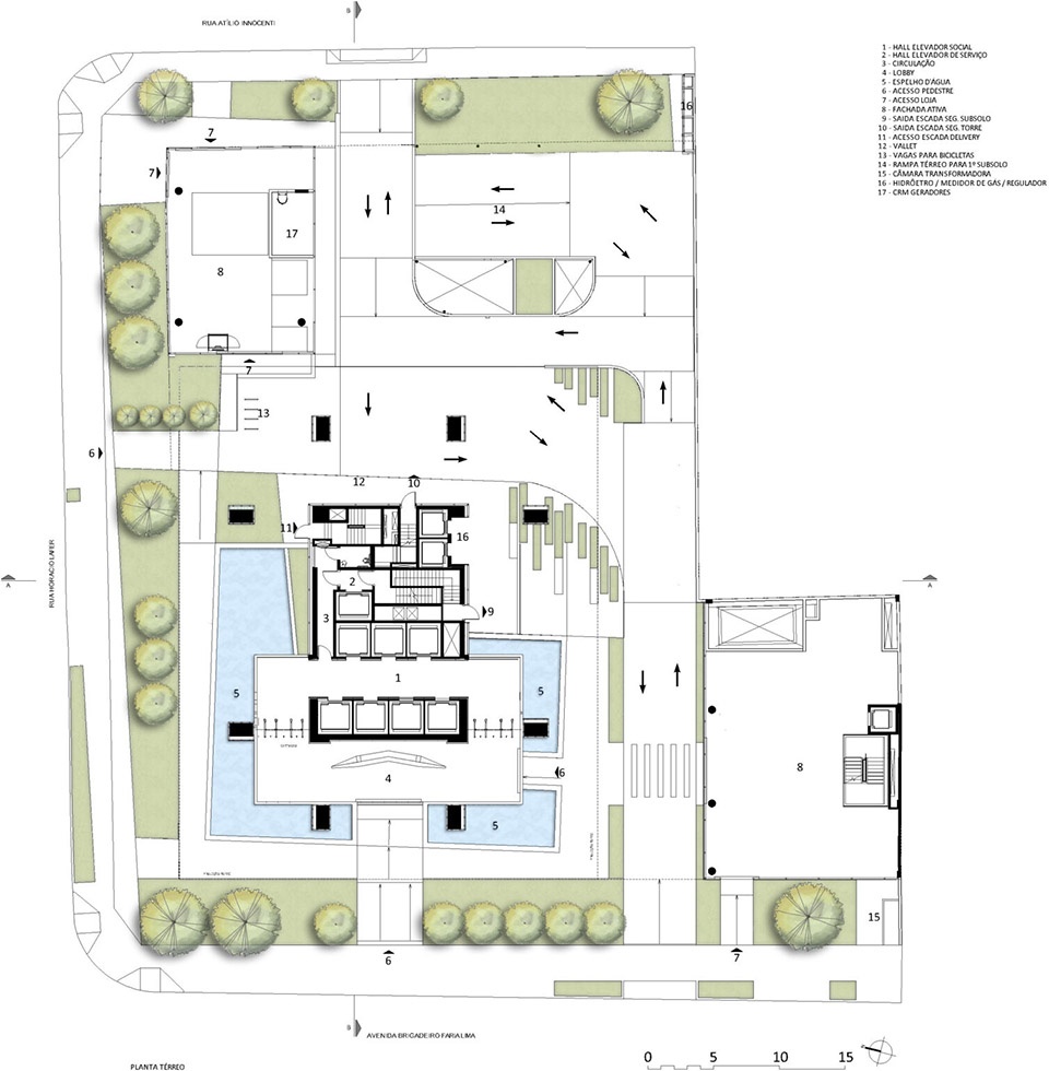
▼总平面图,site plan

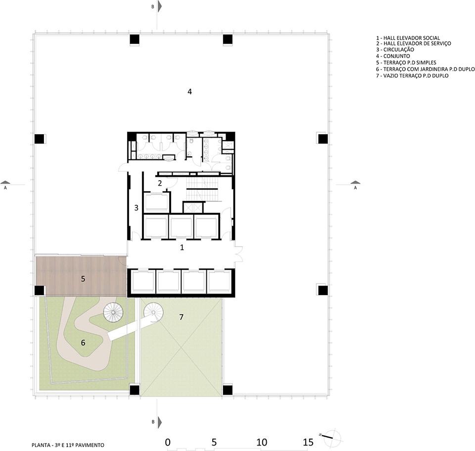
▼3层与11层平面图,level 3&11 plan

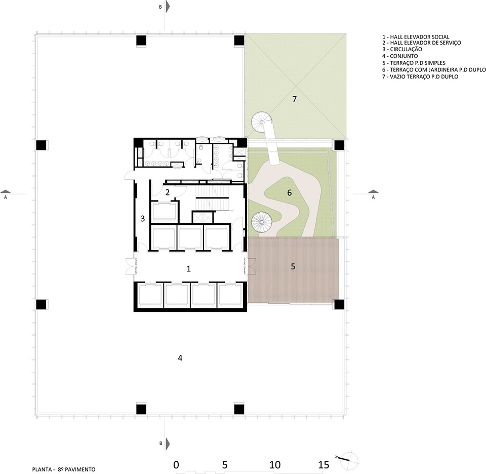
▼8层平面图,level 8 plan

▼剖面图,section

Technical sheet
Name: Salma Tower
Location: São Paulo, Brazil
Certification: LEED Platinum – the highest level of sustainability
Category: Triple A Corporate Building
Key Feature: Integration of 1,200 m² of native Atlantic Forest across all floors
Land area: 3.379 sq
Building area: 36.616 sq
Total Floors: 16
Overall height: 80m














