Bota Durnten学校中央校舍,瑞士 / Lukas Raeber Architecture
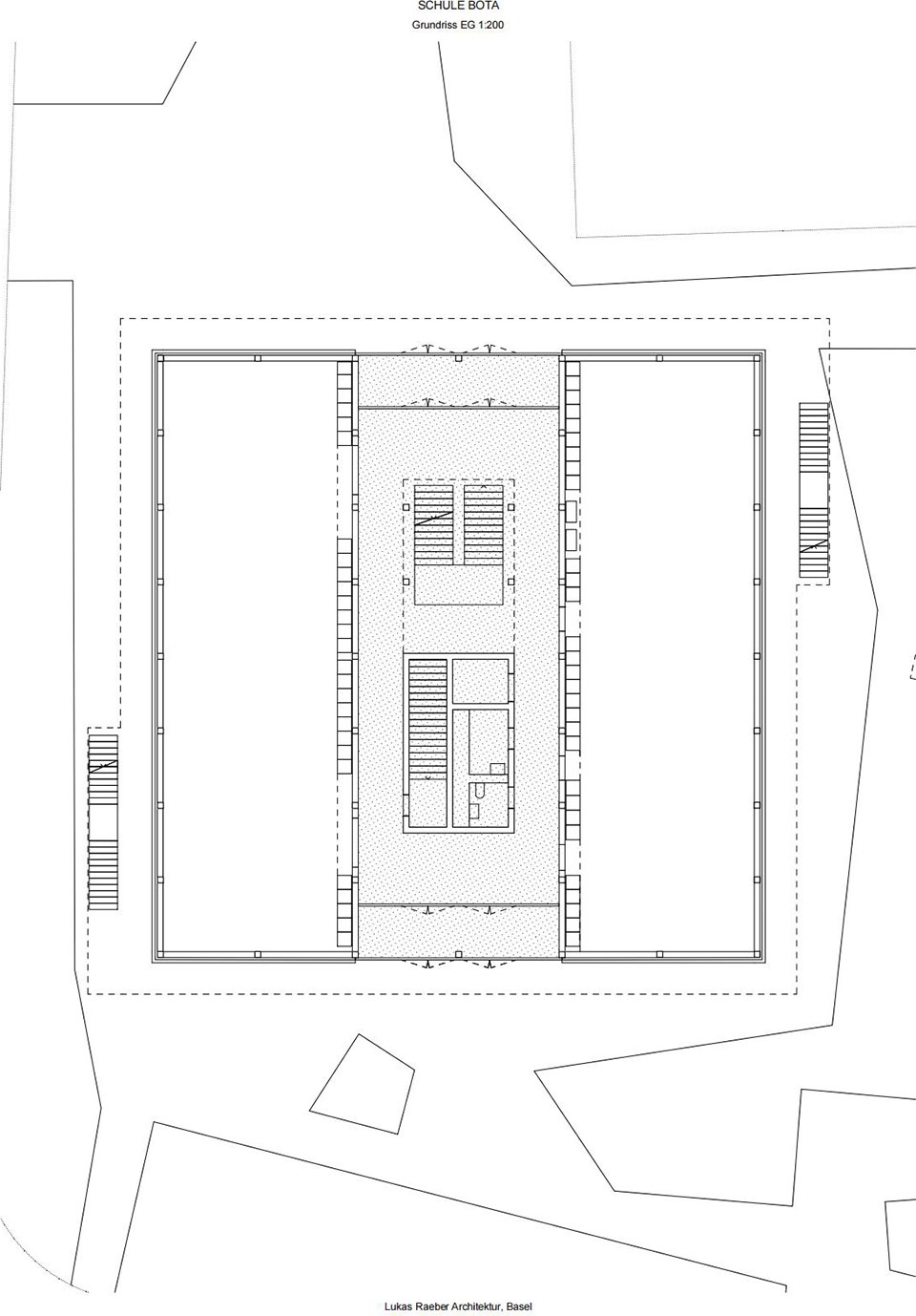
该项目位于Bogenacker与Tannenbühl场地的区域,原先由两座小学建筑及若干小型附属建筑组成,围合出一个未被明确定义的中央空间。通过重新占据这一核心位置,新的 Dürnten校园成功地将校园场地、三所幼儿园以及十个常规班级统一于三处场地之中,形成一个整体实体。中央校舍作为一座全新的当代校园建筑建成,其空间组织呈现“三个中殿”的格局。
The area encompassing the Bogenacker and Tannenbühl sites previously consisted of two primary school buildings and several small structures surrounding an undefined central space. By reoccupying this central area, the new Dürnten school campus succeeds in uniting the school grounds, three kindergartens, and ten regular classes across three sites into a single entity. The central school building is newly constructed as a contemporary schoolhouse with three “naves.”
▼项目概览,project overview

▼周边环境,surrounding environment

进入区,即中央“服务中殿”设有宽敞的门厅与宏大的楼梯,以清水混凝土建造。两侧对称布置的“侧殿”则采用可持续木构元素建造,容纳灵活布置的教学空间。连续的木构构件界定了房间边界,营造出宁静而统一的空间氛围。
The access area — the center and “service nave” — features a spacious entrance hall and a grand staircase, built in exposed concrete. The two laterally arranged “side naves,” constructed using sustainable timber elements, form the flexible layer of functional spaces that house the classrooms. Continuous timber elements frame the rooms and provide a calm, cohesive appearance.
▼宽敞的门厅,a spacious entrance hall

▼室内木质与混凝土细节,Indoor wood and concrete details

▼室内清水混凝土,interior exposed concrete

▼宏大的楼梯,a grand staircase


▼教学空间,the classrooms


▼可持续木构,sustainable timber elements

三段式的结构通过经自然风化的木质立面统一起来,并由一条连续外挑的金属逃生阳台环绕。
The three-part structure is unified by a weathered timber facade and a projecting, continuous metal escape balcony.
▼木质立面,timber facade

▼金属逃生阳台,metal escape balcony

该校舍在设计之初便考虑了未来的扩展可能性,从而在可持续性与灵活性方面满足长期需求。
The school building is designed to be expandable in the future, thereby addressing sustainability and flexibility requirements.
▼校园设施,campus facilities

▼施工过程,construction



▼轴测图,axonometric drawing

▼平面图,site plan

▼剖立面图,elevation and section drawing

Credits / Team
Architecture: Lukas Raeber Architecture:
Julien Blanc (PL), Lale Lommatzsch, Ladina Bürgisser, Nina Gusenburger, Flavio Thommen, Moritz Schudel, Luisa Overath, Cyrill Kaderli, Lukas Raeber
Landscape: Bryum Landschaftsarchitektur
Photography: Rory Gardiner, Willem Pab
Address: Schulstrasse 6, Tann ZH, Switzerland
Client: Liegenschaftenabteilung Gemeinde Dürnten
Program: School
Year: 2018-2025 Completion














