孟买Satguru&s Rendezvous公寓,印度 / Satguru Builders
Satguru’s Rendezvous公寓在孟买日新月异的天际线中占据了主导地位。这座城市由严格的建筑规范与规定塑造。该项目为高约300英尺的22层豪华公寓大楼,拥有分层造型与粉色立面,这一设计大胆脱离了孟买城市中无个性的一片灰色塔楼。
Satguru’s Rendezvous asserts a dominant presence in Mumbai’s ever-evolving skyline, a city shaped by stringent building codes and regulations. Rising nearly 300 feet, the 22-storey luxury condominium features a tiered profile and pink facade, a bold departure from the sea of anonymous grey towers dotting the city.
▼项目概览,project overview


▼项目所在的城市环境,the urban environment


该项目通过延伸原有住宅塔楼的高度并调整其形态,对其进行了重新构思。这些改动赋予了建筑独特的身份,使其成为超拔于班德拉街道上的重要地标。
The project reimagines a former residential tower by extending its height and modulating its form. These interventions impart a distinctive identity to the structure, transforming it into a prominent landmark that soars above the streets of Bandra.
▼地标建筑,the landmark


该项目的任务是重新定义在孟买繁忙都市环境中的豪华生活概念。设计的核心是捕捉城市的精神——既充满活力、兼容并蓄,又充满惊喜。
The project’s brief was to redefine the concept of luxury living in the context of Mumbai’s bustling urban landscape. At its core, the design aims to capture the spirit of the city—at once vibrant, eclectic, and full of surprises.
▼街道视角,street perspective


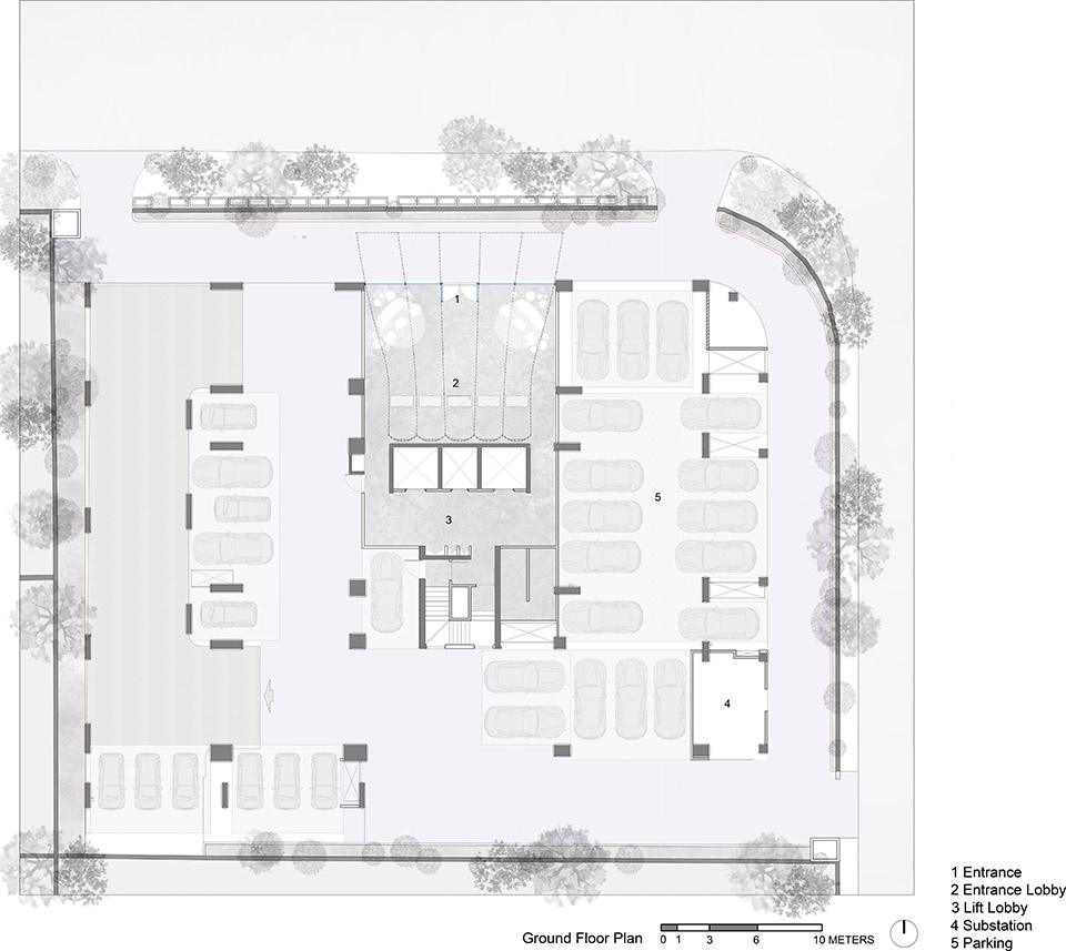
塔楼的形态源自堆叠体块的和谐排列。三层高的平台层包含了停车场及设施,如健身中心、游泳池,以及可灵活变换功能的开放空间。平台区设有丰富的绿化、步道和专用的休闲与社区空间,为城市中心提供了一片宁静的绿洲。底层的曲线造型则更新了与街道的连接,创造出一种温和流动的视觉动感。
The tower’s form is derived from a harmonious arrangement of stacked volumes. A three-storey podium houses parking and amenities such as a fitness centre, swimming pool, and flexible open spaces for various functions. It features lush landscaping, walking tracks, and designated spaces for recreation and community, offering a tranquil oasis in the heart of the city. The curved form of the base also updates the connection to the street, creating a sense of gentle movement and visual dynamism.
▼堆叠体块的和谐排列,a harmonious arrangement of stacked volumes

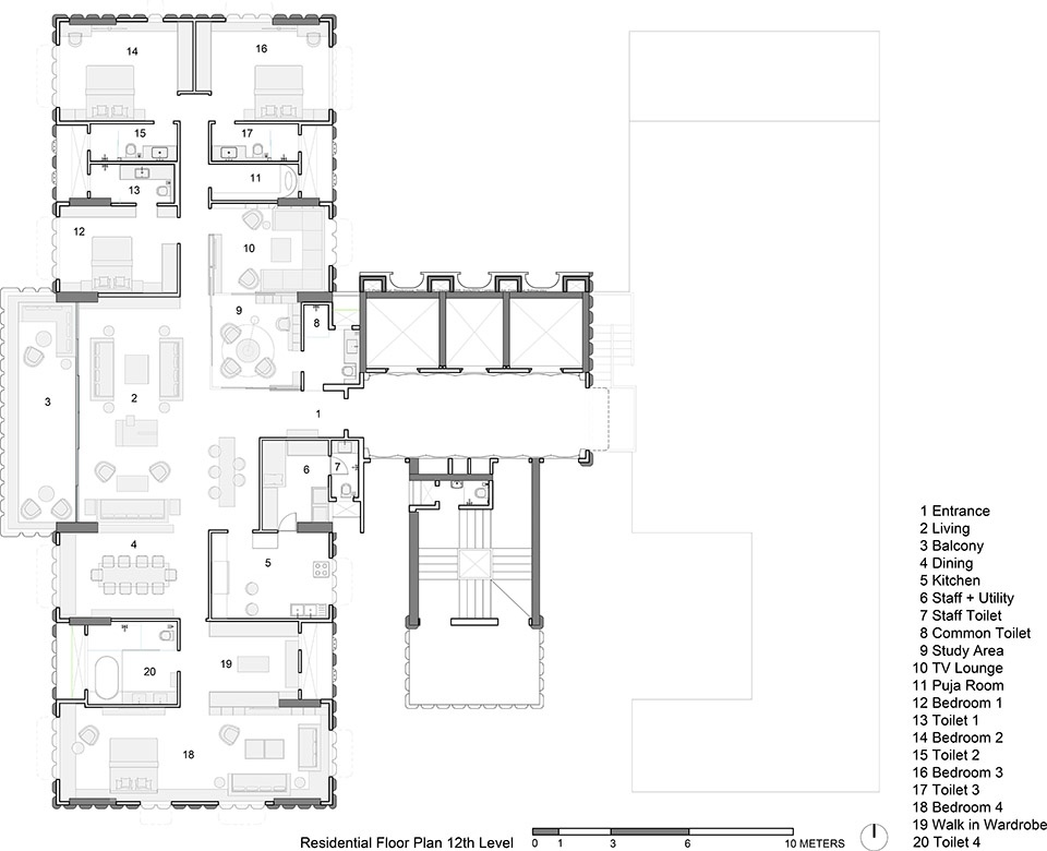
住宅楼座位于平台层之上。现有的公寓社区成员居住在前八层,而上层则提供豪华的四卧室单元,享有无视野阻挡的城市景观与阿拉伯海美景。建筑顶部设有日落平台,提供开阔的视野,住户可在此放松身心,欣赏日落的壮丽景色。
The residential blocks rest above the podium. Existing housing society members occupy the first eight storeys, while the upper levels house new luxurious four-bedroom units with unobstructed views of the city and the Arabian Sea. The building is capped by a sunset deck with sweeping vistas, where residents can unwind while taking in the splendour of the setting sun.
▼阿拉伯海美景,the Arabian Sea view

绿植是设计方案的核心元素。热带植物环绕平台层的步道和休闲空间,而设有香草花园的露台则作为社交聚集地,促进了居住者与自然的直接联系,并支持本土生物多样性。
Greenery is integral to the design scheme—tropical plants enclose the wraparound walking tracks and recreational spaces on the podium level, while the terraces, which serve as social gathering points, feature herb gardens, promoting a direct connection to nature and supporting native biodiversity.
▼景观绿植,the landscape greenery


▼香草花园,the feature herb gardens

▼空中花园,the sky gardens


建筑外立面受印度国花莲花的启发,采用了具有特色的粉色调。这既是文化的象征,也是视觉的表述。建筑的形式构成充满了丰富的艺术意图。露台和屋檐等关键元素具有柔和、流畅的曲线,为建筑注入了俏皮、雕塑般的特质。立面的纵向纹理进一步强化了这一有机形态,贡献了统一的建筑语言,与周围建筑形成鲜明对比。随着光线在立面上变化,建筑外观在明显的实心感与更为细腻、轻盈的表现之间交替,使其在全天候中都保持了视觉上的趣味性。
Drawing inspiration from India’s national flower, the lotus, the concrete facade is rendered in a characteristic pink hue, serving as a cultural and visual gesture. The building’s formal composition is expressed with rich artistic intent. Key elements such as the terraces and overhangs feature soft, sweeping curves to imbue the building with a playful, sculptural quality. The rhythmic articulation of the flutings further amplifies this organic form, contributing to a cohesive architectural language that stands in striking contrast to its neighbours. As light shifts across the surface, the building’s appearance alternates between apparent solidity and a more subtle, lighter expression, maintaining visual interest throughout the day.
▼建筑外立面,the concrete facade


▼柔和流畅的曲线,the soft and sweeping curves


▼外立面细节,the concrete facade details


▼外立面窗户,the concrete facade windows


住宅及公共区域的室内设计注重精致与简约,凭借高质量的饰面、温和的色调以及低调的美学,平衡了优雅与功能性,使住户能够根据自己的需求塑造空间。
The interiors for the residential and amenity areas are designed with a focus on refined simplicity, balancing elegance and functionality through high-quality finishes, a neutral palette, and an understated aesthetic that enables residents to shape the space as their own.
▼公共区域,the amenity areas


▼接待处,the reception Desk


▼大堂,the lobby

该项目旨在突破印度城市景观中占主导地位的典型豪华住宅单体设计。它向传统与现代完美融合的孟买,以及班德拉社区致敬。该项目旨在倡导真正的印度建筑身份,既扎根于传统,又能回应国家建筑语境的不断发展。
Rendezvous seeks to break free from the typical luxury residential monolith that dominates much of India’s urban landscape. Paying homage to Mumbai, and the neighbourhood of Bandra in particular, where heritage and modernity coexist in perfect harmony, it aims to champion a truly Indian architectural identity, one that is rooted in tradition yet responsive to the evolving architectural discourse in the country.
▼厨房空间,the kitchen


▼卫浴空间,the bathroom

▼建筑夜景,the project night view

▼入口处夜景,the entrance night view

▼总平面图,key plan

▼一层平面图,ground floor plan

▼六层平面图,residential plan-6th floor plan

▼十二层平面图,residential plan-12th floor plan

Project Information Sheet
Typology: Residential
Name of Project: Satguru’s Rendezvous
Location: Perry Road, Bandra West, Mumbai
Name of Client: Satguru Builders
Name of Client’s Firm: JGB Builders LLP
Tel No: +91-22-6606-9999 / +91-22-6691-4860
Email: satgurubuilders@gmail.com, sharan@satgurubuilders.in
URL: http://satgurubuilders.in/
Site Area (sq ft & sq m): 2018 sq.m. ( 21,721 sq.ft.)
Municipal Built-Up Area (sq ft & sq m): 4843 sq.m. (52,130 sq.ft.)
Start Date: January 2022
Completion Date: March 2024
Photographer: Ivane Katamashvili
Team:
·Satguru Builders
Team lead: K.V. Parmeshwar, Sharan Babani
Member 1: Prakash Kamble
Member 2: Dhruvi Gala
Member 3: Akshay Pawaskar
·Nudes
Aspect of the project you worked on: Architectural Design
Team members: Nuru Karim, Nirmal Kumar, Atul Hanchale, George Fragin, Ashna Jamal,
Amal Krishnan, Ekta Dhiman, Pratiksha Shetty
·Mazumdar Bravo Architects
Aspect of the project you worked on: Concept Design, Schematic Design & Design Development
Team lead: Blanca Bravo Reyes, Udayan Mazumdar
Team members: Srushti Karale, Swapna Nerurkar Malap
·Company name: Rohit Bhoite Design
Aspect of the project you worked on: Interior design of all members’ flats
Team lead: Aditya Mandavia
Team members: Goldie David, Yashika Jain
·Company name: Manuhita Gupta Design Studio (www.manuhita.com)
Aspect of the project you worked on: Washrooms and Kitchens for some of the sale flats
Team lead: Manuhita Gupta
Team member: Aarya Gangan
·Company name: Urban Studio
Aspect of the project you worked on: Interior design
Team lead: Pronit Nath
Team member: Kainaz Sukhia, Sudesh Panchal, Azim Sheikh
·Company name: Thriving Home
Involvement: P3 landscape, and both terrace gardens
Team lead: Farhaan Bengali
Team member: Paras dada (head gardener)
·Company name: Hemali Landscape Studio
Aspect of the project you worked on: Landscape design
Team lead: Hemali Samant
Team members: Mahek Malaviya














