Demänovská住宅,斯洛伐克 / POKORNY ARCHITEKTI
德曼诺夫斯卡山谷(低塔特拉山脉)旅游发展的历史与1924年密切相关,那一年,德曼诺夫斯卡自由洞穴(Demänovská Cave of Liberty)的第一段向公众开放,而该洞穴在1921年8月被发现。一百年后,我们与客户合作,开始了新住宅的建筑设计。在两年的探索和无数次迭代后,最终的形式应运而生——回顾这一过程,证明这是一项值得投入时间和想象力的投资。
The development of tourism in the Demänovská Valley (Liptov, Low Tatras) is inseparably linked to 1924, the year when the first section of the Demänovská Cave of Liberty—discovered in August 1921—was opened to the public. A century later, in collaboration with our client, we embarked on the architectural design of a new residence. After two years of exploration and countless iterations, the final form emerged—a process that, in retrospect, proved to be a deeply worthwhile investment of time and imagination.
▼住宅外观,exterior of the house


▼住宅鸟瞰,aerial view of the house

Demänovská住宅体现了山间小屋类型的历史演变。曾经只是用作抵御严寒天气的简易庇护所,已经转变为一个精致的度假胜地。在这里,度假不仅仅是逃避,而是作为一个避难所——远离城市喧嚣、重新连接精神的地方。虽然山间小屋提供在一天辛劳后的安全和休息,但Demänovská住宅将自己确立为其居民心灵景观中的一个固定点,提供心灵、精神和身体的焕新。
Residence Demänovská embodies the historical evolution of the mountain cabin typology. What once served as a simple shelter against the harsh weather has transformed into a sophisticated retreat. Here, retreat is understood not merely as escape, but as sanctuary—a refuge from the noise of civilization and a place for spiritual reconnection. While a mountain hut offers safety and rest after a demanding day spent outside, Residence Demänovská establishes itself as a fixed point in the mental landscape of its inhabitants, offering renewal of the mind, spirit and body.
▼住宅外观,exterior of the house


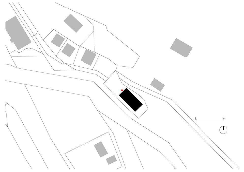
住宅位于Demänovka溪流旁的成熟森林中,原址上有一座1980年代末建造的简陋木屋,已在技术和功能上都显得过时。选择在原有基础上建设新建筑,既是对场地的尊重,也是对现有基础设施的尊重,并且为采用预制木结构提供了机会——这一方法使得新住宅能够以敏感且不侵入的方式与周围环境和谐融合。
Set within a mature forest along the banks of the Demänovka stream, the site originally hosted a modest log cabin from the late 1980s already outdated both technically and functionally. Replacing it with a new structure on the original footprint was a choice rooted in respect: for the genius loci, for the existing infrastructure, and for the opportunity to employ prefabricated timber construction—an approach that allowed the new residence to harmonize with its surroundings in a sensitive and non-intrusive way.
▼住宅外观与周围环境和谐融合,the new residence to harmonize with its surroundings


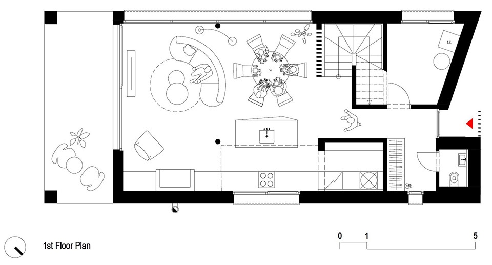
房屋的空间布局直接来源于其所在环境,受到溪流节奏和高大树木的影响。这些自然元素成为了设计的主要决定因素。建筑的体量被设想为一个隐蔽地融入树木中的棱柱,平行于水流延展,确保溪流始终是主生活空间中的核心、不断变化的存在——通过巨大的无框玻璃捕捉这一景象。与水的对话延续到楼上,三间带独立浴室的卧室面向溪流的景观和声音。
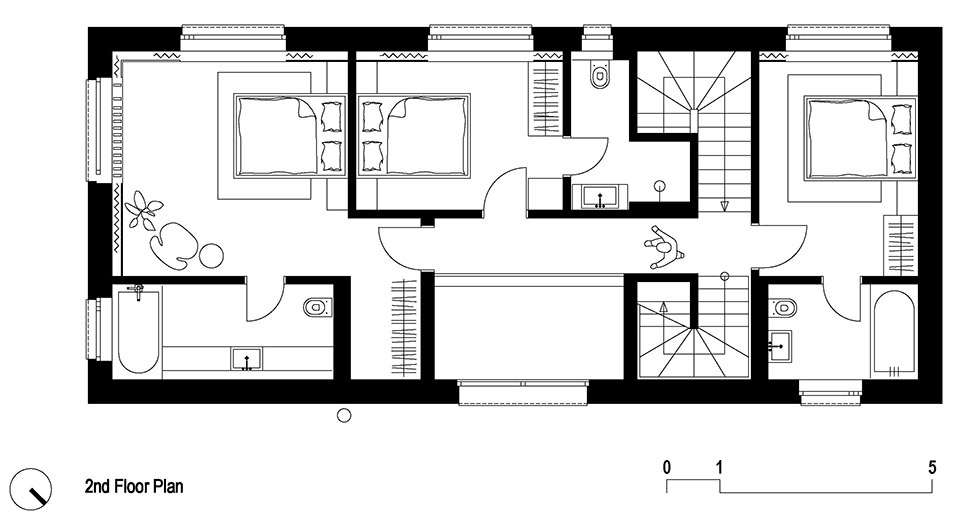
The spatial composition of the house comes directly from its setting, shaped by the rhythm of the stream and the tall trees that envelop it. These natural features became the primary design determinants. The building’s volume, conceived as a prism discreetly set among the trees, runs parallel to the watercourse, ensuring the stream remains the central, ever-changing presence in the main living space—captured through vast frameless glazing. The same dialogue with water continues upstairs, where all three bedrooms with en- suite bathrooms frame face the views and sounds of the flowing stream.
▼从入口望向室内,from the entrance to the interior space

▼一层空间,ground floor space

▼室内氛围由温暖的木饰面包裹墙壁和天花板,the atmosphere is defined by warm timber veneers wrapping walls and ceilings

▼一层走廊,corridor on the ground floor

▼厨房,kitchen


▼一层通往二层楼梯,the staircase towards the upper level


▼厨房上方连廊,the corridor above the kitchen

▼卧室,the bedroom

▼浴室,the bathroom

屋顶露台配备了热水浴缸,以“倒置的景观”形式设计。卧室的斜屋顶雕刻出休息的隐秘小天地,创造出最大化隐私的地形,尽管邻近小屋的视觉距离很近,但同时通过树梢框架打开了无尽的向上视野。
The rooftop terrace with hot tub has been designed in a form of an “inverted landscape.” The sloping roofs of the bedrooms carve out sheltered niches for relaxation, creating a topography that maximizes privacy despite the visual closeness of neighboring cabins, while simultaneously opening infinite upward views of the sky through treetop frames.
▼屋顶露台配备了热水浴缸,The rooftop terrace with hot tub

住宅的外立面采用传统日本“烧杉”技术处理的木材包覆。受控的炭化工艺增强了木材的耐候性、抗生物腐蚀性,提高了防火性,并且通过其深沉的哑黑表面,赋予建筑大胆且独特的个性。
The facades of the residence are clad in timber treated with the traditional Japanese technique of Yakisugi. Controlled charring enhances durability against weathering and biological agents, increases fire resistance, and, with its deep matte black surface, lends the building a bold and unmistakable character.
▼外立面采用传统日本“烧杉”技术处理的木材包覆,The facades of the residence are clad in timber treated with the traditional Japanese technique of Yakisugi

▼深沉的黑色立面,deep matte black surface


室内氛围由温暖的木饰面包裹墙壁和天花板,与微水泥地板的起居区和浴室形成对比。简约的家具色调强调情绪而非奢华,确保舒适感源自清晰、和谐与宁静,而非物质的过剩。
Inside, the atmosphere is defined by warm timber veneers wrapping walls and ceilings, contrasted with microcement floors in the living areas and bathrooms. A restrained palette of furnishings emphasizes mood over excess, ensuring that comfort arises not from abundance, but from clarity, harmony, and calm.
▼场地平面,site plan

▼一层平面,ground floor plan

▼二层平面,first floor plan

▼屋顶平面,roof plan

▼立面,elevation




▼剖面,section


Author – Pavol Pokorný | POKORNY ARCHITEKTI
Cooperation – Veronika Michalíková, Michal Diviš, Michal Kadnár
Project – 2021/2023
Built – 2025
Built up area – 114 sqm
Photographer – Matej Hakár














