中粮·祥云小镇Courtyard改造更新,北京 / 申江海建筑师事务所
在北京顺义,中粮·祥云小镇凭借其开放的街区形态、花园式的购物环境和丰富的四季主题活动,吸引着源源不断的人潮。然而,就在这个充满活力的商业社区北区主入口,9号楼却面临着一个尴尬的困境:地面层人声鼎沸,二层及以上商业空间却人流不佳。这引出了一个在商业建筑改造中极为关键的议题——当建筑的”面子”成为商业活力的”障碍”时应该如何应对?设计的价值不仅在于美化,更在于通过精准的干预,重新激活空间的商业生命力。
In Shunyi, Beijing, COFCO Shine Hills draws steady crowds with its open-block urban form, garden-like shopping environment, and a rich calendar of seasonal events. Yet at the north gateway of this vibrant precinct, Building 9 faces a paradox: the ground floor thrives while the upper levels remain quiet. This raises a central question in commercial retrofits: what should be done when the building’s “façade” becomes a barrier to vitality? Design is not mere beautification; it is the precise reactivation of space.
9号楼占据着北区入口的绝佳位置,是整个小镇人流的必经之地。然而,其原有的建筑立面却存在着致命缺陷:一道巨大的装饰性幕墙,导致了三个核心问题:① 商铺无露出,二层以上的店铺被完全遮挡,毫无商业可见性;② 人流被遮挡,消费者的视线无法穿透幕墙,无法感知楼上的活动与路径;③ 无法辨识入口,垂直交通被隐藏,上楼的欲望被彻底压制。这些问题共同导致了楼上商业经营惨淡,形成了一个与周边活力格格不入的”商业死角”。
Building 9 occupies a prime position at the north entrance, on the route of nearly all foot traffic. Its original façade, however, suffered from a single fatal device—a vast decorative curtain wall—that produced three problems: ① no shop frontage: visibility of tenants above grade was completely blocked; ② broken sightlines: customers could not see through to activity and circulation upstairs; ③ illegible entry: vertical circulation was hidden, suppressing the desire to go up. Together these conditions created a “commercial dead zone” out of step with the surroundings.
▼晨间阳光下的正立面,Morning façade

拆除即建造Demolition as Ordering
起初,我们接到的设计任务,是针对这堵装饰幕墙的设计工作。但是经过现场的感受和分析,我们认为,问题的根源是”遮蔽”,而非形态。因此,我们提出”先拆除,后激活”的核心策略。
At first our commission was to redesign the decorative curtain wall itself. On site we realized the root issue was concealment rather than form. Hence the strategy: demolish first, activate later.
▼改造后立面全景,Façade panorama (after)

我们选择拆除整面装饰幕墙,这一动作本身即是一种建造——它将“遮蔽”转化为“暴露”,为真正的激活创造了先决条件。拆除之后,我们引入了一系列新的设计元素,旨在重新建立地面与高层商业的物理与情感连接。
We dismantled the decorative curtain wall to expose the structural frame and the commercial interior—an act of making by uncovering. Demolition set the precondition for activation. We then inserted new elements to rebuild both the physical and emotional connections between ground and upper levels.
▼改造前建筑状况,Before renovation

▼改造策略分析图,Strategy diagram

台阶即邀约Steps as Invitation
建筑前方的喷泉广场是孩子们的乐园,但家长们却缺乏一个舒适的休憩和看护区域,活动的人群也缺乏临时休憩停留的区域。因此,我们改造扩大了原有利用率低下的楼梯,改造成为宽阔的、面向广场的大台阶。它不再是纯粹的交通构件,而是一份空间主动发出的“邀约”,邀请人们停留、坐下,并自然地引导视线与脚步向上探索。家长们可以惬意地坐在这里,视线毫无遮挡地照看在喷泉中嬉戏的孩子,解决了公共空间中的一个具体痛点。
▼大台阶前后对比轴测图,Grand steps, before/after

The fountain plaza delights children, but parents lack comfortable places to rest and supervise, and passersby lack places to pause. We therefore expanded an underused staircase into broad grand steps facing the plaza. More than a circulation device, it is an invitation to dwell, guiding both eyes and feet upward. Parents can sit with unobstructed sightlines to the fountain—a precise response to a real need in public space.
▼社交空间激活,Social activation

▼阶梯花园,Stepped garden

▼空间形成向上引导的氛围,Upward-guiding ambiance

▼夜晚的大台阶,Steps at night

立面即舞台Façade as Stage
在各层,设计增设了外挑的平台,作为休息和拍照的”打卡点”,同时也成为广场与楼上相互对望的观景台。这些外挑的平台,将原本平面的建筑‘界面’(Façade)转化为一个上演着城市生活的立体‘舞台’(Stage),让楼上楼下的人们相互观看,共同构成了一幕幕生动的公共戏剧。为了呼应祥云小镇”花园式”的商业氛围,我们将绿植作为重要的设计元素,贯穿于整个立面。在各层平台精心布置花池和树木,不仅软化了建筑硬朗的线条,更将地面层的自然气息垂直向上延伸,创造出一个多层次的、充满生机的空中花园。
▼垂直界面改造前后对比轴测图,Vertical interface, before/after

At each level we add cantilevered decks that work as places to rest and take photos and as mutual viewing balconies between the plaza and the upper floors. They turn the façade from a flat interface into a three‑dimensional stage where urban life plays out; here, people upstairs and downstairs become both actors and audience to each other, composing a vivid public theater, while making activity above visible, reachable and participatory.
▼台阶和悬挑平台,Steps and cantilevers

▼广场与平台的对望,Plaza-platforms, mutual view

▼混凝土盒子,Concrete box

为了呼应祥云小镇”花园式”的商业氛围,我们将绿植作为重要的设计元素,贯穿于整个立面。在各层平台精心布置花池和树木,不仅软化了建筑硬朗的线条,更将地面层的自然气息垂直向上延伸,创造出一个多层次的、充满生机的空中花园。
To echo Shine Hills’ garden character, planting is threaded through the façade. Planters and trees on each deck soften the hard lines and carry the ground’s greenery upward, forming a layered, living vertical garden.
▼与绿植结合的大台阶,Grand steps with planting

▼立体绿化与灯光,Vertical greening & lighting

▼悬挑平台上的种植池,Planters on cantilevers

▼混凝土与绿植,Concrete and vegetation

停留即激活Lingering as Activation
设计将二层连廊从纯粹的通行空间,转变为可停留的社交节点。为此,我们增加了功能性雨棚。其悬挑的姿态首先增强了对地面人群的视觉昭示;其次,它遮阳避雨的功能,结合栏板边的木质吧台,鼓励人们在此停留、喝杯咖啡、俯瞰广场。因为我们相信,真正的活力源于人们停留的意愿,而非简单的人流。这些停留、交谈、观望的人们,本身就构成了最生动的立面表情,成为了吸引楼下顾客的动态风景。
▼改造流程BIM轴测图,BIM process axonometric

The second‑floor gallery is transformed from mere passage into social nodes. Cantilevered canopies announce themselves to the plaza; their shade and shelter, together with timber counters along the railing, invite people to linger, have a coffee and look out over the square. We believe true vitality comes not from mere foot traffic, but from the willingness to linger. Those who stay become moving scenery—a signal that draws others upstairs.
▼阳极氧化铝雨棚与混凝土的对比,Anodized canopy vs concrete

▼雨棚塑造停留空间和视觉昭示,Canopy: linger & signal

仰望即向往Looking Up as Longing
我们认为,天花的设计不应仅仅是功能性的,更应是情感性的。它需要将地面人群的视线从水平的广场,引向垂直的建筑深处,将简单的“看见”升华为内心的“向往”。为此,我们采用了一体化的格栅策略:在顶层,优雅的弧形格栅一举三得,既解决了玻璃顶棚显脏和暴晒的问题,阳光通过格栅渗入,创造戏剧化的光影氛围;在各层走廊,漫反射发光的格栅吊顶对内为行人创造了柔和的光环境,对外,这柔和而连续的光线,不是强硬的指引,而是一种激发好奇与向往的暗示。
▼剖透视图,Section perspective

Ceilings are not only functional but affective; they should lift the gaze from the horizontal plaza into the vertical depth of the building, turning seeing into yearning. We adopt an integrated grille system: on the top floor the elegant curved grille solves maintenance and heat‑gain issues of the glass canopy while filtering sunlight into a theatrical play of light and shadow; along the galleries, diffuse luminous grilles create soft interior light and, to the outside, a continuous luminous path that beckons more than it directs.
▼漫反射发光天花,Luminous ceiling

▼夜晚从广场看向二层走廊天花,Plaza to gallery ceiling, night

▼四层天花变换的灯光效果,4F ceiling lighting

通过”拆除-暴露-诊断痛点-精准植入”这一系列连贯动作,我们将设计的重点从单纯的立面美化,转向对场地精神、消费行为和用户体验的直接回应。
Through a sequence of “demolition—exposure—diagnosis—precise insertion,” the project shifts from superficial makeover to a direct response to site spirit, consumer behavior and user experience.
▼广场入口视角,Plaza entrance

改造后的9号楼,以一种全新的、开放的姿态重新融入祥云小镇的公共生活。拆除幕墙后,建筑内部的商业活动、人流和灯光被完全释放,共同构成了一幅充满活力的、层次丰富的立面图景。
The renovated Building 9 re‑enters the public life of Shine Hills with a new openness. With the curtain wall removed, interior commerce, flows and light are released to compose a vivid, layered façade.
▼夜景标识与灯光,Night signage

新立面的材质语言冷静而克制,以浅灰色混凝土作为基底,但在关键的互动界面则介入了阳极氧化铝等精致的金属质感。纤细的金属拉杆支撑着外挑的遮阳棚,使其在视觉上显得格外轻盈。精心布置的绿植花池作为”垂直花园”的载体,点缀在各层平台之上,树影婆娑,不仅为建筑注入了生机,更将小镇的自然气息垂直向上延伸。
The new façade is calm and restrained: light‑gray concrete as the background; at key interfaces, refined anodized aluminum. Slender tie‑rods support the cantilevered canopies, giving visual lightness. Planters carry the vertical garden on each platform, extending the town’s greenery upward.
▼多层次空间的社交活力,Layered social vitality

首层的大台阶成为了广场的自然延伸和”城市看台”,吸引着人们在此停留、聚集并向上探索,孩子们的欢笑声与家长们闲适的身影交织在一起,充满了生活气息。二层及三层的”打卡平台”因功能雨棚的加入而更具活力,人们愿意在栏板边的吧台小坐,喝杯咖啡,俯瞰广场上的热闹景象。这些停留、交谈、观望的人们,本身就构成了最生动的立面表情,吸引着更多地面游客的好奇心。
The grand steps become the plaza’s natural extension—urban bleachers that invite people to pause, gather and explore upward. On the second and third floors, the “check‑in” decks gain vitality with the canopies; people sit by the railside bar, drink coffee and watch the scenes below. These lingering, conversing, observing figures are themselves the façade’s most expressive element, attracting visitors from the ground.
▼夜间在大台阶上休憩的人,Resting on steps, night

夜幕降临,多层次的灯光系统被激活。统一的顶棚策略在此刻展现出全部魅力:各层走廊的发光吊顶提供了柔和的主照明,与隐藏在扶手下方、平台边缘的线性灯带共同勾勒出建筑的温暖轮廓;而在顶层,弧形格栅在灯光下也呈现出与白天不同的质感,共同为整个建筑加冕。
As night falls, the layered lighting system comes alive. Luminous ceilings provide soft primary light in the galleries, while linear strips beneath handrails and along edges outline a warm silhouette; above, the curved grille takes on a different presence under light, crowning the building.
▼夜晚台阶的效果,Steps at night


▼细部,Detail

通过设计的干预,9号楼从一个消极的”商业死角”,转变为一个吸引人流向上、充满互动与活力的”垂直客厅”。它不再是一个沉默的建筑,而是一个与广场、家庭和阳光持续对话的开放舞台。
Through design intervention, Building 9 has transformed from a passive “commercial dead zone” into an upward-attracting, interactive and vibrant “vertical living room.” It is no longer a silent building, but an open stage in continuous dialogue with the plaza, families, and sunlight.
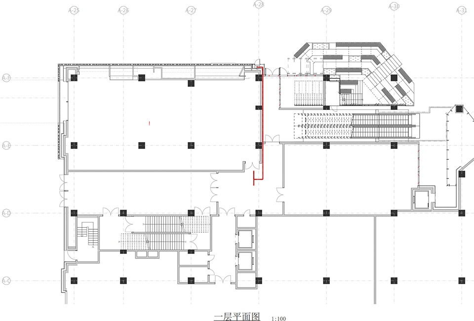
▼一层平面图,First floor plan

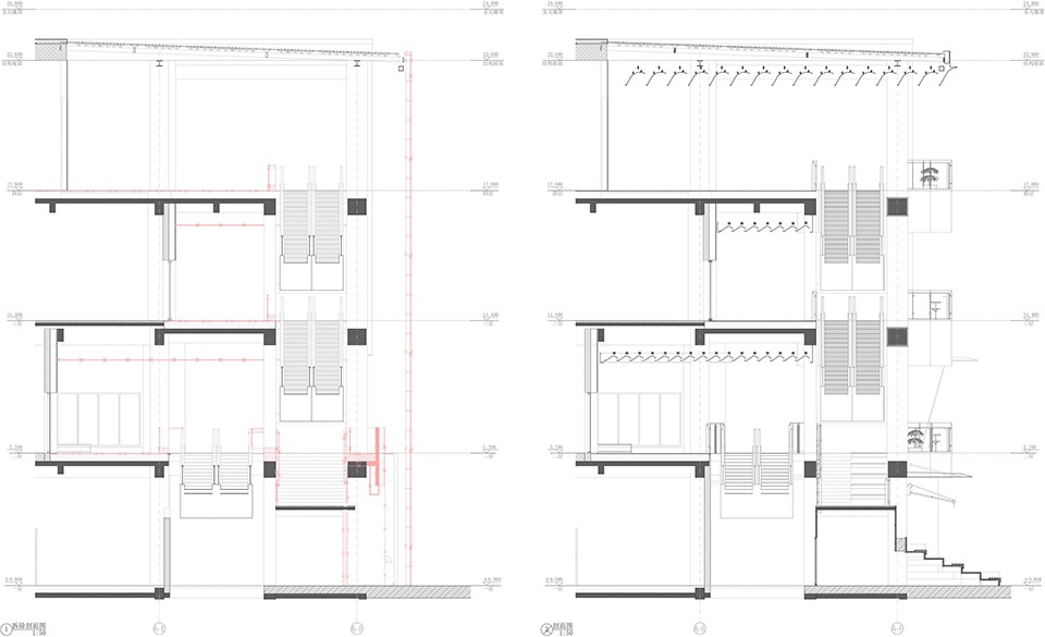
▼建筑剖面图1,Building section 1

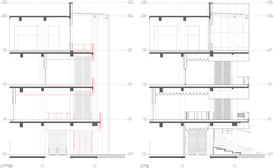
▼建筑剖面图2,Building section 2

项目信息 | Project Information
Project Name: COFCO Shine Hills Courtyard Renewal
Design Company: SA Architects
Client: COFCO Group
Company Website: http://www.saarchitects.hk
Design Team: Shen Jianghai, Zhang Longxiao, Shi Haoyang, Gushiken Tsuyoshi, Sun Chundi
Local Design Institute: Beijing Tianhong Yuanfang Architectural Design CO., LTD.
Façade and Lighting Consultant: Inhabit Group
Plant design and implementation: Landscape · Design & Manual
Project Type: Building Renovation
Building Area: 1800㎡
Design Period: March 2024 – October 2024
Construction Period: February 2025 – August 2025
Photographer: UK Studio
Writer: Zhang Longxiao














