Ses Veles Puigpunyent住宅,西班牙 / Alventosa Morell Arquitectes
该住宅项目位于马略卡岛的Puigpunyent,由IBAVI(巴利阿里住房研究所)发起。建筑设计强调可持续性、能源效率与对环境的尊重。为实现这一目标,项目基于一种本地经济模式,融入了岛上传统工艺、建造方法及被动式策略。
This housing project, located in Puigpunyent, Mallorca, is promoted by the IBAVI (Balearic Housing Institute). The building is designed with an emphasis on sustainability, energy efficiency, and environmental respect. To achieve this, the project is based on a local economic model incorporating traditional crafts, construction methods, and passive strategies typical of the island.
▼住宅外观,exterior of the house

▼双坡屋顶,gable roof


▼混合砌体外墙使用了开挖过程中产生的石材与泥土,The lime cyclopean facades incorporate the stones and earth from the excavation itself

▼外墙细部,The lime cyclopean facades detail


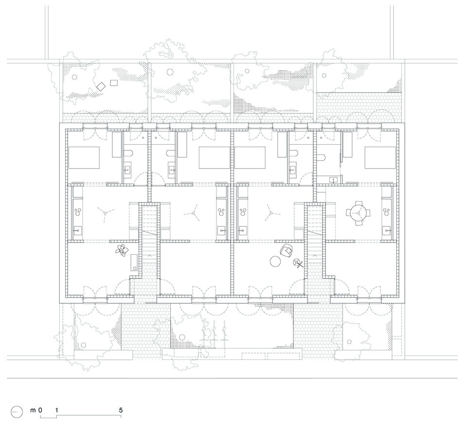
建筑共两层,覆以双坡屋顶,分布为六套住房:底层四套,上层两套。底层户型为一居室,并拥有私属户外空间;上层户型为两居室,每户均连接各自的户外露台。空间设计开放、灵活且可适应,相互之间直接联系,以厨房为核心空间。
▼结构轴测图,structure axonometric

With two floors and a gable roof, the building is distributed into six dwellings, four on the lower ground floor and two on the upper level. The ground floor units have one bedroom and access to a private outdoor space, while the upper floor units have two bedrooms, each opening onto its own outdoor terrace. Open, flexible, and adaptable spaces are proposed that relate to each other directly, with the kitchen as the central space.
▼以厨房为核心空间,the kitchen as the central space



▼相互连接的空间,connected space



在材料与策略上,建筑与环境保持呼应。石灰质的巨石混合砌体外墙使用了开挖过程中产生的石材与泥土;隔墙由本地陶瓷砌筑,填充来自附近采石场的余砂,并以黏土与稻草收尾;地板与木作采用FSC认证木材;室内地面以本地石灰制成,室外地坪、瓦片与屋面瓦亦均为本地取材。
Using local materials and strategies, the building’s materiality responds to its surroundings. The lime cyclopean facades incorporate the stones and earth from the excavation itself. The partitions are made of local ceramics, filled with residual sand from nearby quarries and finished with clay and straw. The floors and carpentry are made of FSC wood. The interior floors were made of local lime, and the exterior floors, tiles and roof tiles were also sourced locally.
▼室内地面以本地石灰制成,The interior floors were made of local lime

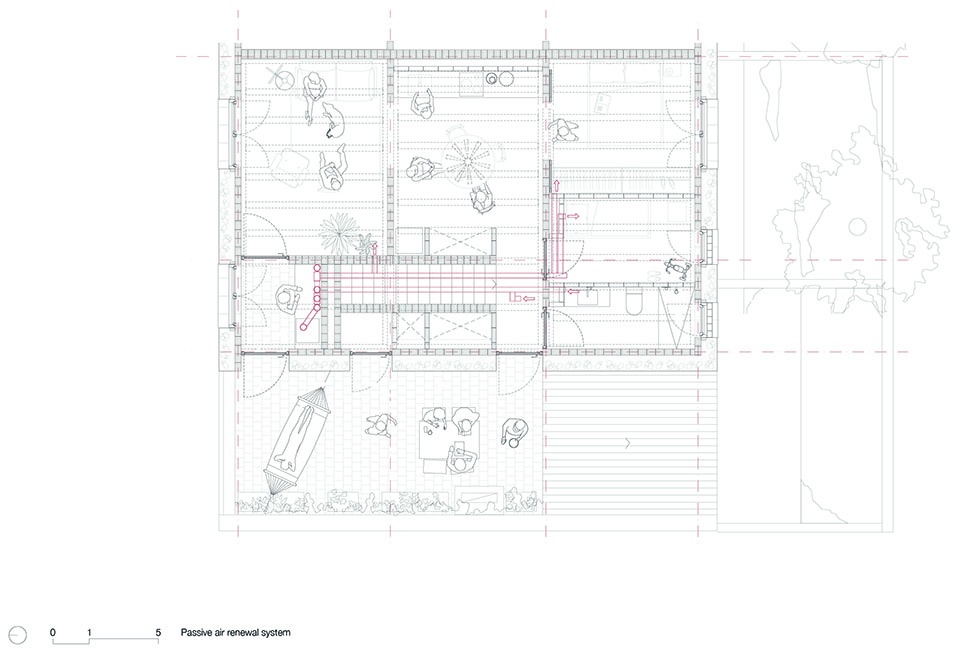
建筑通过策略性设计实现冬季最大化太阳得益与夏季降低冷负荷的目标,引入交叉通风、遮阳措施,并在地面与墙体中利用高热惯性,同时依靠湿度调节的吸湿性与透气性。屋面采用“Trombe”型设计,冬季蓄热、夏季通风,从而实现温度调节并消除对主动系统的依赖。私人庭院则作为用户可控的过滤装置,辅助住宅的通风系统。
▼屋顶帮助调节室内温度,roof helps regulating the temperature

The building is strategically designed to maximise solar gain in winter and reduce cooling demand in summer, incorporating cross ventilation, solar shading, and high thermal inertia in floors and walls with humidity-regulating hygroscopy and breathability. The ‘Trombe’ type roof is a key element that captures heat in winter and is ventilated in summer, regulating the temperature and thus eliminating active systems. The private patios function as user control and filtering elements for the ventilation of the dwellings.
▼屋面设计,roof design

该项目实现了近乎零能耗(1.7 kWh/m²·年,NZEB),二氧化碳排放量降低50%;同时,在循环利用的考量下,施工废弃物减少60%。此外,建筑系统经过有意识设计,确保在未来拆除时材料可被分离并再次利用。生命周期分析显示,该建筑在施工阶段的碳排放成本仅为230 kg CO₂/m²,比传统建造方式降低50%。最终呈现的住宅群不仅减少了环境影响,还强化了本地经济并推动了地域再生。通过引入地方性材料与建造技艺,Ses Veles Puigpunyent提出了一种与岛屿文化对话的建筑方式,结合技术创新与环境责任。
With near-zero energy consumption (1.7 kWh/m²-year, NZEB), the project reduces CO₂ emissions by 50%, while circularity considerations mean a waste reduction of 60%. In addition, the project has been consciously designed with building systems where materials can be separated for reuse in the event of demolition. The Life Cycle Analysis demonstrates a low CO2 cost in construction (230 Kg Co2/m2), a 50% reduction compared to conventional constructions. The result is a housing complex that reduces its environmental impact while strengthening the local economy and promoting territorial regeneration. By incorporating vernacular materials and techniques, Ses Veles Puigpunyent proposes an architecture in dialogue with the island’s culture, combining technical innovation and environmental responsibility.
▼一层平面,ground floor plan

▼住宅布局和被动式通风系统,Unit detail and passive ventilation system

▼立面,elevation

▼剖面,section

Project: Ses Veles Puigpunyent
Year: 2024
Location: Puigpunyent, Mallorca, Spain
Programme: Housing
Area: 400 sqm
Authors: Joan Fortuny, Marc Alventosa, Xavier Morell
Team: Baltasar Nicolau (technical architect), Andrea Capella Mònaco, Joan Martí Elias, Carolina Capella Mònaco, Jordi Adell Roig i Júlia Nabona Jasans, Sandra Vargas, Marina Morey, Gori Llambias, Raquel Mirón, Rebeca Lopez, Eric Moyá (architects), Estudis d’Enginyeria de les Illes (engineering), Juan Fortuny Siquier (structure)
Photographer: José Hevia














