Aster by Joshua Paris餐厅,上海 / RooMoo设计工作室
Aster(紫菀)因其星形花序而闻名;名称源自希腊语的“星”,正好对应花朵的外观。其独特的紫色也有这独特的高贵且优雅感。从设计学的角度花型本身有三个特点1.径向对称(Radial symmetry) – 以中心为核,元素向四周均匀辐射,形成聚焦与秩序;2.多边形弧结构(Polygonal arc structure)- 用多边形分段逼近圆弧,模块化的构成关系;3.数学规律性(Mathematical regularity):角度、间距、尺度遵循等分/等比等规则。而以Aster命名的 餐厅室内设计灵感则利用了 “中心—放射—层叠”为手法,将清晰可读的几何线面转译为可感知的空间氛围——邀请人们在花心相聚,于星光下用餐。
Aster, led by chef Joshua Paris, is a new dining destination inspired by its namesake, the aster, a flower whose name also means “star.” Its design follows a simple yet powerful principle drawn from the flower’s natural composition: a central disc surrounded by radiating petals, often appearing in layered bouquets. At Aster, this logic becomes spatial poetry. Guests gather at the heart of the flower, dining beneath a constellation of light.
▼空间概览,space overview

空间以五个原型展开:花心、花冠、花序、花萼与根、星座
The space is articulated through five design archetypes inspired by the flower: Disc, Radiation of Petals, Duplication, Root, and Constellation.
▼可感知的空间氛围,the perceptible spatial atmosphere

1. 花心
Core
进门即见“花心”—中央环形吧台;它与环抱开放式厨房的就餐席面形成一体化的“前台—后厨—观演”系统。吧台作为社交中枢与出品舞台,调饮、传菜、冷热菜与甜品把位围绕同一圆心运转;厨房则设置 Chef’s Counter 与传菜口(Pass),环绕式席位可以让宾客近距离观看备餐与摆盘,与大厨本人进行互动。
Arrival begins at the flower’s heart: a circular bar anchors the room, paired with a wraparound dining ring at the open kitchen to form a unified FOH/BOH stage. The bar functions as both social hub and production deck. Diners at the chef’s counter are within arm’s reach of mise en place and plating, engaging directly with the culinary process.
▼中央环形吧台,a circular bar


吧台为内环、环厨就餐为中环、公共通道为外环—清晰分隔就座与通行,形成连续的 360° 服务半径。吧体下沿一圈弧形灯带如花蕊微亮,与顶部装置及vip夹层区域立面的线性艺术玻璃窗上下呼应,汇成自内而外的光场。近看材质,吧体以及开放厨房就坐区采用“岩面”肌理—以可塑性黏土手工塑形后固化,呈现土壤断面的层理与粗细变化,把“根性”与时间感安放在可触摸之处。
The space is organized in three concentric rings: the central bar, kitchen-facing seating in the middle, and outer circulation, enabling a continuous 360-degree service radius. A soft halo of light along the bar’s base echoes the overhead installation and the VIP mezzanine’s linear art-glass windows, creating a luminous, immersive field. At hand level, the bar and open-kitchen counter feature a hand-modeled clay finish that evokes stratified rock, grounding the design in craft and the passage of time.
▼环形动线,circular circulation line

2. 花冠
Crown
抬头即见“花冠”:它由 39 片选装式模块单元顺时针递进而成,每片以 15° 为节距旋转,在空中绕核形成约一圈半的螺旋放射。每一片框架为“中心圆 + 外方框”的圆中见方组合:圆环界定向心秩序,方框提供安装孔距与结构刚度;其上仅承一枚经晕染处理的宣纸叶片,半透明的紫在层层舒展中呈现轻盈张力。夜幕降临,由周边环绕混凝土梁上的射灯自外向内扫掠:侧光描出叶缘,背照透显宣纸纤维,把紫菀之紫渲染成一团缓慢漂移的“星云”。系统采用模块化与可替换策略——39 片单元可独立快拆/更换;回收的宣纸可二次晕染以调整色度/扩散度,在保有仪式感的同时,也兼顾维护与可持续性。
Radiation of Petals: Above, the ceiling echoes the flower’s radiating form. Thirty-nine modular frames spiral gently, each holding a single translucent violet petal made from recycled xuan paper. By night, light grazes their edges, revealing delicate fibers and transforming the ceiling into a drifting violet nebula. The system is sustainable: petals can be re-dyed, and frames reused, extending the flower-inspired rhythm from bar to sky.
▼“花冠”艺术装置,”Flower Crown” art installation


3. 花序
Series
沿窗的“花序”以多盏分层吊灯串联,从“中心放射”的秩序外延展开:每一盏均以空间中段的混凝土梁中心线为基准,灯具中心与梁轴一一对应,把结构的节奏转译成可见的光序。形态上以环片与垂片叠加,内外高度做细微级差,让每一组吊灯各自独特,像花脉朝窗边渐次舒展。每组装饰灯的底部同轴嵌入下照单元:氛围光包裹场域,功能光精准落在桌面,让“好看”与“好用”同场。行进其间仿佛沿着花瓣脉络漫步;坐下时,氛围光与桌面光在餐盘边温柔重逢。
Duplication of Flowers: Layered pendant lights along the windows continue the floral motif. Each aligns with structural beams, turning architecture into poetry. Subtle variations in height and form make each light distinct, like veins stretching outward. Beneath this decorative glow, precise downlights ensure every table remains perfectly illuminated.
▼多盏分层吊灯,layered pendant lights

4. 花萼与根
Calyx & Root
结构性混凝土与橡木、石材并置,粗粝与温润对话,像花被轻轻兜住的萼片。地面以橡木人字拼强调方向性,根系般向外延展,呈现“中心放射”的秩序。贴近身体的高度上——吧台下半部与开放厨房就坐区的基座,皆以可塑性黏土手工塑形后固化为“岩面”肌理:指尖可触的起伏,像翻出的湿土,留着工具与时间的痕迹,回应“头顶之花自泥土而生”的叙事。圆角家具进一步“软化”硬质环境,让膝部与手肘在木、石之间更为亲近;当你沿着花序行进、在花心落座,脚下的纹理、身侧的温度与头顶的光层层呼应——根在土中,萼在身旁,花在空中绽开,理性的几何被安放进可触的空间秩序里。
The design is anchored in materiality. Oak, stone, and concrete converge like a calyx cradling a bloom. A herringbone oak floor radiates outward from the bar, recalling roots in the soil. At hand level, clay-modeled reliefs evoke rock faces, tactile, crafted, and bearing the marks of time. Rounded timber and stone soften every edge, making every touch comfortable. Across the space, materials, light, and texture flow together: roots beneath, calyx at your side, flower above.
▼室内材料的肌理,the texture of interior materials

▼圆角家具,rounded corner furniture

5. 星座
Constellation|VIP
沿开放厨房一侧的侧廊拾级而上,踏步细线光收住脚步,墙体“光隙”间歇剧透一层花冠;节奏从公共切入私密。夹层不以正中对称取胜,而以偏轴与显隐叠境营造安定:休息区以胡桃木与绒面铺底,黑白几何界面错位交叠。为化解层高偏低,顶面引入古铜色镜面以拉伸垂直感;镜面并非整片铺贴,而是以叶片与花形为原型,采用抽象简化的图案再造进行分割,既控制反射眩光与面材变形,也把装饰语汇落在结构逻辑上(分割同时对应灯具点位、检修与设备位置),让“抬高”的天空更有秩序。转入包间,上方“星尘”装置以半透明烟紫叶片串联成星群,刻意微偏离桌面中心,在黑色织物背景下,让谈话与餐点成为真正的重心。材质从硬到软形成梯度——石与木过渡到软包与织物,身体的每个接触点都被温柔接住。
A side corridor rises past the open kitchen, illuminated by step lights and glowing slits that reveal glimpses of the floral crown. The mezzanine unfolds gradually into a walnut-and-velvet lounge, where geometry shifts subtly off-axis, creating intrigue. A mirrored antique-bronze canopy expands the low ceiling, etched with abstract floral motifs that align perfectly with the lighting; a quiet, elevated “sky. In the private dining room, a stardust installation suspends smoky-violet petals in loose constellations above the table. Against a dark textile backdrop, attention returns to food, conversation, and intimacy. Here, stone and timber give way to velvet and woven fabric, ensuring every touch feels soft, warm, and inviting.
▼楼梯空间,staircase space

▼包间,the private dining room

▼“星尘”装置,the stardust installation

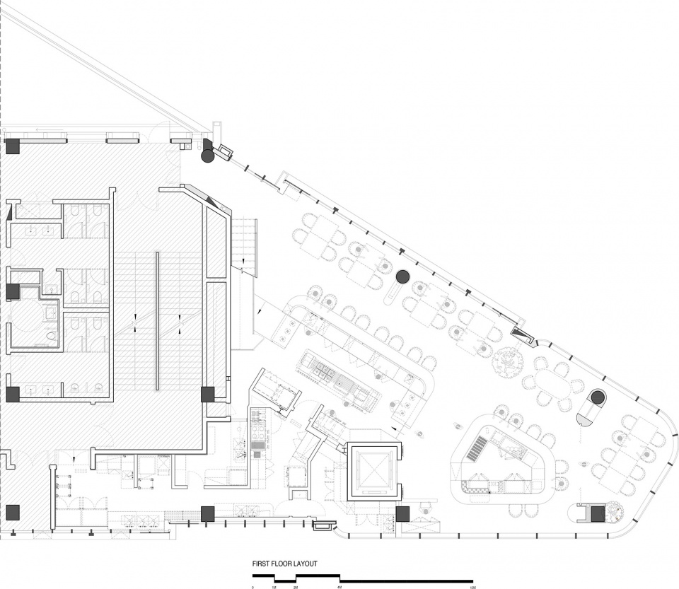
▼一层平面图,floor-1 layout

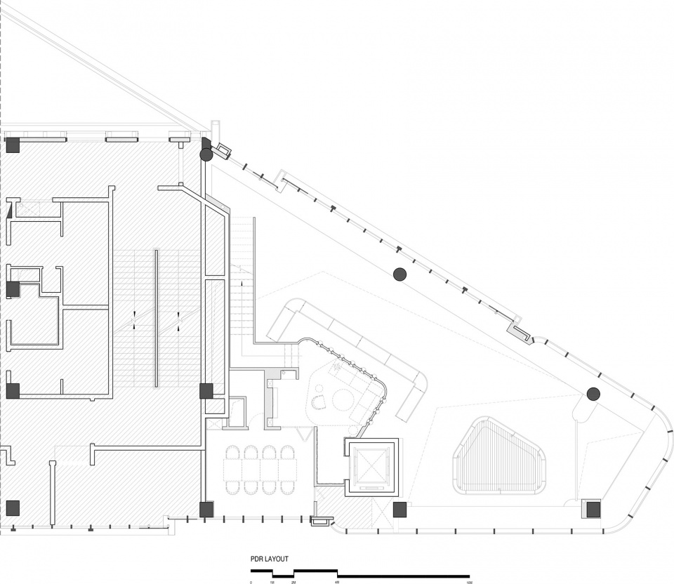
▼二层平面图,floor-2 layout

项目信息
Project Credits
Project: Aster by Joshua Paris
Type: Hospitality, bar & restaurant
Location: Shanghai, China
Floor area: 308.9 m²
Design / completion: June 2025
Design: RooMoo
Lighting design: Shanghai Baizi Lighting Engineering Design Co., Ltd.
MEP: Chengdu Zhongtong Architectural Decoration Design Co., Ltd.
Construction: Shanghai Suji Decoration Engineering Co., Ltd.
Photography: Wen Studio
Primary materials: Jinhua Stone; Black-and-White Root marble; Yashi White; Panda White marble; limestone; oak; antique bronze/brass; recycled dyed xuan paper; malleable clay; grey granite.














