商业空间的非商业,无锡 / 赫设计
空间摒弃商业化的营销式设计,以 “去设计化” 姿态传递真诚:让阅读回归本质,让空间成为承载思想的容器。
This space turns its back on commercial, sales-driven design. Instead, it embraces an “anti-design” spirit—one that speaks with sincerity, calling reading back to its core and letting the space itself become a vessel for ideas.
▼空间概览,overview of the space


这种设计策略不仅在材质碰撞间构建出独特的美学场域,更以去商业化的语境,重新诠释商业空间的人文内核 —— 以质朴设计呼应精神需求,让每个角落都成为读者与书籍、空间对话的诗意媒介。在这个书店空间中,设计以 “反商业化制式” 为核心策略,通过去模板化的 DIY 实践,重构商业空间的人文叙事。步入其中,走道、窗户与书架以有机序列穿插,形成自然流动的空间动线,消弭商业空间的刻意引导感。
This approach doesn’t just craft a unique aesthetic through clashing materials; it redefines the human heart of commercial spaces by stripping away commercial pretense. Here, simple design mirrors our spiritual needs, turning every corner into a poetic bridge where readers converse with books, and with the space itself. At the heart of this bookstore lies a deliberate rejection of commercial formulas. Through unscripted, DIY practices, it rewrites the story of what a commercial space can be—one rooted in humanity. Step inside, and walkways, windows, and bookshelves weave together in a natural rhythm, guiding movement without feeling forced. Gone is the heavy hand of commercial direction; instead, the space breathes.
▼在材质碰撞间构建出独特的美学场域,
craft a unique aesthetic through clashing materials

大量木质材料的运用成为视觉与体验的双重锚点:温润的板材构建墙体、座位,以天然肌理与暖调色泽,编织出温馨安定的阅读氛围,唤醒人们对纯粹阅读场景的情感记忆。铝型材与板材组合的书架、装置,则以工业化质感注入现代美学基因,在刚柔并济间打破商业空间的标准化桎梏。
Wood takes center stage, anchoring both sight and sensation. Its warm planks form walls and seats, their natural grain and soft tones wrapping the room in a quiet, reassuring warmth—stirring memories of what reading feels like, uncomplicated and true. Against this, bookshelves and installations marry aluminum frames with wooden panels. The industrial edge of metal injects a modern vibe, softening the wood’s warmth while shattering the monotony of standardized commercial spaces.
▼大量木质材料的运用成为视觉与体验的双重锚点,
Wood takes center stage, anchoring both sight and sensation

深棕木质吧台的天然肌理与温润色调成为视觉焦点,沉稳质感既承载咖啡制作的功能属性,又以亲和姿态消弭商业空间的距离感,让材质本真成为体验媒介。
A dark brown wooden bar commands attention, its natural texture and mellow hue drawing the eye. It’s more than a place to make coffee—it eases the cold distance often felt in commercial spaces, letting the material itself become a bridge between people and place.
▼深棕木质吧台,A dark brown wooden bar


顶部异形结构突破常规制式,通过不规则几何形态构建动态视觉层次,与木质吧台的稳重形成刚柔张力,既保留手工造物的随性温度,又暗含空间美学的精巧构思。
Above, irregular overhead structures defy convention. Their jagged geometry creates a dynamic visual dance, playing off the bar’s steady warmth. There’s a handcrafted looseness here, a warmth you can almost touch, yet beneath it lies a careful eye for beauty.
▼不规则几何形态构建动态视觉层次,
jagged geometry creates a dynamic visual dance

顶面与墙身布满个性贴纸、插画海报,从趣味图案到人文艺术创作,以碎片化拼贴形式赋予空间叙事性。诉说多元的故事篇章,构建起与消费者情感共鸣的纽带。
The ceiling and walls are alive with personality—stickers, illustrations, posters. Quirky doodles rub shoulders with art, pieced together like a patchwork quilt of stories. They turn the space into a storyteller, weaving connections that resonate with anyone who lingers.
▼顶面与墙身布满个性贴纸、插画海报,
The ceiling and walls are alive with personality—stickers, illustrations, posters

整个吧台区打造出兼具功能属性与精神内核的复合空间,是一个承载创意、故事与情感交流的场域,重新定义了商业化空间中 “人、物、境” 的共生关系。
The bar area becomes a hybrid—functional, yet soulful. It’s a space for creativity, stories, and conversation, reimagining how people, objects, and environment coexist in a commercial setting.
▼顶面与墙身布满个性贴纸、插画海报,
The ceiling and walls are alive with personality—stickers, illustrations, posters

一楼空间以自然材质对话现代功能,重新定义商业空间的体验维度。铝质书架以工业化型材构建陈列体系,与温润木质元素形成刚柔碰撞,在材质对话间赋予空间通透的呼吸感。
Downstairs, natural materials and modern function converse, redefining what a commercial space can feel like. Aluminum bookshelves—industrial and sharp—frame the books, their crisp lines playing against the wood’s softness. The contrast lets the space breathe, light and air flowing freely.
▼铝质书架以工业化型材构建陈列体系,
Aluminum bookshelves—industrial and sharp—frame the books

书籍陈列突破传统制式,倾斜木架、分层展架的错落组合,既引导浏览动线,又让每本书籍化作空间装饰的艺术单元,激活文化叙事的动态表达。
Books aren’t just shelved here—they’re arranged with intent. Slanted wooden racks and layered displays guide you along, but each book also becomes part of the decor, turning the act of browsing into a dialogue with culture.
▼书籍陈列突破传统制式,
Book displays break away from traditional formats

中部挑空设计巧妙拉升层高,消弭空间压迫感,构建开阔立体的层次关系。上层空间与一楼形成视觉互动,增强纵深感的同时,为顾客创造多元视角的探索体验。
A double-height atrium lifts the ceiling, chasing away any sense of confinement and carving out a roomy, multi-layered space. Upstairs and downstairs lock eyes, deepening the sense of depth and inviting exploration from every angle.
▼中部挑空设计,A double-height atrium

水泥地面、海洋板墙顶与乳白色调自然交融,最大化呈现材质本真色泽,摒弃冗余装饰,以 “少即是多” 的美学逻辑,让顾客沉浸于纯粹的阅读氛围。
Concrete floors, marine plywood walls, and soft white tones blend effortlessly, letting materials shine in their raw, unadorned state. No excess, no clutter—just the quiet logic of “less is more,” wrapping readers in pure, undistracted focus.
▼水泥地面、海洋板墙顶与乳白色调自然交融,
Concrete floors, marine plywood walls, and soft white tones blend effortlessly

顾客游走其间,消费行为转化为与书籍、空间、材质的深度对话,在简洁而丰富的视觉体验中,感受自然本真与文化张力,重新诠释 “商业空间不止于交易,更在于情感与精神的共鸣”。
Here, shopping fades into something richer: a conversation with books, with textures, with the space. Amidst this quiet interplay of simplicity and depth, you feel nature’s honesty and culture’s pulse—reminding us that commercial spaces can be more than transaction zones; they can be places where hearts and minds connect.
▼书籍、空间、材质的深度对话, a conversation with books, with textures, with the space


左右两侧楼梯作为垂直动线枢纽,不仅串联起上下层空间,更以开放式布局消弭楼层界限,形成一二楼视觉互通的互动场域,顾客于二楼可俯瞰一楼书海陈列,反之亦然,这种通透的空间对话极大增强了场景参与感。二楼两侧阅读区形成相对独立又彼此呼应的阅读单元,既满足私密性需求,又通过开放视角保持空间整体联动。
Stairs on either side link the floors, but they do more than that. Their open design dissolves the line between levels, turning the bookstore into a shared visual experience. From upstairs, you gaze down at a sea of books; from below, you glance up at the world above—this transparency pulls you in, making you part of the space, not just a visitor. Upstairs, reading nooks on either side carve out privacy while staying connected. They let you retreat, yet keep you part of the larger rhythm of the room.
▼楼梯作为垂直动线枢纽,Staircases serve as pivotal points in vertical circulation routes

设计将空间划分为错落分布的功能区块,塑造出丰富的空间层次,既避免了大面积平面的单调,又通过立体落差引导探索欲,使顾客在行走间自然解锁不同阅读场景。
The design splits the space into scattered, functional pockets, each with its own character. It avoids the boredom of vast, flat expanses, using subtle elevation changes to spark curiosity. As you wander, new reading corners reveal themselves—naturally, organically.
▼细部,detail


1.整体上通过大量原木材质搭配乳白色墙面,强调空间的自然氛围,通过材质营造自然基调;
2.充分利用非方正户型的优点打造丰富的动线,营造趣味视线;
3.部分做挑空设计,营造开阔感与纵深感;
4.通过一二楼分区优化动线,延长顾客停留时间;开放式互动设计强化空间趣味性,契合当代消费者对 “可探索、可社交” 商业场景的需求。
Log materials paired with soft white walls set the tone, wrapping the space in a natural, earthy atmosphere.
The non-rectangular layout is embraced, crafting winding paths and playful sightlines that invite exploration.
Strategic double-height areas open up the space, creating a sense of breadth and depth.
Zoning the first and second floors refines movement, encouraging longer stays. Open, interactive elements keep the space lively, matching today’s desire for places that are both discoverable and social.
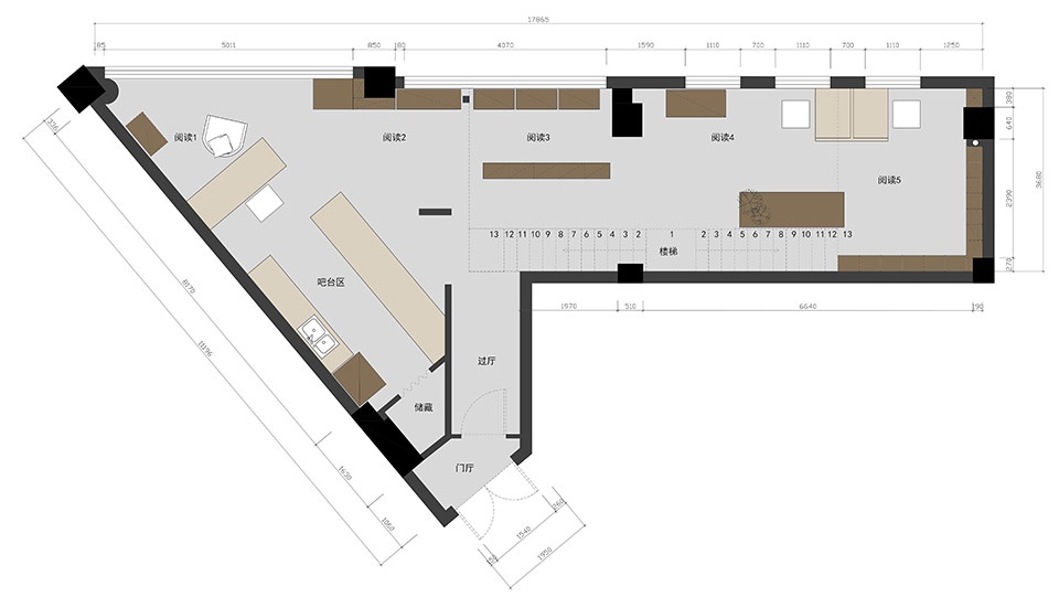
▼一层平面,grround floor plan

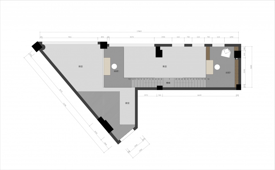
▼二层平面,first floor plan

Project name: The Non-Commercial Aspect of Commercial Space
Project type: Interior Design
Design:HURR DESIGN
Website:hurr.design
Contact e-mail: hurrdesign@qq.com
Design year:2024
Completion Year:2025
Leader designer & Team:
Project location:Wuxi, Jiangsu (Province), China
Gross built area: 90㎡
Photo credit: AuraStudio














