山脩 · 美术馆,南京 / 禾本设计事务所
建一座美术馆,“动”时它是对外展示的功能,“静”时它是画家感知的精神共鸣,它宁静而含蓄,热烈而奔放。初次结识赵老师,他那文人墨客的气质和修养,以及卓越的绘画技艺和对艺术深刻的理解,让我们心生敬意。赵老师不仅是一位艺术家,更是一位热爱自然、追求美好的人生智者,因此,我们空间定义的主题为“腹有诗书,胸怀山海”。
When building an art museum, in its “dynamic” state, it serves the function of public exhibition; in its “static” state, it becomes a space for spiritual resonance where artists perceive and connect. It embodies tranquility and subtlety, yet also exudes passion and boldness.The first time we met Mr. Zhao, we were filled with admiration for his scholarly temperament and refinement, his outstanding painting skills, and his profound understanding of art. Mr. Zhao is not only an artist, but also a life-wise person who loves nature and pursues beauty. Therefore, we have defined the theme of this space as “With poetry and books in the heart, and mountains and seas in the mind” — a phrase that captures the essence of a life enriched by knowledge and a spirit broad enough to embrace the grandeur of nature.
▼项目概览,overview of the project



本案位于阅江楼下的山脚位置,登上楼阁,便可俯瞰长江;优越的地理位置让空间远离喧嚣,可以感受大自然的宁静与山水的恬淡,也为空间增添了文化传承的底蕴;
The case is located at the foot of the hill below Yuejiang River, climb the pavilion, you can overlook the Yangtze River; The superior geographical location makes the space far away from the hustle and bustle, and you can feel the tranquility of nature and the calmness of mountains and rivers, and also adds the heritage of cultural inheritance to the space;
▼项目鸟瞰,aerial view of the project

外面的围墙为保证所需的隐私性,一定程度上的做高,营造高墙大院的感觉;围墙的材质选用清水混凝板,让整个外立面显得更加简洁和易读;
In order to ensure the required privacy, the outer wall is made high to a certain extent, creating the feeling of a high wall compound; The material of the wall is water concrete board, which makes the entire facade more concise and easy to read;
▼营造高墙大院的感觉,creating the feeling of a high wall compound


经过围合感的廊道,又进入下一个域场,前场顶面就没有那么强的围合感,通过人本身的心理上的收放感受,带来豁然开朗的空间体验;
After passing through the enclosed corridor and entering the next domain field, the top surface of the front field does not have such a strong sense of enclosing, and brings an suddenly bright space experience through people’s psychological feelings of closure and relaxation;
▼豁然开朗的空间体验,an suddenly bright space experience


▼引人探索的场域,the front field invites people to explore


▼庭院水景,courtyard water feature


▼庭院景观,courtyard landscape


▼感受大自然的宁静,feel the tranquility of nature


作品展示区我们整体是一个白色盒子,建筑结构是坡顶,坡顶给人一种教堂神圣的感觉,因此我们吊顶保留了这种尖顶结构,可以让审美体验在纯粹的殿堂中发生。
The whole of the exhibition area is a white box, and the building structure is the slope roof, which gives people the feeling of the sacred church. Therefore, we retain this spire structure in the suspended ceiling, which can make the aesthetic experience happen in the pure temple.
▼白色盒子,a white box


▼感受大自然的宁静,feel the tranquility of nature

▼为空间增添了文化传承的底蕴,adds the heritage of cultural inheritance to the space


▼保留了尖顶结构,retain this spire structure

▼给人以教堂神圣的感觉,evokes the sacred atmosphere of a church


▼给人以教堂神圣的感觉,evokes the sacred atmosphere of a church


山海星辰,它是一曲未完的诗篇,一幅未尽的画卷。每一笔,每一划,都蕴含着深深的哲理和无尽的、思考。
Mountains, seas and stars, it is an unfinished poem, an unfinished picture. Every stroke, every stroke, contains deep philosophy and endless thinking.
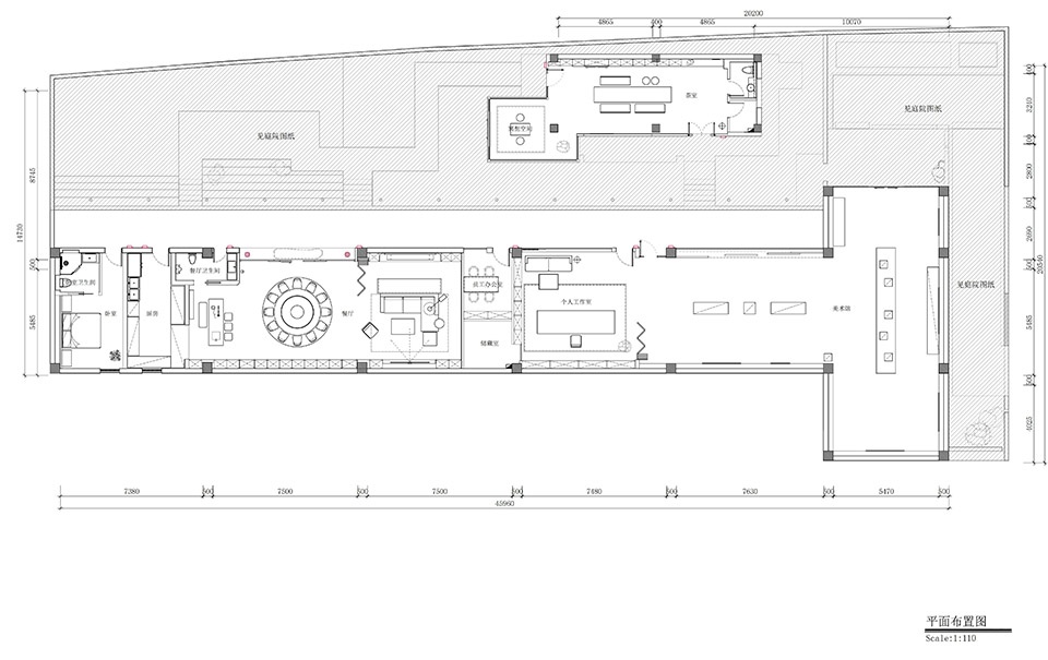
▼平面布置图,plan

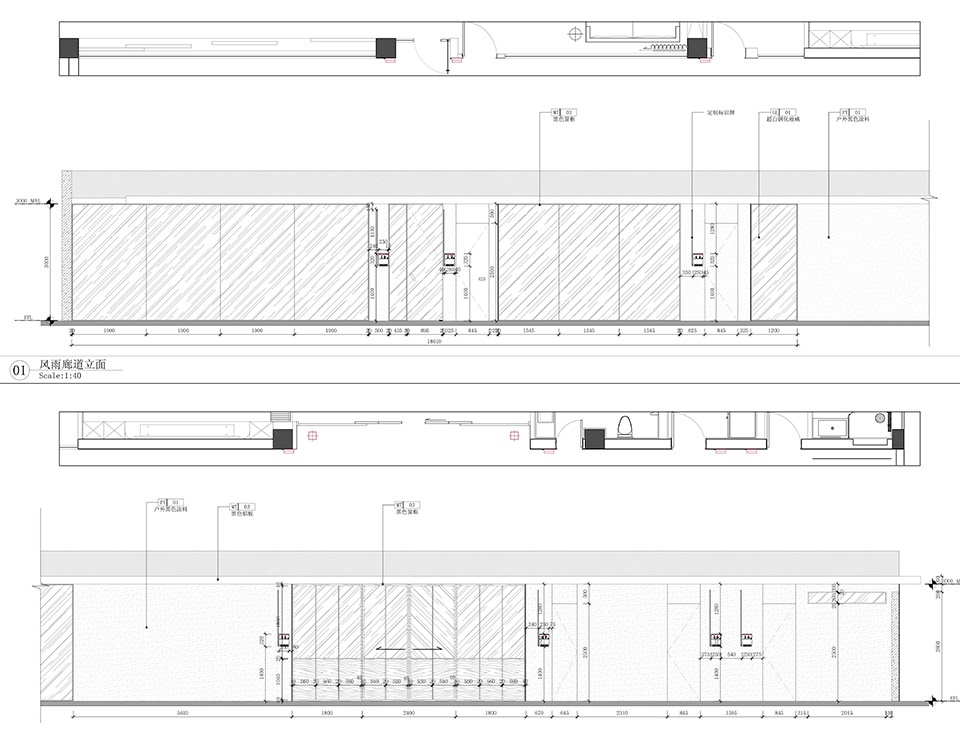
▼风雨连廊图纸,sheltered corridor drawings

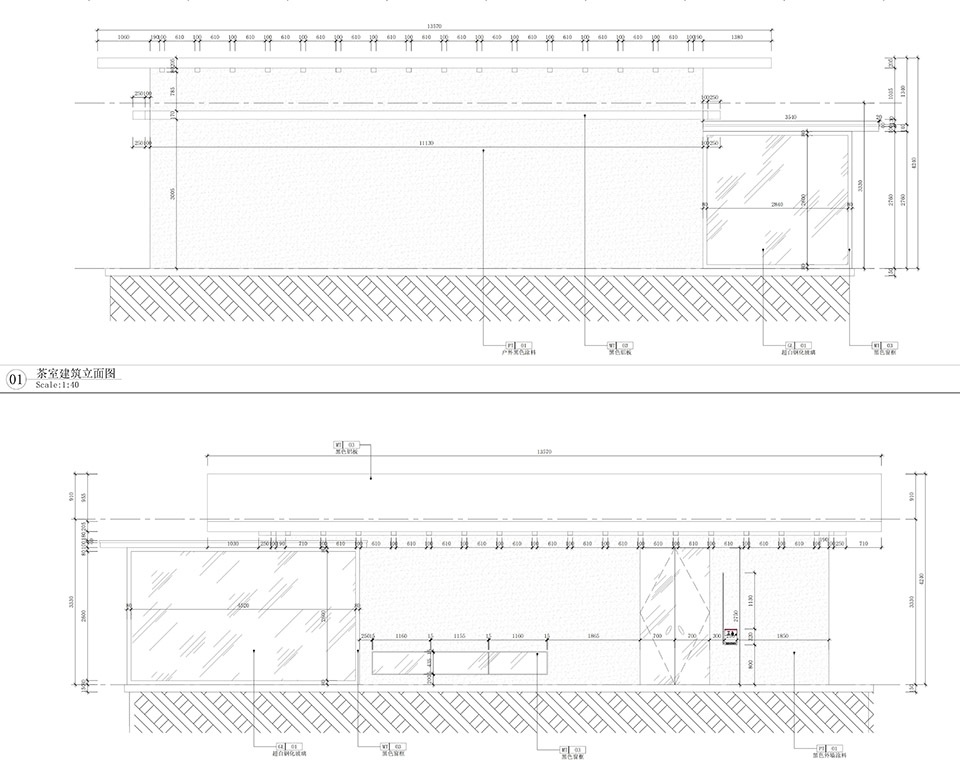
▼茶室建筑立面图,tea room elevations

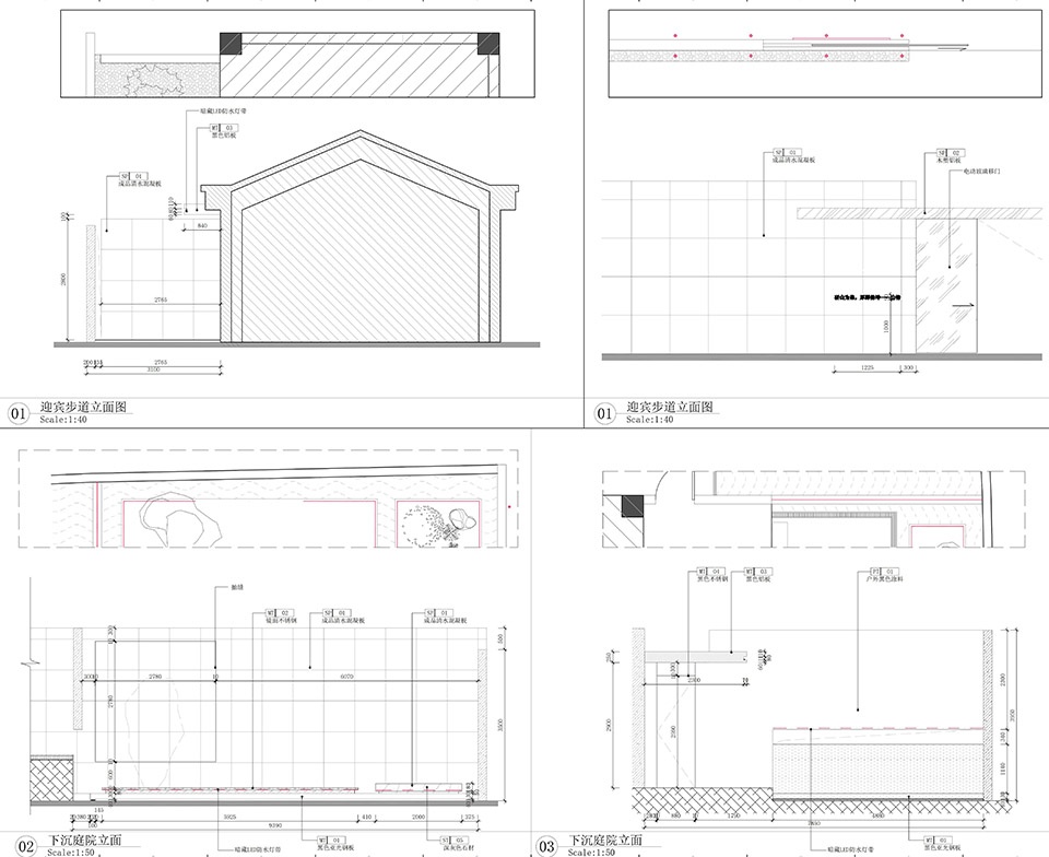
▼迎宾步道立面及下沉庭院立面,corridor elevation and sunken courtyard elevation

Project name: Shanxiu Art Museum
Project type: Building
Design firm: Heben Design Firm
Contact e-mail: 2206220433@qq.com
Completion Year:2025
Leader designer & Team:SuJiang
Project location:Room 101, Mingchaoli, No. 196, Jianning Road, Gulou District, Nanjing City
Gross built area: 1026㎡
Photo credit: Heyaoshi
Materials:Exposed Concrete Panel、Artistic Coating、Mirror Tile、Glass














