Le Stalle住宅,意大利 / Pedro&Juana
“Le Stalle”——一座位于意大利马焦雷湖(Lago Maggiore)附近乡村的马厩遗址,只能通过一条古老的罗马石板路抵达。业主委托Pedro&Juana将这座破败的旧马厩改造为两栋度假住宅。虽然原建筑因长期暴露而无法修复,但意大利的文物保护法规要求新建筑必须尊重原有的建筑基址,同时允许最多20%的扩建。在这样的限制下,为了向其历史致敬,Pedro&Juana保留了马厩坚实的矩形体量(扩大20%),延续其厚重的石砌墙体,并将整体一分为二,在两栋房屋之间创造出一条视觉上的“缝隙”。两栋坡屋顶的板岩体量朝不同方向倾斜,仿佛后方的那一栋正探头窥视着下方五百米处闪烁的湖面。
Le stalle, a stable—or rather, the ruins of a stable—sat in a rural area near Lago Maggiore, Italy, that can only be reached via an ancient Roman cobblestone road. The clients approached Pedro&Juana looking to transform the remains of Le Stalle into two vacation homes. Although the original structure could not be repaired because of its exposure, preservation laws in Italy required the new construction to respect the original footprint while allowing for an expansion of up to 20%. With these limitations in mind, and in an effort to honor its history, Pedro&Juana preserved the stable’s robust rectangular shape (albeit 20% bigger) and sturdy stone walls while splitting the structure in two to create a visual break between the houses. The gabled slate roofs of each volume tilt in different directions, as if the back house was peaking for a glimpse of the glittering lake five hundred meters below.
▼建筑概览,Overall view of the house



▼延续其厚重的石砌墙体,
continues its thick stone walls

新的石墙使用从废墟中回收的石块砌筑而成,延续了古老的质感。但——如何让这些古老的石头说出当代的语言?为了在历史中引入新的光线、让内部空间更加明亮,Pedro&Juana 在墙体上穿插了厚重的混凝土窗框,以框取意大利的自然风景。其中一扇窗正对山巅教堂的钟楼,另一扇则捕捉了林间的片段。这些窗景宛如动态的画作,随着人从餐厅、卧室到厨房、露台的移动而不断变换视角——直到在露台上,人被阿尔卑斯山峰变幻的色彩与周围植物被阳光温暖的气息所迷醉。
The new stone walls were crafted using recycled rocks from the ruins. So far, so ancient—but how can we teach ancient stones to speak our contemporary language? To shed some novel light on history and to brighten the interiors, Pedro&Juana punctured the walls with thick concrete frames that captured the Italian landscape. One of them frames the bell tower of a church perched on a mountaintop, while the other captures a section of the forest. These windows become dynamic paintings, shifting their views as one moves through the spaces—from the dining room to the bedroom, onto the kitchen, and finally reaching the terrace, where one is hypnotized by the changing colors of the high-rising peaks of the Alps and the sun-warmed scents of the surrounding plants.
▼延续其古老的质感,It continues its ancient texture

▼在墙体上穿插了厚重的混凝土窗框,
punctured the walls with thick concrete frames

立面上两根双管状耐候钢雨水管垂直延伸至墙体三分之一处,穿过花岗岩墙面上的细微水平凹槽,使建筑体量在厚重中显得轻盈。厚檐的悬挑屋顶进一步稳固了建筑的视觉重心。如今,Le Stalle以当代设计重新诠释了“庇护所”的概念——在这片林木茂密、坡势陡峭的伦巴第山区,它重新成为牧人及其羊群的避风之所。
Doubled downpipes of Corten steel run down a third of the façade, crossing a subtle horizontal indent on the granite walls, which lightened the structure´s appearance. Overhanging roofs with thick eaves further anchor the volume below. Le Stalle reclaims the original use as a refuge for shepherds and their flocks in these woody, steep Lombardian hills, using contemporary design to update the concept of shelter.
▼立面上的双管状耐候钢雨水管,
Doubled downpipes of Corten steel


▼间隙中的楼梯,staircase in between

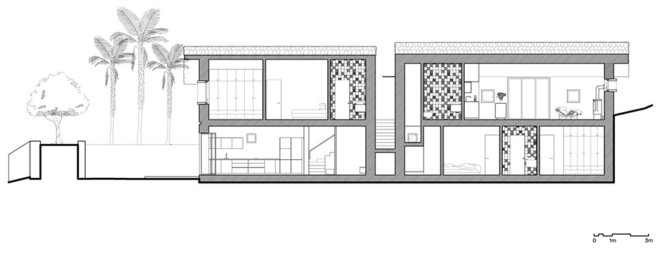
由于建筑依山而建,Casa A与Casa B均为两层结构。中央的分隔体量容纳了一条通向上方花园与Casa B上层入口的楼梯。郁郁葱葱的花园与石质外观形成鲜明对比,这种对比关系也延续到了室内。每栋房屋都有独立的色彩主题,从厨房台面、橱柜到浴室均有所呼应。尤其是浴室空间,细腻的设计与从地面延伸至天花的亮丽彩色瓷砖,为居住者带来了放松与愉悦的体验。
Due to their steep hillside location, Casa A and Casa B extend over two levels. The central split holds a staircase that leads up towards a lush outdoor area and the upper floor entrance of Casa B. The rich atmosphere of the garden contrasts with the rocky appearance of Le Stalle, an element that continues indoors. Each house has its own color scheme that shifts across the kitchen tops, cabinets, and bathrooms. The detailed and thoughtful composition of the individual bathrooms, with their bright and colorful floor-to-ceiling tiles, is a relaxing treat.
▼客厅空间,living room

▼餐厅空间,dining hall room



▼卧室,bedroom


▼步入二层的楼梯,
staircase towards the upper level

▼彩色浴室,colorful bathroom



最终,Le Stalle的旧貌确实被改变了——这片废墟被重生为两栋新居,既骄傲地承载着历史的印记,又以Pedro&Juana的当代设计语言焕发新生,成为一个理想的栖居之所,让人静坐其间,凝望远方的风景。
In the end, the old structure of Le Stalle did change! The ruin was transformed into two homes that proudly wear their historical heritage, engaging with Pedro&Juana’s design to create an ideal space to sit and enjoy the view.
▼夜景,night view



▼场地平面,site plan

▼一层平面,ground floor plan

▼二层平面,first floor plan

▼立面,elevation


▼剖面,section


Architects: Pedro&Juana
Project Team: Mecky Reuss, Ana Paula Ruiz Galindo, Livia Arroyo, Adriana Carlos, Diego Manzano, Rosario Madrazo, Mariel Kuri.
Size: Casa A: 90m2 | Casa B: 116m2
Constructor: Studio Catenazzi
Location: Tronzano, Lago Maggiore, IT
Photos:
Gaia Cambiaggi Anna Positano | Studio Campo
Andreas Reuss when stated














