BRÜMM住宅扩建,德国 / STUDIO LOES
单户住宅在当前建筑话语中并不享有最好的声誉,这也是有原因的,因为它涉及到相对大量的土地密封、过度的能源和材料消耗。因此,需要新的创新思维来满足可持续建筑的要求:在可能的情况下,延伸、增建和改建现有结构是一项有效的措施。STUDIO LOES为一座单户住宅所做的屋顶扩建,展示了即使在极为有限的规划选项下,如何在历史悠久的城市环境中实现这一目标。
The single-family home model of living and lifestyle does not enjoy the best reputation in current architectural discourse, and rightly so, as it involves a relatively large amount of land sealing and (excessive) energy and material consumption. New and innovative thinking is therefore needed to meet the requirements of sustainable construction: extending, adding to, and building on existing structures wherever possible is an effective measure. This roof extension to a single-family home by STUDIO LOES shows how this can work even in historic urban contexts with extremely limited planning options.
▼住宅周围环境,surroundings of the house

▼住宅外观,exterior of the house


▼扩建后的屋顶,roof after extension

该物业是一座建于20世纪初的独立单户住宅,拥有两层楼、一座平屋顶和一个花园,位于柏林西南部达赫莱姆区的前别墅区。随着业主家庭的成长,需求出现了更多空间。客户选择对现有建筑进行再开发,而非拆除重建。他们计划在屋顶上扩建一部分。挑战在于:原有的屋顶不能简单地“覆盖”上去;这将涉及到巨大的建筑规范和建筑技术工作。唯一的解决办法是:在临时的天气屋顶下,小心地拆除现有屋顶结构,并用全新的结构替换——就像开颅手术一样。历史背景要求特别小心的干预——无论是在建筑、材料还是建筑风格上。
▼轴测图,axonometric

▼设计策略,design strategy

The property — a detached single-family home from the early 20th century with two full stories, a flat roof, and a garden — is located in the former villa colony in the southwestern Berlin district of Dahlem. With the growth of the owner family, the desire for more space arises. Instead of demolition and new construction, the clients opt for redensification of the existing building. They plan an extension above the roof. The challenge: the old roof cannot simply be “built over”; it would involve an enormous effort in terms of building regulations and construction technology. Only a radical solution remains: under a temporary weather roof, the existing roof structure is carefully dismantled and replaced with a completely new one – like open-skull surgery. The historical context requires particularly careful intervention – both in terms of construction, materials and architecture.
▼全新结构替换后的屋顶,
the existing roof structure is carefully dismantled and replaced
with a completely new one


▼室内空间,the interior space

▼室内空间,the interior space

新的折叠屋顶以大型天窗和花园侧的宽大窗户前墙为特点。由于天窗的中央位置,屋顶边缘得以保持可见,并巧妙地融入了房屋的几何形态中。此外,垂直结构的金属板材与现有建筑相得益彰。它们平衡了这一激进设计干预,并巧妙地结合了旧与新。一个特别的细节是屋顶与立面之间的接合点。通常,屋檐位于房屋较高的位置,墙体会延伸到屋顶下方。通过拆除现有天花板,雨水槽被优雅地融入到屋檐中。新的屋檐在雕塑般的设计中环绕着现有建筑的体量。
▼施工过程中的屋顶,the roof under construction


The new folded roof is characterized by large dormers and an expansive window front on the garden side. Due to the central positioning of the dormers, the roof edges remain visible and are thus cleverly integrated into the geometry of the house. In addition, the vertically structured sheet metal panels respond harmoniously to the existing building. They calm the radical design intervention and cleverly combine old and new. A special detail is the interface between the roof and the facade. Normally, the eaves are located much higher on the house, with the wall extending below the roof. By demolishing the existing ceiling, the rain gutter was elegantly incorporated into the eaves. The new eaves wrap sculpturally around the existing buildings volume.
▼夜景,the night view

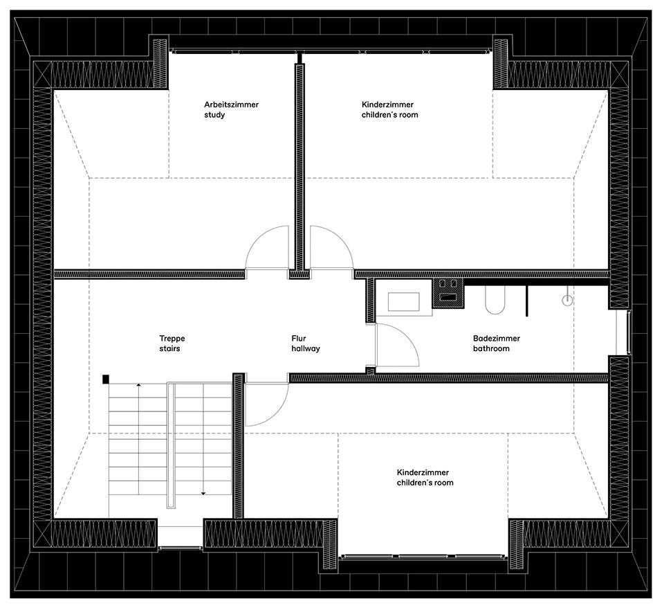
建筑师还负责了阁楼的室内设计:三间光线充足的天窗房间,提供高质量的生活空间——包括两间儿童房、一间书房和一间浴室——总面积约为160平方米的新增空间。除了屋顶扩建外,花园侧的木质与玻璃结构扩建将总生活空间增加了25平方米。
The architects also took on the interior design of the attic: three light-flooded dormer rooms with a high quality of living – two children’s rooms, a study, and a bathroom – are located on approximately 160 newly created square meters. In addition to the roof extension, a wooden and glass extension on the garden side adds another 25 square meters to the total living space.
▼平面图,plan

▼剖面图,section

Location: Berlin-Dahlem
Client: private
Start of Planning: 2023
Completion: 2025
LPH: 3-9
Team STUDIO LOES: Max Kellermann, Elena Armbruster, Maximillianus Agitama














