Rhodes基金会总部改造,英国 / Stanton Williams
由赫伯特·贝克爵士(Sir Herbert Baker)设计并于1929年完工的罗德斯大楼(Rhodes House)位于历史悠久的牛津市中心南园路(South Parks Road)。建筑坐落于宽阔的花园之中,是罗德斯基金会(Rhodes Trust)的历史总部。该基金会是一家教育慈善机构,负责管理世界知名的牛津大学罗德奖学金(Rhodes Scholarships)——其校友包括前美国总统比尔·克林顿(Bill Clinton)、电影导演泰伦斯·马力克(Terrence Malik)以及音乐家克里斯·克里斯托佛森(Kris Kristofferson)——以及其他多个国际奖学金项目。
Designed by Sir Herbert Baker and completed in 1929, Rhodes House is located on South Parks Road, in the centre of historic Oxford. Set within extensive gardens, the building is the historic headquarters of the Rhodes Trust, an educational charity which oversees the world-renowned Rhodes Scholarships at the University of Oxford (alumni of which include former US president Bill Clinton, film director Terrence Malik and musician Kris Kristofferson) and several other global fellowship programmes.
▼项目鸟瞰,aerial view of the project

▼项目外观,exterior of the project


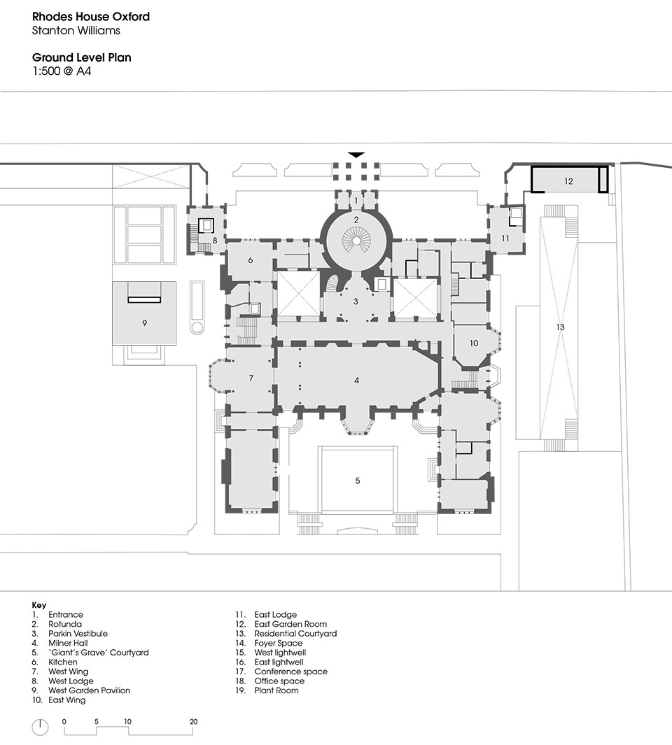
斯坦顿·威廉斯建筑事务所(Stanton Williams)与罗德斯基金会及更广泛的设计与施工团队密切合作,通过富有同理性的改造,为罗德斯大楼注入了新的生命。此次改造使建筑的可用空间翻倍,并显著提升了其环境与空间性能。项目对20世纪20年代的建筑及其历史花园进行了精心修复,并重新梳理场地布局,建立了清晰的流线与分区:中央为会议设施,东侧为住宿功能,西侧为员工与学者的办公空间。北侧的门舍与附属空间经过细致重组,恢复了主立面的对称性;新打造的内部空间在多层面上与花园互动,引入自然光与新鲜空气,提升了使用者的健康与幸福感。
▼轴测图,axonometric

Developed in close collaboration with the Rhodes Trust and the wider design and construction team, Stanton Williams’ scheme breathes new life into Rhodes House, with sympathetic alterations that double its usable space and substantially improve its environmental and spatial performance. The project has carefully restored the 1920s building and its historic gardens and reorganised the site to establish clear circulation routes and zones, with new conference facilities in the centre; residential uses to the east; and new staff and scholar working accommodation to the west. The sensitive reconfiguration of the lodge buildings and ancillary spaces to the north of the site restored the symmetry of the main façade; while the newly crafted interior spaces engage with the gardens on multiple levels to draw natural daylight and fresh air into the building and enhance wellbeing.
▼恢复了主立面的对称性,restored the symmetry of the main façade

▼在多层面上与花园互动,engage with the gardens on multiple levels

建筑主层下原为拱形档案库的空间,被巧妙地改造为一个可容纳300人的新会议厅及相邻的前厅。这些档案空间并非贝克的原始设计,而是在20世纪50年代的改建中添加的。新的会议厅采用拱顶屋面,营造出宽阔灵活的空间尺度,可容纳多种形式的会议活动,同时开辟出面向葱郁花园的视野。
▼布局轴测图,layout axonometric

A new 300-seat Conference Hall and adjacent Foyers have been cleverly created by converting existing cavernous archive spaces beneath the House’s main rooms. The archive spaces were not included in Baker’s original design and were part of a series of alterations carried out in the 1950s. In the newly created Conference Hall, a new vaulted roof provides a generosity of scale and flexibility for a variety of convenings as well as opening up views out to the verdant gardens beyond.
▼营造出宽阔灵活的空间尺度,provides a generosity of scale and flexibility


过去通往档案室的通道位于主流线之外,如今新的会议厅与前厅可通过在圆厅(Rotunda)中央新建的优雅石阶进入。圆厅是贝克设计的壮丽主入口,同时也是一座纪念在第一次与第二次世界大战中牺牲的罗德学者的纪念空间。新的楼梯从地面层的圆厅直接引导与会者进入下层的新前厅,新增的玻璃采光井为重新规划的下层带来自然光与通风,同时作为非正式的交流区域及公共艺术展示空间。
▼剖面图,section

Whereas the access to the archive spaces was originally tucked away from the main route, the Conference Hall and Foyers are now entered via an elegant new stone staircase created in the centre of the Rotunda – Baker’s spectacular main entrance to Rhodes House, which is also an important memorial to fallen Rhodes Scholars on both sides of the First and Second World Wars. The new staircase leads delegates from the Rotunda at ground level directly into the new Foyers below, where newly glazed lightwells bring daylight and natural ventilation to the reconfigured lower floors, while also acting as informal breakout spaces as well as display areas for public art.
▼圆厅,the Rotunda


▼旋转楼梯通往地下层,the spiral staircase towards the basement level

尽管圆厅具有重要的纪念意义与空间庄严感,但在改造前功能欠佳,仅作为通行通道使用,从而削弱了纪念空间的氛围。新的石阶减缓了人们穿越圆厅的速度,使进入者在拱顶之下被引导沿环形栏杆缓缓行进,而非径直穿过空间。拾级而上,视线被吸引至穹顶及墙上的纪念铭文。新楼梯的雕塑形态与圆厅相得益彰,唤起了贝克所称的“魔幻魅力”,实现了他当年的愿景——在此设置一件雕塑,使该空间成为“建筑之美与兴趣的中心”,并成为“吸引每一位进入者目光的所在”。
▼模型,model

Despite its importance and grandeur, the Rotunda did not function well. Prior to Stanton Williams’ intervention, it served only as a thoroughfare, detracting from the cultural sensitivity of the memorial. The new stone staircase helps to slow down the pace at which people engage with the Rotunda. As you enter under the vault, you are guided around the circular perimeter of the balustrade, rather than cutting straight through the space. Ascending the stairs, the eye is drawn to the dome above and the commemorative inscriptions on the wall. The sculptural form of the new staircase complements the Rotunda, bringing to the fore the ‘magical influence’ that Baker attributed to it and fulfilling his ambition that a sculpture should be installed to help this space become ‘the centre of beauty and interest in the building’ and a place that ‘holds the attention of all who enter it’.
▼新楼梯的雕塑形态与圆厅相得益彰,the sculptural form of the new staircase complements the Rotunda


在西侧花园,一座全新的50座玻璃亭为学者与公众提供一个宁静的会面与交流场所,置身于壮丽的园景之中。该亭采用创新科技,同时作为整个场地的“太阳能收集器”。其玻璃立面可被动吸收太阳热量,过剩热能通过隐藏于墙体木作中的风机盘管装置提取,使空间保持舒适温度;捕获的热能则被储存或直接用于邻近历史建筑的供暖与热水系统。
In the West Garden, a new 50-seat glazed Pavilion provides a tranquil place for Scholars and the public to meet and exchange ideas in a magnificent landscaped setting. Using innovative technologies, the Pavilion also acts as a ‘solar collector’ for the entire site. Its glazed facades passively collect the sun’s heat. Excess heat is extracted by fan-coil units concealed in the joinery wall, cooling the space to a comfortable temperature, while the captured heat is then either stored or immediately used elsewhere in the adjacent historic building for heating and hot water.
▼为学者与公众提供一个宁静的会面与交流场所,provides a tranquil place for Scholars and the public to meet and exchange ideas

▼弧形天花设计,curved ceiling

▼弧形天花设计,curved ceiling

▼玻璃立面可被动吸收太阳热量,glazed facades passively collect the sun’s heat

罗德斯大楼的东翼被恢复为最初的居住功能,为会议代表提供21间带独立卫浴的客房,并配备新电梯以确保大部分房间拥有平层无障碍通行。紧邻东翼,一处新建的下沉式住宅庭院巧妙地嵌入东侧花园,内含16间新客房,均面向绿意环绕的公共露台,其材质呼应上方历史立面。房间采用玻璃幕墙以最大化自然采光,具备高效隔热并以覆土设计恢复了上方花园。新建的花园亭面向庭院与新景观区域开放,为员工提供额外设施。
The East Wing of Rhodes House has been returned to its original residential use, providing 21 ensuite bedrooms for conference delegates, with new lifts ensuring that most rooms have flat and level access. Adjacent to the East Wing, a new lower ground Residential Courtyard, carefully and discreetly set within the East Garden, provides 16 new guest bedrooms, all opening onto a leafy communal patio echoing the materiality of the historic façade above. The rooms have glazed front openings to maximise natural light and are highly insulated and earth sheltered, with the gardens reinstated above. A new Garden Pavilion opens out onto the courtyard below and a newly landscaped part of the garden, providing additional amenities for staff.
▼下沉式住宅庭院,the lower ground Residential Courtyard


▼为会议代表提供带独立卫浴的客房,providing ensuite bedrooms for conference delegates


主要施工自2020年秋季启动,并分阶段进行以确保大楼始终开放运营。罗德斯大楼的全面焕新恰逢基金会成立120周年之际,同时也标志着其启动历史上最大规模的奖学金扩展计划,目标筹集2亿英镑,将全球奖学金名额从每年100个增至125个。基金会计划到2028年为非洲学生设立每年共32个奖学金名额,体现其在全球范围内扩大申请群体与促进奖学金分配公平的承诺。这一系列新介入确保罗德斯大楼继续作为牛津建筑的重要组成部分,成为基金会、学者及更广泛牛津社群的高效可持续之家,并支持基金会扩展全球奖学金计划的使命。
The main construction works started in Autumn 2020 and were carefully phased to allow the House to remain open throughout. The completion of Rhodes House’s transformation comes as the Trust celebrates its 120th anniversary and launches a new campaign to fund the largest expansion of its Scholarships in its history, with the goal of raising £200m to increase the number of worldwide Scholarships from 100 to 125 a year. Specifically, the Trust plans to create a total of 32 Scholarships per year for students from Africa by 2028 – a key part of the Trust’s commitment to widening its applicant pool and promoting greater equity in the distribution of its Scholarships across the globe. The new interventions ensure that Rhodes House remains a magical part of Oxford’s architecture and operates effectively and sustainably as a home for the Trust, its scholars and the wider Oxford community, while supporting the Trust’s mission to expand its global Scholarship programme.
▼中庭空间,atrium space


▼为牛津社群提供高效可持续之家,providing effectively and sustainably space for scholars and the wider Oxford community


▼为牛津社群提供高效可持续之家,providing effectively and sustainably space for scholars and the wider Oxford community


▼夜景,night view


▼场地平面,site plan

▼地下一层平面,lower ground level plan

▼一层平面,ground level plan

▼二层平面,level 01 plan

▼三层平面,level 02 plan

▼剖面,section


Client: Rhodes Trust
Project Director: Mat Davies, Director of Estate, Rhodes House
Architect: Stanton Williams
Main Contractor: Beard Construction
Conservation Architect and Heritage Consultant: Pendery Architecture & Heritage,
Heritage Assessment: Marcus Beale Architects
Structural Engineers: Webb Yates Engineers
Building Environment and Services Engineers: Skelly & Couch
Landscape Architect: Bradley-Hole Schoenaich Landscape Architects
Fire Consultant: Arup
Lighting Designers: Studio Fractal
Acoustic Engineers: Sandy Brown Associates
AV/IT Consultant: Hewshott International
Cost Consultant: Gleeds Cost Management
Planning Consultant – Savills
Ecologist: Applied Ecology
Arboriculturist: Heritage Tree Services
Archaeology Consultant: Museum of London Archaeology














