Olivino艺术餐厅,上海 / 无设建筑
餐厅项目坐落在上海油罐艺术中心,原建筑主体临靠黄浦江畔,由OPEN建筑事务所于2019年设计完成。2024年,建筑师顾忆基于对原建筑精神的理解,将一座中立、冷静、自由的展览空间,通过克制、尊重与融合的设计手法,转译成为一个具有自然互动性、充满情感的体验空间。
The restaurant project is situated within Shanghai Tank Art Center, where the original structure—designed by OPEN Architecture in 2019—stands adjacent to the Huangpu River. In 2024, architect Gu Yi, guided by an understanding of the original building’s spirit, transformed a neutral, cool, and free exhibition space into an emotionally resonant experiential space with natural interactivity. This was achieved through restrained, respectful, and integrative design techniques.
▼鸟瞰,Bird ‘s-eye view



俯瞰这片钢结构交织的穹顶,可窥见一方温暖的人间烟火。冷峻的金属线条切割着夜空,却围合出一桌桌丰盛的晚餐——玻璃杯折射着柔光,人影在暖色调的灯光中晃如油画的笔触。工业的理性与餐食的温情在此间方格中,形成一场奇妙的对话。也在开阔与丰盈中,完成了一次关于空间属性、记忆与情感转化的实践。
Looking down upon this dome woven from steel structures, one glimpses a warm, human-scale world. The stark metal lines slice through the night sky yet frame lavish dinner tables—glassware refracts soft light, and silhouettes dance like brushstrokes in warm-toned illumination. Within these grid-like spaces, industrial rationality and culinary warmth engage in a remarkable dialogue. Amidst openness and abundance, this project embodies a practice exploring spatial attributes, memory, and emotional transformation.
▼屋顶鸟瞰,A bird ‘s-eye view of the roof

▼屋顶细节,The roof details


从“白盒子”到“情感容器”,是“对话而非覆盖”From “white box” to “vessel of emotion,” it’s about “dialogue, not overlay.”
无论“展览”还是“餐饮”,两者在“体验”层面的共通性,都希望为使用者提供一段脱离日常的,且富有感染力的美好时光。设计的理念,从功能的更迭,转至情感的续写。尊重与保留原建筑中的工业基因,是本项目中改造的叙事底色。作为一个定位于米其林级别的餐厅项目,在填入其必要的餐饮功能同时,如何共融工业感、精致化及舒适体验之间的有效尺度,是设计的另一处发声。
▼建筑原貌,The original appearance of the building


Whether “exhibition” or “dining,” both share a commonality in the “experience” layer: offering users a captivating, beautiful escape from the ordinary. The design philosophy shifts from functional evolution to emotional continuation. Respecting and preserving the industrial DNA of the original structure forms the narrative foundation of this renovation. As a Michelin-level restaurant project, the design also addresses how to harmoniously integrate industrial aesthetics, refinement, and comfort while fulfilling essential dining functions.
▼建筑与城市的对话,The dialogue between architecture and the city

原建筑体没有隔断,块面明朗。排列有序的天窗是整幢建筑的特点,我们在原有天窗的基础上对结构进行了优化,并借此隐藏照明线路及空调管道。在解决防水保温的同时,强化了顶面的视觉效果。
The original structure featured no partitions, with clear, defined volumes. Orderly skylights defined the building’s character. We optimized the existing skylight structure to conceal lighting circuits and HVAC ducts. This approach addressed waterproofing and insulation while enhancing the visual impact of the ceiling.
▼富有感染力的室内空间,An infectious interior space


两扇玻璃旋转门将室内与廊下灰空间一分为二。为扩容餐厅的使用面积,面朝橄榄树林与黄浦江畔的这片廊下灰空间被合理收编,成为宏大的工业骨架中,描绘北欧设计精神中功能、自然与温暖的一幅流动的框景。
Two glass revolving doors divide the interior from the covered gray space. To expand the restaurant’s usable area, this covered space facing olive groves and the Huangpu River was thoughtfully incorporated. Within the grand industrial framework, it frames a dynamic panorama embodying the Nordic design ethos of functionality, nature, and warmth.
▼宏大的工业骨架,the grand industrial framework


我们保留了其中的一扇旋转门,将其改建为一个瓶状的玻璃酒窖,成为空间里的第一视觉中心。在狭长的建筑体里,圆形结构不仅起到调和的作用,也意在打通内外两个空间。整个场域没有立柱,入口处支起的一座长柄倒挂的铜炉,与玻璃酒窖形成一实一虚的两个圆。同时,铜炉不仅可用于食物的烘烤,冬日里亦可起碳生火,让客人体验一室温暖,岁有小安的融融之乐。
One revolving door was preserved and transformed into a bottle-shaped glass wine cellar, becoming the primary visual focal point. Within the elongated structure, this circular element not only harmonizes the space but also bridges the interior and exterior. The column-free space features a suspended copper brazier at the entrance, creating a dual circular motif—one solid, one ethereal—with the glass cellar. Moreover, the copper stove serves not only for baking food but also for charcoal fires in winter, allowing guests to experience the cozy warmth of a room and the simple joys of seasonal comfort.
▼瓶状玻璃酒窖,The bottle-shaped glass wine cellar

▼临窗座区,Window seating area



光影叙事:塑造空间的第四维度Light and Shadow Narrative: Shaping the Fourth Dimension of Space
光,是本项目中无可争议的主角。在日与夜的更替中,首先得益于巨大采光面的建立,使自然光成为空间中最活跃的动态元素。人工光照则在暮色的冉冉升起中接力,继续完成戏剧性的诗篇。
Light is the undisputed protagonist of this project. Through the transition of day and night, natural light becomes the most dynamic element within the space, largely due to the creation of expansive daylighting surfaces. Artificial illumination then takes the baton as dusk descends, continuing the dramatic poetic narrative.
▼光影叙事,Light and shadow narrative

两个室内空间的顶面保留原有的结构与天窗,与一侧新增的格栅玻璃窗共同构成了一个精微的采光系统。自然光就此被巧妙地“邀请”进来,作为连接室内外的媒介。白天,阳光成为空间的主照明。在不同时段、不同天气的幻变下,渲染出或明媚、或朦胧的情绪氛围,使餐厅成为一个与自然共呼吸的生命体。
The ceilings of both interior spaces retain their original structures and skylights, forming a sophisticated daylighting system alongside newly added lattice glass windows on one side. Natural light is thus artfully “invited” in, serving as a bridge between indoors and outdoors. By day, sunlight becomes the primary illumination. Under the shifting transformations of different times and weather, it evokes moods ranging from bright and sunny to soft and hazy, making the restaurant a living entity that breathes in unison with nature.
▼精微的采光系统,A sophisticated daylighting system


▼优雅的光影效果,Elegant light and shadow effects


▼用餐区,Dining area


▼包间区,Private room area


夜幕降临,倘若此时你站在橄榄树林下,望向面前透着暖光的烟火人间,再喧嚣的尘世也会悄然的宁静下来。再一看,顶面仿佛生出数个倒立的金字塔,优雅且神秘的屹立于天际。低悬的吊灯在桌面形成亲密的聚光圈,强化用餐时的私密性与仪式感。
As night falls, if you stand beneath the olive grove and gaze upon the warmly lit world of human activity before you, even the noisiest of earthly realms will quietly settle into stillness. Looking up, the ceiling appears to sprout inverted pyramids, standing elegantly and mysteriously against the skyline. Low-hanging pendant lights cast intimate circles of light on the tables, enhancing the privacy and ritualistic feel of the dining experience.
▼用餐区细部,Details of the dining area


内外之间:重构艺术的观演关系Between Interior and Exterior: Reconstructing the Art of Performance
面对开阔的挑空,设计通过巧妙的功能布局和家具组合来划分区域,创造出身处大空间中的小聚落感。排列规整的餐桌椅,既营造出仪式般的秩序感,又确保每位客人都能享有开阔的江景,同时感受到空间的通透性与流动感。
Facing the expansive double-height space, the design cleverly divides areas through functional layouts and furniture arrangements, creating a sense of intimate enclaves within the larger volume. Neatly arranged dining tables and chairs establish a ceremonial order while ensuring every guest enjoys unobstructed river views, all while maintaining the space’s transparency and fluidity.
▼仪式般的秩序感,A ceremonial order


青草地、橄榄树林、往来的行人、江面的船只、天空的流云、对岸高耸的建筑天际线……巨大的格栅玻璃将这些动静相宜的画面定格为一幅幅动态的影壁,也由此成为餐厅内最珍贵的艺术陈设。在开阔且丰盈的内外之间,体验已不止于用餐本身。城市、艺术、生活、自然、诗性,在重构与重塑中继续其“展示”与“启发”的使命。
Green meadows, olive groves, passing pedestrians, riverboats, drifting clouds, and the towering skyline across the water… The expansive grid-patterned glass frames these dynamic scenes into moving screens, becoming the restaurant’s most precious artistic installations. Within this open and abundant space bridging interior and exterior, the experience transcends mere dining. City, art, life, nature, and poetry continue their mission to “display” and “inspire” through reconstruction and reshaping.
▼夜景,Night view



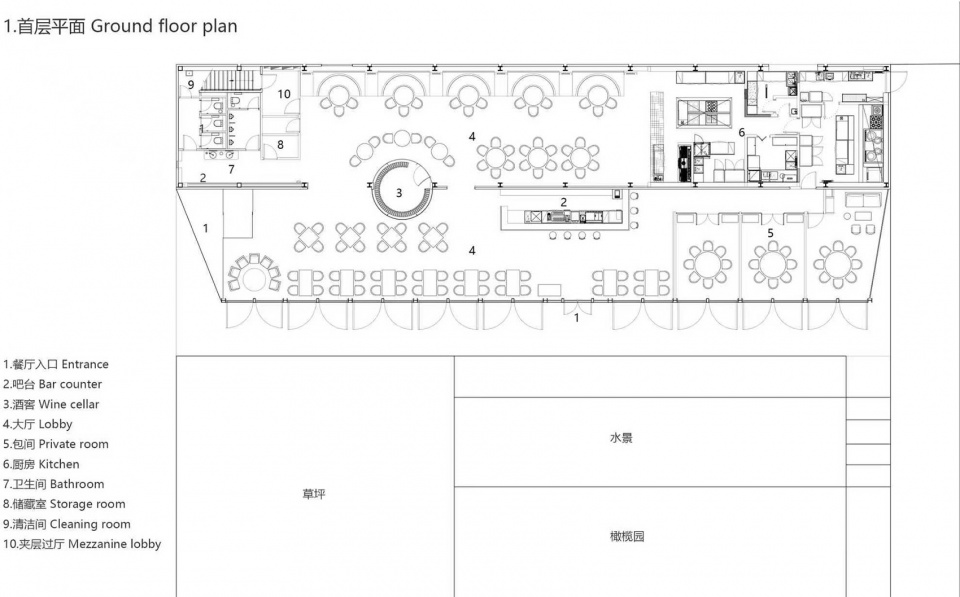
▼首层平面,Ground floor plan

▼夹层平面,Mezzanine floor plan

项目信息
Project Info
Project name: Olivino Art Restaurant
Interior design: Not A Studio
Principal Designer: Gu Yi
Design Team: Su Meina, Qin Junfei, Ou Shuqin
Project address: Shanghai
Design content: Interior
Project area: 626㎡
Date of completion: May, 2025
Project type: Commercial Dining
Main materials: Art Paint, Metal Panel, Handmade Brick, Gold Leaf
Spatial Photography: Shan-jian images
Spatial Video: Y³STUDIO
无设建筑
nastudio@163.com














