Castelli Romani别墅,意大利 / STUDIOTAMAT
这座别墅最初建于20世纪60年代,其设计灵感源自弗兰克·劳埃德·赖特(Frank Lloyd Wright)的“尤索尼亚(Usonian)建筑”理念——以简洁的线条、明晰的平面布局以及与自然环境和谐融合的材料为特征。最初,这里是一对经常环游世界出差的夫妻的度假住所,既为他们提供宁静的休憩空间,又可欣赏自然景观。别墅位于格罗塔费拉塔(Grottaferrata)与弗拉斯卡蒂(Frascati)之间的丘陵地带,兼具纯净自然环境的静谧与罗马的城市便利。如今,它成为屋主——Daniele与Sara及他们的三个女儿 Fiamma、Sole 与 Celeste——一家人与自然亲密共处、又不失都市生活便利的理想居所。
Originally built in the 1960s, the villa is inspired by the Usonian architecture of Frank Lloyd Wright, featuring clean lines, a simple layout, and natural materials that blend harmoniously with the surrounding landscape. Originally conceived as a vacation home for a couple who traveled the world for work, it was designed to provide both scenic beauty and respite. Its strategic location, situated between Grottaferrata and Frascati, merges the serenity of a pristine natural setting with proximity to Rome, granting the current owners—Daniele, a senior executive at a tech multinational, and Sara, managing director at a leading consulting firm, along with their three daughters Fiamma, Sole and Celeste—a lifestyle that connects closely with nature, while offering the conveniences of metropolitan life.
▼室内概览,overview of the interior space


STUDIOTAMAT延续了这种哲学,通过保留别墅原有的建筑元素,并以创造性的方式强化室内与室外的共生关系。石墙、裸露砖面、木材与混凝土等真实材质被保留并重新演绎,通过光与质感的对比,焕发出新的生命力。平面布局被重新定义——大部分走廊及部分辅助用房被移除,从而打开空间流线,让整座住宅的动线更为流畅。
STUDIOTAMAT has embraced this philosophy, by preserving the villa’s original architectural elements while introducing creative solutions that intensify the symbiotic relationship between interior and exterior spaces. Authentic materials such as stone walls, exposed brick, wood, and concrete have been preserved and reinterpreted through juxtaposed elements that celebrate natural light and bring vitality to the space. The layout has been redefined by removing most of the corridors and some smaller utility rooms, opening the interiors to create smoother connections throughout the house.
▼打开空间流线,opening the interiors

▼客厅局部,living room

▼厨房的窗框采用了菱形中轴图案,The window frame of the kitchen adopts a diamond-shaped central axis pattern

入口处设有定制衣柜,柜体内衬L’Opificio出品的 “Viceversa Monet” 布料,并以优雅的坦干伊喀胡桃木(Tanganika walnut)收边,体现出STUDIOTAMAT对工艺与细节的极致关注,也反映了其“精致而恒久”的设计理念。原有的山毛榉木门窗被修复,保留了别墅的历史神韵,深化了其与过去的精神联系。在客厅与餐厅区域,修复后的石制壁炉自然融入石墙之中,营造出温馨而宜人的社交与休憩氛围。
At the entrance, a custom-made wardrobe lined with “Viceversa Monet” fabric by L’Opificio, featuring elegant Tanganika walnut trim, showcases STUDIOTAMAT’s meticulous craftsmanship, reflecting their approach to creating refined, timeless interiors. The original beech wood door (like the windows) has been restored, preserving the villa’s historical essence and deepening its connection to the past. In the living and dining areas, restored stone fireplaces seamlessly blend into the stone walls, creating inviting spaces for socializing and relaxation.
▼“精致而恒久”的设计理念,creating refined, timeless interiors

▼修复后的石制壁炉自然融入石墙之中,restored stone fireplaces seamlessly blend into the stone walls


别墅的椭圆形楼梯是空间的核心视觉焦点,自入口即可见,并对称地组织了底层空间。东侧客厅以一面石墙为基底,嵌入壁炉,构成会客区;两组大沙发则围合出电视区。客用卫浴空间整体包覆以Colony壁纸,以茂密异域植被为主题,色彩浓烈,搭配Devon&Devon的雕塑感洗手盆,呼应1920至30年代的美式装饰风格。
The villa’s elliptical staircase, a striking focal point, is visible from the entrance and symmetrically organizes the ground floor spaces. To the east, a stone wall in the living room anchors an integrated fireplace in the conversation area, while two large sofas define the TV zone. The guest bathroom, entirely clad in Colony wallpaper (known for its vibrant depictions of lush, exotic vegetation), houses a sculptural Devon&Devon sink that echoes the American design styles of the 1920s and ‘30s.
▼椭圆形楼梯,elliptical staircase

西侧的40平方米美式厨房配有定制波斯红洞石中岛,集成灶台、油烟机与铁板烧设备。窗下的卡座餐区为小型用餐提供私密空间,而一系列嵌板巧妙地隐藏了冰箱、储藏柜及通往服务区与辅助楼梯的隐蔽通道。厨房与餐厅之间以整高磨砂玻璃隔断柔和分隔,保持视觉通透。
To the west, the 40-square-meter American-style kitchen features a custom-made island in Persian Red Travertine, equipped with a cooktop, integrated hood, and teppanyaki plate. The dining nook, with a built-in bench under the window, provides an intimate space for smaller meals, while a series of panels cleverly conceals refrigerators, pantries, and two hidden passages leading to the service area and secondary stairs. A full-height, powder-coated glass partition gently separates the kitchen from the dining room.
▼美式厨房配有定制波斯红洞石中岛,American-style kitchen features a custom-made island in Persian Red Travertine

▼窗下的卡座餐区,The dining nook, with a built-in bench under the window

▼巧妙地隐藏了冰箱、储藏柜,cleverly conceals refrigerators, pantries

家具的选择体现了屋主兼具理性与感性的个性,将复古与当代设计相融合。客厅内,Arflex 1970年代的Marenco沙发搭配Punto Zero与Plastiz出品的Rammendi坐墩与茶几;餐厅中,Knoll的Marcel Breuer设计 “Cesca” 椅环绕于Punto Zero“Big” 系列限量版餐桌周围。这张高光漆面定制色桌面强化了自然光的反射,使空间在明暗交替中更显轻盈。楼上,橡木人字拼地板以“姐妹花纹”铺设,串联卧室与主楼梯,整体以柔和的奶油色树脂地面贯通。居中的Sara书房以定制玻璃隔墙与大窗引入露台景观,天花以Little Greene出品的托斯卡纳红饰,为光影空间增添温度。
The furniture, selected to reflect the owners’ eclectic personalities, blends vintage pieces with design icons. In the living room, 1970s Marenco sofas by Arflex pair with Rammendi pouf/coffee table by Punto Zero and Plastiz, while Marcel Breuer’s Cesca chairs by Knoll complete the dining room alongside a special edition table from Punto Zero’s “Big” collection. The table’s high-gloss lacquered finish and custom color amplify the room’s natural light, delicately reflecting its surroundings. Upstairs, the oak parquet floors laid in a “sister” pattern connect the bedrooms, each overlooking the main staircase and joined by a continuous cream-colored resin path. At the center, Sara’s study, with its custom glass wall and large window overlooking the main terrace, serves as a sanctuary of light and inspiration, made cozy by a Tuscan Red-painted ceiling from Little Greene.
▼楼上公共空间,the public space on the upper level

▼以定制玻璃隔墙与大窗引入露台景观,custom glass wall and large window overlooking the main terrace

▼以定制玻璃隔墙与大窗引入露台景观,custom glass wall and large window overlooking the main terrace

主卧的Colony 壁纸暗藏套间入口,套间内设有独立浴缸与一体化阿拉贝斯卡托(Arabescato)大理石洗手台,呈现低调奢华的氛围。三位女儿的卧室则根据性格各具特色,定制衣柜与软包床体采用L’Opificio的棉质天鹅绒,并点缀Disney Home 壁纸,在优雅中融入童趣。两间卧室之间的共用梳妆区设有Valdama洗手盆与鸽蓝色镀锌铁柜体,墙面铺设Cristina Celestino为Fornace Brioni设计的Tivoli系列瓷砖,形成独特的过渡空间,既分隔又连通。顶层阁楼拥有俯瞰罗马的开阔视野,被打造为家庭的休闲与娱乐空间。Artigo出品的赤陶橡胶地板划分出影院与游戏区,供三个女儿在冬季与家人一同放松、享受温暖惬意的家庭时光。
In the master bedroom, a wall clad in Colony wallpaper conceals the entrance to the en suite bathroom—a luxurious haven featuring a freestanding tub and an integrated Arabescato marble sink. The daughters’ rooms reflect their personalities, with custom wardrobes and beds upholstered in L’Opificio cotton velvets, and Disney Home wallpapers that add a refined, playful touch. Between the two bedrooms, the shared vanity area (complete with Valdama sinks) is distinguished by a custom-built cabinet in dove blue galvanized iron, while the walls are clad in tiles from Cristina Celestino’s Tivoli series for Fornace Brioni, forming a stylish transition between the rooms, keeping them separate yet connectable. On the top floor, a loft space revealing breathtaking views of Rome serves as a relaxation and entertainment area. The terracotta rubber flooring by Artigo defines a cinema and game area where the daughters can enjoy free time in a cozy, laid-back atmosphere, perfect for family relaxation during the winter months.
▼卧室则根据性格各具特色,daughters’ rooms reflect their personalities


▼具有特色的壁纸,featured wall paper



▼在优雅中融入童趣,add a refined, playful touch



STUDIOTAMAT以细腻的设计手法在别墅原有精神与当代建筑语言之间建立了无缝对话。项目在尊重历史身份的同时,以真诚且富有生命力的方式重新诠释其价值。从天然材料到量身定制的家具,每个细节都参与构建一个连贯的叙事——在这里,空间不仅被居住,更被激活,成为居者生命故事中的主角。
STUDIOTAMAT has created a seamless dialogue between the villa’s original spirit and modern architectural language, applying a sensitive design approach that honors its historical identity while reinterpreting it with a fresh, authentic voice. Every detail, from the natural materials to the tailored furnishings, contributes to a cohesive narrative, where spaces are not merely inhabited but seem to come alive, becoming protagonists in the lives of their residents.
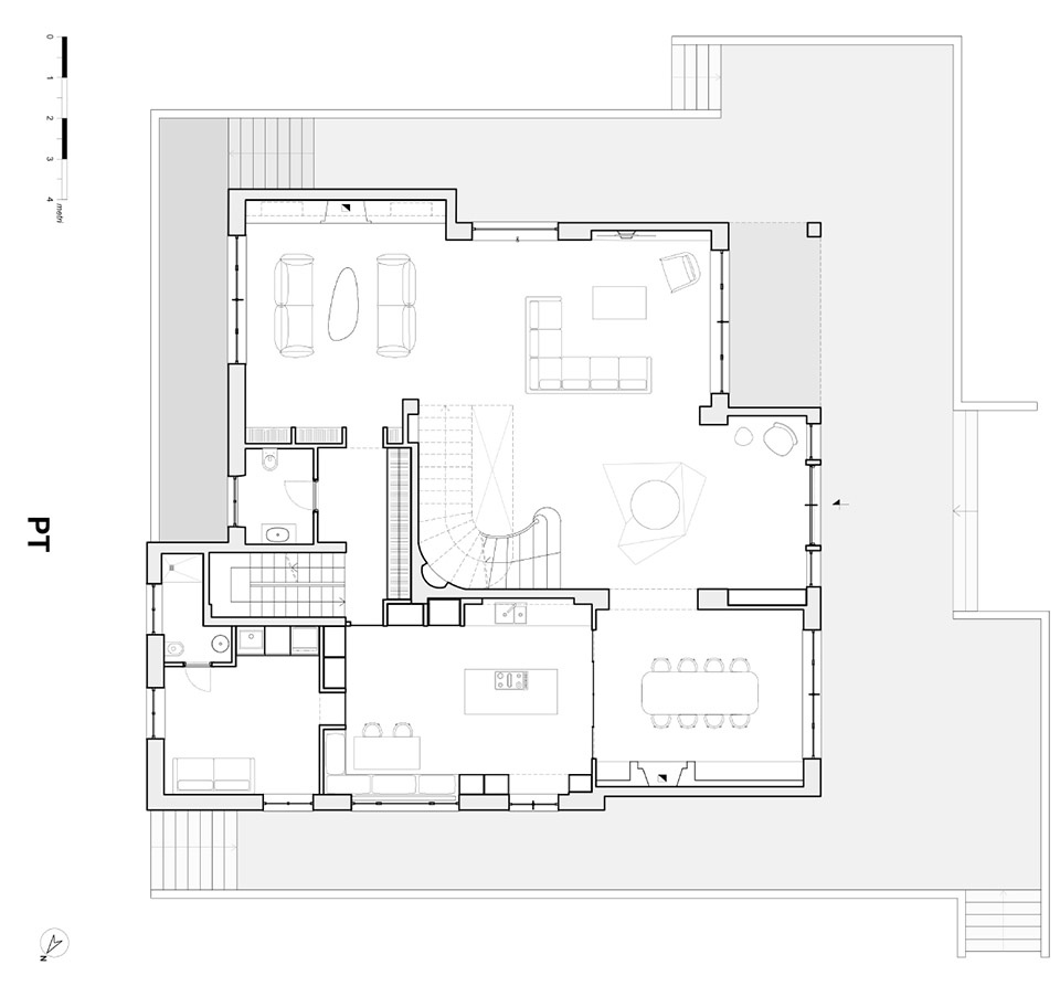
▼一层平面,ground floor plan

▼二层平面,first floor plan

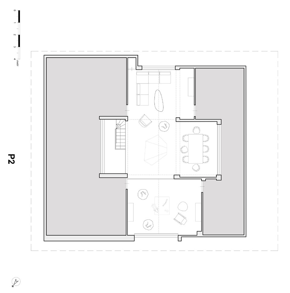
▼三层平面,second floor plan

PROJECT NAME A Villa in the Castelli Romani
LOCATION Grottaferrata
ARCHITECT STUDIOTAMAT
(Tommaso Amato, Matteo Soddu e Valentina Paiola)
PROJECT TEAM Tommaso Amato, Matteo Soddu e Valentina Paiola, Silvia D’Alessandro
CONTRACTOR Ediltel B
CLIENT Private
DATE 2025
GFA
Indoor area: 400 sqm
Outdoor area: 3,200 sqm
TIMELINE Project assignment: December 2022
Work start: March 2023
Completion: October 2024














