亭桥驿,浙江 / 森上建筑
集镇的历史与现代化村镇的立面整治The History of Tingqiao Towns and the Facade Renovation of Modern Villages and Towns
亭桥集镇位于位于桐乡市高桥街道西侧的亭桥村。相传很早以前,就以高桥为中心,依托水上交通,临水河岸的水阁楼房子形成了手工业和商业相当发达的繁华集市,有“小长安”之称。
Tingqiao Town is located in Tingqiao Village, on the western side of Gaoqiao in Tongxiang City. According to legend, in earlier times, the area centered around Gaoqiao and relied on water transport, with waterside attic houses along the riverbanks forming a bustling market where handicrafts and commerce flourished, earning it the nickname “Little Chang’an.”
▼建筑鸟瞰,aerial view


▼建筑概览,overview of building


随着时代的变化,街道南边临水河岸上的水阁楼房子已逐渐消失。亭桥以北新建了一条主干街道,取名为亭桥路。沿车道两侧为上宅下铺的集镇商街,集镇街道虽小,但五脏俱全——菜市场、面店、茶馆店、百货店、糕团店、肉店、理发店、医疗诊所、学校等成为了周边村落居民离不开的生活配套。
▼建造前后对比,overview of building

Over time, the waterside attic houses along the southern riverbank have gradually disappeared. To the north of Tingqiao, a new main street named Tingqiao Road was built. Along both sides of the road, a market street has developed, featuring residential spaces above and commercial shops below. Although the street is small, it is fully equipped—with a vegetable market, noodle shops, tea houses, general stores, pastry shops, butcher shops, barbershops, medical clinics, schools, and more—serving as essential daily amenities for residents of the surrounding villages.
▼建筑立面,exteriro of building

▼建筑沿街视角,building street view

集镇建筑大部分建于八九十年代,近年来经历了一次街道改造。街道的修缮与形象提升本着基础建设为先,整治并行的原则,保证了街道界面的统一性。道路两侧业态均以商铺为主,门头+店面的形式贯穿了整条街道。改建前驿站的基地是一栋两层高的老建筑,仅店面宽度的山墙面向马路,需通过一条小路折进建筑的入口,南侧有一个杂院被遮挡在沿街建筑身后,三面都被民居和商铺所围合。
▼街道的演变,the evolution of streets

Most of the buildings in the Gaoqiao Town were constructed in the 1980s and 1990s and underwent a streetscape renovation in recent years. The restoration and visual enhancement of the street adhered to the principle of prioritizing infrastructure upgrades while incorporating comprehensive enhancements, ensuring a cohesive streetscape interface. On both sides of the road, the businesses are predominantly commercial shops, with storefronts and signboards forming a continuous streetscape. Before the renovation, the site of the station was a two-story old building, with only the narrow gable wall, matching the shopfront’s width, facing the main road. Access to the building’s entrance required a detour via a small path. To the south, a cluttered courtyard was tucked away behind the street-facing buildings, enclosed on three sides by residential houses and shops.
▼建筑在集镇街道中,building in market street

街道的”缺口“与装满生活的“口袋”The “Gaps”in the Streets and the“Pockets”Filled with Life
在传统的村镇中,广场、院落和街道几乎容纳了所有日常生活中的社交活动。单一模式化的街区整治与改造挤压了这些集聚的生活空间。设计希望打破较为封闭的沿街状态,让街道有一个”缺口“,产生不同的节奏与变化。倾斜的红砖墙提示人们可以走到街区的背面去发现一个“口袋小院”的存在,并参与到这个新落成的公共场地中。沿街商铺的背后原有一个雨棚,经修缮和粉刷后改建成了一个小舞台,相对应的院落边界则由一些地景式的座位区组成。
In traditional villages and towns, squares, courtyards, and streets accommodate almost all daily social activities. However, standardized and homogenized neighborhood renovations have increasingly encroached upon these gathering spaces. The design aims to break through the relatively enclosed street frontage by creating an “opening” in the streetscape, creating varied rhythms and changes. A slanted red-brick wall signals to passersby that they can venture behind the block to discover a “pocket courtyard” and engage with this newly established public space. Originally, a canopy stood behind the street-facing shops; it has since been repaired, repainted, and transformed into a small stage. Correspondingly, the boundary of the courtyard is defined by landscaped seating areas.
▼街道的“缺口”,gaps in the street

▼开放的空间,open space


小院日常可供村民歇息或孩童们嬉戏,也可以作为一层茶饮的外摆空间。红砖材质的选用呼应了集镇上有着历史的水塔,留下一些传统生活与市井文化的印记。村镇定期会在这里放映露天电影,举办小型演出,丰富新亭桥集镇街道的文化生活。
On ordinary days, the courtyard serves as a resting spot for villagers or a play area for children, and can also function as an outdoor extension for a ground-floor tea shop. The use of red brick echoes the historic water tower in the town, preserving traces of traditional life and local culture. The village and town now regularly host open-air film screenings and small-scale performances here, enriching the cultural life of the newly developed Ji Town streets.
▼口袋小院,”pocket courtyard”


▼小院放映露天电影,host open-air film


没有立面的房子A Building Without a Facade
建成后的驿站是亭桥街道唯一直接沿街的公共建筑。不同于常规的商业界面,设计有意将书吧和茶吧功能后置,不直接暴露于街面。建筑立面变成公共空间的一部分,打开的立面成为人行步道的扩展与延续:开放的大楼梯朝向街道,既在平面上隔绝了外部车行对于一层活动空间的影响,又在垂直方向上指引至二层的书吧。立体的院落与平台交织于建筑的形体之中,成为街区立面上有趣的公共休闲空间。
▼场地功能分析,site analysis

The completed station is the only directly street-facing public building on Tingqiao Street. Differing from conventional commercial interfaces, the design intentionally sets the library and tea bar functions further back, not directly exposed to the street front. The building facade becomes part of the public space, with its opened-up frontage serving as an extension and continuation of the pedestrian walkway: an open grand stairs facing the street not only creates a planar separation that shields the ground-floor activity space from the impact of external vehicular traffic but also guides people vertically to the library on the second floor. Three-dimensional courtyards and platforms are interwoven within the building’s form, creating engaging public leisure spaces within the block’s elevation.
▼立面成为人行步道的扩展与延续,acade becomes part of the public space


▼开放的大楼梯,opened-up frontage


新集镇的生活图块The Living Fabric of the New Town
心理学家德克·德·琼治(Derk de Jonge)曾提出的边界效应理论中指出:森林、海滩、树丛、林中空地等的边缘都是人们喜爱的逗留区域,而开敞的旷野或滩涂则无人光顾。人们在外部空间中活动的时候会下意识地寻找自己的空间归属……人流的密集和活动的交叉为边界带来了意想不到的活力。
▼建筑生成图,diagram

In his Boundary Effect theory, psychologist Derk de Jonge pointed out that edges—such as those of forests, beaches, groves, or forest clearings—are preferred areas for people to linger, while open fields or expansive mudflats tend to attract no visitors. When active in external spaces, people subconsciously seek their own sense of spatial belonging. The convergence of pedestrian flow and the intersection of diverse activities bring unexpected vitality to these boundaries.
▼村民日常社交的公共发生地,a true public anchor for social life


亭桥驿作为新集镇的休闲生活集聚地,有着与街道形象差异化的立面和一个鲜明的红色院落图块。集合了书吧、茶饮、公众休闲娱乐、文创活动等功能,成为了一个功能灵活的公共空间。无论建筑内部与口袋内院的视线对话,还是广场本身与舞台的关系,都构成了视线与空间上的交互。作为亭桥街道唯一直接沿街的公共建筑,村民集会、小型市集、孩子玩闹、露天电影等多样的生活都在此呈现,成为了村民日常社交的公共发生地。
As a hub of leisure and daily life in the new market town, Tingqiao Station features a distinctive facade that stands apart from the rest of the street, along with a vivid red courtyard block. It integrates functions such as a reading lounge, tea service, public recreation, and cultural creative activities, forming a versatile public space. Whether through the visual dialogue between the building’s interior and the pocket courtyard, or the spatial relationship between the plaza and the stage, the design fosters continuous visual and spatial interaction. As the only directly street-facing public building on Tingqiao, it hosts a variety of community life—from villager gatherings and small markets to children’s play and open-air film screenings—making it a true public anchor for everyday social life.
▼夜览,nightview

▼夜览,nightview

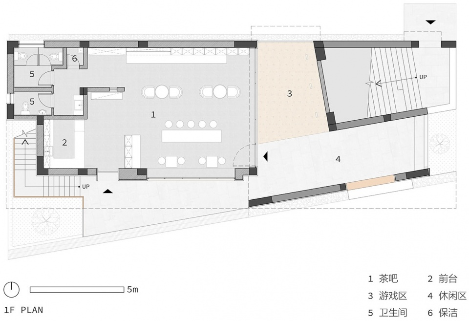
▼平面图,plan


▼立面图,elevation


▼剖面图,section


Project type: Tingqiao Station——Hidden courtyards and houses without facades
Design:Sens Architects
Website:www.senshangsheji.com
Contact e-mail:senshang@qq.com
Design year:2021.11
Completion Year:2025.05
Leader designer : Zhang Juntian,Sun Hongfei,Wangxin
Cooperative designer:Structural consultant-Su Qinjun
Project location:Zhejiang ,Tongxiang
Gross built area: 600㎡(Including the courtyard)
Photo credit: Wu Qingshan
Clients:Gaoqiao Sub-district Office, Tongxiang City
Materials: Concrete, Facing brick,Stone-like coating














